查看完整案例

收藏

下载
TSING HORSE DESIGN 丨青马别墅空间设计最新案例丨
PROJECT INFORMATION
建筑户型 ︱ 顶跃
设计风格丨 现代简约
项目名称︱ 阅骊山
施工面积 ︱ 210 平米
全案产品丨 东芝设备、墨瑟门窗、莱博顿淋浴房、箭牌卫浴、LD 瓷砖、奥卓斯岩板、菲林格尔、欧派整屋定制、老板电器、华为智能、华艺石材、克劳嫩堡美缝
PROGRAMME
设计方案
本案 210㎡顶跃户型,南北通透,结构合理,通风和采光极佳。
五口之家,有个小朋友 2 岁半。夫妻二人希望新家更多的围绕亲子互动释放小孩天性为主。
设计注重对于其屋主本质诉求的思考,以现代简约的形式打造奢居生活日常,在城市的“桃花源”里过安然向暖的小日子。
by-本案设计师 苏怡人寄语
- 客厅整体空间大部分作留白处理。
- 木色作为点缀色,让情绪沉静且丰富空间。
- 舍弃过分装饰来修饰墙面,只求简单。
- 独特婴儿蓝充实整个空间,雅致简朴中跳跃着灵动。
- 精致与雅致,从来不止是形容词,而是对品质生活的真实感受。
- 餐厅以对称结构呈现生活的优雅格调。
- 利用空间规划的开放柜体满足储物功能且兼具美观。
- 暖光源点缀给予用餐满满氛围感。
- 设计感餐桌与餐椅弥漫奢华浪漫。
- 这里不仅有一日三餐,也有亲友聊天休闲的交互之意。
可视的窗口消除公区的界限感,打造这开放的餐厨关系。
光影雅韵,分区是凝固的,光线是流动的。
动静之间,遵循缓慢流动的变化规律。
让空间与人,自然而然的交流与陪伴,带给身心特别的仪式感和温暖力量。
- 主卧采用灰色调与柔和大地色调搭配,营造出自然静谧低调的感觉。
- 还原睡眠功能,轻松游戈在朴实无华之间。
- 素雅,高贵而又百搭,带来无穷无尽的美妙感受。
- 满足一定的储物收纳需求。
- 希望家里简单而且方便整理打扫。
- 于是,将一切可利用的空间规划给收纳。
- 楼梯间与客卧大面积的柜体,增加小型常用物品收纳。
- 生活美学的展现亦是设计的巧妙指引。
- 休闲区利用低饱和度的中性色调色彩,打造出一种温和恬静的氛围。淡淡暖意让此区域充满治愈力。
- 由于通往露台的路径存在地梁,便以地面抬高的形式和不同的地面材质衔接,形成功能区域的“软隔断”,赋予空间自由的流通感。
露台采用防腐木设计,空间简洁大方。花箱与卡座连接使空间连贯妥帖,增加家庭成员间的情感交流与互动。温暖的木色搭配自然清新的绿植,从喧闹中带回平静优雅。空间的张力与留白使得氛围开敞情感包容。
ANALYSISDIAGRAM
分析图
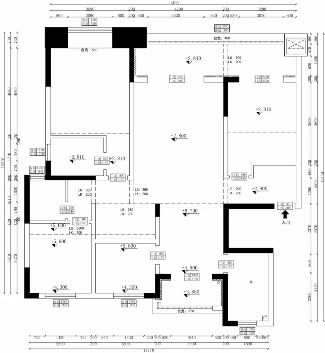
1F 原始平面图
1F 平面布局图
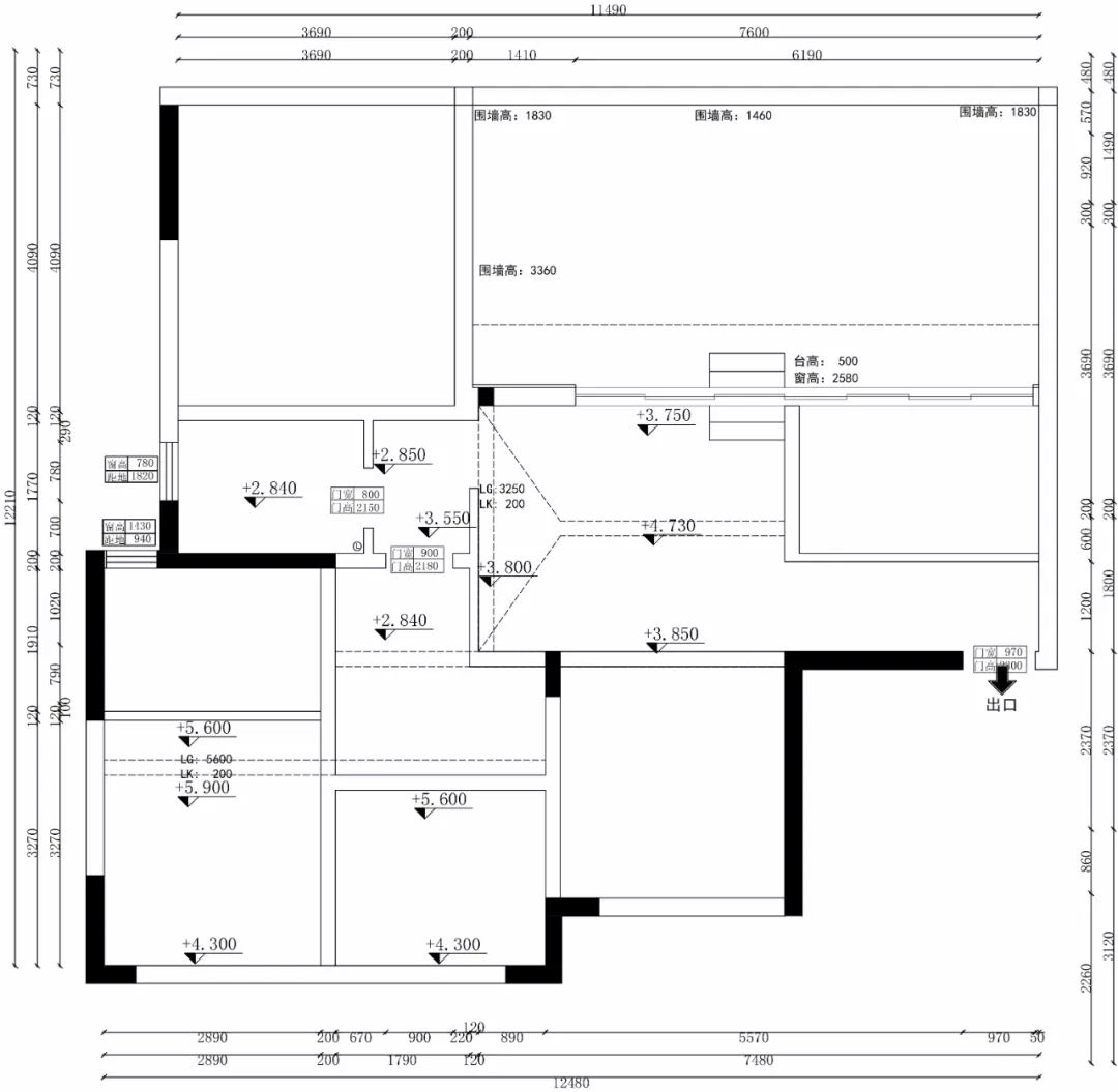
2F 原始平面图
2F 平面布局图
INFO
- 主案设计-苏怡人
- 工程管家-韩淋
- 客户经理-邢阳
- 设计公司-青马别墅设计
- DESIGNER 主创设计
苏怡人
青马设计主创设计师
毕业于西北大学
深造于西安建筑科技大学
室内装饰行业从业 19 年以上,专属大宅全案设计
资质
获得中国建筑装饰协会颁发的建筑装饰装修设计师中级证书设计师
编号:02080385
2011 年获得中国建筑装饰协会颁发的建筑装饰装修设计师高级证书设计师
编号:02113439
2017 年通过巴黎高等文化艺术学院的学习考取法国 CNCP 等级证书
2019 年获得国际建筑装饰室内设计协会颁发的高级陈设艺术设计师证书
设计理念
在这里,空间不再是简单的细部线条、结构比例与色彩均衡,而是一种融入人文气息的深度思考。每一个细部空间都有自己的精神,每个创作者都必须理解它们,才可能融入其色彩、意境和神韵之中。有限空间,无限精彩……
殊荣
2007 年荣获国际流行色彩发布趋势优秀奖
2008 年荣获阿姆瑞特杯设计大赛入围奖
2012 年荣获房周刊设计联盟专属设计师
2013 年荣获风尚设计大赛金奖
2014 年荣获筑巢奖优秀作品奖
2015 年荣获风尚设计大赛金奖
2016 年荣获搜狐家居焦点奖
2018 年获得金藤设计优秀奖
2019 年 916.988 等电台特约嘉宾
2020 年陕西广播电视台风尚家居特约嘉宾
案例
中华世纪城、白桦林居、白桦林间
紫薇风尚、曲江 6 号、中海铂宫、御景豪庭
曲江公馆、曲池坊、中海国际、兰亭坊
皇家园林、Class 公馆、绿地世纪城、逸翠园
枫林华府、紫薇臻品、锦都花园、长庆兴乐园
群贤庄、紫薇田园都市、中海华庭、枫林绿洲
世家星城、旭景名园、新西蓝、锦园新世纪等...
链接
青馬作品 | 龙湖香醍天宸 · 320㎡联排别墅 现代轻奢 探索无限生活方式的可能性 / 苏怡人
青馬作品 | 香湖湾 · 上叠 现代美式 傲世而清雅 / 苏怡人
青馬作品 | 中海悦墅 · 235㎡ 上叠 现代轻奢 畅享生活的舞台 / 苏怡人
青馬作品 | 新城玺樾骊府 · 360㎡ 下叠 现代 蔓延温柔梦境 / 苏怡人
青馬作品 | 科为城墅 · 240㎡ 下叠 现代轻奢 回到最初的美好 / 苏怡人
青馬作品 | 绿地国际生态城 · 550㎡ 别墅 现代轻奢 共舞一曲动人的探戈 / 苏怡人
青馬作品 | 绿地海珀香庭 · 220㎡ 现代轻奢 心生欢愉/苏怡人
青馬人物 | 苏怡人:让家人爱上回家的生活美学家
点击图片
了解更多案例丨人物丨作品
△青馬作品 | 金辉世界城 · 顶复 现代轻奢 沉浸品味慢调中 / 晁阳
△青馬作品 | 海亮唐宁府 · 下叠 新中式 悠然渐入佳境 / 王清玉
△青馬作品 | 金地芙蓉世家 联排别墅 现代 细节设计的精心雕琢 / 马斌
△青馬作品 | 龙湖源著 · 下叠 现代轻奢 界面的高级感 / 冯略嘉
△青馬作品 | 东原印未央 · 下叠 现代轻奢 多元勾画空间艺术性 / 吕韶华
△青馬作品 | 世园大公馆 · 联排别墅 现代美式 描摹家的浪漫 / 李昂
COMPANY
设计公司
- 青马设计
隶属于北京尚美饰家装饰集团旗下,专注于高端别墅大宅的装饰品牌;由集团精心重资打造,经过多年不断的淬炼升级与创新融合,打破以往客户服务的常规局限,构建全新的大宅别墅全案设计和整装服务平台,专注服务对象涵盖企事业精英人士和高端客户群体,提供大宅别墅装饰的整体规划设计与施工产品整体交付私属定制服务。
青马设计
集结行业内经验丰富的设计大咖、大客户经理、工程大管家、优秀的工程项目经理打造的“大宅别墅工程”管理体系,“多对一”式的整装服务系统,在行业里形成独特 TSING HORSE 系风格的青马设计范式。青马设计不仅是装修服务的提供商,更是大宅别墅生活方式的的服务商。青马 - 成就别墅生活。
-END-
生活的格调
就是一个人对自我独特的定义
是生活,是艺术
而家
就是格调的终极表现
青马,只想给你一个格调家
客服
消息
收藏
下载
最近





























