查看完整案例

收藏

下载
TSING HORSE DESIGN
丨青马别墅空间设计最新案例丨
PROJECT INFORMATION
建筑户型 ︱ 下叠
设计风格丨 现代
项目名称︱ 东原印未央
施工面积 ︱ 370 平米
全案产品丨
美驰门窗
高仪洁具
雷狄尼全屋定制
西蒙智能灯光
卡硕瓷砖
博艺石材
莱伯顿淋浴房
老板厨电
PROGRAMME
设计方案
本案 370㎡下叠户型,设计以不俗的品味渗透在细枝末节处,汇聚社交、娱乐、居住等生活场景,构建兼具高品质生活与契合心境的空间,满足现代都市人的多维需求,迸发出无限活力。
by-本案设计师 王海寄语
- 黑与灰碰撞,展现色彩相撞迸发的魅力
- 显示着屋主高级审美的生活品味
- 负二入户入目被统一到摩登的设计秩序之中
- 跳脱出既定格局,游刃于更欢脱的娱乐主场
- 流动的空间气场在这里贯穿始终
娱乐休闲区光影之下
更丰富的空间层次,让空间与情绪和鸣
不断融合,不断跨出界限,挑战更多更有趣味的领域
超大观影体验区,舒适的组合沙发
精奢的质感闲适的生活
高定的生活气质是对奢华更为深刻的诠释
设计师对住宅的理解渗透进空间里。
它并非一个将人身体放进去,在里面生活的容器。
它必须是一个让人心安稳地、丰富地持续生活的地方。
空间最奢侈最动人的美,是一览简境,内蕴却丰盈动人。
- 打开空间引光入室,向阳而居。
- 通透的落地窗最大程度的让阳光走进公区。
- 黑白红的经典配色让此处多了艺术的氛围。
- 生活多了光影之美,多了一份温暖。
- 静谧让诗意渗透日常的点点滴滴。
主卧室私密的休憩场域,并不需要过多繁复的设计交互堆叠。合理的布局与生活动线让居住更舒适。实用美观的衣柜以再简单不过的功能做区域分割。空间发扬着优雅的气度,入室则简宁安心。
- 卧室延续整体空间的简洁明快,在干净利落、张弛有度的空间布局里,找到属于自己的生活节奏。
- ANALYSISDIAGRAM
分析图
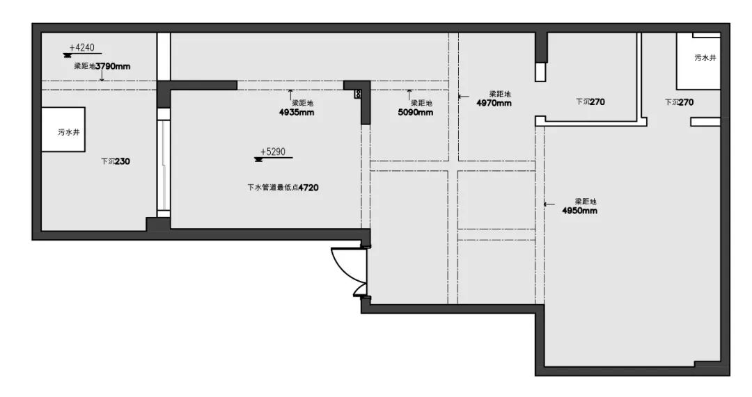
-2 和-1F 原始平面图
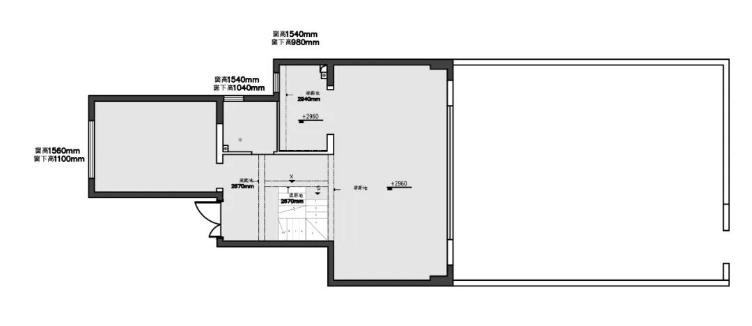
-2F 平面布局图
-1F 平面布局图
1F 原始平面图
1F 平面布局图
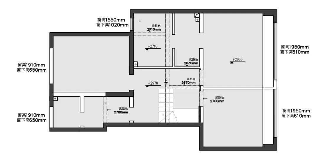
2F 原始平面图
2F 平面布局图
INFO
- 主案设计-王海
- 工程管家-韩淋
- 客户经理-邢阳
- 设计公司-青马别墅设计
DESIGNER 主创设计
王海
青马设计主创设计师
毕业于西安建筑科技大学艺术设计专业
室内装饰行业从业 15 年以上,专属大宅全案设计
资质:
国际建筑装饰协会注册会员室内设计师
设计理念:
我视设计为一种与现实和解的手段
坚持设计的价值性探索、延展、释放有限资源的无限潜能
殊荣:
2012 陕西优秀设计师称号
2013 年荣获中国十佳住宅设计师提名
2014 年荣获室内空间设计筑巢奖优秀奖
2015 年中国室内设计大赛三等奖
2016 年荣获设博会十大影响力设计师
2018 年第二届建筑装饰设计年度新锐设计师
2019 金梁中国设计奖西安站杰出设计师陕西广播电台 98.8《拜托了设计师》栏目特约设计师
2020-2021 40Under40 中国(陕西)设计杰出青年
2021 年中国红棉最美艺术空间设计奖
案例:
家装案例:群贤道九号、曲江南苑、曲江皇家花园、金地九玺、天字一号·湖城大境、紫薇花园洲、龙湖香醍天宸、龙湖雁塔天宸、海德堡、蓝光公园华府、国金华府、万科金域东郡、金辉世界城、中铁国际城、自然界望岳、枫林绿洲、曲池东岸、梧桐苑、阳光城壹号等
工装案例:天水酌茉餐厅、凯德广场沙拉客、超麦乐活餐吧、小百合艺术培训学校、顽茶茶室、高川商贸有限公司、鼎群装饰工程有限公司等
链接:
青馬人物 | 王海 · 脚步不停,与岁月追逐
青馬作品 | 金茂府 · 底跃 现代 宁静诗意的回归 / 王海
青馬作品 | 浐灞半岛朱雀金堤 · 顶跃 人文极简+赛博朋克 黑白新世界 / 王海
青馬作品 | 湖城大境 · 230㎡顶复 现代 格调日常无限温柔 / 王海
青馬作品 | 新城玺樾骊府 · 260㎡上叠 东方美学 感受一器一物自然情思 / 王海
青馬作品 | 万达天玺 · 220㎡平层 现代简约 自由穿行惬意生活 / 王海
青馬作品 | 科为城墅 240㎡ Unico 一生只有这一个家 / 王海
青馬作品 | 荣禾曲池东岸 240㎡ 新中式 清韵满琅函 / 王海
点击图片
了解更多案例丨人物丨作品
△青馬作品 | 金辉世界城 · 顶复 现代轻奢 沉浸品味慢调中 / 晁阳
△青馬作品 | 海亮唐宁府 · 下叠 新中式 悠然渐入佳境 / 王清玉
△青馬作品 | 金地芙蓉世家 联排别墅 现代 细节设计的精心雕琢 / 马斌
△青馬作品 | 龙湖源著 ·下叠 现代轻奢 界面的高级感 / 冯略嘉
△青馬作品 | 东原印未央 · 下叠 现代轻奢 多元勾画空间艺术性 / 吕韶华
△青馬作品 | 世园大公馆 · 联排别墅 现代美式 描摹家的浪漫 / 李昂
COMPANY
设计公司
- 青马设计
隶属于北京尚美饰家装饰集团旗下,专注于高端别墅大宅的装饰品牌;由集团精心重资打造,经过多年不断的淬炼升级与创新融合,打破以往客户服务的常规局限,构建全新的大宅别墅全案设计和整装服务平台,专注服务对象涵盖企事业精英人士和高端客户群体,提供大宅别墅装饰的整体规划设计与施工产品整体交付私属定制服务。
青马设计
集结行业内经验丰富的设计大咖、大客户经理、工程大管家、优秀的工程项目经理打造的“大宅别墅工程”管理体系,“多对一”式的整装服务系统,在行业里形成独特 TSING HORSE 系风格的青马设计范式。青马设计不仅是装修服务的提供商,更是大宅别墅生活方式的的服务商。青马 - 成就别墅生活。
-END-
生活的格调
就是一个人对自我独特的定义
是生活,是艺术
而家
就是格调的终极表现
青马,只想给你一个格调家
客服
消息
收藏
下载
最近

































