查看完整案例

收藏

下载
TSING HORSE DESIGN
丨青马别墅空间设计最新案例丨
PROJECT INFORMATION
建筑户型 ︱ 联排别墅
设计风格丨 现代
项目名称︱ 金地芙蓉世家
施工面积 ︱ 300 平米
全案产品丨 诺贝尔瓷砖、高仪洁具、约克空调、宾图整木定制、方太电器、得高木地板、艾尔西软装、怡口净水、集美科地暖、西蒙照明、林内热水器、欧派橱柜、克劳嫩堡美缝、施耐德开关、华为智能等
PROGRAMME
设计方案
本案 300 平方米联排别墅,南北通透,通风、采光良好,户型方正无异形好利用。
屋主喜欢简洁大方的风格,设计选用中性色彩作为基调,很好的融合了不同装饰元素与材质。
通过对于细节设计的精心雕琢,展现出现代主义下优雅凝练的空间氛围。
by-本案设计师 马斌寄语
原结构楼梯间位于整栋房子中间位置,不但把空间分割不连贯,且无采光。设计将楼梯间改动到西北角,解决了采光问题,垂直交通动线非常舒适,且给室内空间重新划分提供了条件。会客区、品茗区、健身区功能互动,白色与棕色搭配,营造了与众不同的韵感与雅致。
- 二层将原来的楼梯间改造成餐厅,使整个客餐厅南北空间宽敞明亮且有连贯性。
- 抬高处理的手法让餐厨区更具空间仪式感。
- 整体大面积中性色调的使用,奠定了优雅的空间基调。
- 白色大理石电视墙,提升了整体质感。
- 玻璃砖元素与开放格呼应,展现出别样的几何美感。
- 三层作为屋主私密活动区,重新划分空间,增大衣帽间面积。
- 东北角的房间兼并卧室与书房功能,利用壁挂床形式,让空间既满足卧室功能,又能作为书房使用,增大使用率。
- 细腻而交错的纹理呈现出空间的轻奢质感,富有设计感的功能规划搭配暖黄灯光,丰富了细节层次,增添了优雅静谧舒适气息。
- 四层规划给屋主女儿使用
- 重新划分功能室,结合需求让整个空间宽敞通透
- 床头背景与坡屋顶采用柔化设计,柔润的圆弧度让人温馨宁静
- 玻璃衣柜做分割划出开放的衣帽间
- 油砂长虹玻璃分割出主卫空间,简单化的线条透出干净利索的态度
- 年轻化的格局让日常生活更便利
ANALYSISDIAGRAM
分析图
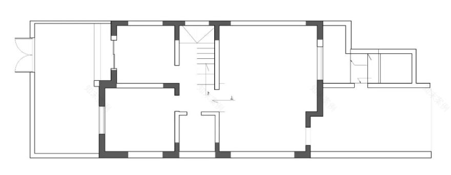
1F 原始平面图
1F 平面布局图
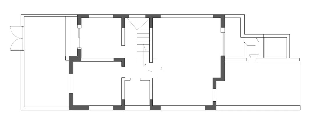
2F 原始平面图
2F 平面布局图
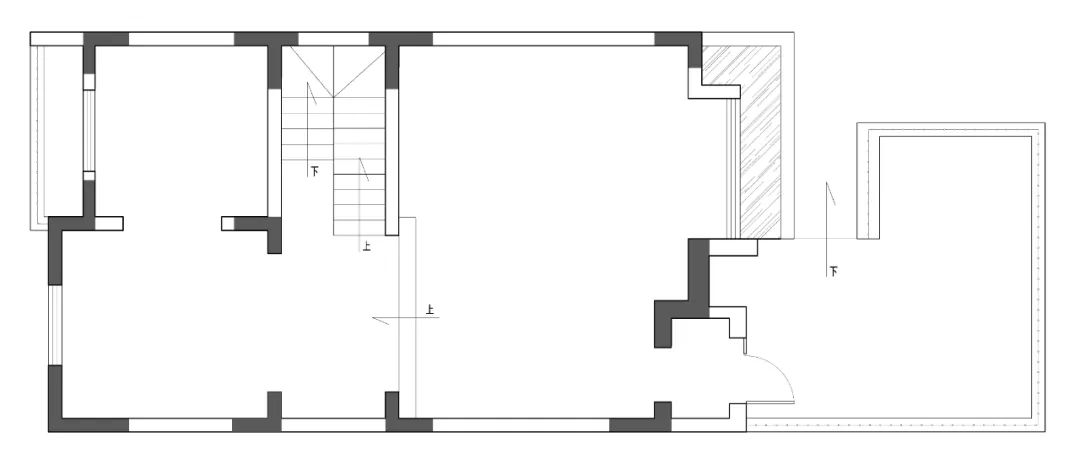
3F 原始平面图
3F 平面布局图
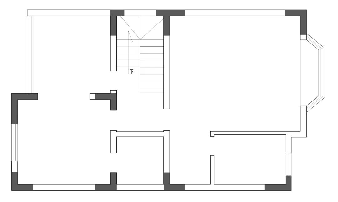
4F 原始平面图
4F 平面布局图
INFO
- 主案设计-马斌
- 工程管家-刘强
- 客户经理-孙晨凯
- 设计公司-青马别墅设计
- DESIGNER 主创设计
马斌
青马设计主创设计师
毕业于西安美术学院,2014 年于上海同济大学深造。
室内装饰行业从业 18 年以上,专属大宅全案设计。
资质
中国建筑装饰协会注册会员室内设计师
陕西广播电视台 98.8《设计师说》栏目,特约设计师
陕西广播电视台 91.6《拜托了设计师》栏目,特约设计师
设计理念
室内是建筑的灵魂,是人与环境的联系,是人类艺术与物质文明的结合。
殊荣
2006 年东尚杯设计比赛入围奖
2009 年罗马里奥杯室内设计大赛“银奖”
西安市家装委“2010 优秀室内设计师”
2012 环保设计大赛三等奖
2013 年筑巢杯“商品房、公寓空间方案类”优秀奖
2013 年度五星级设计师
2014 年美涂士杯环保设计精英赛二等奖
2016 年/国际空间设计大奖 艾特奖 入围奖
2018 年/国际环艺创新设计作品大赛华鼎奖 特等奖
2020 年/G+设计精英大赛平层洋房空间优胜奖
2020 年/G+设计精英大赛别墅空间优胜奖
2021 年“DOS”年度非凡之星奖
2022 年金堂奖“卓越设计青年”
案例
曲江兰亭,融侨城,丹轩坊,鸿基紫韵,曲江公馆和园,华侨城天鹅堡,湖城大境,紫汀苑,金辉世界城,万科金域曲江,大华公园世家,国熙台,兰池郡,二十六阶,雅荷度假山庄,景粼天序,龙湖紫宸,白桦林团圆,河与墅,蓝光.公园华府,御河上院,荣德荣泽公馆等
链接
青馬人物 | 马斌 · 忠于热爱,衣襟带花
青馬作品 | 御河上院 下叠 现代 让情绪在居住空间里自然流淌 / 马斌
青馬作品 | 荣德荣泽公馆 · 中叠 现代 鲜活的幸福 / 马斌
青馬作品 | 御河上院 · 268㎡上叠 简美 与时光对话 / 马斌
青馬作品 | 御河上院 · 268㎡上叠 现代 安静明媚的气质家 / 马斌
青馬作品 | 河与墅 · 290㎡上叠 新中式 寻一静谧处享清欢 / 马斌
青馬作品 | 蓝光公园华府 · 270㎡顶复 现代 酝酿淡爽生活 / 马斌
青馬作品 | 河与墅 · 200㎡联排 尽享平和时光 / 马斌
点击图片
了解更多案例丨人物丨作品
COMPANY
设计公司
青马设计
隶属于北京尚美饰家装饰集团旗下,专注于高端别墅大宅的装饰品牌。由集团精心重资打造,经过多年不断的淬炼升级与创新融合,打破以往客户服务的常规局限,构建全新的大宅别墅全案设计和整装服务平台,专注服务对象涵盖企事业精英人士和高端客户群体,提供大宅别墅装饰的整体规划设计与施工产品整体交付私属定制服务。
青马设计
集结行业内经验丰富的设计大咖、大客户经理、工程大管家、优秀的工程项目经理打造的“大宅别墅工程”管理体系,“多对一”式的整装服务系统,在行业里形成独特 TSING HORSE 系风格的青马设计范式。青马设计不仅是装修服务的提供商,更是大宅别墅生活方式的服务商。青马-成就别墅生活。
-END-
生活的格调
就是一个人对自我独特的定义
是生活,是艺术
而家
就是格调的终极表现
青马,只想给你一个格调家
客服
消息
收藏
下载
最近





























