查看完整案例

收藏

下载
TSING HORSE DESIGN
丨青马别墅空间设计最新案例丨
PROJECT INFORMATION
建筑户型 ︱ 下叠
设计风格丨 现代
项目名称︱ 未央金茂府
施工面积 ︱ 340 平米
全案产品丨 华为 智能、卡硕瓷砖、宾图木作、怡口净水、美标卫浴
PROGRAMME
设计方案
本案 340 平方米下叠户型,户型方正面积适中,布局舒展尺度宽松,南北通透。
设计梳理人与空间的关系,空间上充分尊重原始建筑结构的特质,运用精致又有格调的细节,营造现代感十足的整体氛围。空间疏密有致的细节完美呈现,生活的高级质感渗透每一处。
by-本案设计师 陈哲梧寄语
- 客厅门联窗让整体氛围更具通透性。
- 最大化的释放空间,让客厅展现出明净的底色。
- 室内空间和院子无界限感,最亲切的自然之景装点一室鲜活明媚。
- 摒弃传统墙体的电视背景墙,用书柜和展示柜代替,让客厅收纳功能最大化且美观时尚。
利用入户玄关造型,给屋主构建出相对独立的门厅效果,使客厅、餐厅及过道场域不显零碎。分区后的餐厨空间营造一种干净整洁的氛围,呼应客厅的配色,深浅融合下带来用餐高级仪式感。
- 主卧套从空间的线条到设计的细节,都会透露出一股简约而不简单的质感。
- 一个干净利落的灰色空间,会给人带来柔和、沉稳的宁静氛围,让人在岁月的安然之间,不断地推敲和摸索,去体会它的内在美。
夹层主卧挑空出半圆形的一步式露台。在横向空间维度上,将自然景致与天光最大限度引入空间。在视觉上放大了空间,让主人更好地享受室外阳光和下叠空间。大面积的玻璃窗将光线引入其中,结合布景造景的细节。一层柔光浮动于此,打造出质朴而舒适的心灵居所。
通过线条的韵律
赋予酒吧区与茶室空间一种奢华与宁静
风格清新简约,却透露出一股大气的格调
低调而平实的色彩,
传达空间的灵性与气质
借以细节点缀,让生活中的功能美学达到极致的奢享
地下室会客区沙发背景墙造型成为视觉焦点,形似书卷,显示屋主书香气质。借由功能区串起人与空间的互动,一旁的健身区赋予了此处刚柔并济的氛围。
- 利用空间结构打造家庭休闲影音室
舒适而具设计感的沙发呈现出一种清新典雅的高级质感
星空顶与线性灯光让空间更显精致奢华
在现代主义的艺术美学下,诠释着屋主超凡脱俗的品位追求
- ANALYSISDIAGRAM
分析图
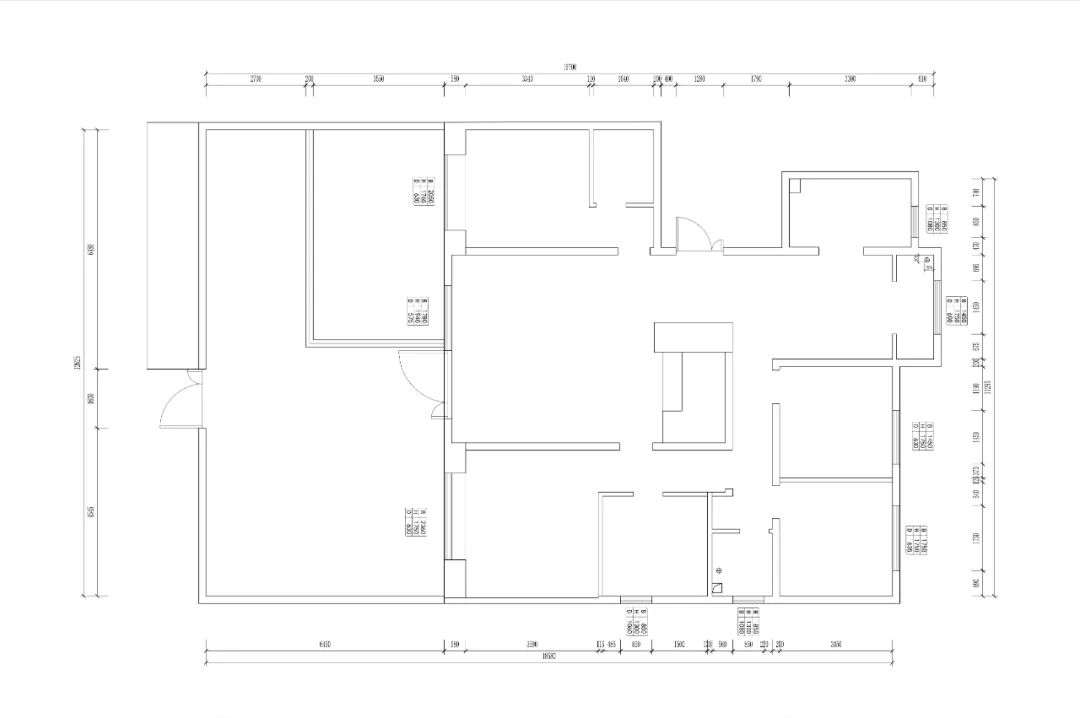
1F 原始平面图
1F 平面布局图
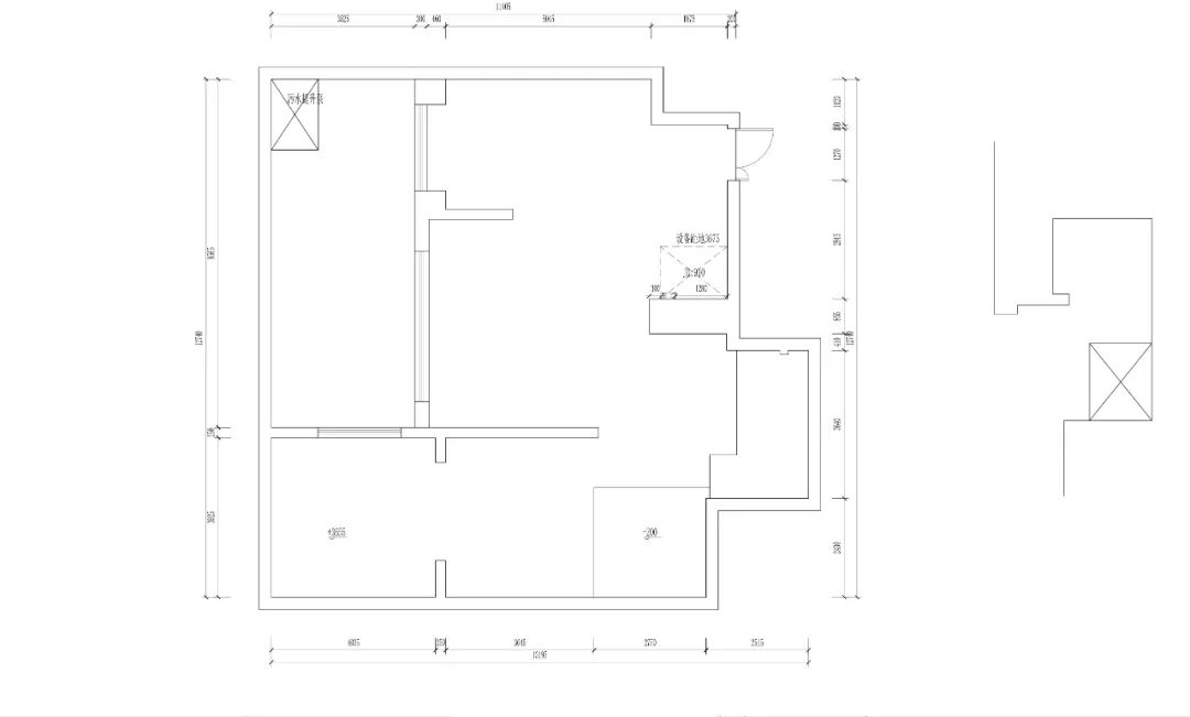
夹层原始平面图
夹层平面布局图
地下室原始平面图
地下室平面布局图
INFO
- 主案设计-陈哲梧
- 工程管家-刘强
- 客户经理-孙晨凯
- 设计公司-青马别墅设计
DESIGNER 主创设计
陈哲梧
青马设计主创设计师
毕业于清华大学美术学院高研班
室内装饰行业从业 20 年以上,专属大宅全案设计
资质:
国家高级注册室内设计师
中国建筑装饰协会西安分会会员
IFDA 国际室内装饰设计协会注册高级室内设计师
设计理念:
推敲生活,推敲空间,适度设计,量身打造
殊荣:
筑巢奖铜奖
风尚杯优秀作品奖
京瓷杯新中式设计大赛网络人气优秀奖
西安焦点家居网设计论坛版主
获得威能杯中国室内设计明星大赛西安赛区优秀奖
上海《设计家》杂志人物访谈设计师
西安市家庭装饰协会 TOP50 强
全国焦点网明星设计师 100 强
全国首批优秀人才模范勋章和设计行业研究员证书
中国国际空间环境艺术设计大赛铜奖
中联阿姆瑞特杯陕西原创大赛优秀奖
中国原点国际家居文化节优秀奖
案例:
工装:宝鸡澳门德兴火锅店旗舰店、大丰国际售楼部、观澜天下售楼部及样板间、上海中楷实业总部、西安都市之门 D 座茶楼、西安赛高城市广场华地房地产估价有限公司、西安绿地中心五粮液西北营销中心...
家装:西安绿地诺丁山别墅、西安尚林苑别墅、西安紫薇山庄别墅、西安绿地生态城别墅、西安溪园别墅、西安逸翠园、西安天鹅堡、成都新希望塔子山壹号、成都中海桐梓林壹号、温州中粮滨江九里...
链接:
青馬人物 | 陈哲梧 · 一位诗意的远行客
青馬作品 | 湾流·天悦 别墅 现代日式 清雅宅 / 陈哲梧
青馬作品 | 塔子山壹号 210㎡ 中叠 现代 沉稳里的活泼 / 陈哲梧
青馬作品 | 清凉山居 500㎡ 别墅 新中式 清雅新家写意之美 / 陈哲梧
点击图片
了解更多案例丨人物丨作品
COMPANY
设计公司
青马设计
隶属于北京尚美饰家装饰集团旗下,专注于高端别墅大宅的装饰品牌;由集团精心重资打造,经过多年不断的淬炼升级与创新融合,打破以往客户服务的常规局限,构建全新的大宅别墅全案设计和整装服务平台,专注服务对象涵盖企事业精英人士和高端客户群体,提供大宅别墅装饰的整体规划设计与施工产品整体交付私属定制服务。
青马设计
集结行业内经验丰富的设计大咖、大客户经理、工程大管家、优秀的工程项目经理打造的“大宅别墅工程”管理体系,“多对一”式的整装服务系统,在行业里形成独特 TSING HORSE 系风格的青马设计范式。青马设计不仅是装修服务的提供商,更是大宅别墅生活方式的的服务商。青马 - 成就别墅生活。
-END-
生活的格调
就是一个人对自我独特的定义
是生活,是艺术
而家
就是格调的终极表现
青马,只想给你一个格调家
客服
消息
收藏
下载
最近






























