查看完整案例

收藏

下载
TSING HORSE DESIGN
丨青马别墅空间设计最新案例丨
PROJECT INFORMATION
建筑户型 ︱ 顶复
设计风格丨 现代轻奢
项目名称︱ 金辉世界城
施工面积 ︱285 平米
全案产品丨 迪诺、芒果、美驰、约克、高仪、卡硕、西蒙、沁园、得高
PROGRAMME
设计方案
本案 285㎡顶复户型
空间采光好,方正规整,宽敞明亮
设计以居住人口与生活方式深入洞察
打造了一个雅致、精奢且释放魅力的新家
一幕幕美好篇章,于此生动展演,尽抒乐趣
by-本案设计师晁阳寄语
在入口处设计玄关柜将其与客厅隔开,透过玄关纵览客厅景观畅通无阻。
将阳台纳入与客厅融为一体,扩大公区使用面积。
电视背景墙米色纹路大理石带来简单大气的质感,搭配开放格收纳与灯光的点缀层次感彰显。
在墨绿、米白、雅黑的舒适配色下,令其自然放松身心,沉浸于品味的慢调中。
- 主卧延续整体风格,契合着居者的美学偏好。
- 葱茏绿意点缀室内,赋予空间不俗的清雅气质。
- 在开阔的尺度中,设计师遵从居者的内心,将主卫盥洗区大胆开放,设计带来崭新的居住体验,将理想的精神领地演绎为现实的栖居场景,加之营造的氛围构建浪漫专属生活方式。
男孩房以富有质感的奶灰、雾霾蓝为基调,简约的画风里用几何形态为空间填入丰富的层次。定制的嵌入式柜体创意地描摹出生活的意趣,空间似无界限,时光在此停滞,这一刻必是美好的瞬间。
- 女孩房以藕粉色入境带来温馨格调,可可爱爱的摆件与软糯舒适的床品让人坠入柔软梦境。这种“柔软”的空间像溪流一样是具有灵动性,承载着流动舒缓的节奏感与爱一起滋养。
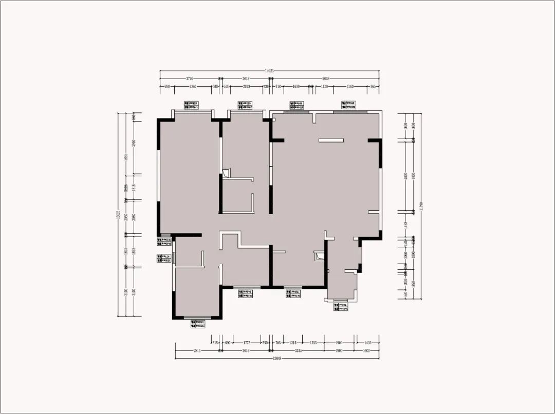
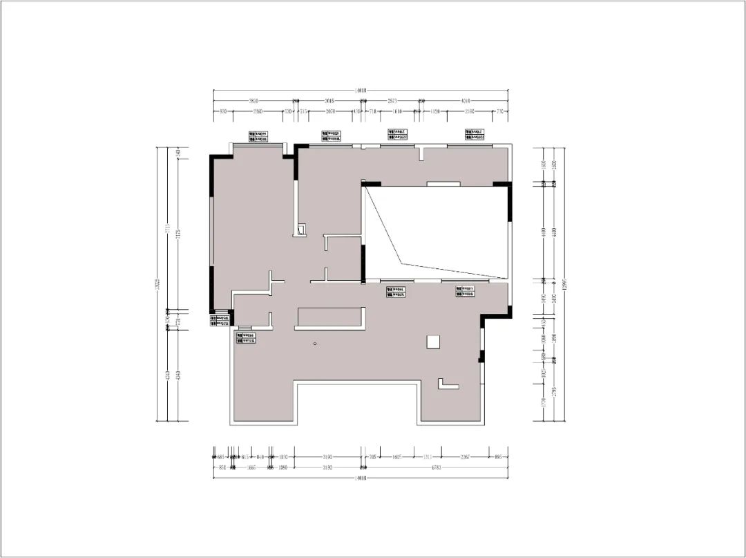
- ANALYSISDIAGRAM
- 分析图
1F 原始平面图
1F 平面布局图
2F 原始平面图
2F 平面布局图
INFO
- 主案设计-晁阳
- 工程管家-韩鹏辉
- 客户经理-孙佳瑶
- 设计公司-青马别墅设计
- DESIGNER 主创设计
晁阳
青马设计主创设计师
毕业于西安美术学院
室内装饰行业从业 15 年以上,专属大宅全案设计
资质
国家注册高级室内设计师
陕西广播电视台 98.8《设计师说》栏目特约设计师
陕西广播电视台 91.6《设拜托了设计师》栏目特约设计师
设计理念
人可以改变环境,环境可以影响人,而设计可以改变人与环境。
殊荣
2017 年荣获金堂奖设计大赛入围奖
2018 年荣获中国室内设计周优秀奖
2021-2022 40Under40 中国(陕西)设计杰出青年
案例
中海东郡、逸翠园、紫御华府、曲江紫薇永和坊、绿地国际生态城、逸翠尚府、中海铂宫、金地湖城大境、绿地·海珀紫庭、曲江紫汀苑、曲江诸子阶、曲江观邸、曲江公馆和园、曲江·观山悦、宝鸡·龙廷山水、紫楹台......
链接
青馬人物 | 晁阳 · 朝阳,不迷失方向
青馬作品 | 万科悦湾 · 200㎡中叠 现代 氛围与空间的交流 / 晁阳
青馬作品 | 香湖湾壹号 · 320㎡下叠 轻奢新中式 艺术里灵动的姿态 / 晁阳
青馬作品 | 海伦湾 · 270㎡ 中叠 现代 投入家的怀抱 / 晁阳
青馬 实景落地 | 紫楹台:妍·轩一遇 为婚房“素”妆
点击图片
了解更多案例丨人物丨作品
COMPANY
设计公司
青马设计
隶属于北京尚美饰家装饰集团旗下,专注于高端别墅大宅的装饰品牌。由集团精心重资打造,经过多年不断的淬炼升级与创新融合,打破以往客户服务的常规局限,构建全新的大宅别墅全案设计和整装服务平台,专注服务对象涵盖企事业精英人士和高端客户群体,提供大宅别墅装饰的整体规划设计与施工产品整体交付私属定制服务。
青马设计
集结行业内经验丰富的设计大咖、大客户经理、工程大管家、优秀的工程项目经理打造的“大宅别墅工程”管理体系,“多对一”式的整装服务系统,在行业里形成独特 TSING HORSE 系风格的青马设计范式。青马设计不仅是装修服务的提供商,更是大宅别墅生活方式的服务商。青马 - 成就别墅生活。
-END-
生活的格调
就是一个人对自我独特的定义
是生活,是艺术
而家
就是格调的终极表现
青马,只想给你一个格调家
客服
消息
收藏
下载
最近



















