查看完整案例

收藏

下载
TSING HORSE DESIGN
丨青马别墅空间设计最新案例丨
PROJECT INFORMATION
建筑户型 ︱ 下叠
设计风格丨 北欧
项目名称︱ 龙湖天钜
施工面积 ︱ 312 平米
全案产品丨 欧神诺、马可波罗、欧派、高仪、迪诺、方太电器、艾尔西软装等
PROGRAMME
设计方案
本案 312㎡下叠户型
户型很方正结构也合理
不需要大拆大改去体现设计的价值
我想要房子这一容器一直“清者自清”
因为容器里面的生活才是最好的色彩
房子之于中国人
无异于水之于鱼 母胎之于胎儿
家的渴望和安心已然深深地镌刻进了人们的基因
by-本案设计师 郭天佑寄语
会客厅挑空的设计,让空间更显大气。
跟从北欧实用主义和极简主义,抛弃杂念,去除多余的装饰,让爱好落地。
这里用镂空的手法收纳展示喜欢的乐器,搭建的夹层于此场域互动。
棋牌室强调安静私密的娱乐环境,整体的设计也考虑娱乐和功能一体化,让活动更加丰富,空间利用到最大化。
- 生活的本质是简单自然,洒脱随性。
对于现代人来说,出世几乎不可能。
在入世中保有真性情才可贵。
补给功能区属性安排一方茶室。
胡桃木的自然淳朴让内心亦回归宁静。
一层客厅区域以暖色调为主,运用高级的莫兰迪色系搭配原木风格,空间的气氛活跃让自由蔓延。无主灯加上悬浮顶,现代简约的元素随处可见,或极简或硬朗赋予空间更多层次的质感,令有限的空间延展出更大的尺寸与层次感。
- 南向的主卧巧妙运用线条元素,勾勒出空间美感,凸显了室内设计的灵魂。
- 阳台延伸式设计,既让出了一部分空间给主卧用,又增大阳台面积作为休闲阳台来使用,生活美学与功能相辅一室浪漫。
- 南向次卧和主卧之间一墙相隔,让其延伸分隔两个阳台。
- 次卧利用面积增大,阳台亦可做为生活阳台来使用。
- 整体色调偏暖色,背景墙是点睛之笔。
- 不规则的材质拼接,加上灯带的线条美感,让其呈现出一种浑然天成的装饰手笔。
北向的次卧以简约原木为主调,柔化光线,遮光和采光随意调节的梦幻帘成为整个空间最唯美舒适的存在。
高柜中间采用开架式设计,把日常使用频率较高的物件摆在上面,赏心悦目的同时更便捷了使用。
ANALYSISDIAGRAM
分析图
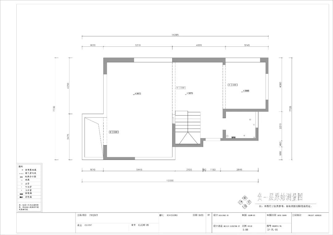
-1F 原始平面图
-1F 平面布局图
夹层平面布局图
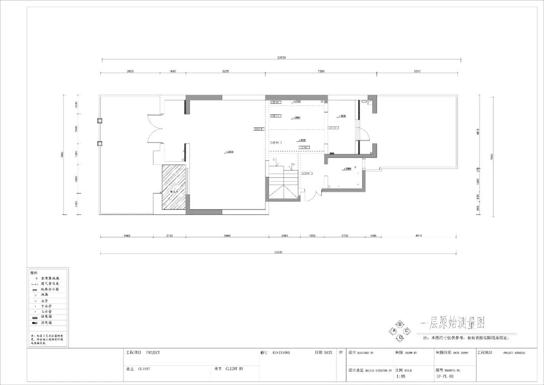
1F 原始平面图
1F 平面布局图
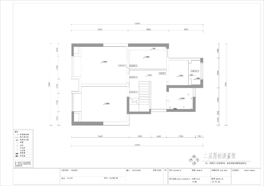
2F 原始平面图
2F 平面布局图
INFO
- 主案设计-郭天佑
- 工程管家-刘强
- 客户经理-武佳丽
- 设计公司-青马别墅设计
- DESIGNER
主创设计
郭天佑
青马设计主创设计师
毕业于西安美术学院工艺美术设计系
室内装饰行业从业 15 年以上,专属大宅全案设计
资质
国家注册室内设计师
中国装饰协会注册会员
中国 ICDA 设计师协会会员
中国装潢协会会员
设计理念
追求艺术,用艺术家的眼光创造美好,用“美”来影响生活,追求格调,尊重历史,但从不摒弃流行和普及,致力塑造优雅的居住空间和生活方式。
殊荣
西安市年度设计师优秀奖
作品多次发表于电视台、西安晚报、三秦都市报
西安市家庭装饰协会 TOP50 强
建筑大学特邀设计师主案设计孙博华院士住宅、建筑设计系刘老师接待性住宅。
北京清华美术学院进修
日本游学 美国游学
案例
深圳波托菲诺纯水岸、西安皇家花园、西安湖滨花园、西安钻石王朝、西安曲池坊、西安紫薇曲江意境、西安雅居乐御宾府、西安龙湖香醍、西安紫汀苑、西安湖城大境、西安莱安逸珲、西安群贤庄、欧雷仕西安总部、西宁国芳健身会所、西安六合舒适家智能体验馆、西安老城根火锅、府谷县陕煤集团办公室......
链接
青馬作品 | 高新诚园 · 平层 法式 圆梦心中浪漫 / 郭天佑
青馬人物 | 郭天佑 · 知行合一,以生活为“师”
青馬作品 | 枫丹丽舍 · 400㎡联排别墅 现代东方 雅室 为雅 / 郭天佑
青馬作品 | 玉泉苑 · 210㎡ 平层 新中式 悦目怡情 / 郭天佑
点击图片
了解更多案例丨人物丨作品
COMPANY
设计公司
-青马设计
隶属于北京尚美饰家装饰集团旗下,专注于高端别墅大宅的装饰品牌。由集团精心重资打造,经过多年不断的淬炼升级与创新融合,打破以往客户服务的常规局限,构建全新的大宅别墅全案设计和整装服务平台,专注服务对象涵盖企事业精英人士和高端客户群体,提供大宅别墅装饰的整体规划设计与施工产品整体交付私属定制服务。
青马设计集结行业内经验丰富的设计大咖、大客户经理、工程大管家、优秀的工程项目经理打造的“大宅别墅工程”管理体系,“多对一”式的整装服务系统,在行业里形成独特 TSING HORSE 系风格的青马设计范式。青马设计不仅是装修服务的提供商,更是大宅别墅生活方式的服务商。青马-成就别墅生活。
-END-
生活的格调
就是一个人对自我独特的定义
是生活,是艺术
而家
就是格调的终极表现
青马,只想给你一个格调家
客服
消息
收藏
下载
最近

























