查看完整案例

收藏

下载
TSING HORSE DESIGN
丨青马别墅空间设计最新案例丨
PROJECT INFORMATION
建筑户型 ︱ 别墅
设计风格丨 意式极简
项目名称︱ 绿地国际生态城
施工面积 ︱ 360 平米
全案产品丨 简一、高仪、汉格、美驰、M77 、艾尔西等
PROGRAMME
设计方案
本案 360㎡别墅,屋主一家四口,一个男孩一个女孩,两个孩子都在国外留学,假期回来。本案设计以家人之间的互动与沟通为主题,对整栋房子进行空间优化与改造。在漫长的岁月里,与时光为伴,于细碎中寻找钟情的生活方式。
by-本案设计师 许云宗寄语
一层客厅中大面积的窗户及客厅区域与二楼做挑空,保证了室内拥有充足的光线和一二层之间空间的通透性。搭配着灰白色的布艺沙发,给人明亮的视觉感受。整体选用白色和灰色系奠定纯粹的极简基调,色彩的对比,展现出空间的艺术美感。将格调和品质刻画于设计中,带来高端人本的空间享受。
- 将负一从车库一进门区域与一楼直接打通为挑空区域,使得负一餐厅与一楼之间有空间上的互通互动。
- 宽敞明亮的空间巧妙将洗衣功能安放于此,木饰面与高级灰的材质完美的融为了一体。
- 整个空间层次分明,干净整洁,生活美学悄然呈现。
下沉式庭院负一层采光良好。
家里没有娱乐影音需求。
因此规划餐厨功能区下移到负一层。
整个负一大厅区域全部定义为餐厨区域。
使得餐厨与会客及卧室功能区彻底分开。
以素雅营造明净,描摹生活的本真。
淡雅与通透中觅得由心舒适的尺度。
- 二层一上楼梯开阔的起居室,与客厅的挑空形成空间上的互补互通,视野极度开阔,打破与外部交流的屏障。
- 在合而不同、弹性灵活的空间规划中,成就家人互动、情感交流的丰富生活场景。
- 主卧延续极简设计风格,采用灰白单色调,既表现空间的宁静舒适感,也体现出了整个卧室的高级感以及温馨感。
- 经过合理的布局让空间变得更加高级,秉承少即是多的设计理念,满足整个空间的灵动性以及收纳功能与实用性。
- 为出国留学的儿女预留舒适的卧室,以简约线条为装饰思路,柔软的床品从视觉到触感上把握空间简约气质,在光影虚实间使人沉淀心灵,这一方寸间,尽情享受心灵的安放与思念挂牵。
- ANALYSISDIAGRAM
- 分析图
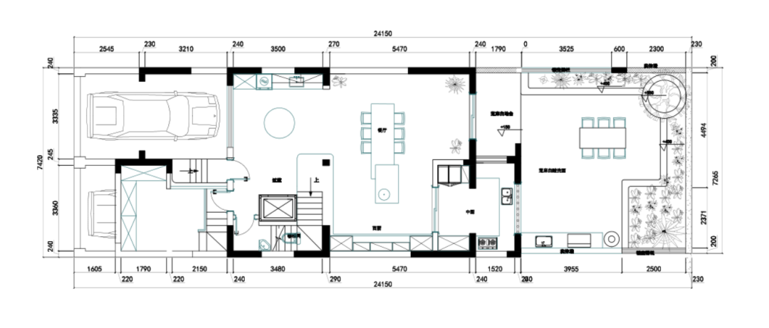
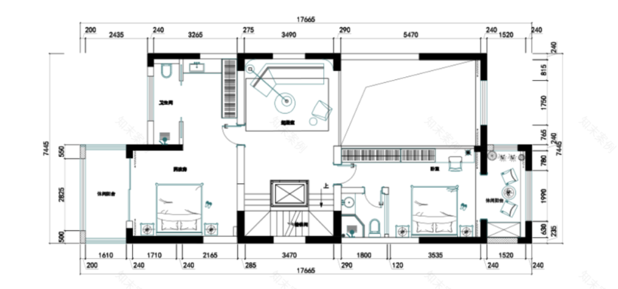
-1F 原始平面图
-1F 平面布局图
1F 原始平面图
1F 平面布局图
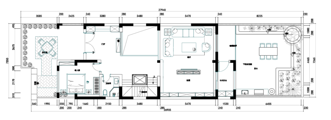
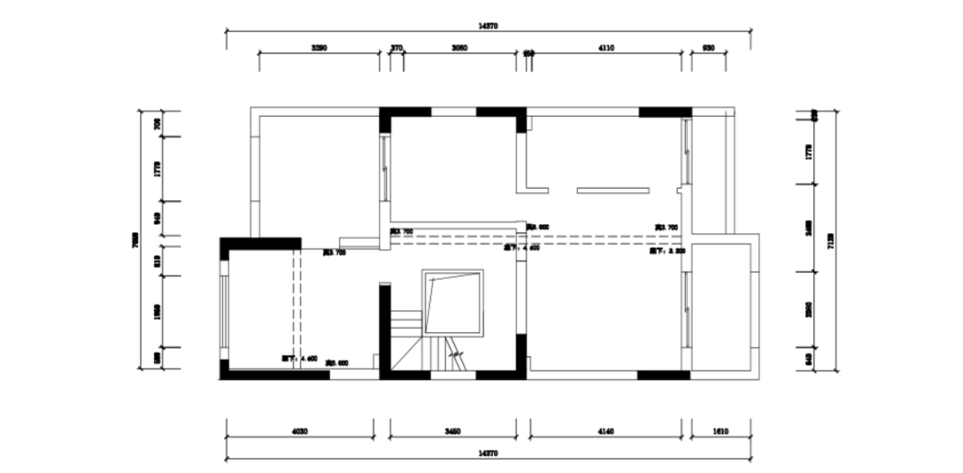
2F 原始平面图
2F 平面布局图
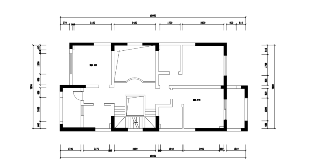
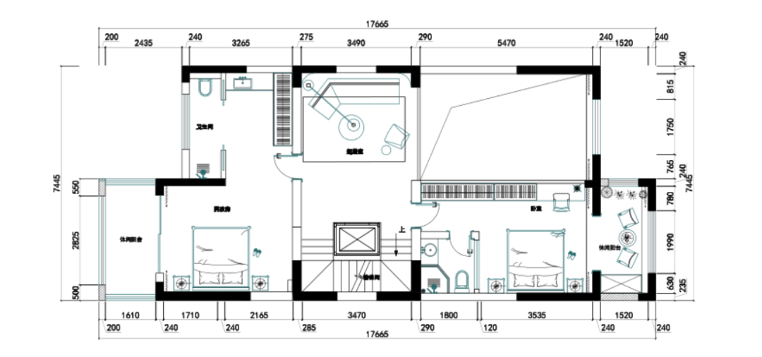
3F 原始平面图
3F 平面布局图
INFO
- 主案设计-许云宗
- 工程管家-韩鹏辉
- 客户经理-王蕾
- 设计公司-青马别墅设计
- DESIGNER 主创设计
许云宗
青马设计主创设计师
毕业于西安美术学院设计系环境艺术
室内装饰行业从业 18 年以上,专属大宅全案设计
资质
中国建筑装饰协会注册高级设计师
“捜狐”超级视频样板间栏目特约拍摄设计师
房周刊杂志栏目设计师
金堂奖软装设计学术研究员
设计理念
将适合的东西放到对的地方,是设计的基础哲学,也是设计的最高境界
殊荣
2007 年西安市家庭装饰行业优秀设计师
2008 年西安市室内装饰设计优秀设计师
2010 年获陕西省家装行业优秀室内设计师
2012 年陕西家装设计大赛阿姆瑞特杯获奖
2013 年中国国际空间环境艺术设计大赛筑巢奖优秀作品奖
2014 年获搜房网装修设计大赛空间改造奖
2017 年获广州设计周陕西 40&40 杰出设计师
2018 年获金堂奖软装设计—陕西学术研究员
2018 年获金堂奖西北优秀设计师
2020 年获喜马拉雅 2020 年度居住空间设计优秀奖
2020 年获 ART2020 年度最美艺术空间设计奖
案例
曲江华府、曲江尚林苑、曲江中海铂宫、曲江龙湖胜景、曲江大华公园世家’ 曲江南苑、曲江兰亭、荣和曲池坊、金泰假日花城、 锦园新世纪、枫林绿洲、曲江紫汀苑、曲江公馆和园、振业泊墅、风景御园、 华侨城天鹅堡、紫薇公园时光、兰亭坊、万达天樾、香榭御城、阳光城壹号、万科翡翠国际、绿地国际生态城、绿地与湖、金地湖城大境、金地玖玺、鸿基紫韵、长安龙胤、荣德河与墅、融创揽月府、丹轩坊、陕西神木自建别墅、安康石泉自建房、甘肃陇南自建房、高新兰基中心办公室、安康悦丰楼等
点击图片
了解更多案例丨人物丨作品
COMPANY
设计公司
青马设计隶属于北京尚美饰家装饰集团旗下,专注于高端别墅大宅的装饰品牌。由集团精心重资打造,经过多年不断的淬炼升级与创新融合,打破以往客户服务的常规局限,构建全新的大宅别墅全案设计和整装服务平台,专注服务对象涵盖企事业精英人士和高端客户群体,提供大宅别墅装饰的整体规划设计与施工产品整体交付私属定制服务。
青马设计集结行业内经验丰富的设计大咖、大客户经理、工程大管家、优秀的工程项目经理打造的“大宅别墅工程”管理体系,“多对一”式的整装服务系统,在行业里形成独特 TSING HORSE 系风格的青马设计范式。青马设计不仅是装修服务的提供商,更是大宅别墅生活方式的服务商。青马 - 成就别墅生活。
-END-
生活的格调,就是一个人对自我独特的定义,是生活,是艺术。而家,就是格调的终极表现。青马,只想给你一个格调家。
客服
消息
收藏
下载
最近


























