查看完整案例

收藏

下载
TSING HORSE DESIGN 丨青马别墅空间设计最新案例丨
PROJECT INFORMATION
建筑户型 ︱ 上叠
设计风格丨 现代轻奢
项目名称︱ 中海悦墅
施工面积 ︱ 235 平米
全案产品丨 斯米克瓷砖、高仪、杜拉维特洁具、得高木地板、老板电器、倍世净水、富士通空调、迪诺整木定制、艾尔西软装、华为智能系统等
PROGRAMME
设计方案
设计就像在导演一场戏,为业主设计一个他梦中的舞台,去实现其成为主角的梦。秉持着这样的设计主张,打造出精致文雅、新潮舒适的艺术空间。
by-本案设计师苏怡人寄语
业主是一对谈吐优雅的中年夫妻,典型的知识分子,思想理性且包容,品位独到且高雅。追寻前卫个性同时又想享受科技的创新便捷。设计以现代轻奢的手法来铺叙,打造一个居家且有品舒适氛围的艺术住宅空间。
235 平方米的上叠户型南北通透,采光极佳。
客餐厅面积大,露台、阳台与二楼挑空空间适合搭建。
原始楼梯位置扩大洞口,安装观光电梯,满足业主需求。
采用楼梯围绕电梯的形式,使整个空间明亮通透。
公区巧用蒸汽灰、曙光银、沙色,素雅的中性色配上温暖舒缓的浅棕色,温和宜人,点缀少量纯黑色,更具现代魅力。
利用原有施工洞将冰箱与高柜往走廊移动,增加厨房使用面积,满足功能储物。
探索居住的本真需求落地在生活空间。
U 字操作动线增设岛台,半围合的开放形态增进家人陪伴与互动。
烟火厨房亦可是浪漫开始的地方。
- 主卧淡灰色调给人以宁静从容的感觉,如沐春风。棉花糖色散发着谈谈的清新味道。
- 配套的衣帽间与主卧,现代的舒适与大气质感彰显,如诗如画。在漫长的岁月中缱绻相拥。
客卧流畅的几何线条,带来明快轻松的视觉感受。
现代生活的繁忙对家居的舒适和归属,有了更多的功能和情感需求。
消除繁冗,凸显现代与时尚感。
感受若有若无,毫无刻意的舒适感。
- 休闲室灰与蓝的色彩组合
就像时尚界的不老传奇
暖灰与明蓝搭配 以中性色调加以过度修饰
明亮的视感配以精致的色彩
塑饰出一个现代轻奢的休闲空间氛围
轻快里是对生活的无尽享受与热爱
- 三层露台利用结构搭建出休闲室与洗衣房。
一方露台是大自然链接室内生活的一段美妙韵律,亦是一段专属空间的仪式感与浪漫的开始。
艺术正如生活那样无穷无尽,释放自我畅享理想中的心安之所。
- ANALYSISDIAGRAM
分析图
1F 原始平面图
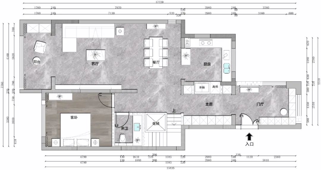
1F 平面布局图
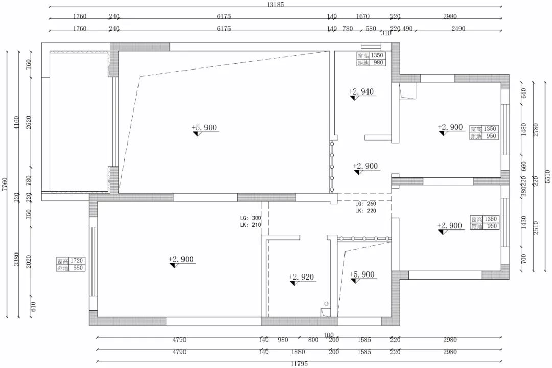
2F 原始平面图
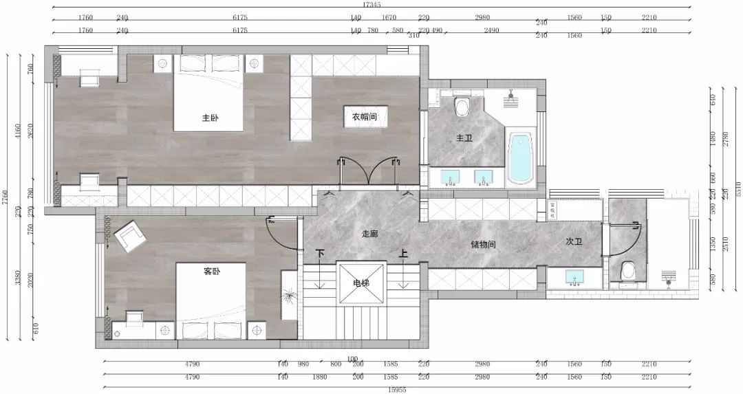
2F 平面布局图
3F 原始平面图
3F 平面布局图
INFO
- 主案设计- 苏怡人
- 工程管家- 韩淋
- 客户经理- 邢阳
- 设计公司- 青马别墅设计
DESIGNER 主创设计
苏怡人
青马设计主创设计师
毕业于西北大学
深造于西安建筑科技大学
室内装饰行业从业 19 年以上,专属大宅全案设计
资质:
- 获得中国建筑装饰协会颁发的建筑装饰装修设计师中级证书设计师,编号:02080385
- 2011 年获得中国建筑装饰协会颁发的建筑装饰装修设计师高级证书设计师,编号:02113439
- 2017 年通过巴黎高等文化艺术学院的学习考取法国 CNCP 等级证书
- 2019 年获得国际建筑装饰室内设计协会颁发的高级陈设艺术设计师证书
设计理念:
在这里,空间不再是简单的细部线条、结构比例与色彩均衡,而是一种融入人文气息的深度思考。每一个细部空间都有自己的精神,每个创作者都必须理解它们,才可能融入其色彩、意境和神韵之中。有限空间,无限精彩……
殊荣:
- 2007 年荣获国际流行色彩发布趋势优秀奖
- 2008 年荣获阿姆瑞特杯设计大赛入围奖
- 2012 年荣获房周刊设计联盟专属设计师
- 2013 年荣获风尚设计大赛金奖
- 2014 年荣获筑巢奖优秀作品奖
- 2015 年荣获风尚设计大赛金奖
- 2016 年荣获搜狐家居焦点奖
- 2018 年获得金藤设计优秀奖
- 2019 年 916.988 等电台特约嘉宾
- 2020 年陕西广播电视台风尚家居特约嘉宾
案例:
中华世纪城、白桦林居、白桦林间、紫薇风尚、曲江 6 号、中海铂宫、御景豪庭、曲江公馆、曲池坊、中海国际、兰亭坊、皇家园林、Class 公馆、绿地世纪城、逸翠园、枫林华府、紫薇臻品、锦都花园、长庆兴乐园、群贤庄、紫薇田园都市、中海华庭、枫林绿洲、世家星城、旭景名园、新西蓝、锦园新世纪等...
链接:
青馬作品 | 龙湖香醍天宸 · 320㎡联排别墅 现代轻奢 探索无限生活方式的可能性 / 苏怡人
青馬作品 | 新城玺樾骊府 · 360㎡ 下叠 现代 蔓延温柔梦境 / 苏怡人
青馬作品 | 科为城墅 · 240㎡ 下叠 现代轻奢 回到最初的美好 / 苏怡人
青馬作品 | 绿地国际生态城 · 550㎡ 别墅 现代轻奢 共舞一曲动人的探戈 / 苏怡人
青馬作品 | 绿地海珀香庭 · 220㎡ 现代轻奢 心生欢愉/苏怡人
青馬人物 | 苏怡人:让家人爱上回家的生活美学家
点击图片
了解更多案例丨人物丨作品
COMPANY
设计公司
青马设计
隶属于北京尚美饰家装饰集团旗下,专注于高端别墅大宅的装饰品牌;由集团精心重资打造,经过多年不断的淬炼升级与创新融合,打破以往客户服务的常规局限,构建全新的大宅别墅全案设计和整装服务平台,专注服务对象涵盖企事业精英人士和高端客户群体,提供大宅别墅装饰的整体规划设计与施工产品整体交付私属定制服务。
青马设计
集结行业内经验丰富的设计大咖、大客户经理、工程大管家、优秀的工程项目经理打造的“大宅别墅工程”管理体系,“多对一”式的整装服务系统,在行业里形成独特 TSING HORSE 系风格的青马设计范式。青马设计不仅是装修服务的提供商,更是大宅别墅生活方式的服务商。青马 - 成就别墅生活。
-END-
生活的格调
就是一个人对自我独特的定义
是生活,是艺术
而家
就是格调的终极表现
青马,只想给你一个格调家
客服
消息
收藏
下载
最近




























