查看完整案例

收藏

下载
TSING HORSE DESIGN 丨青马别墅空间设计最新案例丨
PROJECT INFORMATION
建筑户型 ︱ 中叠
设计风格丨 现代
项目名称︱ 荣德荣泽公馆
施工面积 ︱200 平米
全案产品丨 LD 陶瓷、高仪洁具、富士通空调、宾图整木定制、方太电器、得高木地板、艾尔西软装、怡口净水、集美科地暖、西蒙照明 、林内热水器、美标卫浴、欧派橱柜、克劳嫩堡美缝、施耐德开关等
PROGRAMME
设计方案
- 本案屋主喜欢简洁大方的现代风格,深入了解其喜好及日常生活习惯,将空间进行更便捷大气的规划和设计。
一层在不影响客餐厅空间感前提下,缩小客餐厅宽度,扩大卫生间和卧室的空间。搭建原有挑空区作为主卧室,使得空间使用上更加舒适。
将设计落地生活,岁月静好便是吾家。
by-本案设计师马斌寄语
在材质的选用上以乳胶漆和混油肤感漆的木作为主,自然与温润的质感透过平静的大地色系传递。一家人围坐于餐厅聊今日趣事,享受天伦之乐。导台与餐桌结合的形式让此场域充满仪式感,做饭成为趣事,相互陪伴间家人感情升温。不负悠悠好时光,人间烟火里尽显小欢愉。
一层安排一间卧室。
无论外界如何喧哗,进入此宛如进入一片净土。
与公区的风格色彩延续。
空间的延展性与居住的舒适感更胜一筹。
- 二层原始北边两间卧室面积都较小。
- 设计规划将两间卧室合并成一间,兼并卧室与书房与衣帽间的功能。
- 让空间既满足了功能,又通透宽敞。
- 功能配套齐全亲身体验细致考究的品质生活。
儿童房的清新心生美好
告别千篇一律的模样
提升幸福感,让家成为全世界最舒服的地方
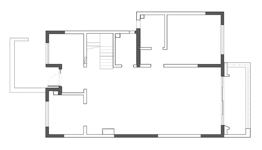
ANALYSISDIAGRAM
分析图
1F 原始平面图
1F 平面布局图
2F 原始平面图
2F 平面布局图
INFO
- 主案设计-马斌
- 工程管家-韩鹏辉
- 客户经理-孙晨凯
- 设计公司-青马别墅设计
- DESIGNER 主创设计
马斌
青马设计主创设计师
毕业于西安美术学院,2014 年于上海同济大学深造。
室内装饰行业从业 18 年以上,专属大宅全案设计。
资质:
- 中国建筑装饰协会注册会员室内设计师
- 陕西广播电视台 98.8《设计师说》栏目,特约设计师
- 陕西广播电视台 91.6《拜托了设计师》栏目,特约设计师
设计理念:
室内是建筑的灵魂,是人与环境的联系,是人类艺术与物质文明的结合。
殊荣:
- 2006 年东尚杯设计比赛入围奖
- 2009 年罗马里奥杯室内设计大赛“银奖”
- 西安市家装委“2010 优秀室内设计师”
- 2012 环保设计大赛三等奖
- 2013 年筑巢杯“商品房、公寓空间方案类”优秀奖
- 2013 年度五星级设计师
- 2014 年美涂士杯环保设计精英赛二等奖
- 2016 年/国际空间设计大奖 艾特奖 入围奖
- 2018 年/国际环艺创新设计作品大赛华鼎奖 特等奖
- 2020 年/G+设计精英大赛平层洋房空间优胜奖
- 2020 年/G+设计精英大赛别墅空间优胜奖
案例:
曲江兰亭,融侨城,丹轩坊,鸿基紫韵,曲江公馆和园,华侨城天鹅堡,湖城大境,紫汀苑,金辉世界城,万科金域曲江,大华公园世家,国熙台,兰池郡,二十六阶,雅荷度假山庄,景粼天序,龙湖紫宸,白桦林团圆,河与墅,蓝光.公园华府,御河上院,荣德荣泽公馆等
链接:
青馬人物 | 马斌 · 忠于热爱,衣襟带花
青馬作品 | 御河上院 · 268㎡上叠 简美 与时光对话 / 马斌
青馬作品 | 御河上院 · 268㎡上叠 现代 安静明媚的气质家 / 马斌
青馬作品 | 河与墅 · 290㎡上叠 新中式 寻一静谧处享清欢 / 马斌
青馬作品 | 蓝光公园华府 · 270㎡顶复 现代 酝酿淡爽生活 / 马斌
青馬作品 | 河与墅 · 200㎡联排 尽享平和时光 / 马斌
点击图片
了解更多案例丨人物丨作品
COMPANY
设计公司
青马设计
青马设计是由 2004 年成立的 V6 大宅设计空间蜕变而成,经过不断的淬炼升级与创新融合,打破以往客户服务的常规局限,构建全新的大宅别墅全案设计和整装服务平台,服务对象涵盖精英人士和高端客户,提供大宅别墅装饰的整体规划设计与施工、设备、主材、家具、配饰软装等私属定制服务。
青马设计集结行业内经验丰富的设计大咖、大客户经理、工程大管家、优秀的工程项目经理打造的“大宅别墅工程”管理体系,“多对一”式的整装服务系统,在行业里形成独特 TSING HORSE 系风格的青马设计范式。青马设计不仅是装修服务的提供商,更是大宅别墅生活方式的服务商。青马 - 成就别墅生活。
-END-
生活的格调
就是一个人对自我独特的定义
是生活,是艺术
而家
就是格调的终极表现
青马,只想给你一个格调家
客服
消息
收藏
下载
最近




















