查看完整案例

收藏

下载
TSING HORSE DESIGN
丨青马别墅空间设计最新案例丨
PROJECT INFORMATION
建筑户型 ︱ 别墅
设计风格丨 日式
项目名称︱ 绿地香树花城
施工面积 ︱418 平米
全案产品丨 博华瓷砖、高仪洁具、富士通空调、宾图整木定制、方太电器、得高木地板、艾尔西软装、怡口净水、集美科地暖、西蒙照明 、 史密斯热水器、 箭牌卫浴、 欧派橱柜、 克劳嫩堡美缝、 施耐德开关等
PROGRAMME
设计方案
本案 418㎡独栋别墅,以优雅的日式风格为设计手法,愉悦自由笔触贯穿始终,将大自然的材质运用得淋漓尽致。原始与质朴的碰撞,营造出独特的素雅之风。
by-本案设计师 曲森 寄语
一汪清泉环绕着随意铺满的碎石子,几簇竹子、一块青石板,再加上零星灯光,便将日式庭院的精髓发挥的淋漓尽致。朴素又自然的材质在相互杂糅和碰撞下,营造出一种极致纯粹的自然之美。自然与人的和谐,一种淡淡的喜悦在其中。
客厅区域做为非正式影音室。
餐岛一体桌方便了负一楼的基本吃喝饮食。
出北向庭院,一汪泉水与楼上圆弧形的栈道遥相呼应。
清晰简练的线条结构,带给空间极强的立体感。
朴素自然的色调。
再通过艺术手法表现透着浓浓禅意美。
- 负一楼主要为娱乐活动区。
- 南向下沉庭院进行了搭建,改为室内阳光房茶室。
- 榻榻米的形式将整个空间营造的舒适而温馨。
- 静谧的日式空间里光从天而降,又让一室充满生机。
设计将入户玄关直接打通与客厅融合。
更改入户大门位置,调整入户大门尺寸,使得入户门美观大气。
更改老人卧室入户方向,使得电视背景墙整端大气。
餐厅区域外扩并增加一条圆弧形栈道,方便老人从一楼直接通往后院种植,兼备美观与实用。
清雅质朴里满满人文关怀,家的温度让人幸福感升级。
- 将主卧室一分为二让出两间次卧室
- 卧室中间留有窗户,增加两个孩子的互动性与空间趣味性
- 主卧索性置北,并套入衣帽间及卫生间,保证主卧的基本配套
- 目之所及心之所感,皆为美好,诗意充盈浪漫在发酵
ANALYSISDIAGRAM
分析图
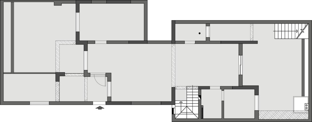
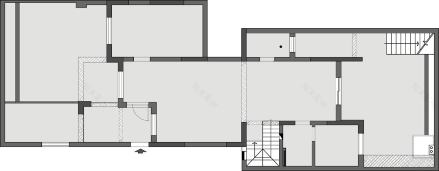
-1F 原始平面图
-1F 平面布局图
1F 原始平面图
1F 平面布局图
2F 原始平面图
2F 平面布局图
INFO
- 主案设计-曲森
- 工程管家-刘鑫
- 客户经理-周南
- 设计公司-青马别墅设计
- DESIGNER
主创设计
曲森
青马设计主创设计师
毕业于四川美术学院
进修于清华大学空间环境艺术设计高级研修班
室内装饰行业从业 18 年以上,专属大宅全案设计
资质
四川美术学院环境艺术室内设计专业、土木工程建筑专业讲师
亚太室内设计(高级)设计师
中国装饰协会会员
中国建筑装饰高级住宅室内设计师(A010007SRD110003)
中国建筑装饰协会高级室内建筑师(A053111SA110397)
设计理念
设计不仅仅是为了实现视觉效果
它的意义在于通过创造一种体验
使生活本身上升到艺术化的层面
让灵感自由释放
创造一个心灵渴望的空间
一切随心 无极
殊荣
2005 北京十大优秀设计师
2007 年中国装饰协会优秀设计师并获三等奖
2008 年万科样板间项目合作设计师
2009 年《南方周末》报做特约嘉宾
2010 年作品在《居礼》杂志发表
2012 年“筑巢”奖优秀作品奖
2014 年陕西省创意空间设计交流会最佳环保理念奖
2015 年陕西双佳电气杯设计大赛二等奖
2016 年搜狐室内设计明星大赛三等奖
2017 年<设计源 世界杯》陕西省设计界精英人物
2020 年陕西省室内装饰协会最佳家装设计作品奖
2020 年“原点明珠杯”陕西省第十一届室内装饰设计大赛优秀奖
2021 年年度优秀艺术空间设计最美艺术空间设计奖
2021 年第十届“筑巢”奖获大户型优秀作品奖
2021 年【陕西家装行业总评榜】中获得“陕西百名优秀家装设计师”荣誉称号
案例
曲江和园公馆、曲池东岸、湖城大境、湖滨花园、曲江官邸、永和坊别墅、莱安逸珲、振业别墅、曲江龙邸、白桦林间、天石集团行政大楼总体内装设计及附属总统套房......
链接
青馬作品 | 九州怡景湾 · 310㎡ 联排别墅 现代 气质丰盈的别样艺术新家 / 曲森
青馬作品 | 曲江公馆 · 310㎡顶复 现代 别具一格衍生惬意生活/ 曲森
青馬作品 | 融创揽月府 · 316㎡ 新中式 一派清幽 / 曲森
青馬 实景落地 | 荣兴云天 200㎡ 新中式 淄色之境 / 曲森
青馬作品 | 融公馆 · 叠拼 300㎡ 现代风格 生活的印迹 / 曲森
青馬作品 | 袅袅流光絮絮绕 莱安逸珲 330 平米曲森作品
点击图片
了解更多案例丨人物丨作品
COMPANY
设计公司
- 青马设计
隶属于北京尚美饰家装饰集团旗下,专注于高端别墅大宅的装饰品牌。由集团精心重资打造,经过多年不断的淬炼升级与创新融合,打破以往客户服务的常规局限,构建全新的大宅别墅全案设计和整装服务平台,专注服务对象涵盖企事业精英人士和高端客户群体,提供大宅别墅装饰的整体规划设计与施工产品整体交付私属定制服务。
青马设计集结行业内经验丰富的设计大咖、大客户经理、工程大管家、优秀的工程项目经理打造的“大宅别墅工程”管理体系,“多对一”式的整装服务系统,在行业里形成独特 TSING HORSE 系风格的青马设计范式。青马设计不仅是装修服务的提供商,更是大宅别墅生活方式的服务商。青马 - 成就别墅生活。
-END-
生活的格调
就是一个人对自我独特的定义
是生活,是艺术
而家
就是格调的终极表现
青马,只想给你一个格调家
客服
消息
收藏
下载
最近





















