查看完整案例

收藏

下载
最新案例
Latest cases
项目信息|Project information
项目地址/碧桂园国湖
Project address |Country Garden Lake
建筑户型/中叠
Project address |Middle stack
施工面积/240 平方米
Construction area | 240㎡
设计风格/北欧
Design style|Northern Europe
设计公司/青马别墅空间设计
Design company | Qing Mavilla space design
全案设计/王强设计团队
Whole case design | Wang qiang design team
大客户经理/厚慧慧 Key Account Manager|Hui-huiHou
工程管家/刘鑫 Project Manager| Liu xin
全案产品/欧神诺瓷砖 、华艺石材、东芝空调、德尔木地板、欧派橱柜、艾尔西软装、克劳嫩堡美缝、怡口净水、能率热水器等 Whole case products|Oushennuo ceramic tile, Huayi stone, Toshiba air conditioner, Delwood floor, European cabinet, Elsie soft decoration, cronenburg beautiful seam, Yikou water purification, energy rate water heater, etc
本案碧桂园国湖中叠结构,设计师王强为其打造北欧风格的私人住宅,以简洁的手法使空间自然典雅质朴,将实用性与美观性结合,实现自由化的空间赋能,带来更饱满的居家生活方式。
In this case, the country garden country lake is a stacked structure. The designer Wang Qiang creates a Nordic style private house for it, which makes the space natural, elegant and simple with a concise method, combines practicality and aesthetics, realizes the free space empowerment, and brings a fuller home life style.
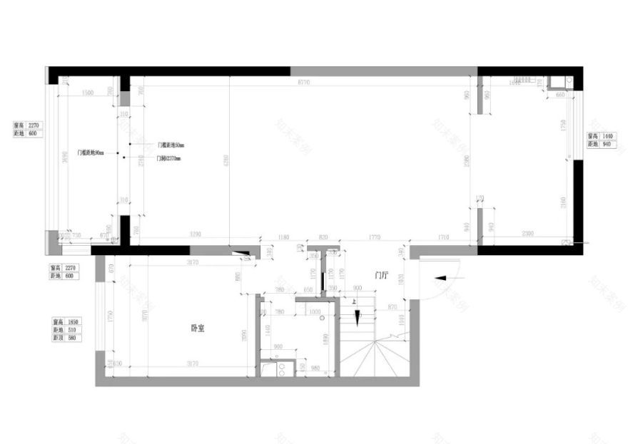
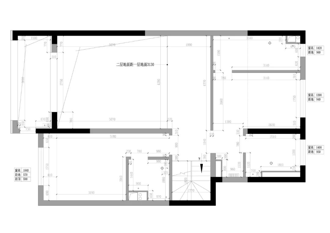
户型分析|House type analysis
▼ 负 2 层
原始结构
▼负 2 层
设计布局
▼负 1 层
原始结构
▼负 1 层
设计布局
▼ 一层
原始结构
▼ 一层设计布局
▼ 二层
原始结构
▼ 二层设计布局
△中叠户型
一层客餐厅南北通透,户型紧凑,阳台可以搭建,增加室内面积,地下室层高比较高,可以搭建两层,空间利用率增高。但其一层门厅不大,与楼梯共用,略显局促,卫生间空间紧凑,显小。
二层三间卫生间多,而卧室空间又太小。
地下室采光不足,与楼上不连通,需要走公共电梯到达,设计改造,解决不合理。
The guest restaurant on the first floor of the middle stack house type is transparent from north to south, the house type is compact, the balcony can be built to increase the indoor area, the basement floor height is relatively high, two floors can be built, and the space utilization rate is increased. However, the lobby on the first floor is small, which is shared with the stairs, which is slightly cramped, and the toilet space is compact and small. There are many three bathrooms on the second floor, and the bedroom space is too small. The basement has insufficient daylighting and is not connected with the upstairs. It needs to take the public elevator to arrive. Design and transform to solve the unreasonable problem.
设计方案
design scheme
开放的客餐厅空间宽敞明亮,电视背景墙瓷砖与格栅木结合简单耐看,开架、茶几、沙发采用原木搭配大理石电视台为空间增添了生活温度。
岛台成就了厨房与餐厅之间的桥梁隔而不断,白色简洁的吊灯,绿植点缀设计简约,色调搭配干净高级,演绎出现代都市生活的高雅姿态。
The open dining room is spacious and bright. The combination of TV background wall tiles and grille wood is simple and durable. The open shelf, tea table and sofa are made of logs with marble TV station, which adds living temperature to the space. The island has created a bridge between the kitchen and the restaurant, with simple white chandeliers and green plants. Simple design, clean and high-grade color matching, presenting the elegant attitude of modern urban life.
北欧风的慵懒沙发带来慢慢的惬意时光,舒适的氛围运用不同材料材质语言碰撞融合,将仪式感融合生活场景氛围。
贴合实际生活的设计,质感素净的精致诠释烟火的优雅从容,打造时尚生活美学艺术。
The Nordic style lazy sofa brings a slow and comfortable time. The comfortable atmosphere uses the collision and integration of languages of different materials, integrates the sense of ceremony with the atmosphere of life scene, fits the design of real life, and interprets the elegance and calmness of fireworks with pure texture, so as to create a fashionable life and aesthetic art.
地下一层实现屋主的观影休闲时光,多元化的元素参与丰富空间的趣味性与包容性,舒适观影安享惬意生活。利用空间结构做开放酒柜,在有限的空间里,放逐生活的梦想。
The basement floor realizes the owner’s viewing and leisure time. Diversified elements participate in enriching the interest and inclusiveness of the space, comfortable viewing and enjoying a comfortable life. The spatial structure is used as an open wine cabinet to exile the dream of life in a limited space.
巧妙利用空间结构,将主人的爱好妥帖放置于此,在“光”与“透”的空间里,享受每一刻的岁月悠长。三五友人品一支红酒小酌畅谈人生,亦或等清风来盼一手好牌。
Skillfully use the spatial structure to properly place the owner’s hobbies here, and enjoy the long years of each moment in the "light" and "transparent" space. Three or five friends drink a red wine, talk about life, or wait for the breeze to hope for a good hand.
主卧空间营造一种简单平和的氛围,素雅纯粹的配色揉和不同材质的细腻表达,在静谧与温柔中去感受自由时光的魅力。
卫生间统一的色调,整体给人一种干净整洁的氛围感,视觉上亦有扩大空间与通透舒畅的效果。
The master bedroom space creates a simple and peaceful atmosphere, with simple and elegant color matching and delicate expression of different materials, so as to feel the charm of free time in tranquility and tenderness.
The uniform tone of the bathroom gives a clean and tidy atmosphere as a whole, and has the effect of expanding space and transparency and comfort visually.
次卧室与儿童房背景墙采用撞色的设计手法,让场景更加生动丰富,书桌椅的个性设计增加了空间的趣味性,床头甄选的吊灯氤氲一室柔和,使卧室看起来更加温馨,享受时光自由畅想。
The background wall of the secondary bedroom and the children’s room adopts the color contrast design method to make the scene more vivid and rich. The personalized design of the desk and chair increases the interest of the space. The chandelier selected at the head of the bed is dense and the room is soft, making the bedroom look more warm and enjoy the free imagination of time.
本案设计师
Designer of this case
设计师:王强
Designer/Wang qiang
王强,青马设计主创设计师,毕业于陕西科技大学设计学院装潢艺术设计专业,室内装饰行业从业 18 年以上,专属大宅全案设计。
资质| Qualifications
中国室内装饰协会注册设计师
中国建筑装饰高级住宅室内设计师
理念| Idea
合理的划分空间,让设计融入生活,改变生活,营造自然,品味,格调。
殊荣 | Award
陕西广播电视台 98.8《设计师说》栏目,特约设计师
陕西广播电视台 91.6《拜托了设计师》栏目,特约设计师
西安市装饰协会推荐优秀设计师
中国室内设计家园推荐设计师
中国美化居室设计大赛优秀奖
新锐设计大赛优秀奖
2020 年度陕西家装设计最佳作品奖
2020G+设计精英大赛“别墅空间优胜奖”
案例|Case
龙湖源著、自然界城墅、国金华府、白桦林居、枫林九溪、普华浅水湾、西派国际、紫薇风尚、白桦林间、兴盛园、风景御园、振业泊墅、浐灞半岛、万科大明宫、曲江观邸、高山流水别墅、曲江大华公园世家、曲江金地九玺、西咸蔷薇溪谷……
设计师相关链接:
青馬作品 | 碧桂园·国湖 200㎡ 中叠 现代 沉浸这安谧岁月 / 王强
青馬作品 | 雅居乐御宾府 · 220㎡平层 现代 用美学伴爱成长 / 王强
青馬作品 | 西派国际 · 200㎡复式 现代中式 静雅的隽永故事 / 王强
青馬作品 | 湾流 200㎡ 新中式 清雅姿态 / 王强
青馬作品 | 雅韵 · 东方美学 200㎡/王强作品
青馬作品丨王强:斯人所彩虹,遇上方知有
点击图片
了解更多案例丨人物丨作品
关于青马
青马设计是由 2004 年成立的 V6 大宅设计空间蜕变而成,经过不断的淬炼升级与创新融合,打破以往客户服务的常规局限,构建全新的大宅别墅全案设计和整装服务平台,服务对象涵盖精英人士和高端客户,提供大宅别墅装饰的整体规划设计与施工、设备、主材、家具、配饰软装等私属定制服务。
青马设计集结行业内经验丰富的设计大咖、大客户经理、工程大管家、优秀的工程项目经理打造的“大宅别墅工程”管理体系,“多对一”式的整装服务系统,在行业里形成独特 TSING HORSE 系风格的青马设计范式。青马设计不仅是装修服务的提供商,更是大宅别墅生活方式的服务商。青马 - 成就别墅生活。
Qing Ma Design is transformed from the V6 mansion design space established in 2004, through continuous hardening, upgrading and innovation, breaking the conventional limitations of previous customer service, and building a brand-new mansion villa whole-case design and integration service platform. The service object covers elites and high-end customers, providing private customized services such as overall planning, design and construction, equipment, main materials, furniture, accessories and soft equipment for the decoration of the mansion and villa.
Building a "big horse style" project manager with rich experience in the "big horse style" project management system in the "big horse style" villa design industry. Qingma design is not only a decoration service provider, but also a service provider of the lifestyle of big houses and villas. Qingma - achieve villa life.
-END-
生活的格调
就是一个人对自我独特的定义
是生活,是艺术
而家
就是格调的终极表现
青马,只想给你一个格调家
客服
消息
收藏
下载
最近



























