查看完整案例

收藏

下载
最新案例
Latest cases
项目信息|Project information
项目地址/龙湖天钜
Project address |Longhu Tianju
建筑户型/上叠
Project address | Stack up
施工面积/220 平方米
Construction area | 220㎡
设计风格/现代美式
Design style|Modern American
设计公司/青马别墅空间设计
Design company | Qing Mavilla space design
全案设计/梁丽辉设计团队
Whole case design | Li-hui Liang design team
大客户经理/武佳丽
Key Account Manager| Jia-li Wu
工程管家/韩淋
Project Manager|Han lin
全案产品/
LD 陶瓷、华艺石材、高仪洁具、欧派橱柜、大金空调、博士电器、艾尔西软装、克劳嫩堡美缝、怡口净水、能率热水器、墨瑟门窗、华为智能灯光等
Whole case products|LD ceramics, Huayi stone, Gaoyi sanitary ware, oupai cabinet, Dajin air conditioner, doctor’s electrical appliance, Elsie soft clothing, cronenburg Meifeng, Yikou water purification, energy rate water heater, Mercer doors and windows, Huawei intelligent lighting, etc
本案龙湖天钜上叠户型,业主为三口之家,夫妻俩和一个男孩,偶尔有父母来短暂居住。屋主钟爱现代美式风格,设计师梁丽辉了解其诉求后,以现代美式的手法让温暖与理性相遇,体现出自由、随性、宁静,不受世俗纷扰的慢生活居家态度。
In this case, the owner is a family of three. The couple and a boy occasionally have parents to live temporarily. Homeowners love modern American style. After understanding its appeal, designer Liang Lihui used modern American methods to meet warmth and rationality, reflecting a slow life and home attitude of freedom, randomness, tranquility and freedom from secular disturbances.
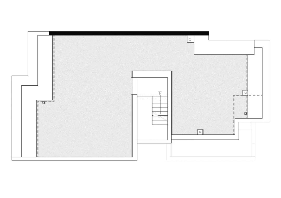
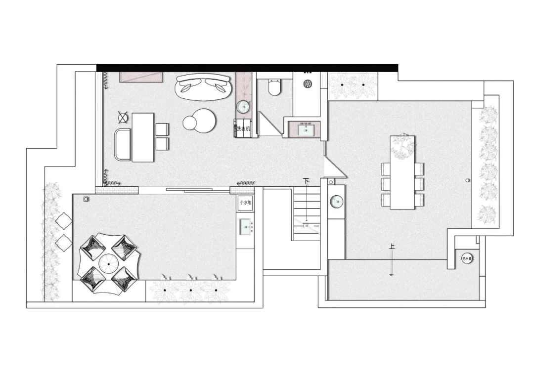
户型分析|House type analysis
▼1 层
原始结构
▼1 层
设计布局
▼ 2 层
原始结构
▼ 2 层设计布局
▼ 3 层
原始结构
▼ 3 层设计布局
△上叠户型
采光很好,顶楼可搭建,能够满足业主的爱好以及花艺观赏。房间数量能够满足常规的家庭成员使用,但其入户没有合适放鞋柜的地方,所以结合楼梯下方空间,设计出入户鞋柜功能。厨房面积较小,在餐厅增加了西厨功能,并将冰箱外移至餐厅。没有洗衣房,将二层一处室外走廊区域搭建,作为阳光房使用。
The upper stacked house has good daylighting, and the top floor can be built, which can meet the owner’s hobbies and flower viewing. The number of rooms can meet the use of conventional family members, but there is no suitable place for shoe cabinets. Therefore, combined with the space under the stairs, the function of shoe cabinets is designed. The kitchen area is small, the western kitchen function is added in the restaurant, and the refrigerator is moved to the restaurant. There is no laundry room. An outdoor corridor area on the second floor will be built as a sunshine room.
设计方案
design scheme
入户门厅,实用美观的玄关柜以简洁而硬朗的线条贯穿整个空间,彰显强烈的动感。开放格的虚实平衡空间的视觉,烘托出一种宁静和谐的氛围。
In the entrance hall, the practical and beautiful porch cabinet runs through the whole space with simple and strong lines, showing a strong dynamic. The open grid balances the vision of the space, setting off a quiet and harmonious atmosphere.
客餐厅最大化打开,以恬静的色彩铺叙优雅的格式。克莱因蓝作为跳色点缀,空间氛围多了一丝明朗的气息。以功能格调为主,没有过多的装饰,反而以舒适的调性营造一种漫不经心的浪漫。
The guest restaurant is opened to the greatest extent, and the elegant format is described in quiet colors. Klein Blue as a toning ornament, the space atmosphere has a bright smell. It focuses on functional style without too much decoration. Instead, it creates a casual romance with comfortable tonality.
客厅温和柔美的舒适中,以简洁的造型、完美的细节,营造出时尚前卫的感觉。甄选的配饰与画作成为此处最艺术与吸睛的存在。将优雅惬意的艺术美学与温馨和谐的居住体验交织融合,表达屋主独特的审美和生活品味。
In the gentle and soft comfort of the living room, it creates a fashionable and avant-garde feeling with simple modeling and perfect details. The selected accessories and paintings have become the most artistic and eye-catching existence here. The elegant and comfortable artistic aesthetics and warm and harmonious living experience are intertwined and integrated to express the owner’s unique aesthetic and life taste.
厨房
u 字型动线满足烹饪得心应手的操作,为餐厅区增设西餐岛台,同时将冰箱外置,缓解厨房狭小的面积,让烟火厨房整洁美观,亦能与公区形成互动氛围,幸福围绕身旁。
The U-shaped moving line of the kitchen can meet the operation moving line of cooking easily. A Western food island is added for the restaurant area. At the same time, the refrigerator is placed outside to alleviate the narrow area of the kitchen, make the fireworks kitchen clean and beautiful, and form an interactive atmosphere with the public area, with happiness around the side.
一楼为老人规划卧室,避免上下楼的不便利,将最好的朝向给老人。静谧时光里保障休憩质量,沉稳大气的配色亦带来满满地安全感,悠然自得乐享每时每刻。
The first floor plans bedrooms for the elderly to avoid the inconvenience of going upstairs and downstairs, and gives the best orientation to the elderly. The rest quality is guaranteed in quiet time. The calm and atmospheric color matching also brings a sense of security to the ground and enjoy every moment.
二层的主卧套,静享浪漫的私人时光。摒弃繁复的色彩,大面积素雅的色彩,一幅艺术画作点缀,使整个空间带来优雅沉稳的底蕴。
三分离的主卫,赋予居者美好人居体验的同时,唤醒其对理想生活的无限想象。
男孩房兼具美感与舒适,纯真的色彩带来梦幻舒畅的氛围,色彩做空间比例切割,以艺术手法新生共融,奇思妙想充分呈现孩童的天性,徜徉蓝色的幻想,飞往更广阔美好的天空。
The boy’s room is both beautiful and comfortable. The pure color brings a dreamy and comfortable atmosphere. The color is cut in proportion to the space, and is integrated with the new life by artistic means. The fantastic ideas fully present the children’s nature, roam in the blue fantasy and fly to a broader and better sky.
三层空间打造雅致的休闲区,温暖的木色搭配自然清新的绿植,将我们从喧闹中带回平静优雅,空间的张力与留白使得氛围开敞情感包容,增加家庭成员间的情感交流与互动。
The three-tier space creates an elegant leisure area. The warm wood color and natural and fresh green plants bring us back calm and elegance from the noise. The tension and blank space make the atmosphere open and emotional tolerance, and increase the emotional communication and interaction among family members.
搭建的露台成为家人最喜欢的场所,这里阳光正好,阅一本书,品一口茶,亦或什么都不做,任时光流逝。精神自由的追求成了生活不可或少的部分,让生活状态休闲轻松化,居家生活体验化,这便是理想中生活的模样。
The built terrace has become the favorite place for the family. The sunshine here is just right. Read a book, taste a cup of tea, or do nothing, and let time pass. The pursuit of spiritual freedom has become an indispensable part of life, making the living state leisure and relaxed and home life experience, which is the appearance of ideal life.
本案设计师
Designer of this case
设计师:梁丽辉
Designer/Li-hui liang
梁丽辉
青马设计主创设计师
毕业于西安建筑科技大学
室内装饰行业从业 16 年以上,专属大宅全案设计
资质| Qualifications
中国室内装饰协会注册设计师
理念 | Idea
设计不是一种技能,而是一种感悟
殊荣 | Award
2008 年荣获中联阿姆瑞特杯室内设计优秀奖
2012 年荣获风尚杯优秀作品奖
2015 年荣获京瓷杯新中式设计大赛网络人气优秀奖
案例 |Case
曲江香都、逸翠园、绿地城、蔷薇溪谷、巴塞阳光、曲江大城、河与墅、科为城墅、曲江风景线、龙湖香醍国际、龙湖花千树、海珀香庭等西安大户型私宅项目......
设计师作品链接:
青馬作品 | 融创桃源府 200㎡ 合院 新中式 诗意画境 / 梁丽辉
青馬作品 | 曲江大城 · 220㎡顶复 法式 演绎现代都市生活的浪漫格调 / 梁丽辉
青馬作品 | 紫楹台 220㎡ 三代人的独立与互融 / 梁丽辉
青馬作品 | 科为城墅 · 下叠 230㎡ 美式轻奢 繁花里的静简清欢 / 梁丽辉
青馬作品丨动静分离 · 自成一派的理想生活 600㎡ 绿地海珀紫庭/梁丽辉
青馬作品 | 梁丽辉:心之所向皆为家,340㎡新中式中下叠别墅
点击图片
了解更多案例丨人物丨作品
关于青马
青马设计是由 2004 年成立的 V6 大宅设计空间蜕变而成,经过不断的淬炼升级与创新融合,打破以往客户服务的常规局限,构建全新的大宅别墅全案设计和整装服务平台,服务对象涵盖精英人士和高端客户,提供大宅别墅装饰的整体规划设计与施工、设备、主材、家具、配饰软装等私属定制服务。
青马设计集结行业内经验丰富的设计大咖、大客户经理、工程大管家、优秀的工程项目经理打造的“大宅别墅工程”管理体系,“多对一”式的整装服务系统,在行业里形成独特 TSING HORSE 系风格的青马设计范式。青马设计不仅是装修服务的提供商,更是大宅别墅生活方式的服务商。青马 - 成就别墅生活。
Qing Ma Design is transformed from the V6 mansion design space established in 2004, through continuous hardening, upgrading and innovation, breaking the conventional limitations of previous customer service, and building a brand-new mansion villa whole-case design and integration service platform. The service object covers elites and high-end customers, providing private customized services such as overall planning, design and construction, equipment, main materials, furniture, accessories and soft equipment for the decoration of the mansion and villa.
Building a "big horse style" project manager with rich experience in the "big horse style" project management system in the "big horse style" villa design industry. Qingma design is not only a decoration service provider, but also a service provider of the lifestyle of big houses and villas. Qingma - achieve villa life.
-END-
生活的格调
就是一个人对自我独特的定义
是生活,是艺术
而家
就是格调的终极表现
青马,只想给你一个格调家
客服
消息
收藏
下载
最近




























