查看完整案例

收藏

下载
最新案例
Latest cases
项目信息|Project information
项目地址|香湖湾壹号
Project address|Xianghu Bay 1
建筑户型|下叠
Project address|Down stack
施工面积|320 平方米
Construction area|320㎡
设计风格|轻奢、新中式
Design style|Light luxury, new Chinese style
设计公司/青马别墅空间设计
Design company | Qing Mavilla space design
全案设计/晁阳设计团队
Whole case design | Chao yang design team
大客户经理/邢阳 Key Account Manager| Xing yang
工程管家/韩旭 Project Manager| Han xu
全案产品/高仪洁具、鹰牌瓷砖、3M 净水、迪诺德莱克木作、方太厨房电器、艾尔西软装、华为智能、大金空调等 Whole case products|Gaoyi sanitary ware, Yingpai ceramic tile, 3M water purification, dinod Lake woodwork, square kitchenware, etc.
本案香湖湾壹号下叠户型,居住人口一家四口,夫妇俩带两个男孩。
设计过程中,晁阳团队通过多次与业主一家积极沟通,并对业主一家的喜好及日常生活习惯加以了解,对空间进行重新规划。
秉承宁缺毋滥的态度,通过对细节的把控,简约中求艺术,化繁为简,构建空间灵动的姿态和舒适的生活环境。
In this case, there is a family of four under No. 1 xianghuwan, and the couple take two boys. During the design process, Chao Yang’s team has actively communicated with the owner’s family for many times, understood the owner’s preferences and daily living habits, and re planned the space. Adhering to the attitude of "better lack than abuse", through the control of details, seek art in simplicity, turn complexity into simplicity, and build a flexible posture and comfortable living environment.
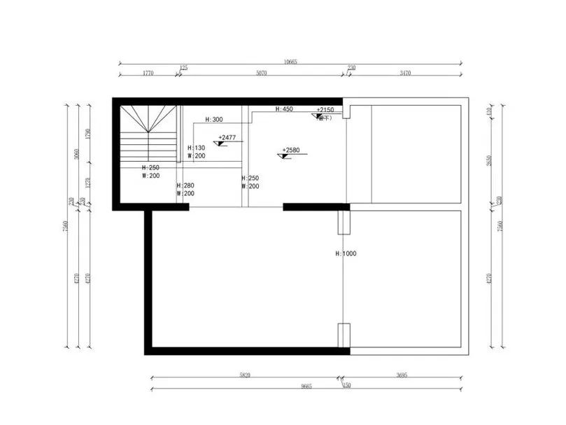
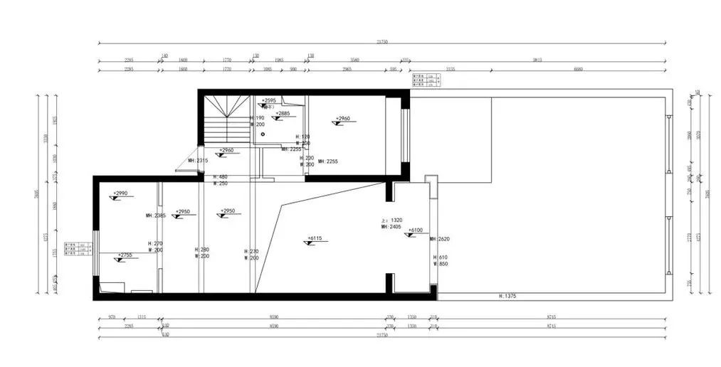
户型分析|House type analysis
▼ -2 层
原始结构
▼-2 层
设计布局
▼-1 层
原始结构
▼-1 层
设计布局
▼ 1 层
原始结构
▼ 1 层
设计布局
▼ 2 层
原始结构
▼ 2 层设计布局
△320 平下叠户型
整体空间造型较为方正规整,通风采光较好,空间内部层高较高,并带有挑空部分。一楼带有一个较大的庭院空间,但其客餐厅空间需考虑实际使用与动线合理规划,负一层需根据实际情况决定是否搭建,并进行空间合理搭配,二层空间需重新合理划分,以满足业主实际需求。
△
The overall space shape of the 320 flat lower stacked house type is square and regular, with good ventilation and daylighting, high internal floor height and empty part. The first floor has a large courtyard space, but its guest restaurant space needs to consider the actual use and reasonable planning of the moving line. The negative first floor needs to decide whether to build according to the actual situation, and the space should be reasonably matched. The space on the second floor needs to be reasonably divided to meet the actual needs of the owner.
设计方案
design scheme
客餐厅一体化的设计加强了空间的整体感,舒适的布局打破了传统的条条框框,具有艺术造型的灯具成为点睛之笔,渲染出温馨、柔和的氛围,由此展开一道风格独具的人居生活盛宴。
The integrated design of the guest restaurant strengthens the overall sense of space, the comfortable layout breaks the traditional rules, and the lamps with artistic modeling become the finishing touch, rendering a warm and soft atmosphere, so as to launch a unique feast of residential life.
公区在材质的选用上,以乳胶漆和混油肤感漆的木作为主,局部采用金属线条点缀,温和的同时又不会太沉闷。餐桌与导台形成有设计感的咬合关系,层次递进充满叙事感,表现极度精于细节,每一处都是设计的巧思呈现。
In terms of material selection, the public area is mainly made of wood with emulsion paint and oil skin feeling paint, and some parts are decorated with metal lines, which is mild and not too dull at the same time. The dining table and the guide platform form a bite relationship with a sense of design. The level is progressive, full of narrative sense, and the performance is extremely proficient in details. Every place is presented by the ingenious thinking of design.
书房有了笔墨纸砚的加持,空间意境以一种舒朗姿态傲然挺立。大面积原木材质削减了硬朗吐露温润质感,像处世不紧不慢的翩翩君子。光透过玻璃巧妙引入细细柔柔,仿佛让空间多了一份细密呼吸,舒缓的氛围任思绪飞扬。
The study has the blessing of pen, ink, paper and inkstone. The space artistic conception stands proudly in a comfortable posture. The large-area log material reduces the tough and soft texture, like an elegant gentleman who is not in a hurry. The light is skillfully introduced through the glass, which seems to give the space a more detailed breath, and the soothing atmosphere allows the thoughts to fly.
影音室没有冗杂的视觉焦点,升降幕布还原墙体的完整性,使空间格调做到减法的极致。沙发背景一幅白描工笔画点缀,不多着色不少疏漏一气呵成隽永动人。以沙发视角来看,功能性的第一印象被削弱,让休闲空间多了美学的侵染。
There is no miscellaneous visual focus in the audio-visual room. The lifting curtain restores the integrity of the wall, making the space style the ultimate subtraction. The sofa background is dotted with a fine line drawing, with little coloring and many omissions. It is meaningful and moving at one go. From the perspective of sofa, the functional first impression is weakened, which makes the leisure space more affected by aesthetics.
茶室空间经典的木材成为基底,暖棕座椅点缀,柔和的色彩舒朗的廓形中式而富意境。文人以茶会友,品茶论道,安抚着内心的波澜。升格的温度与空间材质轻微发酵,介入生活,沁润心绪,手抚微温杯盏,徐徐对谈。
The classic wood of the teahouse space becomes the base, the warm brown seats are dotted, the soft color, the comfortable outline is Chinese and full of artistic conception.
Literati met friends with tea, tasted tea and talked about Tao, calming the waves in their hearts.
The upgraded temperature and space materials slightly ferment, intervene in life, refresh your mind, touch the slightly warm cup and talk slowly.
主卧室简洁大方,功能配套齐全,通过设计使衣帽区与卧室合二为一,加强空间整体性。卫生间合理分布并采用双台盆,满足业主日常生活所需。配色淡雅,金属点缀匹配雅仕风度,拓宽了空间气度。
The master bedroom is simple and generous with complete functions. Through the design, the cloakroom and bedroom space are combined into one to strengthen the integrity of the space. The toilet space is reasonably distributed and double basins are used to meet the needs of the owner’s daily life. The color matching is light and elegant, and the metal ornament matches the elegant demeanor, which widens the space bearing.
对优雅生活的追逐无关真实风景,是屋主一份始终心纳山海的心情。庭院空间为居者增设更多的生活趣味与情调,设计师巧妙将自然界的生机汲取,竹与松的静谧,鲜花盛开的清香与一个慢慢的下午时光,都是对生活的热衷与享受。
The pursuit of elegant life has nothing to do with the real scenery. It is the owner’s mood of always accepting mountains and seas. The courtyard space adds more life interest and sentiment to the residents. The designer skillfully absorbs the vitality of nature, the tranquility of bamboo and pine, the fragrance of flowers in full bloom and a slow afternoon are all enthusiasm and enjoyment of life.
本案设计师
Designer of this case
设计师:晁阳
Designer/Chao yang
晁阳
青马设计主创设计师
毕业于西安美术学院
室内装饰行业从业 13 年以上,专属大宅全案设计
资质| Qualifications
国家注册高级室内设计师
陕西广播电视台 98.8《设计师说》栏目特约设计师
陕西广播电视台 91.6《设拜托了设计师》栏目特约设计师
理念| Idea
人可以改变环境,环境可以影响人,而设计可以改变人与环境。
殊荣 | Award
2009 年荣获阿姆瑞特杯设计大赛优秀奖
2010 年荣获西安市风尚设计大赛第二名
2013 年荣获亚太室内设计双年大奖赛入围奖
2015 年荣获筑巢设计大赛优秀奖
2017 年荣获金堂奖设计大赛入围奖
2018 年荣获中国室内设计周优秀奖
案例|Case
中海东郡、逸翠园、紫御华府、曲江紫薇永和坊、绿地国际生态城、逸翠尚府、中海铂宫、金地湖城大境、绿地-海珀紫庭、曲江紫汀苑、曲江诸子阶、曲江观邸、曲江公馆和园、曲江-观山悦、宝鸡-龙廷山水、紫楹台......
设计师作品链接:
青馬 实景落地 | 紫楹台:妍·轩一遇 为婚房“素”妆
青馬作品 | 海伦湾 · 270㎡ 中叠 现代 投入家的怀抱 / 晁阳
青馬作品 | 金地世家风华 · 215㎡平层 现代 流转空灵自由之居 / 晁阳
青馬作品 | 外国语学院家属区 在“图书馆”约会 / 晁阳
点击图片
了解更多案例丨人物丨作品
关于青马
About Qing Ma
青马设计是由 2004 年成立的 V6 大宅设计空间蜕变而成,经过不断的淬炼升级与创新融合,打破以往客户服务的常规局限,构建全新的大宅别墅全案设计和整装服务平台,服务对象涵盖精英人士和高端客户,提供大宅别墅装饰的整体规划设计与施工、设备、主材、家具、配饰软装等私属定制服务。
青马设计集结行业内经验丰富的设计大咖、大客户经理、工程大管家、优秀的工程项目经理打造的“大宅别墅工程”管理体系,“多对一”式的整装服务系统,在行业里形成独特 TSING HORSE 系风格的青马设计范式。青马设计不仅是装修服务的提供商,更是大宅别墅生活方式的服务商。青马 - 成就别墅生活。
Qing Ma Design is transformed from the V6 mansion design space established in 2004, through continuous hardening, upgrading and innovation, breaking the conventional limitations of previous customer service, and building a brand-new mansion villa whole-case design and integration service platform. The service object covers elites and high-end customers, providing private customized services such as overall planning, design and construction, equipment, main materials, furniture, accessories and soft equipment for the decoration of the mansion and villa.
Building a "big horse style" project manager with rich experience in the "big horse style" project management system in the "big horse style" villa design industry. Qingma design is not only a decoration service provider, but also a service provider of the lifestyle of big houses and villas. Qingma - achieve villa life.
-END-
生活的格调
就是一个人对自我独特的定义
是生活,是艺术
而家
就是格调的终极表现
青马,只想给你一个格调家
客服
消息
收藏
下载
最近
























