查看完整案例

收藏

下载
最新案例
Latest cases
项目信息|Project information
项目地址/龙湖双珑源著
Project address |Longhu shuanglongyuan
建筑户型/联排别墅
Project address | Townhouse
施工面积/430 平方米
Construction area | 430㎡
设计风格/现代
Design style|Modern
设计公司/青马别墅空间设计
Design company | Qing Mavilla space design
全案设计/祁士晶设计团队
Whole case design | Shi-jing Qi design team
大客户经理/武佳丽
Key Account Manager| Jia-li Wu
工程管家/刘鑫
Project Manager| Liu xin
全案产品/
诺贝尔瓷砖、华艺石材、得高木地板、M77 木作、东芝空调、艾尔西软装、墨瑟门窗、东芝电梯、3M 净水等
Whole case products|
Nobel ceramic tile, Huayi stone, Degao wood floor, M77 woodwork, Toshiba air conditioner, Elsie soft decoration, ink doors and windows, Toshiba Elevator, 3M water purification, etc
本案龙湖双珑源著联排别墅,设计师祁士晶依据户型优势及业主生活习惯,用布局将领域与界限巧妙合二为一,自由氛围在空间流淌,使人不自觉便放松下来。大气的现代手法,转承了各个区域的节奏,加强结构秩序感,融入水墨元素让别墅气质与生活心境合一。
In this case, Longhu shuanglongyuan is a townhouse. Designer Qi Shijing skillfully combines the field and boundary with the layout according to the house type advantages and the owner’s living habits. The free atmosphere flows in the space, which makes people relax unconsciously. The modern style of atmosphere inherits the rhythm of each region, strengthens the sense of structural order, integrates ink elements, and integrates the villa temperament with the mood of life.
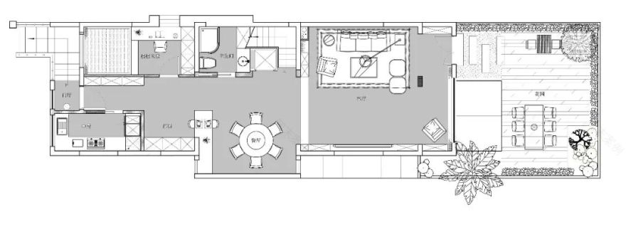
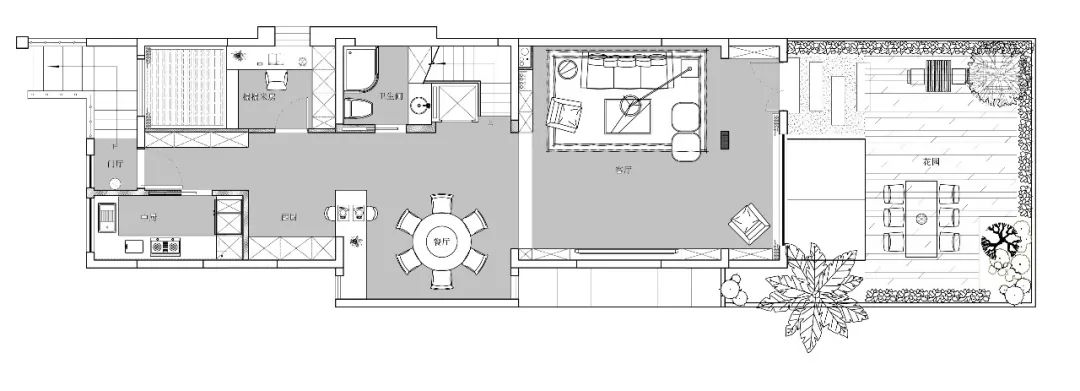
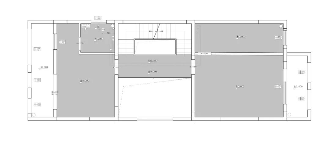
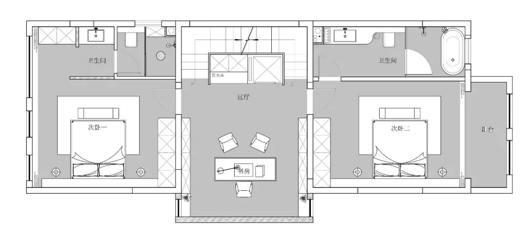
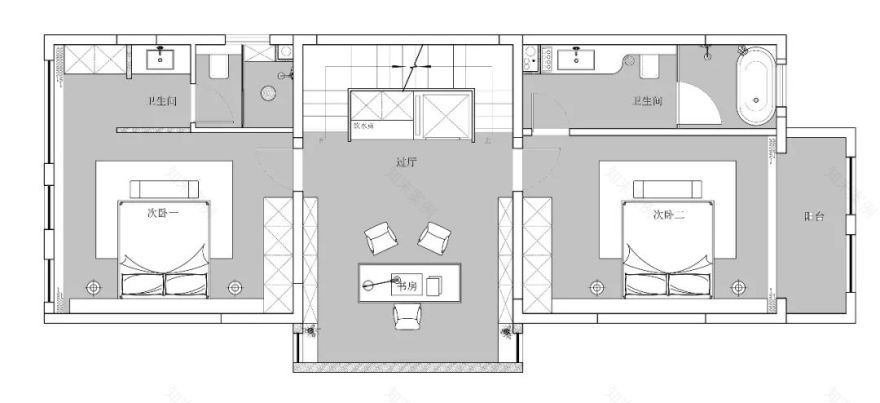
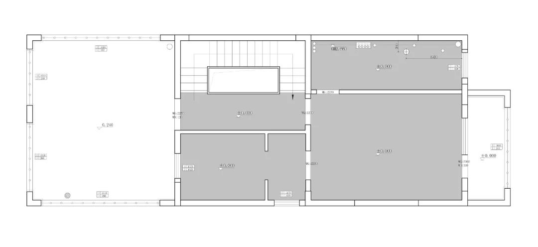
户型分析|House type analysis
▼ -1 层
原始结构
▼ -
1 层
设计布局
▼ 1 层
原始结构
▼1 层
设计布局
▼2 层
原始结构
▼2 层
设计布局
▼ 3 层
原始结构
▼ 3 层
设计布局
△430 平联排别墅,一、二、三层都南北通透,采光通风良好,一楼有院子,居住比较舒适,三层楼顶可搭建空间比较灵活。但其负一层采光太差,需要解决采光问题,一层中厨和卧室可使用空间太小,二层实用空间不足,需要搭建。
△430 flat townhouse, the first, second and third floors are transparent from north to south, with good daylighting and ventilation. There is a courtyard on the first floor, which is more comfortable to live in. The three-story roof can be built with more flexible space. However, the daylighting of the first floor is too poor, which needs to be solved. The usable space of the kitchen and bedroom on the first floor is too small, and the practical space on the second floor is insufficient, so it needs to be built.
设计方案
design scheme
负一层茶室空间,以温润质朴的木元素带来精神归宿的致敬。抬高的榻榻米增加空间层次,向内在采光井下安排一方雅座,独特选品的茶桌在环境中恪守着与自然之间的安定静谧的关系,疏朗间自在。
The tea room space on the lower floor brings a tribute to the spiritual destination with warm and simple wood elements. The elevated tatami increases the spatial level and arranges an elegant seat to the internal lighting underground. The unique tea table scrupulously abides by the stable and quiet relationship with nature in the environment.
客厅空间有序的几何线条排布着生活的韵律与节奏,舒适的配色让自在的场域气息注入几分优雅。两边背景墙以水墨元素晕染延续链接,成为空间最别致的存在。甄选的软装陈设与之呼应,将松弛自在带入情绪感知的高潮。
The orderly geometric lines of the living room space arrange the rhythm and rhythm of life, and the comfortable color matching injects a bit of excellence into the free field atmosphere. The background walls on both sides continue to link with ink elements, becoming the most unique existence of the space. The selected soft furnishings echo it, bringing relaxation and freedom into the climax of emotional perception.
方圆之间自成一画,餐厅氛围像置身于重峦叠嶂的自然风景里。大理石自然的纹理与写意画作的相衬,最纯粹的黑与白里,空间气氛与气质会随时间与人,展现它丰富而静谧的表现力,让用餐的仪式感受这静态之美。
The surrounding area forms a picture of itself, and the restaurant atmosphere is like being in the natural scenery with mountains. The natural texture of marble and the contrast of freehand paintings, the purest black and white, the space atmosphere and temperament will be with people over time, showing its rich and quiet expressiveness, so that the dining ceremony can feel the static beauty.
二楼主卧生动的喜上眉梢画作装点,仿若暗香浮动,沁人心脾的惬意美好扑面。定制镶嵌的柜体与背景墙保持一个完整的体块关系,休闲阳台将满目的清雅绿意和生机带入室内,日子清甜笑容挂嘴边。
The master bedroom on the second floor is decorated with vivid happy eyebrows, which looks like a faint fragrance floating, refreshing and pleasant. The custom inlaid cabinet maintains a complete block relationship with the background wall. The leisure balcony brings the elegant green and vitality into the room, and the day is sweet and smiling.
三楼主卧室尊重原始屋顶结构,高挑的空间搭配谦善向上的君子竹,顿显空间疏朗高节之气。床品选择与之淡雅色彩呼应,感受着光影的变换,时间在此刻静止,宁静、安逸让此刻的心灵被洗涤。
The master bedroom on the third floor respects the original roof structure, and the tall space is matched with the modest and upward gentleman bamboo, showing the air of sparse space and high section. The choice of bedding echoes with its elegant color and feels the transformation of light and shadow. Time is still at the moment, and peace and ease wash the mind at the moment.
本案设计师
Designer of this case
设计师:祁士晶
Designer/Shi-jing Qi
祁士晶
青马设计主创设计师
毕业于西安交通大学
室内装饰行业从业 16 年以上,专属大宅全案设计
资质|Qualifications
中国室内装饰协会注册设计师
理念|Idea
享受设计,品味生活。
殊荣|Award
2010 年第七届风尚设计大赛特等奖
2019 年红棉中国最美雅奢空间设计奖
2019 年第九届筑巢奖
案例|Case
中海铂宫独栋别墅、紫薇田园都市 F 区独栋别墅、国嶺独栋别墅、凤凰池叠墅、曲江香都顶复、曲江香都底跃、龙湖双珑原著联排别墅、龙湖花千树底复、融创珑府顶复、玺樾骊府合院、华著中城顶复、中海御湖一号等...
点击图片
了解更多案例丨人物丨作品
关于青马
About Qing Ma
青马设计是由 2004 年成立的 V6 大宅设计空间蜕变而成,经过不断的淬炼升级与创新融合,打破以往客户服务的常规局限,构建全新的大宅别墅全案设计和整装服务平台,服务对象涵盖精英人士和高端客户,提供大宅别墅装饰的整体规划设计与施工、设备、主材、家具、配饰软装等私属定制服务。
青马设计集结行业内经验丰富的设计大咖、大客户经理、工程大管家、优秀的工程项目经理打造的“大宅别墅工程”管理体系,“多对一”式的整装服务系统,在行业里形成独特 TSING HORSE 系风格的青马设计范式。青马设计不仅是装修服务的提供商,更是大宅别墅生活方式的服务商。青马-成就别墅生活。
Qing Ma Design is transformed from the V6 mansion design space established in 2004, through continuous hardening, upgrading and innovation, breaking the conventional limitations of previous customer service, and building a brand-new mansion villa whole-case design and integration service platform. The service object covers elites and high-end customers, providing private customized services such as overall planning, design and construction, equipment, main materials, furniture, accessories and soft equipment for the decoration of the mansion and villa.
Building a "big horse style" project manager with rich experience in the "big horse style" project management system in the "big horse style" villa design industry. Qingma design is not only a decoration service provider, but also a service provider of the lifestyle of big houses and villas. Qingma - achieve villa life.
-END-
生活的格调
就是一个人对自我独特的定义
是生活,是艺术
而家
就是格调的终极表现
青马,只想给你一个格调家
客服
消息
收藏
下载
最近























