查看完整案例

收藏

下载
最新案例
Latest cases
项目信息|Project information
项目地址/曲江大城
Project address |Qujiang City
建筑户型/上叠
Project address | Superimposition
施工面积/210 平方米 Construction area | 210㎡
设计风格/现代简约 Design style|Modern simplicity
设计公司/青马别墅空间设计
Design company | Qing Mavilla space design
全案设计/梁丽辉设计团队
Whole case design | Li-hui liang design team
大客户经理/王蒙
Key Account Manager| Wangmeng
工程管家/刘强
Project Manager| Liu qiang
全案产品/
大金,宾图,欧派,LD 瓷砖等
Whole case products|
Dajin, bintu, oupai, LD tiles, etc
本案曲江大城上叠户型,设计师梁丽辉依据户型优势及业主生活习惯,将动静分区完美规划。以现代简约的手法,呈现了一个高端精雅且极具人文精神的空间。
以工艺、材质、陈设及色彩,实现空间的人文意境美,酿就一场诗意的梦境。
In this case, there are multiple house types in Qujiang city. The designer Liang Lihui perfectly planned the dynamic and static zoning according to the house type advantages and the owner’s living habits. With modern and simple techniques, it presents a high-end refined and elegant space with great humanistic spirit. With technology, material, furnishings and color, realize the humanistic artistic conception beauty of space and brew a poetic dream.
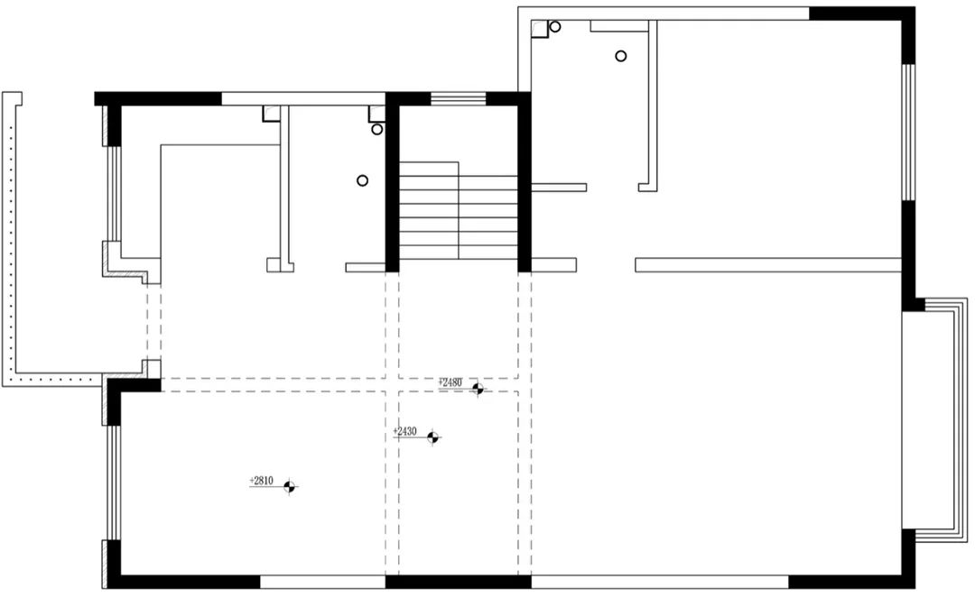
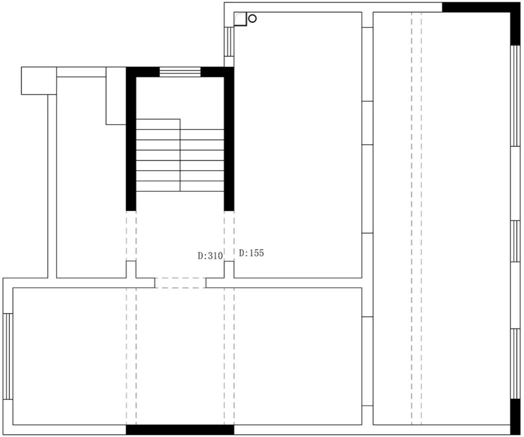
户型分析|House type analysis
▼ 1 层
原始结构
▼1 层
设计布局
▼2 层
原始结构
▼2 层
设计布局
▼ 3 层
原始结构
▼ 3 层
设计布局
△
210 平上叠户型,南北通透,采光很好,阳台较多,给室内拓展增加很多。屋顶有露台可改造加以利用。但其卧室房间面积都不大。后期改造,将居住区都放在 2 层,增加了洗衣房功能,更加便利。
△
210 flat top stacked house type, transparent from north to south, good daylighting, more balconies, which adds a lot to the indoor expansion. There is a terrace on the roof that can be transformed and used. But their bedrooms and rooms are not large. In the later stage, the residential areas are placed on the second floor, which increases the function of laundry and is more convenient.
设计方案
design scheme
曲江大城凝大气之美,心宽智远。得地利人和,匠心独运,且无独有偶,并肩昆明池,携手古都,致敬千年。此套上叠整体空间视觉呈恢弘大气之感,金属元素插穿,灵动悠然赋予其一种感性气韵,调和出别样的空间魅力。
Qujiang City condenses the beauty of atmosphere, with a wide heart and far wisdom. It is unique to have a favorable place and a harmonious people. We stand side by side in Kunming pool and join hands with the ancient capital to pay tribute to the millennium. The overall space vision of this set is grand and atmospheric. The metal elements are inserted, flexible and leisurely, giving it a perceptual charm and harmonizing a different kind of space charm.
客餐厅空间通透而明亮,低调温暖的深木色,点缀优雅的孔雀蓝座椅,组合出空间舒然而悠闲的氛围感。视觉纵向延伸的空间里,环状灯跃然空间韵律,从细节处表达展现设计的精雅。The guest restaurant space is transparent and bright, with low-key and warm dark wood color and elegant peacock blue seats, which combine the comfortable but leisurely atmosphere of the space. In the space of visual vertical extension, the ring lamp leaps to the rhythm of the space, expressing the elegance of the design from the details.
茶室空间,从骨子里透出一股“闲逸”的气质。以“一茶一园、一汤一色、一宅一瓦”将慢生活糅入空间的格局,简洁的笔触切割,木与瓦装饰,一方水景唤醒关于东方美学的无限遐想,茶香袅袅,日子安然。
The teahouse space shows a "leisure" temperament from the bone. With "one tea, one garden, one soup, one color, one house and one tile", the slow life is integrated into the pattern of space. With simple brush cutting and wood and tile decoration, a waterscape awakens the infinite reverie about Oriental Aesthetics, and the tea fragrance curls and the day is safe.
主卧空间满足居者的功能使用需求,且能让夫妻情感的共鸣长久回荡。以优雅柔和、自然时尚为设计主线,写意与留白的手法形成内敛而温情的意境。灰阶床品与肌理地毯,彰显出端雅而精奢的质感。
The master bedroom space can not only meet the functional use needs of residents, but also make the emotional resonance of husband and wife reverberate for a long time. With elegance, softness, nature and fashion as the main design line, freehand brushwork and white space form an introverted and warm artistic conception. Gray scale bedding and texture carpet show elegant and luxurious texture.
南向女儿房以生动温馨的氛围装点童话梦境,自然逸趣的粉色火烈鸟,胭脂红陈列艺术品的展示柜,唯美花环创意吊灯,软萌可爱的小摆件,一个有活力的温馨空间由此产生,精心呵护柔软的少女心。
The south facing daughter’s room decorates fairy tales and dreams with a vivid and warm atmosphere, natural and interesting pink flamingos, rouge display cabinets for displaying works of art, aesthetic wreaths, creative chandeliers, soft and cute small ornaments, resulting in a dynamic and warm space to take good care of the soft little girl’s heart.
北向的男孩房在简约的空间格调中,以夜空蓝色作为点缀,利用颜色之间的对比与反差,在一片淡雅的灰白基底空间里,营造生动趣意空间场景,为想象插上徜徉的翅膀,有爱陪伴自由成长。
In the simple space style, the boy’s room in the north is decorated with the night sky blue, and uses the contrast and contrast between colors to create a vivid and interesting space scene in an elegant gray base space, insert wandering wings for imagination, and grow freely with love.
本案设计师 Designer of this case
设计师:梁丽辉
Designer/Li-hui liang
梁丽辉
青马设计主创设计师
毕业于西安建筑科技大学
室内装饰行业从业 16 年以上,专属大宅全案设计
资质| Qualifications
中国室内装饰协会注册设计师
理念 | Idea
设计不是一种技能,而是一种感悟
殊荣 | Award
2008 年荣获中联阿姆瑞特杯室内设计优秀奖
2012 年荣获风尚杯优秀作品奖
2015 年荣获京瓷杯新中式设计大赛网络人气优秀奖
案例 |Case
曲江香都、逸翠园、绿地城、蔷薇溪谷、巴塞阳光、曲江大城、河与墅、科为城墅、曲江风景线、龙湖香醍国际、龙湖花千树、海珀香庭等西安大户型私宅项目......
设计师作品链接:
青馬作品 | 融创桃源府 200㎡ 合院 新中式 诗意画境 / 梁丽辉
青馬作品 | 曲江大城 · 220㎡顶复 法式 演绎现代都市生活的浪漫格调 / 梁丽辉
青馬作品 | 紫楹台 220㎡ 三代人的独立与互融 / 梁丽辉
青馬作品 | 科为城墅 · 下叠 230㎡ 美式轻奢 繁花里的静简清欢 / 梁丽辉
青馬作品丨动静分离 · 自成一派的理想生活 600㎡ 绿地海珀紫庭/梁丽辉
青馬作品 | 梁丽辉:心之所向皆为家,340㎡新中式中下叠别墅
点击图片
了解更多案例丨人物丨作品
关于青马
青马设计是由 2004 年成立的 V6 大宅设计空间蜕变而成,经过不断的淬炼升级与创新融合,打破以往客户服务的常规局限,构建全新的大宅别墅全案设计和整装服务平台,服务对象涵盖精英人士和高端客户,提供大宅别墅装饰的整体规划设计与施工、设备、主材、家具、配饰软装等私属定制服务。
青马设计集结行业内经验丰富的设计大咖、大客户经理、工程大管家、优秀的工程项目经理打造的“大宅别墅工程”管理体系,“多对一”式的整装服务系统,在行业里形成独特 TSING HORSE 系风格的青马设计范式。青马设计不仅是装修服务的提供商,更是大宅别墅生活方式的服务商。青马 - 成就别墅生活。
Qing Ma Design is transformed from the V6 mansion design space established in 2004, through continuous hardening, upgrading and innovation, breaking the conventional limitations of previous customer service, and building a brand-new mansion villa whole-case design and integration service platform. The service object covers elites and high-end customers, providing private customized services such as overall planning, design and construction, equipment, main materials, furniture, accessories and soft equipment for the decoration of the mansion and villa.
Building a "big horse style" project manager with rich experience in the "big horse style" project management system in the "big horse style" villa design industry. Qingma design is not only a decoration service provider, but also a service provider of the lifestyle of big houses and villas. Qingma - achieve villa life.
-End-
生活的格调
就是一个人对自我独特的定义
是生活,是艺术
而家
就是格调的终极表现
青马,只想给你一个格调家
客服
消息
收藏
下载
最近





















