查看完整案例

收藏

下载
最新案例
Latest cases
项目信息|Project information
项目地址 |融创揽月府
Project address |Rongchuang Yuefu
建筑户型 |合院
Project address |Courtyard
施工面积 |380 平方米
Construction area |380㎡
设计风格 |现代侘寂
Design style|Modern silence
设计公司 |青马别墅空间设计
Design company | Qing Mavilla space design
全案设计 | 赵志远设计团队
Whole case design | Zhi-yuan zhao design team
大客户经理 | 王楠
Key Account Manager| Wang nan
工程管家| 刘鑫
Project Manager|Liu xin
全案产品/金意陶、高仪、欧派、大木定制、老板电器等
Whole case products|Jinyitao, Gaoyi, oupai,Damucustomized, boss appliances
本案
融创揽月府
合院,本案的业主,是俩位旅游达人,酒店控,喜欢自然,崇尚简单,返璞归真的生活方式。设计师赵志远以现代侘寂风格呈现,采用柔和的中性色调和材料,充分利用空间,创造了一个开放、舒适和温暖的家。
This case to create a monthly house, the owner of this case, is two tourists, hotel control, like nature, advocating simple, return to the true way of life. Presented in a modern, quiet style, designer Zhao Zhiyuan makes the most of the space with soft neutral tones and materials, creating an open, comfortable and warm home.
户型分析|House type analysis
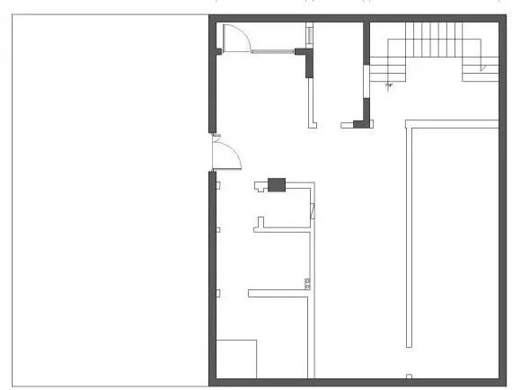
▼-1 层原始结构图
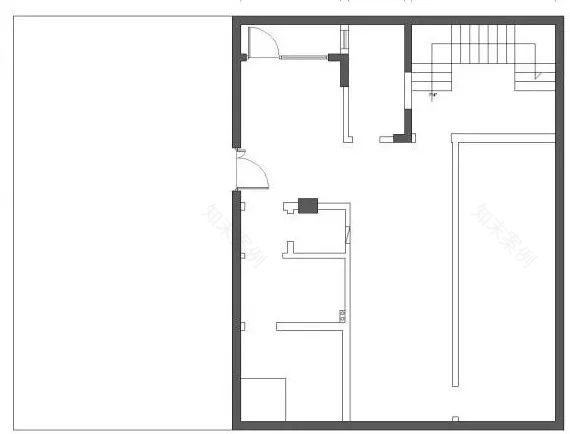
▼ -1 层设计布局图
▼ 夹层设计布局图
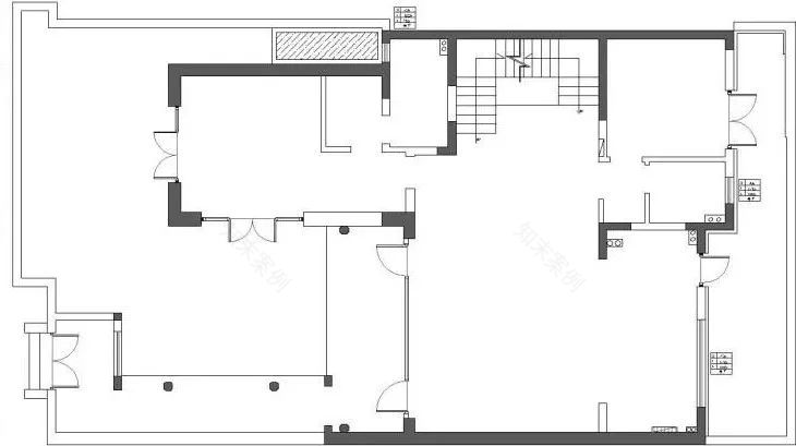
▼1 层原始结构图
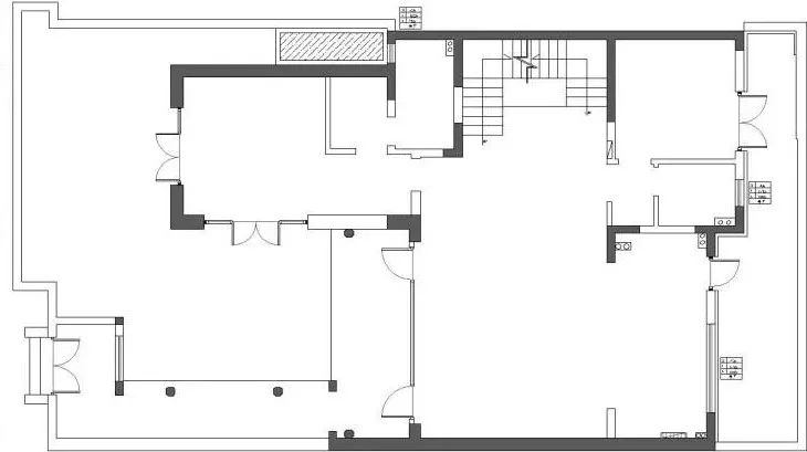
▼ 1 层设计布局图
▼2 层原始结构图
▼ 2 层设计布局图
△通过对原始户型的空间整理,调整了一楼的客厅和餐厅的位置关系,重新定义了采光位置,将原本的北花园从室外引入室内,并且进行了大胆的拆改和搭建等,让事物回归本源,保持空间最原始的纯净状态。给业主营造出一种更加沉静的生活方式。
Through the original household type of space finishing, adjust the first floor of the living room and dining room location, redefine the lighting location, the original north garden from the outside into the interior, and carried out a bold demolition and construction, so that things return to the source, to maintain the most primitive pure state of space. Create a more quiet lifestyle for owners.
设计方案
design scheme
一方天地,快慢有度,动静皆然。质朴的墙灰水泥、极致的家具布置、编织地毯和点缀的绿植,贯穿整个空间,营造出令人安心的起居空间,定义了美学。沐浴在时间光泽下,简洁安静中质朴的美。
One side of the world, fast and slow, both dynamic and static. The simple wall gray cement, extreme furniture layout, woven carpet and dotted green plants run through the whole space, create a reassuring living space and define aesthetics. Bathed in the luster of time, it is simple and quiet.
整体色彩营造出一种穿越森林本身的感觉。单色地毯在房间内营造出清新感,抵消了自然构成。现代感体现在整洁的现代座椅和时尚的靠垫中。摒弃过多繁杂与奢华,用简单的材料,较少的雕琢,将陈展架的装饰感弱化和消减,实现有效的功能性家居。简约大气又不失典雅、清新开阔。
The overall color creates a feeling of going through the forest itself. The monochrome carpet creates a fresh feeling in the room and offsets the natural composition. Modern feel is now in the neat modern seats and fashionable cushions. Abandon too much complexity and luxury, use simple materials and less carving, weaken and reduce the decorative sense of the old exhibition rack, and realize an effective functional home. Simple atmosphere without losing elegance, fresh and open.
在视野开阔的空间里,模块化的收纳柜体打破了平面的单一格局,原木色地板铺垫出温雅的自然情调,以质感金属周边的衣柜自带年轻与摩登个性,结合着通透的玻璃饰面,将侘寂的情调缓缓延伸。
In the open space, modular filing cabinet body broke the single pattern of the plane, the original wood-colored floor laid out the elegant natural mood, with textured metal surrounding the wardrobe comes with young and modern personality, combined with permeable glass finish, will be the city’s light luxury slowly extended.
无论是对于哪个功能区域,通过巧妙的设计,都将充足的光线和充分的气流引入,每个空间的价值感都得以提升,使室内呈现出多个既独立又相互联通的品质空间。每一个角落的连接处又颇费心思地进行较好的过渡,用艺术雕塑和绿植作为空间的情感线,充分贯通每一个质感空间。
No matter which functional area, through ingenious design, sufficient light and sufficient air flow are introduced, and the sense of value of each space is improved, so that the interior presents multiple independent and interconnected quality spaces. The connection of each corner takes great pains to make a better transition, and takes artistic sculpture and green plants as the emotional line of the space to fully connect each texture space.
通过对空间的梳理,重新定义了客厅和餐厅的位置,极大的解放了客厅空间。在这里,无论是色调、材质还是手法,剥离了繁华富贵的视觉表现,突出空间整体概念,创造一个纯净无染的空间。
Through the combing of space, redefined the location of the living room and dining room, greatly liberated the living room space, where whether it is tone, material or method, stripped of the bustling rich visual performance, highlighting the overall concept of space, to create a pure and spotless space.
厨房和餐厅被改造成开放而明亮的生活空间,北花园将自然的气息尽然 引入,使得居者可以置身于繁华之中,仍能与自然为伴。有一张宽敞的餐桌和一个以石材元素的操作台区,物品巧妙隐藏让空间简洁干净。简约的空间留给生活更多机会,去打造属于自己的趣味小天地。
The kitchen and restaurant were transformed into an open and bright living space, and the North Garden introduced the natural atmosphere. So that the residents can stay in the prosperity and still be accompanied by nature.
There is a spacious dining table and a console area with stone elements. The items are cleverly hidden to make the space simple and clean. Simple space leaves more opportunities for life to create their own interesting world.
一盏茶壶、几缕香薰,一间素净的茶室,为生活平添了许多悠闲和禅意。在茶室里,可体会白居易“无由持一碗,寄与爱茶人”的洒脱,亦能重温纳兰性德“被酒莫惊春睡重,赌书消得泼茶香”的自在。
A teapot, a few strands of aromatherapy, a clean tea room, for life added a lot of leisure and Zen. In the tea room, you can experience the white house easy "no way to hold a bowl, send with love tea people" sprinkling, but also to relive the Naran sex "by the wine to sleep heavily, gambling books to spend tea incense" at ease.
一楼卧室中的床品选配注重材质的肌理感和纹理性,可以更好地贴近本色。壁橱柜门的设计别具一格,圆和方的形状加以木色的结合,尽显朦胧美和质朴感。
The first floor bedroom bed selection pay attention to the texture and texture of the material, can be better close to the original color.
The design of the closet door is unique, the shape of the circle and square to be a combination of wood color, showing a hazy beauty and rustic feeling.
二楼卧室既延续其他空间的调性,又有自己的特点,大面的落地窗可以和外界进行多视野的互动。利用起原有的建筑屋顶,富有设计感的暗藏灯带,增加了空间的层次感与灵动性。床尾放置了一套休闲的双人沙发,与整个空间相呼应,温馨而不单调。
The bedroom on the second floor not only continues the tonality of other spaces, but also has its own characteristics. The large floor to ceiling window can interact with the outside world from multiple perspectives. Using the original building roof and the hidden lamp belt with a sense of design, the sense of hierarchy and flexibility of the space are increased. A set of leisure double sofa is placed at the end of the bed, which echoes with the whole space, warm but not monotonous.
主卫空间功能齐全,梳妆台、置物台和其他干湿区各为独立,大面积的镜面打造了一个通透的空间。既满足多重使用需求,又能在无形中提升空间的利用价值。
The main bathroom space has complete functions. The dressing table, storage table and other dry and wet areas are independent. The large mirror creates a transparent space. It can not only meet multiple use needs, but also improve the utilization value of space.
暖黄色的基调在卧室空间中晕染开来,当户外光线透过玻璃窗进入室内,原木色的木地板、灰色的床品、纱质窗帘在徐徐飘动,光与影在纹理之间的凹凸缝隙彼此交织,肌理捕捉时光的印迹,讲述一个有温度的居住空间。
The warm yellow tone is dyed out in the bedroom space, when the outdoor light enters the room through the glass window, the wood floor, the gray window, the yarn curtains fluttering slowly, the bumpy gap between the light and shadow between the texture interwoven, the texture captures the imprint of time, tells the story of a temperature living space.
本案设计师
Designer of this case
设计师:赵志远
Designer/Zhi-yuan zhao
赵志远
青马设计主创设计师
毕业于西安美术学院环艺系
室内装饰行业从业 16 年以上,专属大宅全案设计
资质|Qualifications
中国室内装饰协会注册设计师
研修于日本东京艺术大学
理念|Idea
设计理念上的创新,能够让人们重新思考生活的可能性和生活的意义,并进而促进更高的社会价值!
案例|Case
丹轩梓园顶复、逸翠园御玺别墅、海珀香庭、鸿基紫韵、湖城大境、绿地城、永和坊、华侨城天鹅堡、就掌灯、曲池坊等西安大户型私宅项目。
设计师作品链接:
青馬作品 | 海珀香庭 · 245㎡ 平层 现代 描摹理想之家 / 赵志远
青馬作品 | 逸翠园四期 · 280㎡复式 现代 理想生活的心之所向 / 赵志远
青馬作品 | 南湖玖号院 240㎡ 现代 寻一隅静谧 / 赵志远
青马作品丨龙湖花千树· 极简 ·爱的成长与蔓延 320㎡/赵志远作品
关于青马
About Qing Ma
青马设计是由 2004 年成立的 V6 大宅设计空间蜕变而成,经过不断的淬炼升级与创新融合,打破以往客户服务的常规局限,构建全新的大宅别墅全案设计和整装服务平台,服务对象涵盖精英人士和高端客户,提供大宅别墅装饰的整体规划设计与施工、设备、主材、家具、配饰软装等私属定制服务。
青马设计集结行业内经验丰富的设计大咖、大客户经理、工程大管家、优秀的工程项目经理打造的“大宅别墅工程”管理体系,“多对一”式的整装服务系统,在行业里形成独特 TSING HORSE 系风格的青马设计范式。青马设计不仅是装修服务的提供商,更是大宅别墅生活方式的服务商。青马 - 成就别墅生活。
Qing Ma Design is transformed from the V6 mansion design space established in 2004, through continuous hardening, upgrading and innovation, breaking the conventional limitations of previous customer service, and building a brand-new mansion villa whole-case design and integration service platform. The service object covers elites and high-end customers, providing private customized services such as overall planning, design and construction, equipment, main materials, furniture, accessories and soft equipment for the decoration of the mansion and villa.
Building a "big horse style" project manager with rich experience in the "big horse style" project management system in the "big horse style" villa design industry. Qingma design is not only a decoration service provider, but also a service provider of the lifestyle of big houses and villas. Qingma - achieve villa life.
-END-
生活的格调
就是一个人对自我独特的定义
是生活,是艺术
而家
就是格调的终极表现
青马,只想给你一个格调家
客服
消息
收藏
下载
最近

































