查看完整案例

收藏

下载
最新案例
Latest cases
项目信息|Project information
项目地址/振业泊墅
Project address |Zhenye boshu
建筑户型/顶跃
Project address |Top jump
施工面积/360 平方米
Construction area | 360㎡
设计风格/简约新中式
Design style|Simple new Chinese style
设计公司/青马别墅空间设计
Design company | Qing Mavilla space design
全案设计/马涛设计团队
Whole case design | Ma taodesign team
大客户经理/邢阳
Key Account Manager| Xing yang
工程管家/韩淋
Project Manager| Han lin
全案产品/
LD 陶瓷、集美科地暖、杜拉维特洁具、松下空调新风净水 、宾图整木定制、老板电器、得高进口木地板等
Whole case products|LD ceramics, jimeike floor heating, Duravit sanitary ware, Panasonic air conditioning fresh air and water purification, bintu whole wood customization, boss electrical appliances, Degao imported wood flooring, etc
本案
振业泊墅
顶跃户型,业主是一对老夫妻,节假日儿孙会居住在这。
设计师马涛及其设计团队与业主经过充分的沟通,对其喜好及日常生活习惯做以了解,以简约新中式的手法演绎纯粹之美,对空间重新规划,让老年人享受其乐融融的闲适时光。
The top jump house type of Zhenye Park Villa in this case, The owner is an old couple. Children and grandchildren will live here on holidays. Designer Ma Tao and his design team have fully communicated with the owner to understand his preferences and daily living habits, deduce the pure beauty with simple new Chinese style, and re plan the space, so that the elderly can enjoy their happy leisure time.
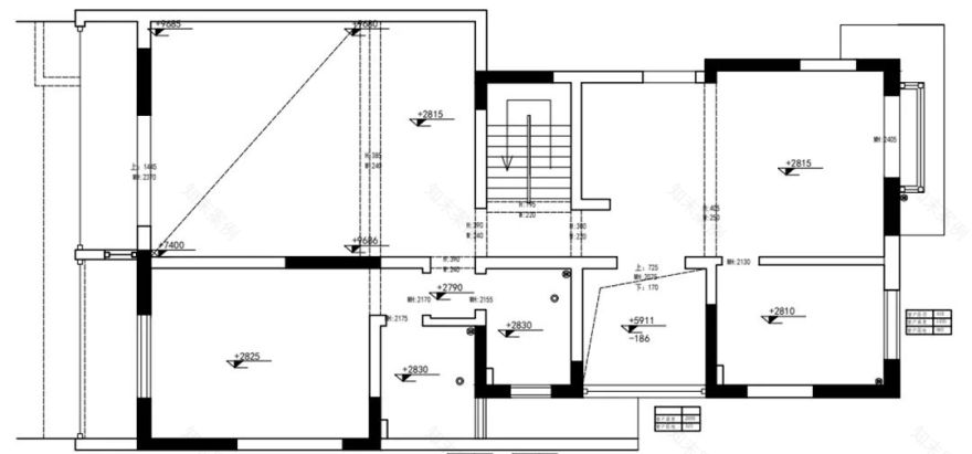
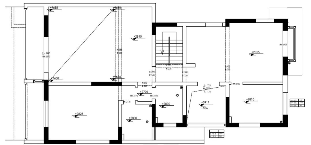
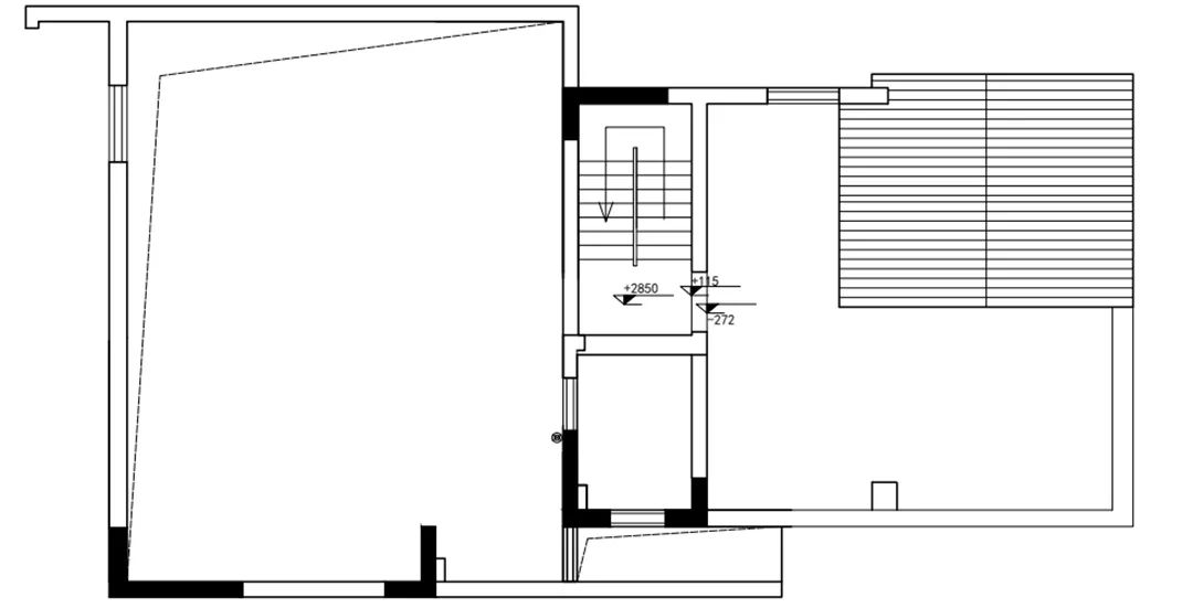
户型分析|House type analysis
▼ -1 层
原始结构
▼ -
1 层
设计布局
▼ 1 层
原始结构
▼ 1 层
设计布局
▼ 2 层
原始结构
▼ 2 层设计布局
▼ 3 层
原始结构
▼ 3 层设计布局
△360 平顶跃户型,南北通透,通风采光很好,一二楼主卧室房间面积宽敞好利用。三楼带露台,户外活动空间充足,每层都有单独的南北阳台。但其原结构没有电梯结构设计,对于老年人上下楼行动有障碍。从新规划楼梯位置,考虑电梯位置。空间格局基于平层户型设计,各个功能配房面积配比不合理,需要重新规划。
360 top jump house type with transparent north and south, good ventilation and daylighting. The main bedroom on the first and second floor is spacious and easy to use. The third floor has a terrace, with sufficient outdoor activity space, and each floor has a separate north-south balcony. However, its original structure has no elevator structure design, which has obstacles for the elderly to go upstairs and downstairs.
From the new planning of stair location, considering the spatial pattern of elevator location, the area ratio of each functional allocation room is unreasonable based on the flat floor house type design, so it needs to be re planned.
设计方案
入户门厅恬静生活,构建了归家的情怀及闲适时光。悬挑的玄关柜安放创意摆件,镂空的墙体以盎然绿植造景。任何一个不经意的细节都是透过独立思考和独到审美得出的结论。静默间,空间语境与气质婉约流转。
The quiet life in the entrance hall constructs the feeling of returning home and leisure time. The cantilevered porch cabinet is equipped with creative ornaments, and the hollowed out wall is made of green plants. Any casual detail is a conclusion drawn through independent thinking and unique aesthetics. In silence, the spatial context and temperament} flow gracefully.
高挑空的客厅透着疏朗的明媚,以胡桃木色为主色调,配以橙黄点缀色,简洁大方的同时不失家庭的温馨感。在材质的选用上以环保壁布和木色墙板为主,局部穿插高质感金属线条,博观雅致,格调谦和。
The tall and empty living room is bright and clear, with walnut color as the main color, with orange dotted color. It is simple and generous without losing the warmth of the family. In terms of material selection, environmental protection wall cloth and wood color wallboard are mainly used, and high texture metal lines are interspersed locally, which is broad, elegant and modest.
餐厅延续主风格,以简洁柔和的中性色为基调,局部点缀高贵的孔雀蓝,通过绒面暗雅的色相过度、自然的融合渗透,把轻快的氛围融入情景之中,创造出独特的审美,传递着当代东方美学的安然。圆桌的圆满围合一家人用餐的欢愉时刻。
The restaurant continues the main style, with simple and soft neutral color as the tone, and locally decorated with noble peacock blue. Through the excessive and natural integration and penetration of dark and elegant hue of suede, the restaurant integrates the light atmosphere into the scene, creating a unique aesthetics, convey the peace of contemporary Oriental Aesthetics and the complete round table, which is a happy moment for a family to eat.
把原有楼梯的位置做了调整,改为电梯井,为电梯的安装留足充足的空间,使得后期的电梯门开度可以达到 800 毫米左右,无障碍通行。
空间
整体使用智能灯光,对讲,安防设计,为老人的生活提供更多便利。
The position of the original stairs has been adjusted and changed into an elevator shaft to leave enough space for the installation of the elevator, so that the opening of the elevator door in the later stage can reach about 800mm and pass without obstacles. The whole space uses intelligent lighting, intercom and security design to provide more convenience for the life of the elderly.
二层将一个狭窄的露台扩大加长,增加采光和活动的空间,使得主卧室有更大的采光通风面。简洁大方的格调,功能配套齐全,具有独立的衣帽柜,保留浴缸,且有休闲的阳台。
从雅致、空灵切入,追求一种静谧、生态、淡雅脱俗的意境,享受自然、陶冶身心。
On the second floor, a narrow terrace is extended to increase the space for daylighting and activities, so that the main bedroom has a larger daylighting and ventilation surface. Simple and generous style, complete functions, independent wardrobe, reserved bathtub and leisure balcony. Starting from elegance and ethereal, we pursue a quiet, ecological, elegant and refined artistic conception, enjoy nature and cultivate our body and mind.
本案设计师
Designer of this case
设计师:马涛
Designer/Ma tao
马涛
青马设计主创设计师
毕业于西安理工大学建筑系
室内装饰行业从业 15 年以上,专属大宅全案设计
理念|Idea
我们设计的真正目的,是透过创意和点子,为每一位业主用心营造灵性的空间,舒适的维度,用最简练的手法表达最丰富的情感;以人为本,设计只是美好生活的开始……
殊荣|Award
2014 年陕西省创意空间设计交流会最佳环保理念奖
2016 年西安市金地家居设计最佳创意奖
2018 年第二届中国建筑协会大奖赛室内设计精英设计师
2019 红棉中国设计奖杰出设计师
2020 荣获陕西省家庭装饰委员会颁发“最佳设计师”称号
案例|Case
浐灞半岛,金地湖城大境四号地,天字壹号,八号地,湖滨花园别墅区,就掌灯,诺丁山,曲江公馆,曲江香都,上元郡,紫汀苑……
设计师作品链接:
青馬作品|振业泊墅 260㎡复式简约新中式淳朴自然乐享天伦/马涛
点击图片
了解更多案例丨人物丨作品
关于青马
青马设计是由 2004 年成立的 V6 大宅设计空间蜕变而成,经过不断的淬炼升级与创新融合,打破以往客户服务的常规局限,构建全新的大宅别墅全案设计和整装服务平台,服务对象涵盖精英人士和高端客户,提供大宅别墅装饰的整体规划设计与施工、设备、主材、家具、配饰软装等私属定制服务。
青马设计集结行业内经验丰富的设计大咖、大客户经理、工程大管家、优秀的工程项目经理打造的“大宅别墅工程”管理体系,“多对一”式的整装服务系统,在行业里形成独特 TSING HORSE 系风格的青马设计范式。青马设计不仅是装修服务的提供商,更是大宅别墅生活方式的服务商。青马 - 成就别墅生活。
Qing Ma Design is transformed from the V6 mansion design space established in 2004, through continuous hardening, upgrading and innovation, breaking the conventional limitations of previous customer service, and building a brand-new mansion villa whole-case design and integration service platform. The service object covers elites and high-end customers, providing private customized services such as overall planning, design and construction, equipment, main materials, furniture, accessories and soft equipment for the decoration of the mansion and villa.
Building a "big horse style" project manager with rich experience in the "big horse style" project management system in the "big horse style" villa design industry. Qingma design is not only a decoration service provider, but also a service provider of the lifestyle of big houses and villas. Qingma - achieve villa life.
-END-
生活的格调
就是一个人对自我独特的定义
是生活,是艺术
而家
就是格调的终极表现
青马,只想给你一个格调家
客服
消息
收藏
下载
最近






















