查看完整案例

收藏

下载
最新案例
Latest cases
项目信息|Project information
项目地址/塔子山壹号
Project address |Tazishan 1
建筑户型/中叠
Project address | Middle stack
施工面积/210 平方米
Construction area | 210㎡
设计风格/现代
Design style|Modern
设计公司/青马别墅空间设计
Design company | Qing Mavilla space design
全案设计/陈哲梧设计团队
Whole case design | Zhe-wu chendesign team
大客户经理/陈茜羽
Key Account Manager| Xi-yu chen
工程管家/刘鑫
Project Manager|Liu xin
全案产品/华艺石材,得高木地板,唐华智能,富士通空调、怡口净水、林内热水、博世电器、美标淋浴房、图森木作,高仪洁具等
Whole case products| Huayi stone, high wood floor, Tanghua intelligence, Fujitsu air conditioning, Yikou water purification, forest hot water, Bosch electric appliance, American standard shower room, Tucson woodwork, Gaoyi sanitary ware, etc.
本案塔子山壹号中叠户型,业主为四口之家,老人偶尔来住,设计要满足家庭成员需求。设计师陈哲梧以简单明快的色调搭配,深受男女业主的喜欢,整体色调呈暖色,棕色加以点缀,沉稳中洋溢着活泼。
大面积的白色和灰色,让居住者用生活的丰盈去填满。
In this case, the owner of Tazishan No. 1 middle stacked house is a family of four. The elderly occasionally come to live. The design should meet the needs of family members. Designer Chen Zhewu is deeply loved by male and female owners with simple and lively colors. The overall color is warm, dotted with brown, calm and lively. A large area of white and gray let residents fill it with life.
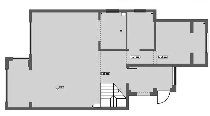
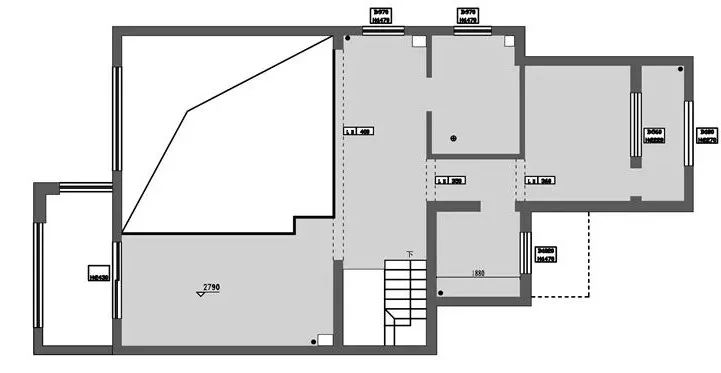
户型分析|House type analysis
▼ 1 层
原始结构
▼1 层
设计布局
▼2 层
原始结构
▼2 层
设计布局
△210 平的中叠户型,功能齐全,采光较好,南北通透,利用率较高。但其客餐厅空间较小,通道较小。二楼小孩卫生间是暗卫且面积小。两个孩子对空间诉求较多,且需有独立书房。
The 210 flat medium stacked house has complete functions, good daylighting, transparent north and south, and high utilization rate. However, its guest restaurant has small space and small channel. The children’s bathroom on the second floor is dark and small. The two children have more demands for space and need an independent study.
设计方案
design scheme
家就是一方让时光暂时悬停,人们可以恣意游弋的所在。
入户的玄关用温润木质悬挑并延伸,指引人的行为动线,在空间规划上不刻意设定用途,尽可能扩大公共空间,用空间作为介质,传递给居者尊享的态度,丰富生活的每一个起居日常。
Home is a place where time hovers temporarily and people can cruise freely. The entrance porch is overhanging and extending with warm and moist wood to guide people’s behavior. It does not deliberately set purposes in space planning, expand public space as much as possible, and use space as a medium to convey the residents’ attitude of enjoyment, so as to enrich every daily life of life.
公区在通透明朗的视觉下,尽可能传达简洁、开放的包容感。
岩板电视背景墙大气留白,舒适的 miontti 沙发,一字三人位预留动线通道,舒适的线条单椅,安放在壁炉旁,描绘出家人畅谈的亲密时光。
Under the transparent and clear vision, the public area conveys a simple and open sense of tolerance as much as possible. The rock board TV background wall is left blank, the comfortable miontti sofa, the reserved moving line channel for three people in one word, and the comfortable line single chair are placed next to the fireplace, depicting the intimate time of family talk.
餐厨区域以米色、茶白等饱和度偏低的色彩为主,点缀温暖的深棕色,延续主体风格打造净素而充满细节的美食品赏空间。导台与餐桌巧妙的链接在一起,多了互动的氛围。在这里,有香浓的烟火,亦有相伴的温情。
The kitchen area is mainly beige, tea white and other colors with low saturation, dotted with warm dark brown, continuing the main style to create a pure and detailed food appreciation space. The guide desk and the dining table are cleverly linked together, creating a more interactive atmosphere. Here, there are fragrant fireworks and accompanying warmth.
主卧合理规划空间,让出衣帽间与让更全面的配套服务提升品质生活。兼具美学格调与实用功能,构建贯通现代生活的私密空间,简洁明快的金属线条嵌入各个角落,保持空间不同维度上的和谐统一。舒适的配色享受一刻平淡简朴之美,熨帖屋主安居其中的情绪,适意又放松。The master bedroom reasonably plans the space, leaving out the cloakroom and more comprehensive supporting services to improve the quality of life. It has both aesthetic style and practical function to build a private space through modern life. Simple and lively metal lines are embedded in every corner to maintain the harmony and unity of different dimensions of the space. Comfortable color matching, enjoy a moment of plain and simple beauty, ironing the mood of the homeowner to live in it, comfortable and relaxed.
朝向很好的卧室给了两位公主,清爽薄荷绿与高级灰的配色,增加一些别样设计,即可营造温馨静谧又恬淡的氛围。萌软的粉黄组合,既治愈又梦幻,重拾自然无间的本真生活,静静地守护着女孩的秘密心思。
The two princesses are given a good bedroom. The color matching of refreshing mint green and high-grade gray can create a warm, quiet and tranquil atmosphere by adding some different designs. The cute and soft pink and yellow combination is both healing and dreamy, regain the natural and real life, and quietly guard the girl’s Secret mind.
在一楼的空间,为家中偶尔来小住的老人预备一间稳重舒适的卧室。在这里,有细致入微的呵护,也有一气呵成的舒畅,大地系配色让情绪可以恣意随适,如同徜徉山水般自在安然。
In the space on the first floor, a stable and comfortable bedroom is prepared for the elderly who occasionally come to live at home. Here, there are meticulous care and comfort at one go. The earth color matching allows the mood to be free and comfortable, just like wandering in the mountains and rivers.
本案设计师
Designer of this case
设计师:陈哲梧
Designer/Zhe-wu chen
陈哲梧
青马设计主创设计师
毕业于清华大学美术学院高研班
室内装饰行业从业 17 年以上,专属大宅全案设计
资质|Qualifications
国家高级注册室内设计师
中国建筑装饰协会西安分会会员
IFDA 国际室内装饰设计协会注册高级室内设计师
理念|Idea
推敲生活,推敲空间,适度设计,量身打造
殊荣|Award
筑巢奖铜奖
风尚杯优秀作品奖
京瓷杯新中式设计大赛网络人气优秀奖
西安焦点家居网设计论坛版主
获得威能杯中国室内设计明星大赛西安赛区优秀奖
上海《设计家》杂志人物访谈设计师
西安市家庭装饰协会 TOP50 强
全国焦点网明星设计师 100 强
全国首批优秀人才模范勋章和设计行业研究员证书
中国国际空间环境艺术设计大赛铜奖
中联阿姆瑞特杯陕西原创大赛优秀奖
中国原点国际家居文化节优秀奖
案例|Case
工装:宝鸡澳门德兴火锅店旗舰店、大丰国际售楼部、观澜天下售楼部及样板间、上海中楷实业总部、西安都市之门 D 座茶楼、西安赛高城市广场华地房地产估价有限公司、西安绿地中心五粮液西北营销中心...
家装:西安绿地诺丁山别墅、西安尚林苑别墅、西安紫薇山庄别墅、西安绿地生态城别墅、西安溪园别墅、西安逸翠园、西安天鹅堡、成都新希望塔子山壹号、成都中海桐梓林壹号、温州中粮滨江九里...
设计师作品链接:
青馬作品|清凉山居 500㎡别墅 新中式 清雅新家写意之美/陈哲梧
点击图片
了解更多案例丨人物丨作品
关于青马
青马设计是由 2004 年成立的 V6 大宅设计空间蜕变而成,经过不断的淬炼升级与创新融合,打破以往客户服务的常规局限,构建全新的大宅别墅全案设计和整装服务平台,服务对象涵盖精英人士和高端客户,提供大宅别墅装饰的整体规划设计与施工、设备、主材、家具、配饰软装等私属定制服务。
青马设计集结行业内经验丰富的设计大咖、大客户经理、工程大管家、优秀的工程项目经理打造的“大宅别墅工程”管理体系,“多对一”式的整装服务系统,在行业里形成独特 TSING HORSE 系风格的青马设计范式。青马设计不仅是装修服务的提供商,更是大宅别墅生活方式的服务商。青马 - 成就别墅生活。
Qing Ma Design is transformed from the V6 mansion design space established in 2004, through continuous hardening, upgrading and innovation, breaking the conventional limitations of previous customer service, and building a brand-new mansion villa whole-case design and integration service platform. The service object covers elites and high-end customers, providing private customized services such as overall planning, design and construction, equipment, main materials, furniture, accessories and soft equipment for the decoration of the mansion and villa.
Building a "big horse style" project manager with rich experience in the "big horse style" project management system in the "big horse style" villa design industry. Qingma design is not only a decoration service provider, but also a service provider of the lifestyle of big houses and villas. Qingma - achieve villa life.
-END-
生活的格调
就是一个人对自我独特的定义
是生活,是艺术
而家
就是格调的终极表现
青马,只想给你一个格调家
客服
消息
收藏
下载
最近





















