查看完整案例

收藏

下载
最新案例
Latest cases
项目信息|Project information
项目地址|御河上院
Project address |Yuhe upper court
建筑户型|上叠
Project address | Fold up
施工面积|268 平米
Construction area | 268㎡
设计公司|青马别墅空间设计
Design company | Qing Mavilla space design
全案设计/马斌设计团队
Whole case design | Ma bin design team
设计风格/现代 Design style|Modern
大客户经理/孙晨凯 Key Account Manager|Chen-kai sun
工程管家/韩鹏辉 Project Manager| Peng-huihan
全案产品/ LD 陶瓷、高仪洁具、大金空调、东芝电梯、迪诺德莱克整木定制 、方太电器 、菲林格尔木地板等 Whole case products|LD ceramics, Gaoyi sanitary ware, Dajin air conditioner, Toshiba Elevator, Dino drec whole wood customization, Fangtai electric appliance, filinger wood flooring, etc
本案御河上院上叠户型,三代同堂,喜欢简洁大方和空间宽敞通透的现代风格。设计师马斌对屋主的喜好及日常生活习惯深入了解和充分沟通,重新规划空间功能布局,让现代感家具赋予空间质感,与精致饰品一同化身为新艺术潮流舒适家。
In this case, Yuhe upper courtyard is a multi-family house with three generations in the same hall. He likes the modern style of simplicity and generosity and spacious and transparent space. Designer Ma Bin deeply understands and fully communicates with the owner’s preferences and daily living habits, re-plans the spatial functional layout, endows modern furniture with spatial texture, and incarnates into a new art trend comfortable home together with exquisite accessories.
户型分析|House type analysis
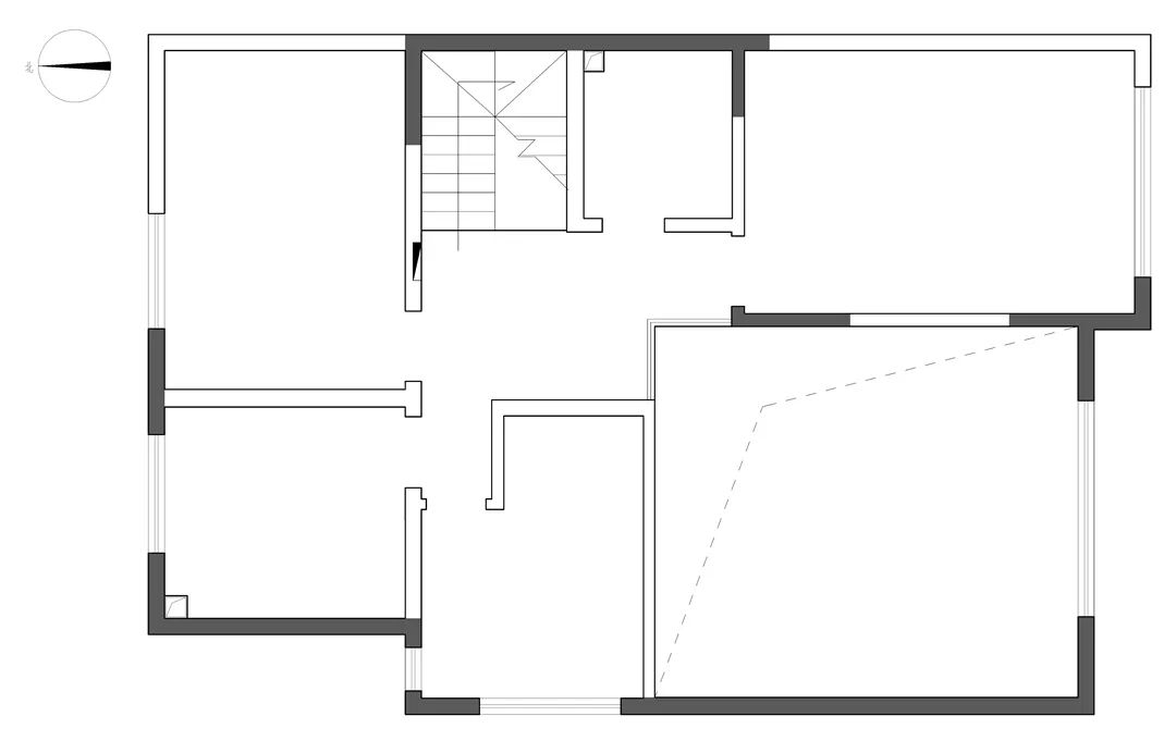
▼ 一层
原始结构
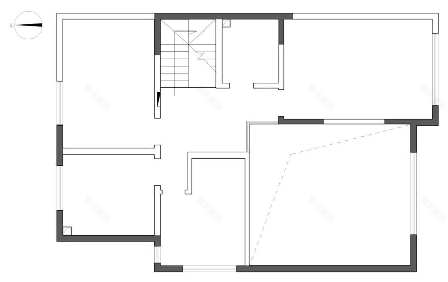
▼ 一层设计布局
▼ 二层
原始结构
▼ 二层设计布局
▼ 三层
原始结构
▼ 三层设计布局
△
原始结构
南北通透,通风、采光良好,户型较为方正。但其门厅面积过大,导致厨房有些局促。没有电梯井道,且楼梯间尺寸较小,增加电梯会导致楼梯过于狭小。主入户门正对一楼卧室门,缺少卧室私密性。二层卧室实用面积对于叠拼别墅来说,较为狭小,空间匹配度不够。
The original structure is transparent from north to south, with good ventilation and daylighting, and the house type is relatively square. But its lobby area is too large, resulting in some cramped kitchen. There is no elevator shaft, and the size of the staircase is small. Increasing the elevator will lead to too narrow stairs. The main entrance door is facing the bedroom door on the first floor, lacking bedroom privacy. The practical area of the bedroom on the second floor is narrow for the stacked villa, and the space matching degree is not enough.
设计方案
design scheme
一层门厅在功能充足的情况下,缩小空间来增大厨房的空间;保留原有楼梯间,通过改造原有卫生间来解决电梯井道问题。
素净的基调下,冷静搭配渐变绿画作,又汲取童趣人物艺术装置装点,点睛之笔让归家的轻松感在此刻便释放。
When the function of the lobby on the first floor is sufficient, reduce the space to increase the space of the kitchen; Retain the original staircase and solve the problem of elevator shaft by transforming the original toilet. Under the simple and clean tone, it calmly matches the gradient green paintings, and absorbs the artistic installation decoration of children’s interesting characters. The finishing touch releases the ease of returning home at this moment.
开放的客餐厅模糊化功能界限,让空间灵活多变。关爱小朋友成长,隐藏投影幕布代替传统电视,打造书柜增添一家人学习阅读的氛围感。通过高级灰与爱马仕橙的色调变化、材质肌理间的明暗对比,让空间散发着舒适明媚的美学气质。
The open guest restaurant blurs the functional boundaries and makes the space flexible and changeable. Care for children’s growth, hide the projection screen instead of traditional TV, create a bookcase and add a sense of atmosphere for the family to learn to read. Through the color change of high-grade gray and Hermes orange and the light and dark contrast between materials and textures, the space exudes a comfortable and beautiful aesthetic temperament.
客厅区域圆弧元素的运用,让家人相处间多了温柔的气息。充满童趣的陀螺椅与优雅的绒面单椅,让这里既有岁月打磨后稳持优雅,又有现代都市赋予的精致奢华,一种由内散发的温馨,为美好生活注入满满的进取力量。
The use of circular arc elements in the living room gives the family more gentle atmosphere. The gyro chair full of childlike fun and the elegant suede single chair make it not only elegant after years of polishing, but also exquisite and luxurious given by the modern city. A warmth emanating from the inside injects full enterprising power into a better life.
厨房与餐厅位于同一区域,设计师选用夹丝玻璃打造具有通透感的空间感受。延续客厅主风格与色调,素雅配色营造原生态的空间氛围,散发出朴素自然之感。线条感十足的吊灯展现几何美感,整体场域大气而高级。
The kitchen and dining room are located in the same area. The designer selects wired glass to create a transparent space feeling. Continuing the main style and tone of the living room, simple and elegant color matching creates an original ecological space atmosphere, exudes a sense of simplicity and nature, and the chandelier with full line feeling shows geometric beauty. The overall field is atmospheric and advanced.
客厅竖条纹木饰面实则隐藏着通往老人房的玄机,打开后是一个干净而舒适的休憩空间。方便老人生活起居,选取一些稳重雅致的新中式元素点缀,丰富了空间的细节,展现卧室的生活美学。床旁边的衣柜,方便了衣物的存放与拿取,明亮的光线,带来愉悦好心情。
The vertical striped wood veneer of the living room actually hides the mystery leading to the old man’s room. After opening, it is a clean and comfortable rest space. It is convenient for the elderly to live and choose some stable and elegant new Chinese elements to decorate, enrich the details of the space and show the life aesthetics of the bedroom. The wardrobe beside the bed facilitates the storage and taking of clothes. The bright light brings a pleasant and good mood.
主卧室搭建原有客厅挑空区域,增加卧室的匹配度,在材质的选用上以乳胶漆和混油肤感漆的木作为主,局部点缀金属线条,温和大方且不会让空间沉闷。优化结构后配备衣帽间、梳妆台,让功能配套齐全生活更享舒适。
The empty area of the original living room is built in the master bedroom to increase the matching degree of the bedroom. In the selection of materials, the wood work of emulsion paint and oil skin feeling paint is mainly used, and some metal lines are dotted, which is gentle and generous and will not make the space dull. After optimizing the structure, it is equipped with cloakroom and dressing table, so that the functions are complete and the life is more comfortable.
二层设计重组空间,使得南北两间儿童房在实用面积上基本对等。清新粉嫩的色彩构成了属于孩子的妙想世界,各个角落的趣味摆件让这个私密的空间成为小小童话世界,用爱陪伴,静待花开。
The second floor design reorganizes the space, making the two children’s rooms in the north and south basically equal in practical area. The fresh, pink and tender colors constitute the wonderful world of children. The interesting decorations in all corners make this private space a small fairy tale world, accompanied by love and waiting for the flowers to bloom.
本案设计师
Designer of this case
设计师:马斌
Designer/Ma bin
马斌
青马设计主创设计师
毕业于西安美术学院
2014 年于上海同济大学深造
室内装饰行业从业 17 年以上,专属大宅全案设计
资质| Qualifications
中国建筑装饰协会注册会员室内设计师
陕西广播电视台 98.8《设计师说》栏目,特约设计师
陕西广播电视台 91.6《拜托了设计师》栏目,特约设计师
理念| Idea
室内是建筑的灵魂,是人与环境的联系,是人类艺术与物质文明的结合。
殊荣 | Award
2006 年东尚杯设计比赛入围奖
2009 年罗马里奥杯室内设计大赛“银奖”;
西安市家装委“2010 优秀室内设计师”;
2012 环保设计大赛三等奖;
2013 年筑巢杯“商品房、公寓空间方案类”优秀奖
2013 年度五星级设计师
2014 年美涂士杯环保设计精英赛二等奖
2016 年/国际空间设计大奖 艾特奖 入围奖
2018 年/国际环艺创新设计作品大赛华鼎奖 特等奖
案例|Case
兰池郡,枫丹丽舍,万科城润园,逸翠园,湖城大境,紫楹台,西派国际等。
设计师相关链接:
青馬作品 | 河与墅 · 290㎡上叠 新中式 寻一静谧处享清欢 / 马斌
青馬作品 | 蓝光公园华府 · 270㎡顶复 现代 酝酿淡爽生活 / 马斌
青馬作品 | 河与墅 · 200㎡联排 尽享平和时光 / 马斌
青馬作品 | 雅居乐御宾府 200㎡ 现代美式 明快暖心 / 马斌
点击图片
了解更多案例丨人物丨作品
关于青马
About Qing Ma
青马设计是由 2004 年成立的 V6 大宅设计空间蜕变而成,经过不断的淬炼升级与创新融合,打破以往客户服务的常规局限,构建全新的大宅别墅全案设计和整装服务平台,服务对象涵盖精英人士和高端客户,提供大宅别墅装饰的整体规划设计与施工、设备、主材、家具、配饰软装等私属定制服务。
青马设计集结行业内经验丰富的设计大咖、大客户经理、工程大管家、优秀的工程项目经理打造的“大宅别墅工程”管理体系,“多对一”式的整装服务系统,在行业里形成独特 TSING HORSE 系风格的青马设计范式。青马设计不仅是装修服务的提供商,更是大宅别墅生活方式的服务商。青马 - 成就别墅生活。
Qing Ma Design is transformed from the V6 mansion design space established in 2004, through continuous hardening, upgrading and innovation, breaking the conventional limitations of previous customer service, and building a brand-new mansion villa whole-case design and integration service platform. The service object covers elites and high-end customers, providing private customized services such as overall planning, design and construction, equipment, main materials, furniture, accessories and soft equipment for the decoration of the mansion and villa.
Building a "big horse style" project manager with rich experience in the "big horse style" project management system in the "big horse style" villa design industry. Qingma design is not only a decoration service provider, but also a service provider of the lifestyle of big houses and villas. Qingma - achieve villa life.
-END-
生活的格调
就是一个人对自我独特的定义
是生活,是艺术
而家
就是格调的终极表现
青马,只想给你一个格调家
客服
消息
收藏
下载
最近
























