查看完整案例

收藏

下载
最新案例
Latest cases
项目信息|Project information
项目地址/绿地生态城
Project address |Green Ecological City
建筑户型/联排别墅
Project address | Townhouse
施工面积/330 平方米
Construction area | 330㎡
设计风格/现代简约
Design style|Modernsimplicity
设计公司/青马别墅空间设计
Design company | Qing Mavilla space design
全案设计/付必正设计团队
Whole case design |Bi-zheng fudesign team
大客户经理/程海丽
Key Account Manager|Hai-licheng
工程管家/孙照光
Project Manager|Zhao-guangsun
全案产品/斯米克瓷砖、唯美 LD 瓷砖、高仪洁具、欧派木作定制、大金中央空调、怡口净水、史密斯热水器、博世电器、博士电器、美标淋浴房等
Whole case products|Smick ceramic tile, aestheticism LD ceramic tile, Gaoyi sanitary ware, European wood customization, Dajin central air conditioner, Yikou water purification, Smith water heater, Bosch electric appliance, doctor electric appliance, American standard shower room, etc
本案
绿地生态城,业主买下这联排别墅,期望为夫妻双方在老家的四位老人带来晚年的墅级生活方式,一切以环保舒适休闲为主。
设计师付必正充分了解其需求后,特意为别墅安装电梯,便利老人生活动线。以儿女们喜欢的现代简约格调打造一个温暖的、宁静的、愉悦的,让人安定的新家。
In this case, the owner of the green eco city bought the townhouse, hoping to bring the four elderly couples in their hometown a villa lifestyle in their later years, focusing on environmental protection, comfort and leisure. After fully understanding its needs, designer Fu bizheng specially installed elevators for the villa to facilitate the living line of the elderly. Create a warm, quiet, pleasant and stable new home with the modern simple style loved by children.
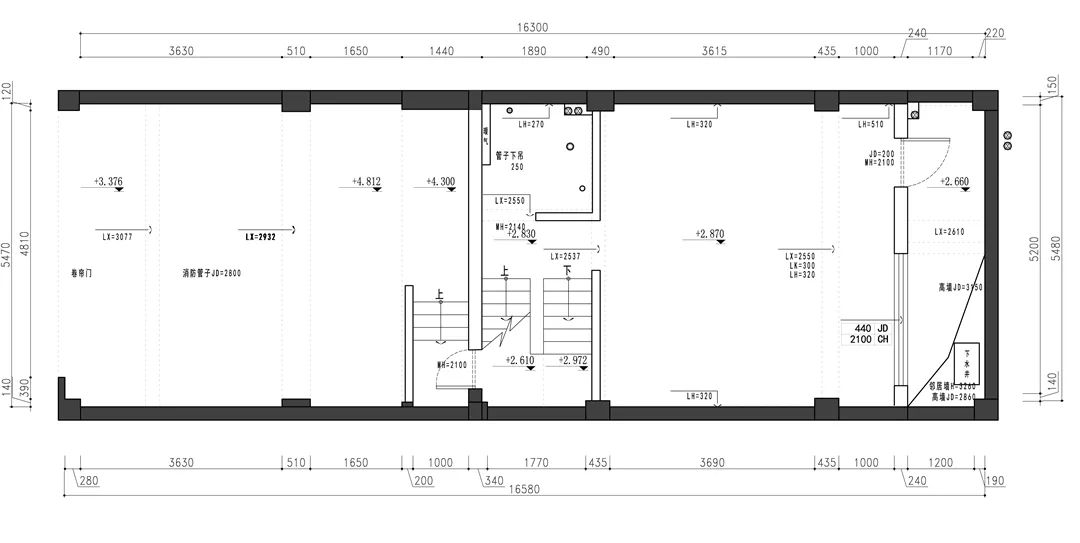
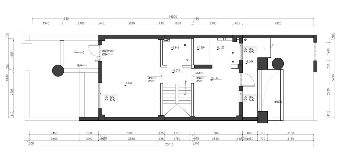
户型分析|House type analysis
▼ 负 2 层
原始结构
▼负 2 层
设计布局
▼负 1 层
原始结构
▼负 1 层
设计布局
▼ 一层
原始结构
▼ 一层设计布局
▼ 二层
原始结构
▼ 二层设计布局
▼ 搭建顶楼布局
△330 平米联排别墅,朝向好,露台大,空间结构利于改造,但其半地下室内采光欠缺,潮湿不通风。楼梯狭窄无采光,卫生间基本都是暗卫,设计解决实际问题,将家的功能性放大,让每一层都结构合理,享受别墅级品质生活。
The 330 square meter townhouse has good orientation and large terrace, and the spatial structure is conducive to transformation, but its semi basement lacks daylighting, humidity and ventilation. The stairs are narrow without daylighting, and the bathrooms are basically dark bathrooms.
The design solves practical problems and enlarges the functionality of the home, so that each floor has a reasonable structure and enjoys villa quality life.
design scheme
砸掉原始狭窄的楼梯墙体,让采光进入室内形成视觉上的南北通透之感。特设的电梯间将户型分割成规矩的南北两半。用设计去构建日常生活的情景,创造一个真诚以待的舒适空间。
Smash the original narrow staircase wall, let the daylighting enter the room, and form a visual sense of North-South permeability. The special elevator room divides the house type into regular north and South halves, uses the design to build the scene of daily life, and creates a sincere and comfortable space.
以环保的设计思维出发,没有过多的材料堆砌,满足储物的木饰面柜体,与艺术涂料灰白撞色,简单谦逊却也温和纯净。用平凡之物呈现日常的丰富,在纯粹朴素的情感中,如清风明月一般,流淌出生活的静谧诗意。
Based on the design thinking of environmental protection, there is not too much material stacking. The wood facing cabinet meeting the storage requirements is gray and white, simple and modest, but also mild and pure. Ordinary things are used to present the richness of daily life. In the pure and simple emotion, such as the breeze and the moon, the quiet poetry of life flows out.
餐厅墨绿色点缀,与原木桌餐呼应,自然意境与艺术装置在和煦的光照下碰撞、对话,打造一方自然清雅的就餐环境。满足多人用餐的诉求,选择老人钟爱的圆形餐桌,圆圆满满里营造生活的幸福感与仪式感。
The restaurant is decorated with dark green, echoing the log table meal. The natural artistic conception and artistic devices collide and talk under the warm light, creating a natural and elegant dining environment.
Meet the demands of many people, choose the round table loved by the elderly, and create a sense of happiness and ceremony in life.
厨房设计成开放式,与客餐厅形成亲密互动,依据需求增加早餐台,让每时每刻的陪伴充满温馨的氛围。烟火厨房以静谧与缓和的方式呈现,将有关于生活的烟火气息在空间中细致表达,慢下来享受每一餐可口的饭食。
The kitchen is designed to be open, form close interaction with the guest restaurant, and increase the breakfast table according to the needs, so that the company all the time is full of a warm atmosphere.
The fireworks kitchen is presented in a quiet and relaxed way. There will be a detailed expression of the fireworks atmosphere of life in the space, slow down and enjoy every delicious meal.
负一层规划成多功能娱乐室,男主人归家后从地下车库上来,可以坐下慢品一杯茶水,把玩收藏的茶具。另一边是一家人休闲娱乐的影音室,观影唱歌好不惬意。背后的展示柜摆放着孩子的荣誉证书与奖杯,简净的日常生活不繁复难懂,恬淡而又其乐融融。The first basement is planned as a multi-functional entertainment room. After returning home, the male owner comes up from the underground garage. He can sit down and enjoy a cup of tea and play with his collected tea sets. On the other side is the family’s leisure and entertainment video room. It’s nice to watch movies and sing. Behind the display cabinet are the children’s certificates of honor and trophies. The simple and clean daily life is not complicated and difficult to understand, quiet and happy.
主卧以普鲁士蓝与灰色搭配出经典有味的现代风格,拼色的背景墙与不对称的灯具,带来灵动的气息。
套间的形式涵盖了衣帽间与洗浴空间,提升生活品质。床边两人位单椅流露着生活的雅兴,私密空间自由浪漫随行。
The master bedroom combines Prussian blue and gray to produce a classic and interesting modern style. The color matching background wall and asymmetric lamps bring a flexible atmosphere. The form of suite covers the cloakroom and bath space to improve the quality of life. Two single chairs beside the bed show the elegance of life, and the private space is free and romantic.
在外读大学的女儿,偶尔回来居住,将其卧房安置在顶楼,四米的层高依据原始结构斜屋顶做异形吊顶,增加空间时尚感。藕粉色与象牙白撞色,点缀精致的金属元素,少女的温柔气息蔓延,带来一室浪漫的邂逅。
My daughter, who is studying abroad, occasionally comes back to live and places her bedroom on the top floor. The four meter high inclined roof makes a special-shaped ceiling according to the original structure to increase the sense of space fashion. Lotus root pink and ivory contrast, decorated with exquisite metal elements, and the gentle smell of girls spreads, bringing a romantic encounter.
本案设计师
Designer of this case
设计师:付必正
Designer/Bi-zhengfu
付必正
青马设计主创设计师
毕业于西安美术学院环境艺术设计系
室内装饰行业从业 15 年以上,专属大宅全案设计
资质|Qualifications
中国室内装饰协会注册设计师
国际 ICDA 室内设计师协会会员
理念|Idea
设计的目的是营造一个适合、实用、美观的享受空间!
家的本质在于恒久的内涵和温馨舒适的气韵!
殊荣|Award
2008 年中国室内设计新秀选拔赛优秀奖;
2009 年中国十大设计新锐大奖赛三等奖;
2009 年中国西安“阿姆瑞特家具”设计大赛优秀奖;
2010 年首届三亚环境艺术设计入围奖;
2011 年西安优秀设计师;
2012 年第二届中国原点国际家具文化设计大赛优秀奖;
2013 年中国筑巢装饰设计奖银奖;
2018 年西安建筑设计奖银奖;
案例|Case
湖城大境、金地芙蓉世家、曲江六号、国熙台、红枫林、龙湖紫都城、逸翠园、中海泊宫、高山流水星币传说、中铁尚都城等、就掌灯、龙湖璟城、中海铂宫、翰林府...
设计师相关链接:
青馬作品 | 九州怡景湾 · 330㎡ 联排别墅 现代 独具标识个性新家 / 付必正
点击图片
了解更多案例丨人物丨作品
关于青马
About Qing Ma
青马设计是由 2004 年成立的 V6 大宅设计空间蜕变而成,经过不断的淬炼升级与创新融合,打破以往客户服务的常规局限,构建全新的大宅别墅全案设计和整装服务平台,服务对象涵盖精英人士和高端客户,提供大宅别墅装饰的整体规划设计与施工、设备、主材、家具、配饰软装等私属定制服务。
青马设计集结行业内经验丰富的设计大咖、大客户经理、工程大管家、优秀的工程项目经理打造的“大宅别墅工程”管理体系,“多对一”式的整装服务系统,在行业里形成独特 TSING HORSE 系风格的青马设计范式。青马设计不仅是装修服务的提供商,更是大宅别墅生活方式的服务商。青马 - 成就别墅生活。
Qing Ma Design is transformed from the V6 mansion design space established in 2004, through continuous hardening, upgrading and innovation, breaking the conventional limitations of previous customer service, and building a brand-new mansion villa whole-case design and integration service platform. The service object covers elites and high-end customers, providing private customized services such as overall planning, design and construction, equipment, main materials, furniture, accessories and soft equipment for the decoration of the mansion and villa.
Building a "big horse style" project manager with rich experience in the "big horse style" project management system in the "big horse style" villa design industry. Qingma design is not only a decoration service provider, but also a service provider of the lifestyle of big houses and villas. Qingma - achieve villa life.
-END-
生活的格调
就是一个人对自我独特的定义
是生活,是艺术
而家
就是格调的终极表现
青马,只想给你一个格调家
客服
消息
收藏
下载
最近























