查看完整案例

收藏

下载
最新案例
Latest cases
项目信息|Project information
项目地址/玉泉苑
Project address |Yuquanyuan
建筑户型/平层
Project address | Leveling
施工面积/210 平米
Construction area | 210㎡
设计公司/青马别墅空间设计
Design company | Qing Mavilla space design
全案设计/郭天佑设计团队
Whole case design | Tian-you guo design team
设计风格/新中式
Design style|New Chinese style
大客户经理/武佳丽
Key Account Manager| Jia-li wu
工程管家/刘鑫
Project Manager| Liu xin
全案产品/
欧神诺瓷砖、高仪洁具、博世电器、得高木地板、华艺石材等
Whole case products|
Oushennuo ceramic tile, Gaoyi sanitary ware, Bosch electric appliance, Degao wood floor, Huayi stone, etc
本案玉泉苑顶复户型,屋主职业的特殊性让其对中国传统文化根深的喜欢与敬畏。
新家位于咸阳,亦是华夏历史文化长河的发端,是秦汉文化的重要发祥地。
设计师郭天佑对屋主的喜好及日常生活习惯深入了解和充分沟通,以新中式的手法结合房屋风水学,为其重新规划空间功能布局,探寻传统人居与当代人居之间的平衡,重塑当代中式人文居住理念。
In this case, yuquanyuan is a complex house. The particularity of the owner’s occupation makes it deeply like and revere Chinese traditional culture. The new home is located in Xianyang, which is also the beginning of the long river of Chinese history and culture and an important birthplace of Qin and Han culture. Designer Guo Tianyou deeply understands and fully communicates with the owner’s preferences and daily living habits, re plans the spatial functional layout for the owner with a new Chinese approach combined with house Feng Shui, explores the balance between traditional human settlements and contemporary human settlements, and reshapes the contemporary Chinese humanistic living concept.
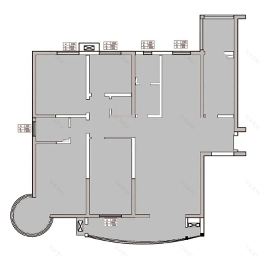
户型分析|House type analysis
▼原始结构
▼ 设计布局
△
原始结构
南北通透,通风、采光良好,户型较为方正。但其餐厅面积过于狭小,且卫生间与餐厅连着,空气会被浊化,风水也较忌讳这点。各个卧室空间功能性单一,需重新合理规划,以满足更舒适的生活需求。
The original structure is transparent from north to south, with good ventilation and daylighting, and the house type is relatively square. However, the area of the restaurant is too small, and the bathroom is connected with the restaurant, the air will be turbid, which is also taboo in Feng Shui. Each bedroom has a single function and needs to be re planned reasonably to meet the needs of more comfortable life.
设计方案
design scheme
推门归家,用当代简约的设计语言,将古今中华文化结合,营造良好的生活环境。悬挑的玄关柜造成视觉感受的隔而未隔,蕴含着诗情画意的美感。用有限的空间,做无限想象的设计,让灵感自由释放,创造一个时尚简奢的空间,引领惬意的都市生活。
Push the door home, combine ancient and modern Chinese culture with contemporary simple design language, and create a good living environment. The cantilevered porch cabinet makes the visual feeling separated but not separated, which contains the beauty of poetry and painting. Use the limited space to make unlimited imaginative design, let the inspiration release freely, create a fashionable, simple and luxurious space and lead a comfortable urban life.
客厅空间素色打底,电视背景墙自然纹理的岩板与温润木饰面碰撞,彰显着空间的层次感。故宫红做色彩的跳跃,壁龛内依据风水学布置的古建让家宅吉祥安康。禅意绿植点缀,内敛含蓄里留下一丝清雅意境的气息。
The living room space is primed, and the naturally textured rock plate of the TV background wall collides with the warm wood finish, highlighting the sense of hierarchy of the space. The red color of the Forbidden City jumps, and the ancient buildings arranged in the niches according to Feng Shui make the house auspicious and healthy. Zen green plants are dotted, introverted and implicit, leaving a trace of elegant artistic conception.
甄选的壁灯以传统的湘绣与手绘交织出棕色的空灵意境,安静朴雅的色彩,搭配简洁时尚的金属环状灯具。历久而弥新的元素碰撞,变成永恒的精神符号。贴合居者对生活的需求、对美学的向往,赋予品位生活细腻的精致与优雅。
The selected wall lamps interweave Brown ethereal artistic conception, quiet and elegant colors with traditional Xiang embroidery and hand painting, and match with simple and fashionable metal ring lamps. The long-standing and new elements collide and become eternal spiritual symbols, which meet the residents’ needs for life and yearning for aesthetics, and endow them with exquisite delicacy and elegance of taste life.
餐厅区域通过新的规划布局,使得用餐区面积更宽广。改善门的位置,巧妙让出洗衣房的空间,有效解决卫生间对着餐厅的尴尬。从风水学上,通过两道门的屏障规避浊气的扩散。选取圆顶与圆桌,从功能上解决多人用餐的诉求。设计的相得益彰,让家人圆圆满满。
Through the new planning and layout of the restaurant area, the dining area is wider, the position of the door is improved, the space of the laundry room is cleverly made available, the embarrassment of the bathroom facing the restaurant is effectively solved, and the diffusion of turbidity is avoided through the barrier of two doors in Feng Shui. The dome and round table are selected to solve the demand of multi person dining from the function, and the design complements each other to make the family round and full.
主卧室根据风水学规划在了北向,写意的色彩表现力成为空间的妙笔,一棵生机盎然的树枝,归来的大雁,两三笔便勾勒出私密空间的雅趣与意境美。东方美学的多元化探索,收藏抽象艺术的感性与自然的诗性,回归生活的本真与美好。
According to the geomantic omen planning, the master bedroom is in the north direction. The freehand color expression has become a wonderful pen of space. A vibrant branch and returning wild geese outline the elegance and artistic conception of private space. The diversified exploration of oriental aesthetics, the collection of sensibility and natural poetry of abstract art, and the return to the truth and beauty of life.
大女儿房规划在采光很好的南向,中式传统配色,点缀暗香袭来的梅花图,堆叠意象,涤荡出东方的温婉,又有着饱满的轻奢品质。飘窗巧妙利用弧度打造一方别致休息区,加入金属元素,现代摩登与东方并存的意趣体验迎面而来,漫享一段休闲惬意时光。
The eldest daughter’s room is planned to be in the south direction with good daylighting, traditional Chinese color matching, dotted with the plum blossom picture with dark fragrance, stacked images, cleansed the Oriental gentleness, and has full light luxury quality. The bay window skillfully uses the radian to create a unique rest area, adding metal elements. The interesting experience of the coexistence of modern and Oriental comes face to face, and enjoy a leisure and comfortable time.
男孩房的设计运用湖蓝色为主色调,了解到小主人喜欢篮球,墙面形式的设计便巧妙解构篮球元素做床头背景,线条感的延伸让空间氛围活泼不沉闷。人字拼的木地板与舒适的床品,创造自然自由的空间,无拘无束享受长大的快乐。
The design of the boy’s room uses lake blue as the main color. It is learned that the little owner likes basketball. The design of the wall form skillfully deconstructs the basketball element as the bedside background. The extension of the sense of lines makes the space atmosphere lively and not dull. The herringbone wooden floor and comfortable bedding create a natural and free space and enjoy the happiness of growing up freely.
杏花报春,喜鹊跃枝头,一副生动的写意画为雅致的空间注入一抹悦动的活力,成为空间的点睛之笔。用新中式的手法打造一个审美与意境并兼的交谈空间,悦目怡情极具生活的仪式感,让身心都得以放松。
Apricot flowers herald spring, magpies jump on the branches, and a vivid freehand painting injects a touch of pleasant vitality into the elegant space and becomes the finishing touch of the space. Create a conversation space with both aesthetic and artistic conception with new Chinese techniques, with a great sense of ritual of life, so that both body and mind can be relaxed.
本案设计师
Designer of this case
设计师:郭天佑
Designer/Tian-youguo
郭天佑
青马设计主创设计师
毕业于西安美术学院工艺美术设计系
室内装饰行业从业 15 年以上,专属大宅全案设计
资质| Qualifications
国家注册室内设计师
中国装饰协会注册会员
中国 ICDA 设计师协会会员
中国装潢协会会员
理念| Idea
追求艺术,用艺术家的眼光创造美好,用“美”来影响生活,追求格调,尊重历史,但从不摒弃流行和普及,致力塑造优雅的居住空间和生活方式。
殊荣 | Award
西安市年度设计师优秀奖
作品多次发表于电视台、西安晚报、三秦都市报
西安市家庭装饰协会 TOP50 强
建筑大学特邀设计师主案设计孙博华院士住宅、建筑设计系刘老师接待性住宅。
北京清华美术学院进修
日本游学 美国游学
案例|Case
深圳波托菲诺纯水岸、西安皇家花园、西安湖滨花园、西安钻石王朝、西安曲池坊、西安紫薇曲江意境、西安雅居乐御宾府、西安龙湖香缇、西安紫汀苑、西安湖城大境、西安莱安逸珲、西安群贤庄、欧雷仕西安总部、西宁国芳健身会所、西安六合舒适家智能体验馆、西安老城根火锅、府谷县陕煤集团办公室......
设计师相关链接:
青馬作品 | 枫丹丽舍 · 400㎡联排别墅 现代东方 雅室 为雅 / 郭天佑
点击图片
了解更多案例丨人物丨作品
关于青马
青马设计是由 2004 年成立的 V6 大宅设计空间蜕变而成,经过不断的淬炼升级与创新融合,打破以往客户服务的常规局限,构建全新的大宅别墅全案设计和整装服务平台,服务对象涵盖精英人士和高端客户,提供大宅别墅装饰的整体规划设计与施工、设备、主材、家具、配饰软装等私属定制服务。
青马设计集结行业内经验丰富的设计大咖、大客户经理、工程大管家、优秀的工程项目经理打造的“大宅别墅工程”管理体系,“多对一”式的整装服务系统,在行业里形成独特 TSING HORSE 系风格的青马设计范式。青马设计不仅是装修服务的提供商,更是大宅别墅生活方式的服务商。青马 - 成就别墅生活。
Qing Ma Design is transformed from the V6 mansion design space established in 2004, through continuous hardening, upgrading and innovation, breaking the conventional limitations of previous customer service, and building a brand-new mansion villa whole-case design and integration service platform. The service object covers elites and high-end customers, providing private customized services such as overall planning, design and construction, equipment, main materials, furniture, accessories and soft equipment for the decoration of the mansion and villa.
Building a "big horse style" project manager with rich experience in the "big horse style" project management system in the "big horse style" villa design industry. Qingma design is not only a decoration service provider, but also a service provider of the lifestyle of big houses and villas. Qingma - achieve villa life.
-END-
生活的格调
就是一个人对自我独特的定义
是生活,是艺术
而家
就是格调的终极表现
青马,只想给你一个格调家
客服
消息
收藏
下载
最近



















