查看完整案例

收藏

下载
最新案例
Latest cases
项目信息|Project information
项目地址|中天诚品
Project address |Zhongtian Chengpin
建筑户型|中叠
Project address |Middle stack
施工面积|220 平方米
Construction area | 220㎡
设计风格|现代简约
Design style|Modern simplicity
设计公司|青马别墅空间设计
Design company | Qing Mavilla space design
全案设计/花蕊设计团队
Whole case design | Hua ruidesign team
大客户经理/张耀 Key Account Manager| Zhang yao
工程管家/杨明 Project Manager| Yang ming
全案产品/ LD 瓷砖、老板电器、欧派整体厨房、芒果瓷砖、高仪洁具、宾图定制、艾尔西软装 Whole case products| LD ceramic tile, boss electrical appliances, opal kitchen, mango ceramic tile, Gaoyi sanitary ware, bentu customization, Elsie soft ware
本案
中天诚品,幸福的三口之家,男女主人热爱生活喜欢学习,重注家庭氛围感,整体空间希望开阔明亮。
设计师花蕊选用纯粹的象牙白与高级灰相结合,极少的材料释放空间属性,打造了一个精致又惬意的极简现代空间。
In this case, tianchengpin is a happy family of three. The hostess and hostess love life, like learning, and pay attention to the sense of family atmosphere. The overall space hopes to be open and bright. The designer uses pure ivory white and high-grade gray to create a delicate and comfortable minimalist modern space.
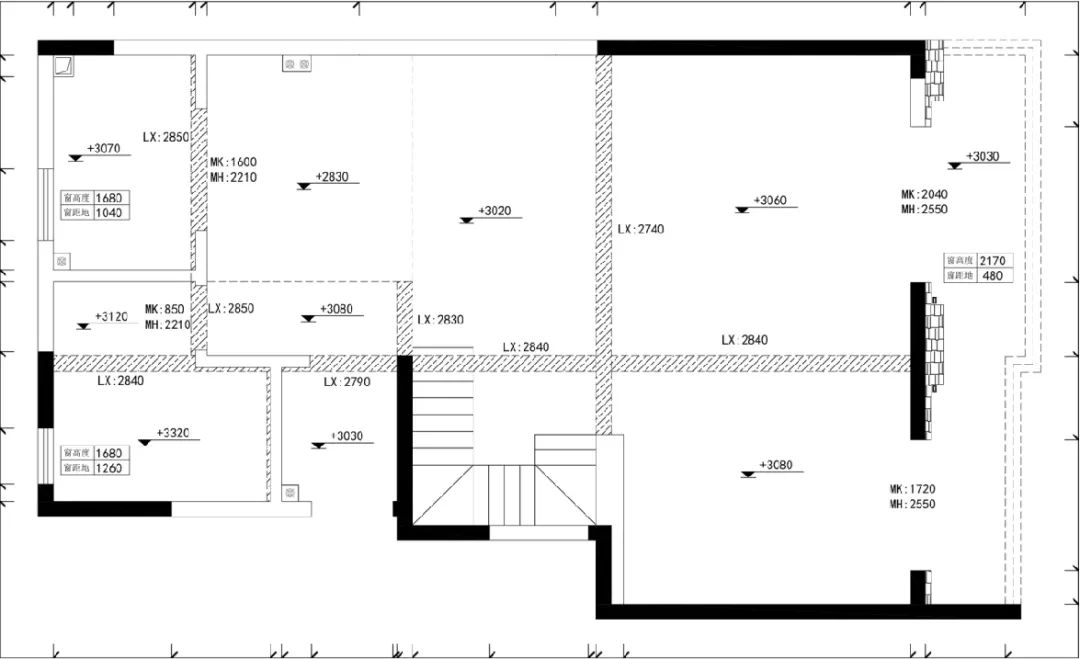
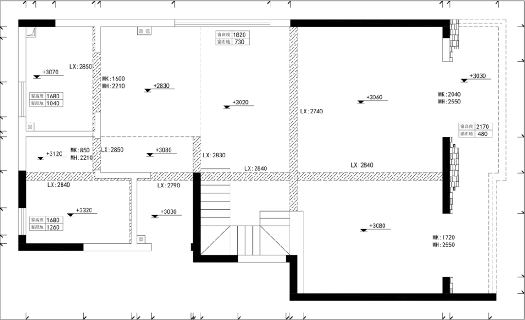
户型分析|House type analysis
▼1 层
原始结构
▼1 层
设计布局
▼ 2 层
原始结构
▼ 2 层设计布局
△
中叠户型
南北通透,通风、采光良好,房间面积宽敞,可利用的空间比较大。但对于空间来说缺少必要的整体性,设备空间浪费大量面积,设计巧妙隐藏释放更多有效空间,为生活激发更多可能。
The mid stack apartment is transparent from north to south, with good ventilation and lighting. The room area is spacious and the available space is relatively large. But for the space, the lack of necessary integrity, equipment space waste a lot of area, cleverly designed to release more effective space, stimulate more possibilities for life.
设计方案
design scheme
入户的大气通过极简的线条自然呈现,优雅简约又有质感。玄关柜满足进屋的收纳,极具设计感的氛围灯点亮局部,带来清清爽爽的舒心,利索的设计提升了整体空间的品质。
The atmosphere of entering the house is naturally presented by simple lines, elegant, simple and textured.
The porch cabinet meets the storage of the room. The atmosphere lamp with a strong sense of design lights up the part, bringing a fresh and comfortable feeling.
The sharp design improves the quality of the overall space.
一体化的客餐厅未有明显的界限,打开的空间让人与人的互动更亲密。于整体空间而言,风格协调统一。干净高级的灰色系点缀明媚鲜活的鹅黄,不多不少正有艺术的清冷,又融入了生活的烟火,可静可动日子有趣。
There is no obvious boundary in the integrated guest restaurant. The open space makes the interaction between people more intimate. In terms of the overall space, the style is harmonious and unified. The clean and high-grade gray system is decorated with bright and vivid goose yellow, not many, not many. It has the coolness of art, and also integrates into the fireworks of life. It can be quiet and moving, and the days are interesting.
注重功能减少设计的痕迹,去营造家的质感。精挑细选充满设计感的家居内饰,既拥有动态的线条感,亦表达了基础线条架构出的新颖与特别之处。高低错落的茶几轻奢有格调,为极简的空间点缀别致的艺术气息。
Pay attention to the function, reduce the traces of design, to create the texture of home. Carefully selected home furnishings full of design sense not only have a dynamic sense of lines, but also express the novelty and particularity of the basic line structure. The high and low tea table is light and luxurious and has a style, which embellishes the unique artistic atmosphere for the minimalist space.
餐厅与厨房结合联动,满足了多重情景体验,长导台亦用作餐桌,这里不单单是用餐的场所,多元化的功能满足日常的陪伴与惬意的小时光,打造出一片和谐的家庭情景区。
The combination of restaurant and kitchen meets multiple scene experiences. The long guide desk is also used as a dining table. It is not only a place for dining, but also a place for daily company and pleasant time, creating a harmonious family scene area.
动静分区,二楼进入主人私密的休憩区。卧室的风格没有过多华丽的元素,却巧妙打造空间语境,月球与星点灯光呼应形成沉溺宁静的感觉,满满的安心感蔓延带来一夜好眠。
The study connected with the master bedroom is slightly divided by the wooden grille, which carries the atmosphere and flexibility of the space. A touch of quiet green, a warm desk lamp, let people calm down, enjoy the sea of books, enjoy the pleasure of the spirit, let this pleasant and elegant spread.
本案设计师
Designer of this case
设计师:花蕊
Designer/Hua rui
花蕊
青马设计主创设计师
毕业于西安工业大学环境艺术设计专业
室内装饰行业从业 16 年以上,专属大宅全案设计
理念| Idea
发掘与发扬,充分解析户型的生命力,把艺术的内涵充分融入生活之中,将自然融进艺术人性化的生活之中。
殊荣 | Award
2007 年第五届中国环艺设计学年奖居住空间工程方案优秀奖
2009 年华商报“中联.阿姆瑞特杯”设计优秀奖
2011 年“金意陶杯”中国十大设计新锐大赛第三名
2012 年荣获风尚杯优秀作品奖
2015 年荣获京瓷杯新中式设计大赛网络人气优秀奖
案例|Case
绿地香树花城、中海铂宫、紫薇城市花园、振业泊墅、雅居乐、绿地生态城、湖城大境、中海御湖一号、龙湖香醍、御景城、萨拉曼卡......
关于青马
About Qing Ma
2004 年,城市人家装饰集团成立 V6 设计空间,服务于大宅别墅空间及对装修设计有高品质要求的客户,如今,青马别墅装饰在此基础上,升级创新,将优秀的设计、极致的工艺、完美的服务、系统的团队集于一身,为大宅、私宅别墅提供全案设计整装服务。
公司拥有一批从业多年的资深大宅设计师团队、经验丰富的优秀工程项目经理,用“多对一”的服务体系,打造完美的“私墅生活方式”。
Founded in 2004, city family adornment group V6 design space, service Yu Dazhai villa space and has high quality requirements of customers to decorate a design, now, villa decoration on the basis of the grey horse, upgrade the innovation, the most excellent design, technology, perfect service, system team set at a suit, provide mansion, private villa decoration design services.
The company has a group of senior mansion designers, experienced excellent project managers, with the "many to one" service system, to create a perfect "private villa lifestyle".
生活的格调
就是一个人对自我独特的定义
是生活,是艺术
而家
就是格调的终极表现
青马,只想给你一个格调家
客服
消息
收藏
下载
最近
















