查看完整案例

收藏

下载
最新案例
Latest cases
项目信息|Project information
项目地址/融创桃源府
Project address | Rongchuang Taoyuan Mansion
建筑户型/合院
Project address | Courtyard
施工面积/200 平方米
Construction area | 200㎡
设计风格/新中式
Design style|New Chinese style
设计公司/青马别墅空间设计
Design company | Qing Mavilla space design
全案设计/梁丽辉设计团队
Whole case design | Li-hui liang
design team
大客户经理/王蒙
Key Account Manager|Wang meng
工程管家/韩鹏辉
Project Manager|Peng-hui han
全案产品/
芒果陶瓷、富士通空调、3M 净水、华为智能、欧派整体厨房、简一大理石瓷砖、高仪洁具、宾图定制、艾尔西软装
Whole case products|Mango ceramics, Fujitsu air conditioning, 3M water purification, Huawei intelligent, europai integrated kitchen, Jianyi marble tiles, Gaoyi sanitary ware, bentu customization, Elsie soft ware
本案融创桃源府位于临潼,四周景色优美,院落以苏式园林为主题。在室内设计中,设计师梁丽辉并没有做造型的修饰,主要体现原有结构与室外景色的呼应。用新中式自然的元素让屋主人文气质与自然形成情感连接,追寻内心的静谧。
In this case, rongchuang Taoyuan mansion is located in Lintong, with beautiful scenery around. The courtyard takes the Suzhou style garden as the theme. In the interior design, the designer Liang Lihui does not decorate the shape, mainly reflects the echo of the original structure and the outdoor scenery, and uses the new Chinese style natural elements to make the house owner form an emotional connection with nature and pursue the inner tranquility.
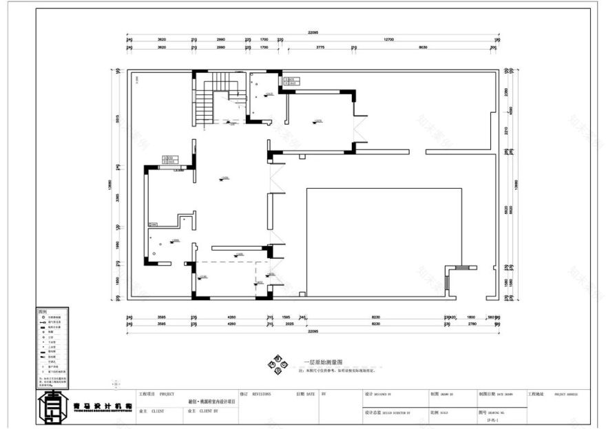
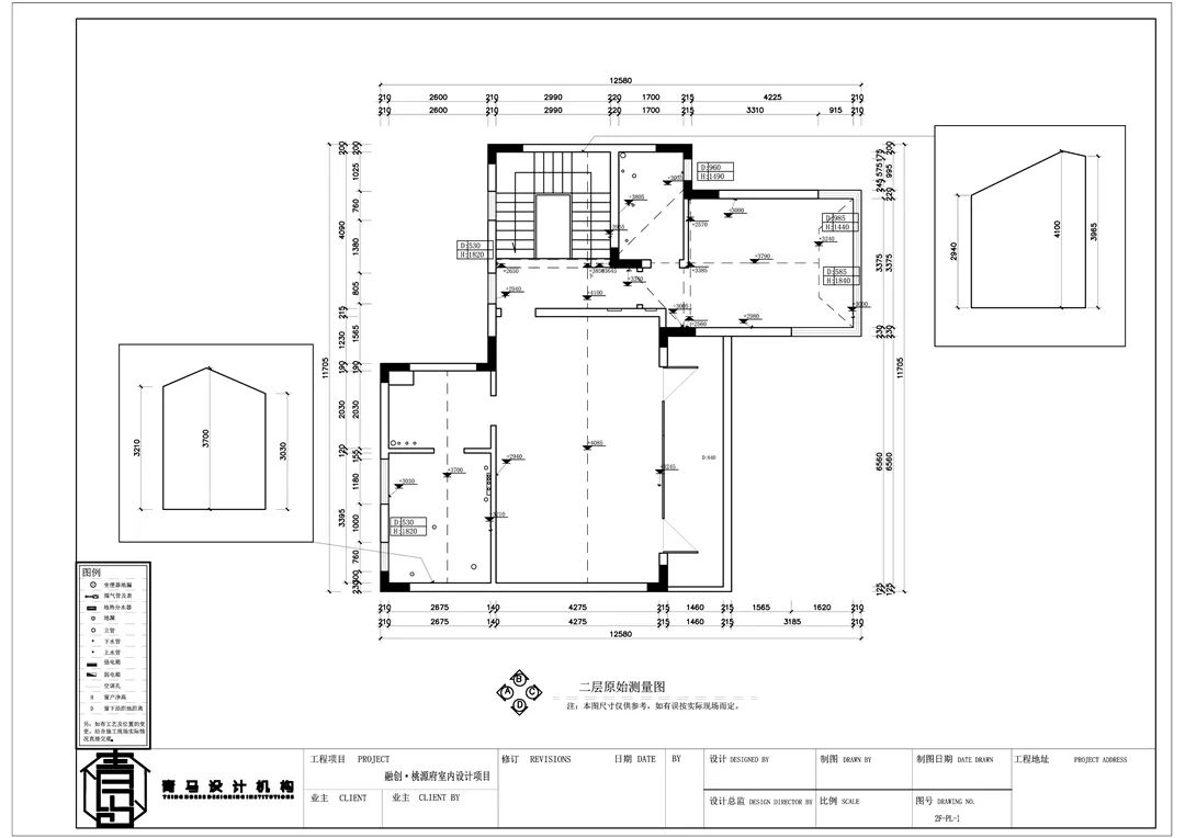
户型分析|House type analysis
▼1 层
原始结构
▼1 层
设计布局
▼ 2 层
原始结构
▼ 2 层设计布局
△合院
南北通透,通风、采光良好,房间面积宽敞好利用。但其一层门厅不大,与楼梯共用,略显局促,卫生间空间紧凑,显小。设计便合理布局,让室内与室外合院景色互融,带来惬意生活。
The courtyard is transparent from north to south, with good ventilation and lighting. The room area is spacious and easy to use. But the hall on the first floor is not big, shared with the stairs, slightly cramped, and the toilet space is compact and small. Design will be reasonable layout, so that the indoor and outdoor courtyard scenery blend, bring a comfortable life.
设计方案
design scheme
一方清雅院子
独辟天地,自享清净。入户室内,体块墙面层次推进,自然生发空间礼序与入宅仪式感。餐厅、客厅和茶室空间界限分明,功能互补。古韵悠然的实木家具与现代化家电运用,古意与现代的结合,带来满心的静谧与安然生活。
One side of the elegant courtyard, unique world, enjoy pure.
When entering the house, the block wall is pushed forward at different levels, which naturally gives birth to the space ritual and the feeling of entering the house ceremony.
The dining room, living room and tea room have distinct space boundaries and complementary functions.
The use of ancient and leisurely solid wood furniture and modern household appliances, the combination of ancient and modern, bring a quiet and peaceful life.
空间整体略显肃穆,以浅色沙发去中和浓重色调,搭配禅意造型树枝,营造精致雅奢的空间细节。柔软地毯棉麻沙发,以及一整面通透的落地窗,将院内美景框进室内,将其揉碎打磨成雅致的生活画面。
The whole space is slightly solemn, with light color sofa to neutralize the heavy tone, and Zen style branches to create exquisite and luxurious space details. Soft carpet, cotton and hemp sofa, and a whole transparent French window frame the courtyard into the room, and grind it into an elegant picture of life.
休闲区以写意山水境贯穿空间,木色蔓延,宫灯伫立、湖水色画作纳入自然意趣。整面定制的收纳柜将主人的爱好收藏,摆放罗汉床布置舒适一角,空间雅奢兼备,繁简相宜。
The leisure area runs through the space with freehand landscape, spreading wood color, palace lantern standing and lake water color paintings into the natural interest. The whole customized storage cabinet will be the owner’s favorite collection, put arhat bed layout comfortable corner, elegant and luxurious space, simple and appropriate.
拾阶而上,利用空间结构打造这静谧安逸的一角。临窗而设,铺就了时光丰盈的古朴素雅。一本好书,一盏好茶,一个放松的下午,打开人的感知和体验,不着痕迹地表达,享受当下的每分每秒。
Step up and make use of the space structure to create this quiet and comfortable corner. Facing the window, it paves the simple and elegant time, a good book, a good tea, and a relaxing afternoon. It can open up people’s perception and experience, express without trace, and enjoy every minute of the moment.
主卧空间大气的人字顶,通透的落地窗揽尽院内美景。
不必陋室,一言一行,一器一物,皆是彰显,趣雅意境自成一方独立场域。
质朴的材质与温润的色系,抚平人心中的空虚与躁动。
The grand herringbone roof of the master bedroom space and the transparent French windows can enjoy the beautiful scenery of the courtyard. There is no need to have a humble room. Every word and deed, and every object, are all highlighted. The interesting and elegant artistic conception becomes an independent field. Simple materials and warm colors can smooth the emptiness and agitation in people’s mind.
与主卧相连的书房,以木质格栅稍作分割,承载着空间大气灵动的情致。
一抹清幽的绿,一盏暖心的台灯,让人心宁静下来,畅游书海尽享精神的愉悦,让这份怡然雅致蔓延。
The study connected with the master bedroom is slightly divided by the wooden grille, which carries the atmosphere and flexibility of the space. A touch of quiet green, a warm desk lamp, let people calm down, enjoy the sea of books, enjoy the pleasure of the spirit, let this pleasant and elegant spread.
次卧接近自然的木色,与写意微派画作相衬,清风拂来,诗意画境,一席风雅的画卷徐徐展开。打造尊贵典雅,自然精致的生活大境,去承载生活的梦想与美好,启幕理想生活华章。
The wood color close to the nature of the second bedroom is in contrast with the freehand brushwork. With the wind blowing, the poetic painting is unfolding slowly. Create a noble, elegant, natural and exquisite living environment to carry the dream and beauty of life and open the chapter of ideal life.
本案设计师
Designer of this case
设计师:梁丽辉
Designer/Li-hui liang
梁丽辉
青马设计主创设计师
毕业于
西安建筑科技大学
室内装饰行业从业 16 年以上,专属大宅全案设计
资质|Qualifications
中国室内装饰协会注册设计师
理念|Idea
设计不是一种技能,而是一种感悟
殊荣|Award
2008 年荣获中联阿姆瑞特杯室内设计优秀奖
2012 年荣获风尚杯优秀作品奖
2015 年荣获京瓷杯新中式设计大赛网络人气优秀奖
案例|Case
曲江香都、逸翠园、绿地城、蔷薇溪谷、巴塞阳光、曲江大城、河与墅、科为城墅、曲江风景线、龙湖香醍国际、龙湖花千树、海珀香庭等西安大户型私宅项目......
关于青马
About Qing Ma
2004 年,城市人家装饰集团成立 V6 设计空间,服务于大宅别墅空间及对装修设计有高品质要求的客户,如今,青马别墅装饰在此基础上,升级创新,将优秀的设计、极致的工艺、完美的服务、系统的团队集于一身,为大宅、私宅别墅提供全案设计整装服务。
公司拥有一批从业多年的资深大宅设计师团队、经验丰富的优秀工程项目经理,用“多对一”的服务体系,打造完美的“私墅生活方式”。
Founded in 2004, city family adornment group V6 design space, service Yu Dazhai villa space and has high quality requirements of customers to decorate a design, now, villa decoration on the basis of the grey horse, upgrade the innovation, the most excellent design, technology, perfect service, system team set at a suit, provide mansion, private villa decoration design services.
The company has a group of senior mansion designers, experienced excellent project managers, with the "many to one" service system, to create a perfect "private villa lifestyle".
生活的格调
就是一个人对自我独特的定义
是生活,是艺术
而家
就是格调的终极表现
青马,只想给你一个格调家
客服
消息
收藏
下载
最近


















