查看完整案例

收藏

下载
最新案例
Latest cases
项目信息|Project information
项目地址/碧桂园·国湖
Project address | Country garden national Lake
建筑户型/中叠
Project address | Townhouse
施工面积/200 平方米
Construction area | 200㎡
设计风格/现代
Design style|Modern
设计公司/青马别墅空间设计
Design company | Qing Mavilla space design
全案设计/王强设计团队
Whole case design | Wang qiangdesign team
大客户经理/王蒙 Key Account Manager|Xuan-jun liuWang meng
工程管家/刘鑫 Project Manager|Liu xin
全案产品/芒果陶瓷、富士通空调、3M 净水、华为智能、欧派整体厨房、简一大理石瓷砖、高仪洁具、宾图定制、艾尔西软装 Whole case products|Mango ceramics, Fujitsu air conditioning, 3M water purification, Huawei intelligent, europai integrated kitchen, Jianyi marble tiles, Gaoyi sanitary ware, bentu customization, Elsie soft ware
本案碧桂园·国湖中叠户型,业主为三口之家,一个儿子在读大学,偶尔有双方父母来短暂居住。男主喜欢喝茶朋友较多,会相邀喝茶聊天,需要有单独的品茗区与书房。设计师王强了解其诉求后,以现代的手法让温暖与理性相遇,让喝茶会友的爱好融于空间,于细节处铸就奢华的体验,让人沉浸这安谧岁月。
In this case, a family of three was built in country garden and Guohu. A son was studying in University, and occasionally his parents came to live for a short time. Male owners like to drink tea, more friends, will be invited to tea chat, need to have a separate tea area and study. The designer Wang Qiang, after understanding his appeal, makes warmth and rationality meet in a modern way, makes the hobby of drinking tea and meeting friends melt into the space, creates a luxurious experience in the details, and makes people immersed in the quiet years.
户型分析|House type analysis
▼ 负 2 层
原始结构
▼负 2 层
设计布局
▼ 负 1 层
原始结构
▼负 1 层
设计布局
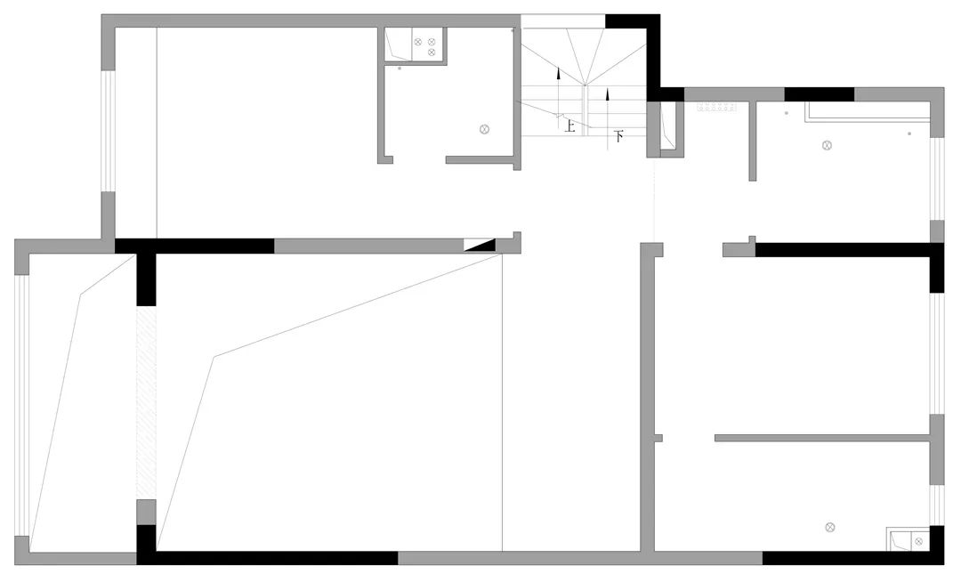
▼1 层
原始结构
▼1 层
设计布局
▼ 2 层
原始结构
▼ 2 层设计布局
△中叠户型
一层客餐厅南北通透,户型紧凑。阳台可以搭建,增加室内面积。地下室层高比较高,可以搭建两层,空间利用率增高。但其一层门厅不大,与楼梯共用,略显局促。卫生间空间紧凑,显小。
二层三间卫生间多,而卧室空间又太小。
地下室采光不足,与楼上不连通,需要走公共电梯到达,设计改造,解决不合理。
The dining room on the first floor of the middle stack apartment is transparent from north to south. The apartment is compact. The balcony can be built to increase the indoor area. The basement is relatively high, and two floors can be built to increase the space utilization.
But the hall on the first floor is not big, shared with the stairs, slightly cramped, and the toilet space is compact and small. There are many three bathrooms on the second floor, and the bedroom space is too small. The basement is not well lit, and it is not connected with the upstairs, so we need to take the public elevator to get there.
设计方案
一层厨房设计全开场,留出岛台位置增加人与人的互动与沟通。餐厅选用圆桌,让餐厅与厨房空间无限融合,空间塑造场所,这种手法更强调像场域一样的存在,去模糊边界,变化场所的虚实,使空间的疏密关系生动起来,促进人徜徉享受其中。
The kitchen on the first floor is designed to open completely, and the island platform is set aside to increase the interaction and communication between people. The dining room chooses round table, which makes the dining room and kitchen space merge infinitely, and the space shapes the place. This technique emphasizes the existence like the field, blurs the boundary, changes the virtual and real of the place, enlivens the density of the space, and promotes people to enjoy it.
用一种像作画般的手法去设计空间,表达营造低调、舒适,却无损高贵与雅致奢华的生活开篇。
素雅的配色不夺目炫耀,但却尽享雅致审美与高端生活品质,大理石台阶的递进让简约空间不乏层次的丰富变化。
Design space with a kind of painting like technique to express and create a low-key and comfortable life without damaging the noble and elegant luxury. The simple and elegant color matching does not show off, but enjoys the elegant aesthetic and high-end quality of life. The progressive marble steps make the simple space rich and varied.
依据屋主生活习惯,一层二层尽全力保留了部分原始客厅挑空区域,增加了相对独立的书房区,打造简洁明净的阅读氛围。原一层二层阳台搭建,二层预留出洗衣晾晒空间,细节的关注把控让生活舒适有条不紊。
According to the owner’s living habits, the first and second floors try their best to retain part of the original living room empty area, increase the relatively independent study area, and create a simple and clean reading atmosphere. The balcony on the first floor and the second floor was built, and the space for washing and drying was reserved on the second floor. The attention to details made life more comfortable and orderly.
地下室搭建两层,作为屋主招待朋友的一个独立静享区域,最大限度地获得了自然采光的优势。雅致的艺术氛围,自在的空间气度,喝茶聊天听音乐,让生活多了一些自由闲暇的畅意时光与风雅乐事。The basement has two floors, as an independent quiet area for house owners to entertain friends, which maximizes the advantages of natural lighting. Elegant artistic atmosphere, free space bearing, drinking tea, chatting and listening to music, make life more free and leisurely.
开放式茶空间,藤编元素与复古线条碰撞,素雅又温馨。
楼梯下面增加置物架及隔板,可作为装饰柜使用,流畅于一条动线之中,彼此连贯互通又极具延展性,冷暖适度的调和让这里宽敞且明媚。
Open tea space, rattan elements and retro lines collision, simple and warm. Add shelf and clapboard under the stairs, can be used as decorative cabinet, smooth in a moving line, mutual connectivity and highly malleable, moderate harmony of cold and warm makes it spacious and beautiful.
三口之家,儿子在外上大学,男主朋友较多,新家温暖与理性相遇,让喝茶会友的爱好融于空间。低调的涵雅,刚柔并济,于细节处铸就奢华的体验,光影晃动交错,三五好友茶香袅袅,让人沉浸这安谧的岁月。
Strengthen the overall entertainment atmosphere, create an independent space for fitness, video and tea, and carefully selected lamps and lanterns render a soft atmosphere. After a busy day’s work, when you come home, you can feel the soft light, the quiet change of time, and put yourself into the embrace of home. Your daily life and emotions converge here. The four seasons alternate, and life is harmonious and beautiful.
本案设计师
Designer of this case
设计师:王强
Designer/Wang qiang
王强
青马设计主创设计师
毕业于陕西科技大学设计学院装潢艺术设计专业
室内装饰行业从业 16 年以上,专属大宅全案设计
资质| Qualifications
中国室内装饰协会注册设计师
中国建筑装饰高级住宅室内设计师
理念| Idea
用心去感触空间,做有气息的设计。
殊荣 | Award
2011 年获搜狐焦点网“最佳室内设计师”
2013 年中国空间艺术设计大赛优秀作品奖
2014 年获“筑巢奖”-室内样板间-方案类
陕西广播电视台 98.8《设计师说》栏目,特约设计师
陕西广播电视台 91.6《拜托了设计师》栏目,特约设计师
中国室内设计家园推荐设计师
美化居室设计大赛优秀奖
新锐设计优秀奖
西安市装饰协会推荐优秀设计师
《风尚家居 设计师说》特约设计师
案例|Case
龙湖源著、自然界城墅、国金华府、白桦林居、枫林九溪、普华浅水湾、西派国际、紫薇风尚、白桦林间、兴盛园、风景御园、振业泊墅、浐灞半岛、万科大明宫、曲江观邸、高山流水别墅、曲江大华公园世家、曲江金地九玺、西咸蔷薇溪谷……
关于青马
About Qing Ma
2004 年,城市人家装饰集团成立 V6 设计空间,服务于大宅别墅空间及对装修设计有高品质要求的客户,如今,青马别墅装饰在此基础上,升级创新,将优秀的设计、极致的工艺、完美的服务、系统的团队集于一身,为大宅、私宅别墅提供全案设计整装服务。
公司拥有一批从业多年的资深大宅设计师团队、经验丰富的优秀工程项目经理,用“多对一”的服务体系,打造完美的“私墅生活方式”。
Founded in 2004, city family adornment group V6 design space, service Yu Dazhai villa space and has high quality requirements of customers to decorate a design. Now, villa decoration on the basis of the grey horse, upgrade the innovation, the most excellent design, technology, perfect service, system team set at a suit, provide mansion, private villa decoration design services.
The company has a group of senior mansion designers, experienced excellent project managers, with the "many to one" service system, to create a perfect "private villa lifestyle".
生活的格调
就是一个人对自我独特的定义
是生活,是艺术
而家
就是格调的终极表现
青马,只想给你一个格调家
客服
消息
收藏
下载
最近





















