查看完整案例

收藏

下载
最新案例
Latest cases
项目信息|Project information
项目地址/雅居乐御宾府
Project address |Yajule Yubin Mansion
建筑户型/平层
Project address | Flat floor
施工面积/210 平米
Construction area | 210㎡
设计公司/青马别墅空间设计
Design company | Qing Mavilla space design
全案设计/王洁设计团队
Whole case design | Wang jiedesign team
设计风格/现代 Design style|Modern
大客户经理/胡盼盼 Key Account Manager|Pan-pan hu
工程管家/刘鑫 Project Manager| Liu xin
全案产品/ LD 陶瓷、花艺石材、高仪洁具、日立、宾图整木定制、方太电器 、菲林格尔木地板
Wholecase products|LD ceramic, flower stone, Gaoyi sanitary ware, Hitachi, bentu whole wood customization, fontai electric, filingel wood floor
本案雅居乐御宾府平层户型
年轻夫妇均为上班族,有一个孩子且家里有老人。
屋主诉求简单明了,因此设计便以功能展开叙事。
整体风格以现代入手,加以金属线条作为装饰,探求空间的特质,用生活场景链接起人与空间的互动关系。
In this case, young couples of flat floor apartment in Yaju leyubin mansion are office workers, with a child and an elderly family. The owner’s appeal is simple and clear, so the design is narrated by function. The overall style starts with modernity, with metal lines as decoration, to explore the characteristics of space, and to link the interaction between people and space with life scenes.
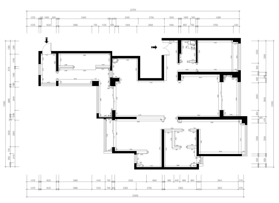
户型分析|House type analysis
▼原始结构
▼ 设计布局
△
原始户型南北通透,整体通风采光非常不错,房间面积宽敞好利用。但其主卧衣帽间不规整,主卫面积小,无法干湿分离,且北向房间原有隔墙太多,需重新合理布置优化。
The original house is transparent from north to south, the overall ventilation and lighting are very good, and the room area is spacious and easy to use. But the main bedroom cloakroom is irregular, the main bathroom area is small, can’t separate dry and wet, and there are too many original partition walls in the north room, so it needs to be reasonably arranged and optimized.
设计方案
design scheme
入户门厅一字结构开阔空间格局,平衡空间层次关系,让功能基于生活为点,去解读居住者的日常点滴。甄选挂画的点睛之笔,让艺术与生活并行,塑造出屋主审美品位的高级感。
The one word structure of the entrance hall widens the spatial pattern, balances the spatial hierarchy, and interprets the daily life of the residents based on the function of life. The finishing touch of the selection of hanging paintings allows art and life to go hand in hand, creating a high-level sense of the owner’s aesthetic taste.
现代手法的高级调性,大地色系的纯粹静谧,营造出沉稳且个性的现代质感。可随意拜访的沙发组合为新家带来多样的舒适惬意体验,艺术软装的搭配,氛围灯光的营造,潜移默化发出温度感和仪式感。
The high-level tonality of modern techniques and the pure quietness of the earth color system create a calm and personalized modern texture.
The sofa combination that can be visited at will brings a variety of comfortable and comfortable experiences for the new home.
The collocation of art soft clothes, the creation of atmosphere lighting, and the subtle sense of temperature and ceremony.
餐厅区域保持了空间整体风格又不断延续,色彩的和谐统一让场域的气质相融。
温润生态木,高级石材、精致金属等材质的品位营造,围合餐位的圆满布置,让用餐这件事成为家庭场景化最温馨和美的时刻。
The restaurant area maintains the overall style of the space and continues, and the harmony and unity of colors make the temperament of the field blend. The warm ecological wood, high-grade stone, exquisite metal and other materials, and the perfect layout of the enclosed dining room make dining the most warm and beautiful moment of family scene.
书房纵向线条的延伸,开放格体块的分割,让简单的空间有了高级层次感,体感上的通透给予生活更广阔的视野。在此徜徉书海,进入精神层面的享受,这一方小世界便达成生活品质的完美升华。
The extension of the longitudinal lines of the study and the division of the open lattice body block give the simple space a sense of high level, and the permeability of the body sense gives a broader vision of life. Wandering in the sea of books and enjoying the spiritual level, this small world will achieve the perfect sublimation of the quality of life.
主卧空间用圆形艺术装置打破中规中矩的视觉感受,对比性强烈的体块分割,将空间干净通透的格调展示得淋漓尽致,温馨浪漫的氛围灯光亦在简洁的基调上,丰盈着空间韵律。
The master bedroom space uses circular art installation to break the conventional visual experience. The strong contrast of the body block division shows the clean and transparent style of the space incisively and vividly. The warm and romantic atmosphere lighting also enriches the space rhythm on the simple tone.
儿童房多用温润木质元素,带来舒适回归的自然之感。暖黄的灯光营造明媚的温馨悦目。世界地图与梦幻的热气球酝酿出别样的火花,轻盈的缥缈点亮整个空间的魅力,以诗意生活赞美人间理想。
The nanny room will be transformed into an independent study, which is now used by the male owner. When the daughter grows up, it will be used for learning. The preset design reserves space for the growth of the home. The clean lines and perfect color matching explain the art aesthetics of home furnishing, create a modern urban living space, and let love grow with home.
经巧妙布局,主卫实现了双面盆与干湿分离功能,开阔的空间彰显着大气磅礴。空间的尺度,需求的精度,生活的温度,以感性的表达抒发而出,共同书写了设计由表达形式到精致生活的美好序章。
The nanny room will be transformed into an independent study, which is now used by the male owner. When the daughter grows up, it will be used for learning. The preset design reserves space for the growth of the home. The clean lines and perfect color matching explain the art aesthetics of home furnishing, create a modern urban living space, and let love grow with home.
本案设计师
Designer of this case
设计师:王洁
Designer/Wang jie
王洁
青马设计主创设计师
毕业于西安美术学院
室内装饰行业从业 15 年以上,专属大宅全案设计
资质| Qualifications
中国室内装饰协会注册设计师
国际建筑装饰室内设计协会-高级建筑室内设计师
理念| Idea
设计是一种感受、一种心态、一种舒适的、开心的生活方式。
殊荣 | Award
2006 年评为西安年度优秀设计师奖金
2009 年荣获金意陶杯银奖
2010 年荣获筑巢设计大赛优秀奖
2012 年原点设计大赛荣获银奖
2013 年别墅设计内优秀奖
2019 年第十二届大金内装设计大赛西北地区美宅设计奖
案例|Case
金地芙蓉世家、金地湖城大境、曲江华府、曲江观邸、 鸿基紫韵、紫薇永和坊、白桦林间、红枫林、融侨城、海珀紫庭、逸翠园、逸翠尚府、雅居乐御宾府、曲江和园、
中海铂宮、曲江公馆等。
关于青马
About Qing Ma
2004 年,城市人家装饰集团成立 V6 设计空间,服务于大宅别墅空间及对装修设计有高品质要求的客户,如今,青马别墅装饰在此基础上,升级创新,将优秀的设计、极致的工艺、完美的服务、系统的团队集于一身,为大宅、私宅别墅提供全案设计整装服务。
公司拥有一批从业多年的资深大宅设计师团队、经验丰富的优秀工程项目经理,用“多对一”的服务体系,打造完美的“私墅生活方式”。
Founded in 2004, city family adornment group V6 design space, service Yu Dazhai villa space and has high quality requirements of customers to decorate a design, now, villa decoration on the basis of the grey horse, upgrade the innovation, the most excellent design, technology, perfect service, system team set at a suit, provide mansion, private villa decoration design services.
The company has a group of senior mansion designers, experienced excellent project managers, with the "many to one" service system, to create a perfect "private villa lifestyle".
生活的格调
就是一个人对自我独特的定义
是生活,是艺术
而家
就是格调的终极表现
青马,只想给你一个格调家
客服
消息
收藏
下载
最近














