查看完整案例

收藏

下载
最新案例
Latest cases
项目信息|Project information
项目地址/九州怡景湾
Project address |Yijing Bay, Kyushu
建筑户型/联排别墅
Project address | Townhouse
施工面积/330 平方米
Construction area | 330㎡
设计风格/现代
Design style|Modern
设计公司/青马别墅空间设计
Design company | Qing Mavilla space design
全案设计/付必正设计团队
Whole case design | Bi-zhen fu design team
大客户经理/张耀 Key Account Manager|Zhangyao
工程管家/刘鑫 Project Manager| Liu xin
全案产品/富士通新风空调、博华/芒果陶瓷、沁园净水、莱博顿淋浴房、华为智能、能率热水器、欧派橱柜、得高木地板、极景门窗、克劳嫩堡微水泥等 Whole case products|Fujitsu fresh air conditioning, Bohua / Mango ceramics, Qinyuan water purification, leibodunshower room, Huawei intelligent, energy rate water heater, opal cabinet, Degao wood floor, extreme view doors and windows, cronenburg micro cement, etc
本案九州怡景湾联排别墅,设计师付必正。
一切从实际使用出发,不受空间功能属性的约束,自由且富于生活的个性需求和经验,经过设计美学的整合,用简约的设计手法,自然而又刻意的表达生活的格调,呈现一种特别的韵味。
The case of Jiuzhou yijingwan townhouse, designer Fu bizheng everything from the actual use, not subject to the constraints of space function attribute, free and rich in life personality needs and experience, through the integration of design aesthetics, with simple design techniques, natural and deliberate expression of life style, presents a special charm.
户型分析|House type analysis
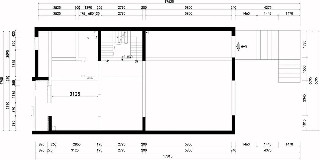
▼ 负 1 层
原始结构
▼负 1 层
设计布局
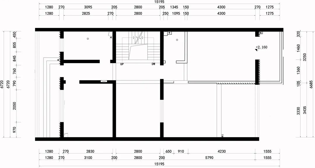
▼1 层
原始结构
▼1 层
设计布局
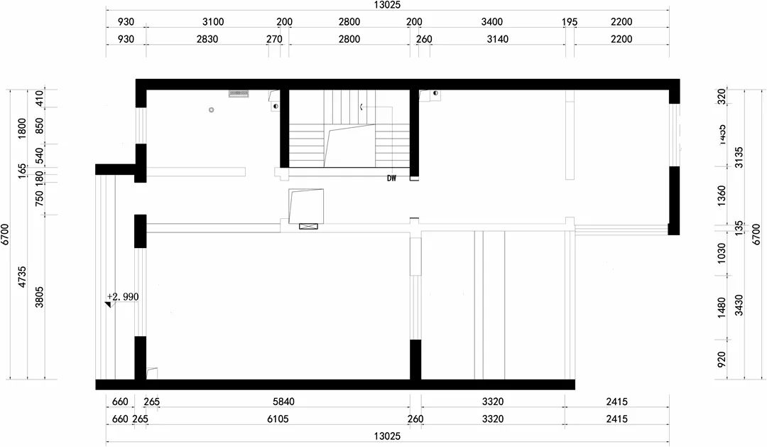
▼ 2 层
原始结构
▼ 2 层设计布局
▼ 3 层
原始结构
▼ 3 层设计布局
△330 平米联排别墅
南北通透,通风良好,户型方正,承重墙少,便于空间改造。
但是餐厅和厨房面积较小,原始楼梯间空间又比较大,负一楼没有门厅空,二层层高低视角不舒适,顶面梁体多错落复杂,需要合理处理优化功能结构。
The 330 square meter townhouse is transparent from north to south, with good ventilation, square house type and few load-bearing walls, which is convenient for space transformation. However, the area of the restaurant and kitchen is small, the space of the original staircase is relatively large, there is no hall space on the first floor, the high and low angle of view on the second floor is not comfortable, and the top beams are scattered and complex, so it is necessary to reasonably handle and optimize the functional structure.
设计方案
design scheme
将餐厅厨房与客厅相结合,整个空间围合感更显饱满。
在克制的建构逻辑之下,巧妙运用屏风强调空间秩序,简洁干净的线条,营造空间的节奏感和比例之美,强烈的色彩对比,为空间注入优雅与活力。
Combining the dining room, kitchen and living room, the whole space is more full. Under the construction logic of restraint, the screen is skillfully used to emphasize the order of space, simple and clean lines, create the beauty of rhythm and proportion of space, and strong color contrast, so as to inject elegance and vitality into the space.
整体色彩上以高级灰木纹做空间底色,色调刻意偏低一个明度,营造空间的神秘感和质感。沙发背景的蓝色屏风给客厅点燃了不一样的氛围感,让整个场域有了视觉焦点和中心,层次彰显个性张扬。
On the whole, the high-grade gray wood grain is used as the background color of the space, and the tone is deliberately lower than a lightness, creating a sense of mystery and texture of the space. The blue screen on the sofa background ignites a different sense of atmosphere for the living room, giving the whole field a visual focus and center, highlighting the level and personality.
空间形式语言趋于干净简单,几何体量关系单纯化,围合的质感沙发配以方正的茶几,延伸至长条形氛围壁炉,去除繁杂的元素,空间遵从“减”与“简”的态度,让生活去做日常的加法。
The formal language of space tends to be clean and simple, the relationship between geometric volume is simple and pure, the enclosed texture sofa with square tea table extends to the strip-shaped atmosphere fireplace to remove the complicated elements, the space follows the attitude of "subtraction" and "simplicity", let life do the daily addition.
真正丰富的家庭生活必然是由特别多的细节组成的,然后传达到对居住空间的要求上。餐厅联动厨房,依然遵循这个主线,延续整体色调和手法,修整校正提升视觉效果,使之更加平滑顺直,优雅舒适。
The location of the original basement with the worst lighting is arranged as a bar area. Various light source combinations are used to create a bizarre fashion atmosphere. Within the pattern, the exquisite combination of material, texture, color, art and furniture makes the artistic conception of home comfortable and interesting under the guidance of aesthetic feeling.
空间做减法后将主卧室与卫生间、衣帽间全部解放出来,解决了原来碎片化的空间感,私密与开放空间完美结合,处处体现着不一样的情调。中国传统典雅与现代审美相结合的宫廷红现代屏风,难掩一室热烈与浪漫。
After subtracting the space, the master bedroom, bathroom and cloakroom are all liberated, which solves the original fragmented sense of space. The perfect combination of privacy and open space reflects a different mood everywhere. The palace red modern screen, which combines Chinese traditional elegance with modern aesthetics, is hard to conceal the warmth and romance in a room.
负一层独立影音室与家人聊天 K 歌看电影,感受到现代科技进步带来的私享生活。别墅生活体现了一个现代、精致、宁静的高品质空间。遵循空间的减法生活的加法理念,以个性色彩屏风贯穿,打造一个独特个人标识且温暖宁静的空间。
The independent video room on the lower floor chats with family members, watches movies, and feels the private life brought by the progress of modern science and technology. Villa life reflects a modern, exquisite and quiet high-quality space.
Following the concept of subtraction of space and addition of life, we create a warm and quiet space with unique personal identity through the personalized color screen.
本案设计师
Designer of this case
设计师:付必正
Designer/Bi-zhengfu
付必正
青马设计主创设计师
毕业于西安美术学院环境艺术设计系
室内装饰行业从业 15 年以上,专属大宅全案设计
资质| Qualifications
中国室内装饰协会注册设计师
国际 ICDA 室内设计师协会会员
理念| Idea
设计的目的是营造一个适合、实用、美观的享受空间!
家的本质在于恒久的内涵和温馨舒适的气韵!
殊荣 | Award
2008 年中国室内设计新秀选拔赛优秀奖;
2009 年中国十大设计新锐大奖赛三等奖;
2009 年中国西安“阿姆瑞特家具”设计大赛优秀奖;
2010 年首届三亚环境艺术设计入围奖;
2011 年西安优秀设计师;
2012 年第二届中国原点国际家具文化设计大赛优秀奖;
2013 年中国筑巢装饰设计奖银奖;
2018 年西安建筑设计奖银奖;
案例|Case
湖城大境、金地芙蓉世家、曲江六号、国熙台、红枫林、龙湖紫都城、逸翠园、中海泊宫、高山流水星币传说、中铁尚都城等、就掌灯、龙湖璟城、中海铂宫、翰林府...
关于青马
About Qing Ma
2004 年,城市人家装饰集团成立 V6 设计空间,服务于大宅别墅空间及对装修设计有高品质要求的客户,如今,青马别墅装饰在此基础上,升级创新,将优秀的设计、极致的工艺、完美的服务、系统的团队集于一身,为大宅、私宅别墅提供全案设计整装服务。
公司拥有一批从业多年的资深大宅设计师团队、经验丰富的优秀工程项目经理,用“多对一”的服务体系,打造完美的“私墅生活方式”。
Founded in 2004, city family adornment group V6 design space, service Yu Dazhai villa space and has high quality requirements of customers to decorate a design, now, villa decoration on the basis of the grey horse, upgrade the innovation, the most excellent design, technology, perfect service, system team set at a suit, provide mansion, private villa decoration design services.
The company has a group of senior mansion designers, experienced excellent project managers, with the "many to one" service system, to create a perfect "private villa lifestyle".
生活的格调
就是一个人对自我独特的定义
是生活,是艺术
而家
就是格调的终极表现
青马,只想给你一个格调家
客服
消息
收藏
下载
最近





















