查看完整案例

收藏

下载
最新案例
Latest cases
项目信息|Project information
项目地址/曲江大城二期
Project address |Qujiang Dacheng phase II
建筑户型/叠拼
Project address | Overlapping
施工面积/440 平方米
Construction area | 440㎡
设计风格/现代中式
Design style|Modern Chinese style
设计公司/青马别墅空间设计
Design company | Qing Mavilla space design
全案设计/冯杰设计团队
Whole case design | Feng jiedesign team
大客户经理/任飞虹 Key Account Manager|Fei-hongren
工程管家/韩鹏辉 Project Manager| Peng-huihu
全案产品/
东鹏 AART 瓷砖、高仪洁具、欧派厨房定制、迪诺整屋定制、方太厨房电器 Whole case products|
Dongpeng AART tile, Gaoyi sanitary ware, European kitchen customization, Dino whole house customization, Fangtai kitchen appliance
本案
曲江大城二期叠拼结构,设计师冯杰用现代中式的手法与细致入微的细节,塑造一个回归生活的自然居所,在现代化快节奏的生活里,归家便还原生活最惬意的本质,静享生活恬静淡然之美。
In this case, Feng Jie, the designer of the overlapping structure of Qujiang Dacheng phase II, uses modern Chinese techniques and meticulous details to create a natural residence returning to life. In the modern fast-paced life, returning home will restore the most comfortable nature of life and enjoy the beauty of quiet life.
户型分析|House type analysis
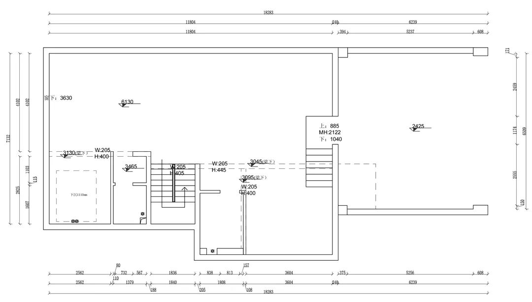
▼ 负 2 层
原始结构
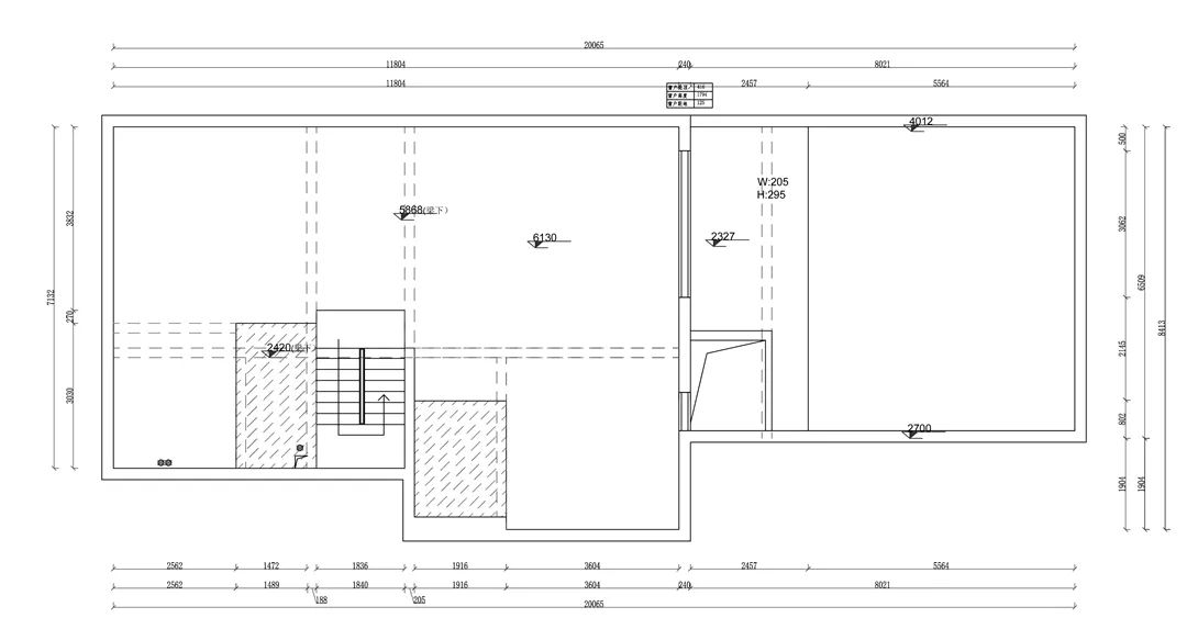
▼负 2 层
设计布局
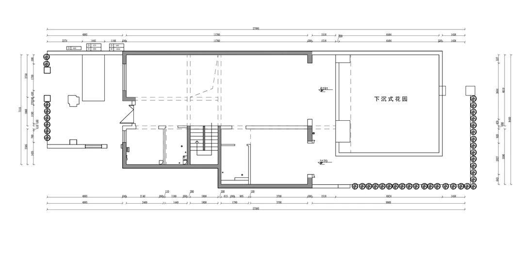
▼负 1 层
原始结构
▼负 1 层
设计布局
▼ 一层
原始结构
▼ 一层设计布局
▼ 二层
原始结构
▼ 二层设计布局
△440 平米叠拼结构
南北通透,通风良好,地下室 6.1 米层高搭建一层结构,有效合理利用面积,增加功能空间。原楼梯踏步不合理,设计改造改善踏步高度,优化整个四层结构,将动线与功能区合理布置,生活怡然自得。
The 440 square meter stacked structure is transparent from north to South with good ventilation. The basement is 6.1 meters high, and a one-story structure is built to effectively and reasonably use the area and increase the functional space. The original stair steps are not reasonable, so the design and transformation should be carried out to improve the step height, optimize the whole four floor structure, reasonably arrange the moving line and functional area, and make life comfortable.
设计方案
design scheme
将下沉式花园改为室内空间,增加室内功能区,通过更合理的格局排布和动线梳理来营造高品质的生活之物,精致化的视觉感受,将艺术性、文雅而随性的美好感受融入日常,定制专属生活。
The sunken garden will be changed into an indoor space, and the indoor functional area will be increased. Through more reasonable layout and moving line carding, it will create high-quality living things, exquisite visual experience, and integrate artistic, elegant and casual feelings into daily life, so as to customize the exclusive life.
地下室层高 6.1 米,中间 3.4 米位置有承重梁,搭建二层结构,增加空间利用率。车库下挖,减少与室内高低落差,室内钢结构楼梯重新现浇混凝土,加宽变缓增加舒适度。寻找空间的突破,优化布局,承载更多休闲的可能。
The basement is 6.1 meters high, and there is a bearing beam at 3.4 meters in the middle. A two-story structure is built to increase the space utilization. The garage is dug down to reduce the height difference between the garage and the room, and the indoor steel structure stairs are re-cast in situ concrete, which is widened and eased to increase the comfort. Looking for a breakthrough in space, optimizing the layout, carrying more leisure possibilities.
休闲区力图用抽象山水、茶、器等最朴实的元素,赋予生活品质最精准的表达。低调却雅致,内敛而深沉,艺术与文化元素在日常生活中的植入与融合,是屋主独特的审美品味体现。
The leisure area tries to give the most accurate expression of the quality of life with the most simple elements such as abstract landscape, tea and utensils. Low key but elegant, introverted and deep, the implantation and integration of art and cultural elements in daily life is the embodiment of the owner’s unique aesthetic taste.
The objects with a sense of quality and the artworks and books carefully collected and placed reflect the owner’s artistic pursuit from life but higher than life. The rich and elegant spiritual world, in the seemingly casual design outline and description, forms the exclusive temperament of the space and the owner, which is quiet, elegant and fascinating.
依据屋主喜好特设品酒区,开放的区域增加导台,让小酌一杯的情调在环境的烘托下随心所欲,私密区收藏臻品红酒,一半精致一半随性,洒脱的生活态度让情绪尽情释放。
According to the owner’s preference, the wine tasting area is specially set up, and the open area is provided with guide platform, so that the taste of a cup of small drink can be freely set in the environment. The private area collects the refined red wine, half exquisite and half casual, and the free and easy attitude of life let the mood be released.
整个地下空间基于层高优势,呈现了一个可供家庭成员使用的多元化功能空间。特设台球室、棋牌室、影音室,让爱好在空间里盛放,通过相应的空间功能提升,实现墅级空间与生活品质升级。
Based on the advantage of story height, the whole underground space presents a diversified functional space for family members. Billiards room, chess room and video room are specially set up to let hobbies bloom in the space. Through the corresponding space function promotion, villa level space and quality of life can be upgraded.
客餐厅温润木材贯穿分割,治愈的木色从客厅蔓延到餐厅区域,端景禅意松枝将绿色自然引入室内,把生机藏在深深浅浅的绿意中,休闲自然的氛围令人畅然自在。内与外、生活与自然的隔阂被消解,形成自由流动的舒缓格局。
s and tranquility endowed by nature are introduced into the room to pay tribute to the beauty of future life. The warm wood in the dining room runs through the division, and the cured wood color spreads from the living room to the dining room area. The Zen pine branch of duanjing introduces the green nature into the room, and hides the vitality in the deep and shallow green meaning. The leisure and natural atmosphere makes people comfortable. The estrangement between inside and outside, between life and nature has been dispelled, forming a free flowing and soothing pattern.
客卧空间中作“减法”,在简洁现代中融入新中式的巧思,满足功能属性外,选择大地系配色彰显尊贵高级感。不流俗的审美趣味让人感受到无压舒适、贴近自然的舒缓生活节奏。
"Subtraction" is used in the guest bedroom space, and the new Chinese ingenious thinking is integrated into the simple and modern space. Besides meeting the functional attributes, the earth color system is selected to show the noble and advanced feeling. Non vulgar aesthetic taste makes people feel comfortable and close to the natural rhythm of life.
主卧室分割成两间独立卧室,南向阳台搭建,封窗户,有效增加室内空间,舒适度更高。素雅的色彩让一室澄明好梦常伴,中式的对称之美让空间秩序舒爽,诗意栖息沁入自然的鲜活与朴素。
The master bedroom is divided into two independent bedrooms. The south facing balcony is built and the windows are sealed, which effectively increases the indoor space and improves the comfort.
The simple and elegant color makes the room clear and the good dream often accompany. The symmetrical beauty of Chinese style makes the space order comfortable, and the poetic habitat is fresh and simple.
儿童房延续整体风格意境,将最浪漫最童真色彩赋予其中,感受温柔静谧的美好。
自然意蕴的新家自有一种与世隔绝、携手隐居的浪漫,恬静淡然在空间中肆意流淌,折射出新家宁静温馨的诗意生活。
Children’s room continues the overall style and artistic conception, endows it with the most romantic and childlike colors, and feels the gentle and quiet beauty. The natural implication of the new home has a kind of isolation, hand in hand seclusion of romantic, quiet and indifferent in the space wantonly flowing, reflecting the new home quiet and warm poetic life.
本案设计师
Designer of this case
设计师:冯杰
Designer/Feng Jie
冯杰
青马设计主创设计师
毕业于西安美术学院环境艺术设计系
室内装饰行业从业 18 年以上,专属大宅全案设计
资质| Qualifications
中国室内装饰协会注册设计师
国际建筑装饰室内设计协会-高级室内设计师
国际 ICDA 室内设计师协会会员
理念| Idea
用心营造灵性的空间,用最少的语言表达最深厚的理念,以人为本,不只是设计,而是对生活的感悟和追求。
殊荣 | Award
2006 年西安市紫薇地产欧洲世家别墅楼盘样板间设计最佳创意奖
2011 年-2015 年任城市人家设计师导师
2014 年陕西省创意空间设计交流会最佳环保理念奖
2017 年 L&D 唯美《设计源·世家杯》陕西省设计界精英人物
2018 年第二届中国建筑协会大奖赛室内设计组特约导师
2018 年十间坊&芒果奖实战设计大赛荣获最佳中国设计推动奖
2019 红棉中国最设计大赛美最艺术空间奖
2019 金梁中国设计奖杰出设计师
2019 年西安市住宅装饰行业年度设计师总评榜优秀设计师
2020 年陕西省第十一届室内装饰设计大赛优秀奖
2020 年陕西省室内装饰协会第 11 届原点明珠杯设计大赛专业组优秀奖
案例|Case
浐灞半岛、沙拉曼卡别墅、普华浅水湾、曲池坊、紫薇曲江意境、丰源美家别墅区、紫薇欧洲世家别墅区、曲江航天佳苑、曲江 6 号、紫汀院、龙湖璟宸、骊山下院子……
关于青马
About Qing Ma
2004 年,城市人家装饰集团成立 V6 设计空间,服务于大宅别墅空间及对装修设计有高品质要求的客户,如今,青马别墅装饰在此基础上,升级创新,将优秀的设计、极致的工艺、完美的服务、系统的团队集于一身,为大宅、私宅别墅提供全案设计整装服务。
公司拥有一批从业多年的资深大宅设计师团队、经验丰富的优秀工程项目经理,用“多对一”的服务体系,打造完美的“私墅生活方式”。
Founded in 2004, city family adornment group V6 design space, service Yu Dazhai villa space and has high quality requirements of customers to decorate a design, now, villa decoration on the basis of the grey horse, upgrade the innovation, the most excellent design, technology, perfect service, system team set at a suit, provide mansion, private villa decoration design services.
The company has a group of senior mansion designers, experienced excellent project managers, with the "many to one" service system, to create a perfect "private villa lifestyle".
生活的格调
就是一个人对自我独特的定义
是生活,是艺术
而家
就是格调的终极表现
青马,只想给你一个格调家
客服
消息
收藏
下载
最近





































