查看完整案例

收藏

下载
最新案例
Latest cases
项目信息|Project information
项目地址/龙湖天钜
Project address |Longhu Tianju
建筑户型/底跃
Project address | Base jump
施工面积/295 平方米
Construction area | 295㎡
设计风格/现代简约
Design style|Modern simplicity
设计公司/青马别墅空间设计
Design company | Qing Mavilla space design
全案设计/刘永强设计团队
Whole case design | Yong-qiang liudesign team
大客户经理/张耀
Key Account Manager| Zhang yao
工程管家/刘鑫
Project Manager| Liu xin
全案产品/
LD 陶瓷、华艺石材 、高仪洁具 、东芝空调、欧派橱柜、整木定制、方太电器、得高地板
Whole case products|LD ceramic, Huayi stone, Gaoyi sanitary ware, Toshiba air conditioner, opal cabinet, whole wood customization, Fangtai electric appliance, Degao floor
本案龙湖天钜底跃户型,设计师刘永强将空间重新规划,一层去除掉不必要的空间使得公共空间得到释放,同时也使得空间功能更多样化更清晰。地下室的改造,使得空间的趣味性,舒适度大大增强,挑空的处理更是将底室的不足变成亮点。整体以黑白灰为主色调,简约的设计使空间非常含蓄,以少胜多、以简胜繁,新家高级舒适又耐看。
In the case of Longhu Tianju Diyue apartment, the designer Liu Yongqiang re planned the space, removed the unnecessary space on the first floor, released the public space, and made the space function more diversified and clearer. The transformation of the basement makes the space more interesting and comfortable. The treatment of empty space turns the shortage of the basement into a highlight. The overall color is mainly black and white and gray. The simple design makes the space very implicit. Less is better than more, simple is better than complex. The new home is high-grade, comfortable and durable.
户型分析|House type analysis
▼ 负二层
原始结构
▼ 负二层设计布局
▼ 搭建夹层
▼ 一层
原始结构
▼一层设计布局
▼二层
原始结构
▼二层设计布局
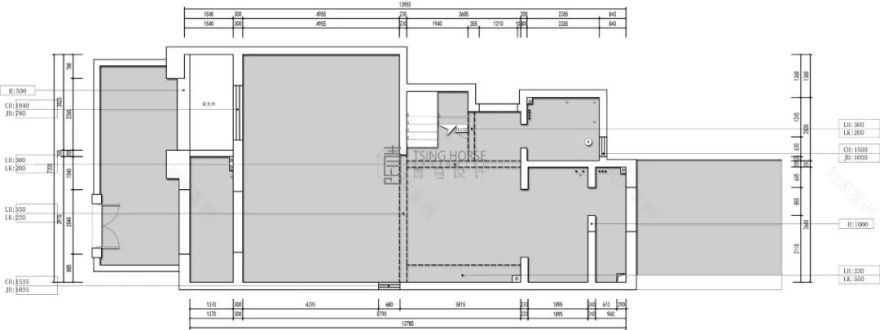
△295 平米底跃结构
南北通透,通风良好,一二层采光良好,有庭院,有地下室。但其层数较多,无电梯井舒适度不够。原始楼梯间空间局促光线差,空间格局基于平层户型设计各个功能配比不合理,需要重新规划。顶面梁体多错落复杂需合理处理,利用其挑高较高且承重墙少的优势大胆将空间改造,搭建夹层改善其结构性缺点,让居家更舒适。
The 295 square meter bottom jump structure is transparent from north to south, with good ventilation on the first and second floors, good lighting, courtyard and basement. But it has many floors, and the comfort without elevator shaft is not enough. The original staircase space is limited, the light is poor, the space pattern is based on flat floor apartment design, and the function ratio is unreasonable, so it needs to be re planned. Most of the top beams are scattered and complex, which need to be treated reasonably. Taking advantage of its higher height and less load-bearing walls, we boldly transform the space and build interlayer to improve its structural shortcomings and make home more comfortable.
设计方案
design scheme
/ 请旋转手机观看 /
客厅部分奠定沉稳而自然的基调,家具的颜色选用了高级灰,绒面的亲肤质感丰富了整体空间的细节,简洁的装饰品与墙壁的留白使空间在与自然融合的同时增添了现代感。极简的格调却也将收纳功能考虑的极为细致,收纳柜一实一虚分割了整体的空间比例,简洁而不失层次感。
The living room has laid a stable and natural tone. The color of furniture is high-grade gray. The suede texture enriches the details of the overall space. The simple decorations and the blank space on the wall make the space more modern while integrating with the nature. The minimalist style also takes the storage function into consideration. The storage cabinet divides the overall space proportion from real to virtual, which is simple without losing the sense of hierarchy.
餐厅区域延续简洁自然的设计风格,采用开放式布局,大理石的岛台与木色餐桌镶嵌拼接,高级又简洁。背后的柜体一体化设计让空间规整有序,开合间隐藏与展示分区,空间层次丰富收纳整洁。用餐的氛围被线性关系引导,仪式感十足。
The restaurant area continues the simple and natural design style, adopts the open layout, the marble island platform and the wood colored dining table are inlaid and spliced, advanced and simple, the integrated design of the cabinet behind makes the space orderly, the opening and closing rooms are hidden and displayed, the space level is rich, the storage is clean, the dining atmosphere is guided by the linear relationship, and the sense of ceremony is full.
主卧整体配色与客厅相同,深色实木地板与灰色床品在空间中和谐统一,床头的氛围灯与圆形艺术装置精致而富有设计感。
阳台休闲区为这私密的空间增添无限乐趣,关起门这片简简单单的小天地为生活做减法,轻松惬意又怡然自得。
The color matching of the master bedroom is the same as that of the living room. The dark solid wood floor and gray bedding are in harmony in the space. The atmosphere lamp and circular art installation at the head of the bed are exquisite and full of design sense. Balcony leisure area for this private space to add infinite fun, closed the door of this simple small world for life subtraction, relaxed and contented.
休闲品茗区
极简但不失生活化的配饰点缀,功能至上,去装饰化的设计诠释了屋主少即是多的审美喜好。这简洁利落的空间为生活平添留白,以感官感受去制造最强烈的记忆。这里,不多不少,舒适的刚刚好。
The leisure tea area is extremely simple, but it does not lose the life style accessories. The function is supreme, and the de decoration design interprets the owner’s aesthetic preference that less is more. This simple and tidy space adds space for life, and creates the strongest memory with sensory experience. Here, not much, not much, just comfortable.
健身空间设计简约而高雅,对于黑白灰的巧妙搭配,营造出一种干净利落的空间气质。简单的配色贯穿整个空间,使得空间自然的成为了一个整体。没有多余的装饰,却能完美的展示出现代极简主义中的写意之美,新家,高雅舒适又耐看。
The fitness space design is simple and elegant. The ingenious collocation of black, white and gray creates a clean space temperament. Simple color matching runs through the whole space, making the space a natural whole. There is no unnecessary decoration, but it can perfectly show the beauty of freehand brushwork in modern minimalism, new home, elegant, comfortable and durable.
本案设计师
Designerof this case
设计师:刘永强
Designer/Yong-qiang liu
刘永强
青马设计主创设计师
毕业于西北大学艺术设计专业
室内装饰行业从业 17 年以上,专属大宅全案设计
资质| Qualifications
国家二级注册建造师
中国建筑装饰协会注册会员室内设计师
理念 | Idea
把业主对空间的情感诉求,用自己的设计语言得以展现
殊荣 | Award
2011 年 阿姆瑞特设计大赛银奖
2014 年 荣获室内空间设计筑巢奖优秀奖
2015 年 中国室内设计大赛三等奖
2016 年荣获设博会十大影响力设计师
2017 年 IDEA-TOPS 艾特奖国际空间设计大奖最佳别墅入围奖
案例 |Case
永和坊,融侨城,丹轩坊,赛高悦府,西派国际,天鹅堡,白桦林间,紫汀苑,金辉世界城,中铁琉森水岸,阳光城蔷薇溪谷,国润城,巴塞阳光,西西安小镇,春城十八里,秦汉新城,枫丹丽舍,御河上院等。
关于青马
About Qing Ma
2004 年,城市人家装饰集团成立 V6 设计空间,服务于大宅别墅空间及对装修设计有高品质要求的客户,如今,青马别墅装饰在此基础上,升级创新,将优秀的设计、极致的工艺、完美的服务、系统的团队集于一身,为大宅、私宅别墅提供全案设计整装服务。
公司拥有一批从业多年的资深大宅设计师团队、经验丰富的优秀工程项目经理,用“多对一”的服务体系,打造完美的“私墅生活方式”。
Founded in 2004, city family adornment group V6 design space, service Yu Dazhai villa space and has high quality requirements of customers to decorate a design, now, villa decoration on the basis of the grey horse, upgrade the innovation, the most excellent design, technology, perfect service, system team set at a suit, provide mansion, private villa decoration design services.
The company has a group of senior mansion designers, experienced excellent project managers, with the "many to one" service system, to create a perfect "private villa lifestyle".
生活的格调
就是一个人对自我独特的定义
是生活,是艺术
而家
就是格调的终极表现
青马,只想给你一个格调家
客服
消息
收藏
下载
最近

















