查看完整案例

收藏

下载
最新案例
Latest cases
项目信息|Project information
项目地址/名仕花园
Project address|Mingshi Garden
建筑户型/顶复
Project address|Top duplex
施工面积/300 平方米
Construction area|300㎡
设计风格/现代
Design style|Modern
设计公司/青马别墅空间设计
Design company | Qing Mavilla space design
全案设计/刘永辉设计团队
Whole case design | Yong-hui liudesign team
大客户经理/厚慧慧 Key Account Manager| Hui-hui hou
工程管家/刘鑫 Project Manager| Liu xin
全案产品/
LD 陶瓷 、花艺石材 、高仪洁具 、大金空调 、M77 整木定制 、方太电器 、得高木地板 Whole case products|
LD ceramics, flower stone, Gaoyi sanitary ware, Dajin air conditioner, M77 whole wood customization, Fangtai electric appliance, Degao wood floor
本案名仕花园,两层顶复居住着三代人,设计师刘永辉为其打造一个温馨休闲的栖息地,为在此环境中的人留下充满感性的体验与记忆。干净简洁的设计与清晰明了的线条,以一种清醒克制的姿态完成了与生活的融合,让艺术与生活和谐相处。
In this case, the Mingshi garden has three generations of people living on the top of two floors. The designer Liu Yonghui creates a warm and leisure habitat for it, leaving people full of emotional experience and memory in this environment. Clean and concise design and clear lines, with a sober and restrained attitude to complete the integration with life, let art and life live in harmony.
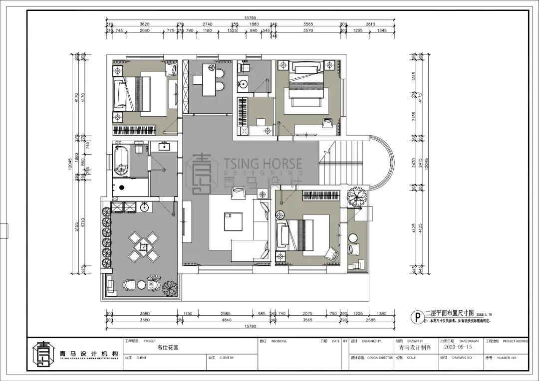
户型分析|House type analysis
▼ 一层
原始结构
▼ 一层设计布局
▼ 二层
原始结构
▼ 二层设计布局
△300 平米顶复结构
南北通透,通风采光良好,各个房间面积宽敞好利用,且露台可以搭建阳光房。但其门厅、客厅空间不明确,一楼卫生间空间小,二楼卫生间利用率低。房间虽多,但空间都不大,设计便以此展开合理规划,提升生活品质。
The 300 square meter roof structure is transparent from north to south, with good ventilation and lighting. Each room is spacious and easy to use, and the balcony can be used to build a sunshine room. But its hall living room space is not clear, the first floor bathroom space is small, the second floor bathroom utilization rate is low. Although there are many rooms, but the space is not big, so the design uses it to carry out reasonable planning and improve the quality of life.
设计方案
design scheme
褪去城市喧闹外衣,余下闲暇享受肆意。归家入户,目光所及之处皆是喜欢的格调与雅致的氛围。大气的玄关区域,规划两组实用的柜子,既满足收纳的需求,又奠定了房子独特的气质。
Take off the noisy coat of the city, and enjoy the rest of your leisure. When you go back home, you can see your favorite style and elegant atmosphere, the grand entrance area, and two groups of practical cabinets, which not only meet the storage needs, but also lay the unique temperament of the house.
新建电视墙打破原有格局限制,整合空间使公共区域更流畅与贯通。可随意组合摆放的沙发位,规划多元生活与人居体验,为家庭活动及情感交流创造更多机会。一黑一白电视背景与沙发背景遥相对望,辅以天然纹理点缀,述尽纯粹极致的美学力量感。
The new TV wall breaks the limitation of the original pattern and integrates the space to make the public area more fluent and connected. Sofa seats can be arranged at will to plan diversified life and living experience, creating more opportunities for family activities and emotional exchanges. One black and one white TV background and sofa background are facing each other, supplemented by natural texture embellishment, to express the pure ultimate sense of aesthetic power.
餐厅区域圆顶圆桌呼应形成圆圆满满的氛围感受,开放式厨房与餐桌岛台围合着归属感,将空间之间的互动性作为塑造空间的元素,内心的情感随着场域层次的渐变层层递进,美食的香气与阳光共舞,曼妙的韵律在心中徜徉。
The open kitchen and the dining table island are surrounded by a sense of belonging. The interaction between the spaces is regarded as an element to shape the space. With the gradual change of the field level, the inner feelings gradually advance. The fragrance of food dances with the sunshine, and the graceful rhythm roams in the heart.
女主卧室
有场景感的素色铅画床头背景,让空间有了流动感,再搭配舒适的床具,用温和而内敛的气质勾勒安心入眠的场景。搭配衣帽间与卫生间,功能上的完善让生活称心如意,编织了一个舒缓充盈的场域,对美梦也充满憧憬。
The solid color lead painting bedside background with a sense of scene in the bedroom gives the space a sense of fluidity. With comfortable bedding, it outlines the scene of sleeping peacefully with a gentle and introverted temperament. With cloakroom and toilet, the perfect function makes life happy, weaving a soothing and full field, full of vision for dreams.
男主卧室舒适的格局,精美的设计,整体雅致素净的色调与一抹明媚鹅黄碰撞点缀,散发出空间独特气质,透过床边渗入的暖阳,就这样温柔地把生活融入空间。干湿分离的卫生间,动线合理,日常行为的便利才是生活幸福感的源泉。
The comfortable pattern and exquisite design of the male master bedroom, as well as the overall elegance and pure tone and a touch of bright yellow collision embellishment, exude a unique temperament of space. Through the warm sun infiltrated by the bedside, life is gently integrated into the space.
Wet and dry separation of the toilet line is reasonable, the convenience of daily behavior is the source of life happiness.
家庭厅与休闲阳台,拉近家人的距离,生活处处透着小惊喜。虽然时间交错无法调律,四季更替无法改变,但我们愿意呈上一个万花筒般的缤纷生活,留下这生机盎然,与最亲爱的人共享鸟语花香好时节。
本案设计师
设计师:刘永辉
Designer/Yong-hui liu
刘永辉
青马设计主创设计师
毕业于西安美术学院
室内装饰行业从业 16 年以上,专属大宅全案设计
资质| Qualifications
中国室内装饰协会注册设计师
国际建筑装饰室内设计协会-高级建筑室内设计师
理念| Idea
设计
源于生活,生活因设计而改变。
成就空间和谐,拒设计物有所值,让细节缔造完美。
殊荣 | Award
2006 年评为西安年度优秀设计师奖
2007 年评为西安风尚设计大赛优秀奖
2009 年荣获金意陶杯银奖
2010 年荣获筑巢设计大赛优秀奖
2012 年原点设计大赛荣获银奖
2015 年别墅设计优秀奖
2019 年第十二届大金内装设计大赛西北地区美宅设计奖
2020 年“原点明珠杯”陕西省第十一届室内装饰设计大赛优秀奖
案例|Case
金地芙蓉世家、金地湖城大境、曲江观邸、
鸿基紫郡、紫薇永和坊、白桦林间、
天鹅堡、融侨城、海珀紫庭、逸翠园、逸翠尚府、雅居乐御宾府、曲江和园、
中海铂宮、曲江公馆等。
关于青马
About Qing Ma
2004 年,城市人家装饰集团成立 V6 设计空间,服务于大宅别墅空间及对装修设计有高品质要求的客户,如今,青马别墅装饰在此基础上,升级创新,将优秀的设计、极致的工艺、完美的服务、系统的团队集于一身,为大宅、私宅别墅提供全案设计整装服务。
公司拥有一批从业多年的资深大宅设计师团队、经验丰富的优秀工程项目经理,用“多对一”的服务体系,打造完美的“私墅生活方式”。
Founded in 2004, city family adornment group V6 design space, service Yu Dazhai villa space and has high quality requirements of customers to decorate a design, now, villa decoration on the basis of the grey horse, upgrade the innovation, the most excellent design, technology, perfect service, system team set at a suit, provide mansion, private villa decoration design services.
The company has a group of senior mansion designers, experienced excellent project managers, with the "many to one" service system, to create a perfect "private villa lifestyle".
生活的格调
就是一个人对自我独特的定义
是生活,是艺术
而家
就是格调的终极表现
青马,只想给你一个格调家
客服
消息
收藏
下载
最近



















