查看完整案例

收藏

下载
最新案例
Latest cases
项目信息|Project information
项目地址/融创揽月府
Project address | Rongchuang moon Mansion
建筑户型/洋房
Project address | Villa
施工面积/316平方米
Construction area | 316㎡
设计风格/新中式
Design style | New Chinese style
设计公司/青马别墅空间设计
Design company | Qing Ma villa space design
全案设计/曲森设计团队
Whole case design | Qu sen design team
大客户经理/刘宣君
Key Account Manager | Xuan-jun liu
工程管家/韩鹏辉
Project Manager | Peng-hui han
全案产品/
富士通空调、3M净水、华为智能、方太电器、高仪、博华瓷砖、雷狄尼高级定制
Whole case products | Fujitsu air conditioning, 3M water purification, Huawei intelligent, Fangtai electric, Gaoyi, Bohua ceramic tile, radini advanced customization
本案融创揽月府,街巷庭院,围合成记忆里传统居所的模样,独院洋房的户型,设计师曲森遵循大环境的格调,以新中式的笔触打造
“
疏而不空,满而不溢
”的留白想象空间,
与自然环境相协调,
塑造出留有东方禅意风骨的雅致空间。
This case integrates the creation of the moon house, the streets and courtyards, surrounding the traditional residence in memory, and the house type of single courtyard house. The designer Qu Sen follows the style of the big environment and creates a blank imagination space of "sparse but not empty, full but not overflowing" with new Chinese style brush strokes, which is coordinated with the natural environment to create an elegant space with Oriental Zen spirit.
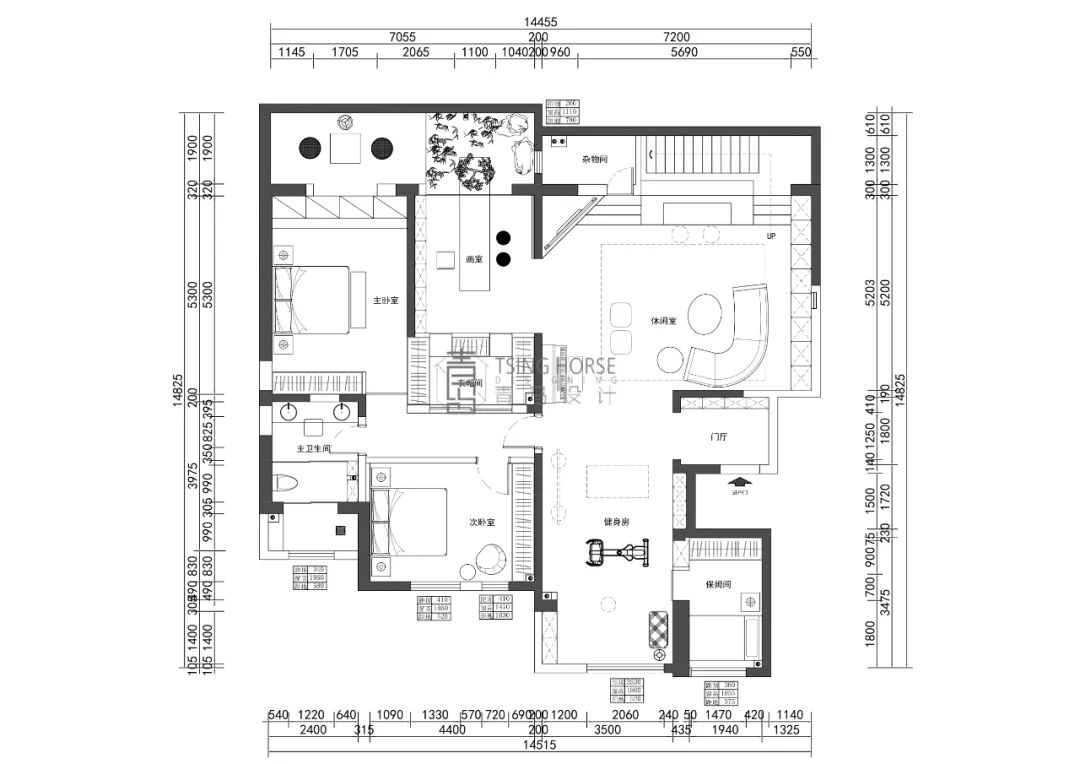
一层| First floor
▼
原
始结构
▼ 设计布局
△
一层
休闲区需要吧台功能,借助楼梯位置改造,主卧缺少衣帽间,将画室与阳台的景观相结合,将景观与室内融为一体。
The first floor leisure area needs the bar function. With the help of the stair position transformation, the master bedroom lacks the cloakroom. It combines the landscape of the studio and the balcony to integrate the landscape with the interior.
设计方案
design scheme
巧妙利用楼梯改造而成的吧台区,成就休闲厅的独特魅力。淡雅的色彩,洗练的线条,绿色盎然的枝条,散发着水墨写意与现代的简洁利落,幽幽意境之美蔓延。
The bar area transformed by stairs is skillfully used to achieve the unique charm of the leisure hall. Elegant colors, washed lines, green branches, send out the ink freehand brushwork and modern simplicity, the beauty of quiet artistic conception spread.
空间局部以淡雅水兰点缀,呈现细微的色彩表情,质朴的大地色低调不失雅致,质感兼具品味。现代中式家居的极简之美,在于韵,在于雅,将中式古典文化的精髓融入生活之中,又结合现代设计大胆创作,让空间显得简约、清透、朴素、内敛。
Some of the space is decorated with elegant water orchids, showing subtle color expression. The plain earth color is low-key and elegant, and the texture has taste. The beauty of simplicity of modern Chinese style home lies in rhyme and elegance. The essence of Chinese classical culture is integrated into life, and combined with modern design, bold creation makes the space appear simple, clear, simple and restrained.
转角而过便是健身区域,这里集合了屋主的爱好与逸趣。骑行自行车悬挂与墙体上,绚丽的色彩既是装点又节省空间。一架钢琴与空间吟唱,这里承载了所有自由的美好时光,于自然回旋里感受细腻婉约。
Around the corner is the fitness area, where the owner's hobbies and interests are gathered. Riding bicycle hanging on the wall, gorgeous colors not only decorate but also save space. A piano and space singing, here carrying all the good time of freedom, feel delicate and graceful in the natural whirl.
茗茶区承载着情绪转换的首要功能,
一步一景,
无需大肆渲染,
仅用风雅翠竹,
一束柔和的灯光搭配字画、摆件、古玩等
精
妙小品,
就能做成一处雅致的景,
让空间层次更显丰富,
在城市繁华与舒适雅静之间,找到平衡与静谧。
The tea area carries the primary function of emotional transformation. Step by step, there is no need to exaggerate it. With elegant green bamboo, a bunch of soft lights and exquisite pieces such as calligraphy and painting, ornaments, antiques and other exquisite pieces, the tea area can be made into an elegant scene, making the spatial level more rich, and finding balance and tranquility between the prosperity of the city and the comfort and quietness of the city.
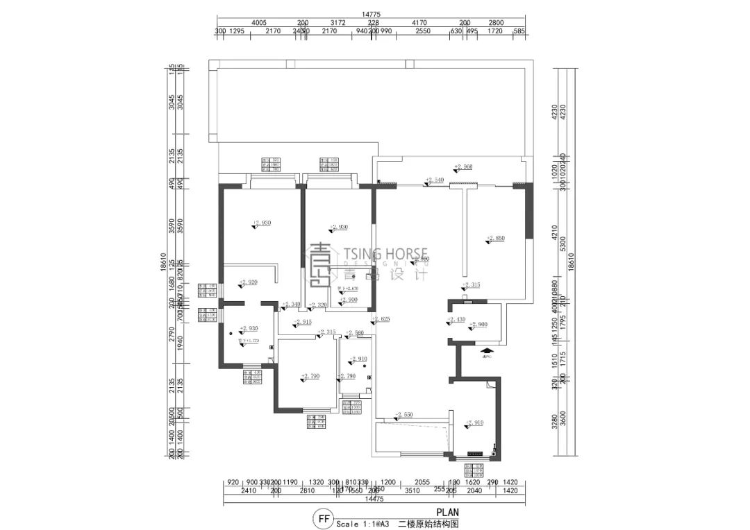
二层| Second floor
▼
原
始结构
▼ 设计布局
△
二楼
把茶室空间打开,使动线产生洄游。原始楼梯位置不合理,改变方位,使餐厅的功能更加丰富。
The second floor opens the tea room space, making the moving line move. The original staircase position is unreasonable, changing the orientation, so that the function of the restaurant is more abundant.
设计方案
design scheme
客厅在避繁就简的设计笔触中,款款诉说着自然纯粹的情思,于喧嚣一隅中寻觅出质朴生活之道。
对称中式家具之美,
使这四方围合的有限空间也开始无限延伸开去,写意山峦背景墙与自然一同有机生长着,
秀雅诗性且又高贵平和。
In the simple design style of avoiding complexity, the living room tells the natural and pure feelings, and seeks the simple way of life in the noisy corner. The beauty of symmetrical Chinese style furniture makes the limited space surrounded by four sides begin to extend infinitely. The background wall of impressionistic mountains grows organically with nature, which is elegant, poetic and peaceful.
窗外自然景色流转着,与室内气韵缱绻相融。茶室素净的姿态
云淡风轻弥漫其中,
造景、框景
与自然浑然一体,
冥然境间,万籁皆有声。茶香缭绕,清风佛面,刹时烦嚣顿去,豁然遐朗,一派清幽之境悄然发生。
The natural scenery outside the window circulates and blends with the indoor charm. The simple and clean posture of the tea room is filled with light clouds and light breeze. The scenery making, frame scenery and nature are integrated into one, and all sounds are heard in the dark and natural environment. The fragrance of tea, the breeze, Buddha face, the moment upset to go, suddenly Ya Lang, a school of quiet quietly happened.
本案设计师
Designer of this case
设计师:曲森
Designer /Qu sen
曲森
青马设计主创设计师
毕业于
四川美术学院
进修于清华大学空间环境艺术设计高级研修班
室内装饰行业从业17年以上,专属大宅全案设计
资质| Qualifications
四川美术学院
环境艺术室内设计专业、
土
木工程建筑专业
讲师
亚太室内设计(高级)设计师
中国装饰协会会员
中国建筑装饰高级住宅室内设计师(A010007SRD110003)
中国建筑装饰协会高级室内建筑师(A053111SA110397)
理念 | Idea
设计不仅仅是为了实现视觉效果
它的意义在于通过创造一种体验
使生活本身上升到艺术化的层面
让灵感自由释放
创造一个心灵渴望的空间
一切随心 无极
殊荣 | Award
2005北京十大优秀设计师
2007年中国装饰协会优秀设计师并获三等奖
2008年万科样板间项目合作设计师
2009年《南方周末》报做特约嘉宾
2010年作品在《居礼》杂志发表
2012年"筑巢"奖优秀作品奖
2014年陕西省创意空间设计交流会最佳环保理念奖
2015年陕西双佳电气杯设计大赛二等奖
2016年搜狐室内设计明星大赛三等奖
2017年<设计源 世界杯》陕西省设计界精英人物
案例 | Case
曲江和园公馆、曲池东岸、湖城大境、湖滨花园 、曲江官邸、永和坊别墅、莱安逸珲、振业别墅、曲江龙邸、白桦林间、天石集团行政大楼总体内装设计及附属总统套房......
关于青马
About Qing Ma
2004年,城市人家装饰集团成立V6设计空间,服务于大宅别墅空间及对装修设计有高品质要求的客户,如今,青马别墅装饰在此基础上,升级创新,将优秀的设计、极致的工艺、完美的服务、系统的团队集于一身,为大宅、私宅别墅提供全案设计整装服务。
公司拥有一批从业多年的资深大宅设计师团队、经验丰富的优秀工程项目经理,用
“多对一”的服务体系,打造完美的“私墅生活方式”。
Founded in 2004, city family adornment group V6 design space, service Yu Dazhai villa space and has high quality requirements of customers to decorate a design, now, villa decoration on the basis of the grey horse, upgrade the innovation, the most excellent design, technology, perfect service, system team set at a suit, provide mansion, private villa decoration design services.
The company has a group of senior mansion designers, experienced excellent project managers, with the "many to one" service system, to create a perfect "private villa lifestyle".
生活的格调
就是一个人对自我独特的定义
是生活,是艺术
而家
就是格调的终极表现
青马,只想给你一个格调家
客服
消息
收藏
下载
最近
















