查看完整案例

收藏

下载
最新案例
Latest cases
项目信息|Project information
项目地址/绿地与湖
Project address | Green space and lake
建筑户型/联排别墅
Project address | Townhouse
施工面积/400平方米
Construction area | 400㎡
设计风格/现代简约
Design style | Modern simplicity
设计公司/青马别墅空间设计
Design company | Qing Ma villa space design
全案设计/王洁 设计团队
Whole case design | Wang jie design team
大客户经理/王蒙
Key Account Manager | Wang meng
工程管家/刘鑫
Project Manager | Liu xin
全案产品/
富士通空调、3M净水、华为智能、方太电器、高仪、博华瓷砖、雷狄尼高级定制
Whole case products | Fujitsu air conditioning, 3M water purification, Huawei intelligent, Fangtai electric, Gaoyi, Bohua ceramic tile, radini advanced customization
本案绿地与湖,联排别墅
独到的魅力,设计师王洁
为其打造一个
简约型的空间,
在家中摆脱世俗的繁琐、复杂并且追求简单、自然的的生活状态。
通过建筑美学与材质质感显露出空间的优雅与张力,以减法设计概念,弃繁从简让生活成为主角。
In this case, green space and lake, the unique charm of the townhouse, designer Wang Jie to create a simple space for it, in the home to get rid of the mundane cumbersome, complex and pursuit of simple, natural living state. Through architectural aesthetics and material texture, the elegance and tension of space are revealed, and the concept of subtraction design is used to abandon complexity and simplify, so that life becomes the leading role.
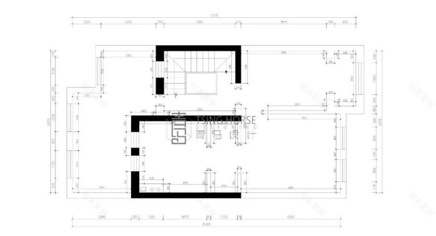
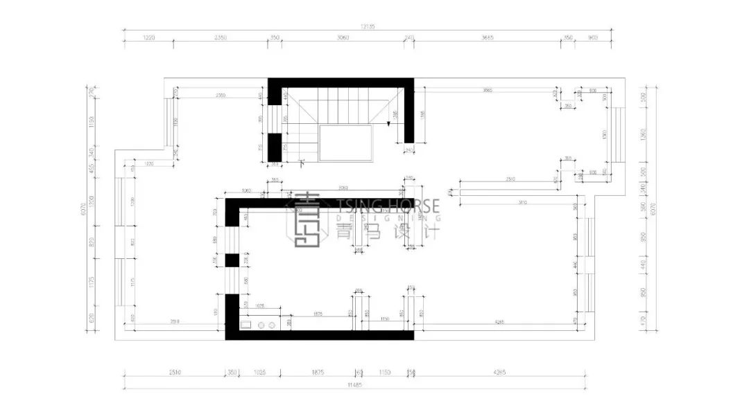
户型分析| House type analysis
▼ 一层
原
始结构
▼ 一层设计布局
▼ 二层
原
始结构
▼ 二层设计布局
▼ 三层
原
始结构
▼ 三层设计布局
▼ 负一层
原
始结构
▼ 负一层设计布局
△
别墅整体空间布局明确,空间较大,改动空间不大,空间极易产生浪费。设计便
以简约的表现形式来满足人们对于简约却不简单的居室环境的要求,为生活创造更大更多的可能性。
Villa overall space layout is clear, large space, small change space, space is easy to waste. The design will meet people's requirements for simple but not simple living environment with simple expression form, and create more possibilities for life.
设计方案
design scheme
素净沉稳的配色让空间保有喘息的机能,大地色系搭配沉静的黑与白,让居家拥有大自然气息,视觉在低彩度的色调中也能保持放松状态,安心舒适地待在家
,于光影中静享岁月,让人不自觉沉醉其中流连忘返。
The simple and steady color matching makes the space keep breathing function. The earth color system matches the quiet black and white, so that the home has the natural flavor. The vision can also keep relaxed in the low color tone. You can stay at home comfortably and enjoy the years in the light and shadow, which makes people unconsciously indulge in it and forget to return.
客厅高
挑空落地窗大面积的采光,让室内通透敞亮,落地的白色纱帘,待阳光和煦、微风拂起,成为空间里一道流动的风景。
简约舒适的灰色
高级质感沙发
与黑白纹
个性
地毯
相得益彰,
跳跃温暖的壁炉
为空间增添几分细腻质感,
既雅致又不失生活气息。
The living room is high and empty, and the large area of lighting makes the room transparent and bright. The white screen curtain on the ground will become a flowing landscape in the space when the sun is warm and the breeze is blowing. The simple and comfortable grey high-grade texture sofa and black and white pattern personalized carpet complement each other. The warm and jumping fireplace adds a bit of delicate texture to the space, which is elegant and does not lose the flavor of life.
主
卧温润木地板与地毯以规整的形态与拼接交错的造型,整合了整个空间的秩序,通过对不同材质的质感与比例的合理拿捏,层次与质感呈现,尽显非凡大气格调。
明亮的空间、优雅的色彩、现代的线条,让居室变得雅致而不失浪漫气息。
The warm and moistening wood floor and carpet in the master bedroom integrate the order of the whole space with the regular shape and splicing staggered modeling. Through the reasonable grasp of the texture and proportion of different materials, the layers and textures present an extraordinary atmosphere style. Bright space, elegant colors and modern lines make the room elegant and romantic.
衣帽间不失浪漫与典雅,传递着艺术及高雅的生活方式。通顶的白色衣柜与拱形顶面交织,在组成空间动态线条的同时,强调艺术感与现代感的相互融合。与梳妆台的巧妙结合,诉说着一种雅致,一种为悦己者容的小美好。
The cloakroom is romantic and elegant, conveying art and elegant lifestyle. The top of the white wardrobe is interwoven with the arched top, which not only forms the dynamic lines of space, but also emphasizes the mutual integration of artistic sense and modern sense. The ingenious combination with the dressing table tells a kind of elegance, a small beauty for those who like themselves.
主卫运用大理石、艺术夹丝玻璃、香槟金不锈钢作几何造型拼接,些许的金属色点缀,让此区域简洁之余富有现代感和设计感,视觉上别具匠心。
流畅而自然的动线规划
,让沐浴时光惬意又舒适。
The main bathroom uses marble, art glass, champagne gold and stainless steel for geometric modeling splicing, and some metal color embellishment, which makes this area simple and full of modern sense and design sense, and has unique visual ingenuity. Smooth and natural moving line planning makes bath time comfortable and comfortable.
负一层休闲厅结合主人兴趣爱好,规划出观影与桌球等娱乐项目,
将所有热爱和怦然心动寄予其中。
若家是生活和理想的总和,那就在一万种生活的共性里,以感性为引,以逻辑为线,去开辟出心之所寄与心之所向,自在不设限。
The leisure hall on the first floor of the building combines the host's interests and hobbies, and plans entertainment projects such as film watching and billiards, and places all the love and heartthrob on it. If home is the sum of life and ideal, then in the commonness of ten thousand kinds of life, with sensibility as the guide and logic as the line, we can open up the heart's place and the heart's direction without any limitation.
本案设计师
Designer of this case
设计师:王洁
Designer /Wang jie
王洁
青马设计主创设计师
毕业于西安美术学院
室内装饰行业从业15年以上,专属大宅全案设计
资质| Qualifications
中国室内装饰协会注册设计师
国际建筑装饰室内设计协会-高级建筑室内设计师
理念| Idea
设计是一种感受、一种心态、一种舒适的、开心的生活方式。
殊荣 | Award
2006年评为西安年度优秀设计师奖金
2009年荣获金意陶杯银奖
2010年荣获筑巢设计大赛优秀奖
2012年原点设计大赛荣获银奖
2013年别墅设计内优秀奖
2019年第十二届大金内装设计大赛西北地区美宅设计奖
案例| Case
金地芙蓉世家、金地湖城大境、曲江华府、曲江观邸、 鸿基紫韵、紫薇永和坊、白桦林间、红枫林、融侨城、海珀紫庭、逸翠园、逸翠尚府、雅居乐御宾府、曲江和园、
中海铂宮、曲江公馆等。
关于青马
About Qing Ma
2004年,城市人家装饰集团成立V6设计空间,服务于大宅别墅空间及对装修设计有高品质要求的客户,如今,青马别墅装饰在此基础上,升级创新,将优秀的设计、极致的工艺、完美的服务、系统的团队集于一身,为大宅、私宅别墅提供全案设计整装服务。
公司拥有一批从业多年的资深大宅设计师团队、经验丰富的优秀工程项目经理,用
“多对一”的服务体系,打造完美的“私墅生活方式”。
Founded in 2004, city family adornment group V6 design space, service Yu Dazhai villa space and has high quality requirements of customers to decorate a design, now, villa decoration on the basis of the grey horse, upgrade the innovation, the most excellent design, technology, perfect service, system team set at a suit, provide mansion, private villa decoration design services.
The company has a group of senior mansion designers, experienced excellent project managers, with the "many to one" service system, to create a perfect "private villa lifestyle".
生活的格调
就是一个人对自我独特的定义
是生活,是艺术
而家
就是格调的终极表现
青马,只想给你一个格调家
客服
消息
收藏
下载
最近




















