查看完整案例

收藏

下载
最新案例
Latest cases
项目信息|Project information
项目地址 |枫丹丽舍
Project address | Fengdan Lishe
建筑户型 |联排别墅
Project address | Townhouse
施工面积 |400平方米
Construction area | 400㎡
设计风格 |现代东方
Design style | Modern oriental
设计公司 |青马别墅空间设计
Design company | Qing Ma villa space design
全案设计 |郭天佑 设计团队
Whole case design | Tian-you guo design team
大客户经理 |王晓东
Key Account Manager | Xiao-dong wang
工程管家 |刘鑫
Project Manager | Liu xin
全案产品 |
芒果
瓷砖
、
迪诺德莱克木作、方太电器
、
大金空调、
高仪洁具、杜拉维特卫浴
Whole case planning 丨Mango tile, Dino drek wood, Fangtai electric appliance, Dajin air conditioner, Gaoyi sanitary ware, Duravit bathroom
本案男业主是一位博学多才且风趣幽默的建筑设计师,与本案设计师郭天佑拥有思想上的契合与共鸣,亦不可避免的有想法上的分歧与摩擦,这奇妙的共鸣点燃了双向设计热情,最终落地成彼此满意且欣赏的新家与作品。
The male owner of this case is a knowledgeable and humorous architectural designer. He has ideological agreement and resonance with Guo Tianyou, the designer of this case. There are also inevitable differences and friction in ideas. This wonderful resonance ignited the enthusiasm of two-way design, and finally achieved a new home and works that were satisfied and appreciated by each other.
户型分析| House type analysis
▼
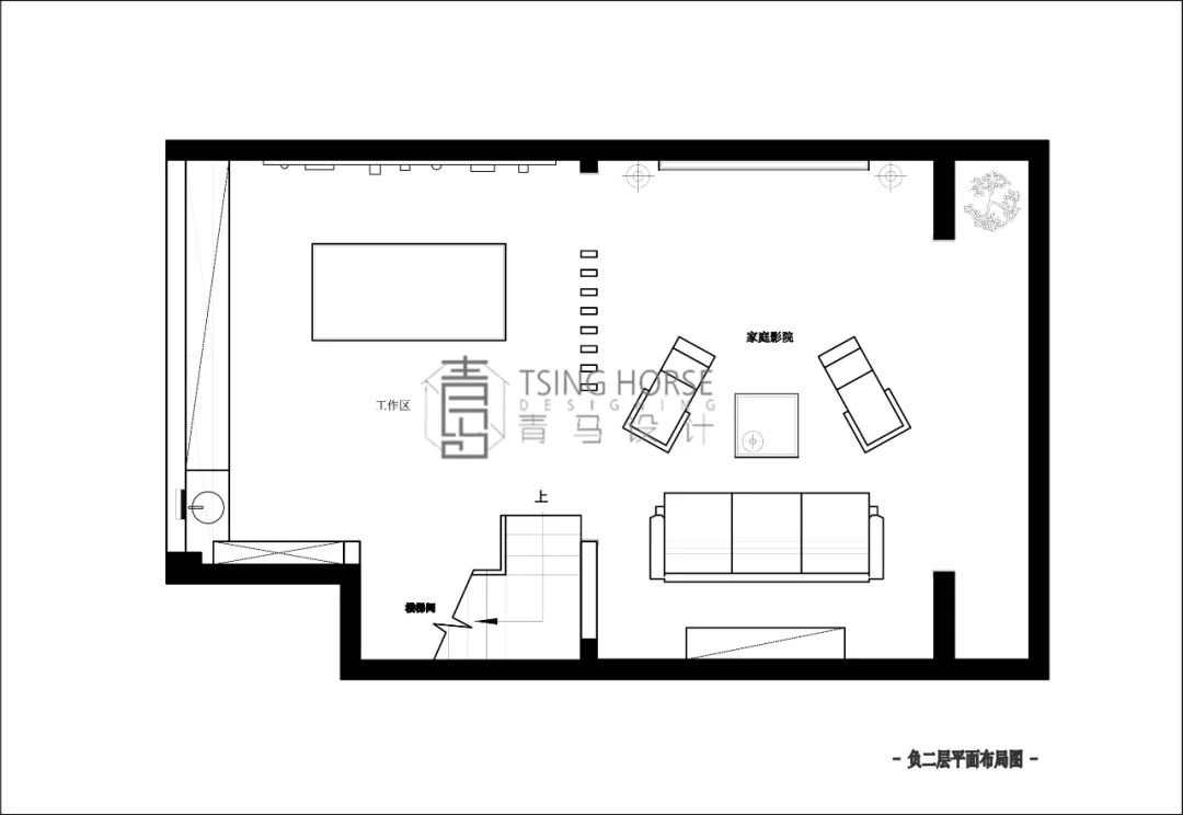
负二层原始结构
▼ 负二层设计布局
▼
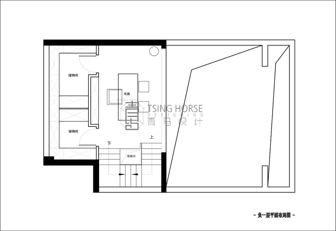
负一层原始结构
▼ 负一层设计布局
△
这套住宅
建筑面积约
400
平米,带阁楼和地下室。
在充分考察建筑结构
之后
,
将部分花园加以利用,整改为一个通透开阔的室内空间,囊括开放式厨房,品茗区。
The building area of the house is about 400 square meters, with attic and basement. After a full investigation of the building structure, part of the garden was utilized and transformed into a transparent and open interior space, including open kitchen and tea tasting area.
▼
一层原始结构
▼ 一层设计布局
▼
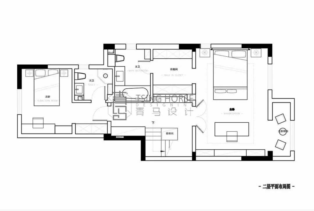
二层原始结构
▼ 二层设计布局
△
重新定义
二层的卧室、地下的书房、工作室和影音空间,
梳理
动线以及
平面布局
,
使原先零散的
布局
变得规整
,日常行为动线流畅,生活舒心又安逸。
It also defines the bedroom on the second floor, the underground study, the studio and the audio-visual space, combs the moving line and the plane layout, so that the original scattered layout becomes regular, the daily movement line is smooth, and the life is comfortable and comfortable.
设计方案
design scheme
入户的端景,特地为墙砖设计细密的横向浅槽,
于视线焦点处刻上隐喻美好的文字,
配以简单的软饰,
恬淡寡欲的东方艺术气息油然而生。
从细节入手刻画,
既有人间烟火的生活气息,
也要点燃感官的艺术氛围,
归家的静美,从这惊鸿一瞥中释然。
At the end of the house, fine horizontal grooves are specially designed for the wall tiles, and beautiful metaphorical words are engraved at the focus of the line of sight. With simple soft decoration, the oriental artistic atmosphere of indifference comes into being. From the details of depiction, not only the life atmosphere of human fireworks, but also the artistic atmosphere of the senses should be ignited. The quiet beauty of home is relieved from this startling glance.
现代与传统互相博弈,
在变与不变之中寻找美的含义。
温润木材、通透玻璃、质感大理石,
不同材质的组合赋予空间良好的节奏感与层次感。
枯枝绿色点缀,为空间添抹一笔明媚神采,
生气悠长。
方圆有序,
现代艺术的意蕴挥洒自如,
一同叙写高雅大气的空间意涵。
Modern and traditional game each other, looking for the meaning of beauty in the changing and unchanging. Warm wood, transparent glass, texture marble, the combination of different materials gives the space a good sense of rhythm and hierarchy. The withered branches are decorated with green, which adds a bright and beautiful look to the space, and has a long life. The square circle is orderly, and the implication of modern art is free and easy. It describes the spatial meaning of elegance and atmosphere together.
深色调统筹空间视觉美感,各式质感精尚的家具搭配,令空间的艺术气息泛着一层幽幽的古韵,
月洞倾斜伸展的干枝,辉映着一室静谧与恢宏,
几樽醇酒清茶,小簇清泠的细枝绿叶,坐看光景,杯中有茶,井然有条,好不闲适。
The deep color coordinates the visual beauty of the space, and various kinds of fine furniture collocation make the artistic atmosphere of the space permeate with a layer of faint ancient rhyme. The slanting branches of the moon cave reflect the tranquility and magnificence of a room. Several bottles of wine and tea, small clusters of green branches and green leaves, sit and watch the scenery, and there is tea in the cup, which is in good order and not at leisure.
主卧融入书房与工作室的功能,
在这私密的小天地尽享生活慢慢。
从古法中玩古出新,
材料、形制、色泽,均以极素极简的设计营构起空间简凝尔雅的气质,
古与新的对比铺叙,为空间附着一层层人文意境,映照含蓄质朴的艺术风韵。
Master bedroom into the study and studio function, in this private small world to enjoy life slowly. The materials, shapes, colors and colors are all designed in a minimalist way to create a simple and elegant space. The contrast between the ancient and the new creates a layer of humanistic artistic conception for the space, reflecting the implicit and simple artistic charm.
将部分花园加以利用,整改为一个通透开阔的室内空间。屋主格外喜好竹子,希望将绿色与自然四季引入室内,将房屋两侧和中间空间打造天井,植入树和整排绿竹,
建筑与自然充分结合,逸气充盈,光影斑驳,赋予别墅应有的格局与气势。
Part of the garden will be used to transform into a transparent and open interior space. The owner of the house likes bamboo. He hopes to introduce green and natural seasons into the house. He will create patios on both sides and in the middle of the house, plant trees and whole rows of green bamboos. The building and nature are fully integrated, and the villa is endowed with the pattern and momentum it should have.
将
“自然主义”
生活艺术,贯穿于空间的情致中,
抬头云海翻腾,回眸
竹林茂密,
在这里读书品茶,诗意便自然地融入
在这舒适的意境中,化为了生活的本真。
空间情绪与居住者合鸣,艺术与精神共生共融。
The "naturalism" art of life runs through the feeling of space. Looking back at the dense bamboo forest, reading and tasting tea here, the poetic flavor will naturally blend into this comfortable artistic conception and become the essence of life. Space emotion and residents sing together, art and spirit coexist.
本案设计师
Designer of this case
设计师:郭天佑
Designer /Tian-you guo
郭天佑
青马设计主创设计师
毕业于西安美术学院工艺美术设计系
室内装饰行业从业15年以上,专属大宅全案设计
资质| Qualifications
国家注册室内设计师
中国装饰协会注册会员
中国ICDA设计师协会会员
中国装潢协会会员
理念| Idea
追求艺术,用艺术家的眼光创造美好,
用
“美”来影响生活,追求格调,尊重历史,但从不摒弃流行和普及
,
致力塑造优雅的居住空间和生活方式。
殊荣 | Award
西安市年度设计师优秀奖
作品多次发表于电视台、西安晚报、三秦都市报
西安市家庭装饰协会TOP50强
建筑大学特邀设计师主案设计孙博华院士住宅、建筑设计系刘老师接待性住宅。
北京清华美术学院进修
日本游学 美国游学
案例| Case
深圳波托菲诺纯水岸、西安皇家花园、西安湖滨花园、西安钻石王朝、西安曲池坊、西安紫薇曲江意境、西安雅居乐御宾府、西安龙湖香缇、西安紫汀苑、西安湖城大境、西安莱安逸珲、西安群贤庄、欧雷仕西安总部、西宁国芳健身会所、西安六合舒适家智能体验馆、西安老城根火锅、府谷县陕煤集团办公室......
关于青马
About Qing Ma
2004年,城市人家装饰集团成立V6设计空间,服务于大宅别墅空间及对装修设计有高品质要求的客户,如今,青马别墅装饰在此基础上,升级创新,将优秀的设计、极致的工艺、完美的服务、系统的团队集于一身,为大宅、私宅别墅提供全案设计整装服务。
公司拥有一批从业多年的资深大宅设计师团队、经验丰富的优秀工程项目经理,用
“多对一”的服务体系,打造完美的“私墅生活方式”。
Founded in 2004, city family adornment group V6 design space, service Yu Dazhai villa space and has high quality requirements of customers to decorate a design, now, villa decoration on the basis of the grey horse, upgrade the innovation, the most excellent design, technology, perfect service, system team set at a suit, provide mansion, private villa decoration design services.
The company has a group of senior mansion designers, experienced excellent project managers, with the "many to one" service system, to create a perfect "private villa lifestyle".
生活的格调
就是一个人对自我独特的定义
是生活,是艺术
而家
就是格调的终极表现
青马,只想给你一个格调家
客服
消息
收藏
下载
最近



















