查看完整案例

收藏

下载
最新案例
Latest cases
项目信息|Project information
项目地址 |科为城墅
Project address | Kewei City Villa
建筑户型 |联排下叠
Project address | Cascade down
施工面积 |210平方米
Project Area | 210m²
设计风格 |新中式
Design style | New Chinese style
设计公司 |青马别墅空间设计
Design company | Qing Ma villa space design
全案设计 |王清玉 设计团队
Whole case design | Qing-yu wang design team
大客户经理 |孙晨凯
Key Account Manager | Chen-kai sun
工程管家 |韩鹏辉
Project Manager | Peng-hui han
全案产品 |LD 高仪 欧派 宾图 老板电器
Whole case products | LD Gaoyi opelbento boss electric appliances
本案科为城墅联排下叠户型,于周边繁华的配套设施里构建一处淡然恬静且雅致清宁的居所,以新中式风格定调,闹中取静以安定的力量谱写日升月落四季如诗的美好生活篇章。
This case is a series of urban villas, which are arranged in the surrounding prosperous supporting facilities to build a quiet, elegant and tranquil residence. It sets the tone with Chinese style, takes quiet in the noisy, and writes a beautiful chapter of life with the strength of stability.
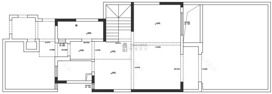
一层|First floor
▼
原
始结构
▼ 设计布局
△此
户型属于多层结构,联排下叠户型较优,
房屋结构混凝土框架基础加剪力墙结构,少部分墙体属于后期砖混结构,可拆改性强。
This type of house belongs to multi-storey structure, with row down, and the house type is better. The housing structure belongs to the structure of concrete frame foundation and shear wall, and a small part of the wall belongs to the later brick concrete structure, which can be dismantled and modified strongly.
设计方案
design scheme
新家,
如一幅缓缓铺陈开的写意画卷,空山新雨隽永绵延。
木质的温润与朴实情怀尽显,水墨晕染山水画做点缀,
舒缓沁透和合静美。
New home, such as a slowly unfolding freehand brushwork, empty mountains and new rain meaningful continuous. The warmth and simplicity of the wood make the feelings fully show. The landscape paintings with ink and wash are embellished, which is soothing, penetrating and peaceful.
半
通透的客厅文化带来多种生活情趣
场景,
一
团和气,两方格调。
木质格栅做功能分区,一半以茶会友,一半修身养性,陶冶情操。
The semi transparent living room culture brings a variety of interesting scenes of life, which are harmonious and harmonious. Wood grille to do functional zoning, half to tea friends, half self-cultivation, edify sentiment.
大面积的月光白,缀以月洞造型,让厨房也变得文艺浪漫,
三餐四季中透着喜乐团圆。
连贯的行为动线,让洗切烹煮井然有序。
The large area of moonlight white, decorated with moon hole modeling, so that the kitchen has become literary and romantic, three meals in the four seasons full of joy and reunion. The consistent action line makes the washing, cutting and cooking in order.
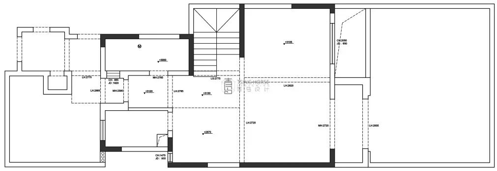
二层| Second floor
▼
原
始结构
▼ 设计布局
△
二层原始结构规整且各个空间面积占比合理,因此将此楼层做主人私密休息卧室,配备衣帽间及卫生间便利起居生活。
The original structure of the second floor is regular and the proportion of each space area is reasonable. Therefore, this floor is used as the master's private rest bedroom, equipped with cloakroom and toilet to facilitate daily life.
设计方案
design scheme
主卧素雅舒适的色彩,在墨染中寻觅品位。方正的空间遵循对称美学,在
静谧的环境让疲惫的身躯回归
生活本身的语境,甜睡里梦过繁花,静享时光流淌。
The elegant and comfortable color of the master bedroom is to find the grade in the ink dyeing. Fangzheng's space follows the symmetry aesthetics. In the quiet environment, the tired body returns to the context of life itself, dreams of flowers in the sweet sleep, and enjoys the flowing time quietly.
配套的衣帽间,规整的置物格,便利主人生活起居。利用拐角面积设置写字台,窗外鸟鸣涧,窗内衣饰香。
风华尽现,于精巧里品人生。
The matching cloakroom and regular storage space make it convenient for the host to live and live. Use corner area to set up a writing desk, outside the window birdsong stream, window underwear decoration fragrance. Show the charm, taste life in the exquisite.
次卧那一抹青绿,明媚了一室的生机。
光影律动,在窗纱上,在地板上,留下它的运动轨迹,在有与无中增添生活的意趣,
隔绝世外纷扰,带来一片静谧与安逸。
The green of the second bedroom brightened the vitality of a room. The rhythm of light and shadow, on the window screen and on the floor, leaves its movement track, adds the interest of life in the presence and absence, separates the world from the disturbance, and brings a piece of tranquility and ease.
甄选中式元素摆件装点,
一幅画、一束光,自成一道景。
风格串联,连卫生间都凝结东方美学精髓的悠远气韵,细节处见真章。
Select Chinese elements to decorate, a painting, a beam of light, a landscape of its own. The style series, even the bathroom condenses the Oriental aesthetic essence of the distant charm, details see the real chapter.
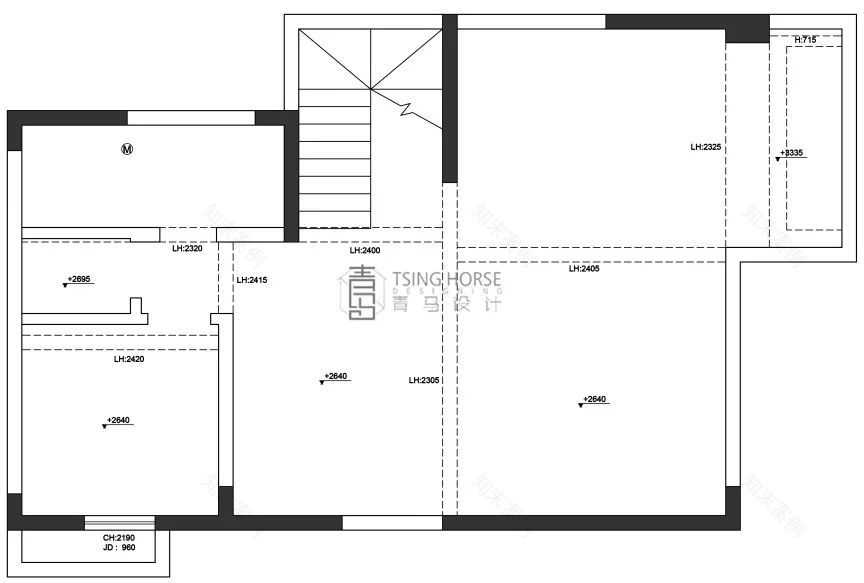
负一层| Negative layer 1
▼
原
始结构
▼ 设计布局
△负一
层原始结构采光充足,
院子占地面较大,
设计师巧妙利用其优势为院子造景,增加娱乐活动空间。
The original structure of the negative floor has sufficient lighting, and the courtyard occupies a large area of ground. The designer skillfully uses its advantages to create scenery for the courtyard and increase the space for entertainment activities.
设计方案
design scheme
觅得清幽之处,让思绪伴着墨香尽情挥洒,挥洒一纸墨香晕染画中,令人
在这隅沉浸式的精神之地中随心享受
,任时光流淌,我自淡泊祥和。
Find a quiet place, let the thoughts with the ink to your heart's content. Sprinkle a piece of ink to dye the painting. You can enjoy it freely in this corner of the immersive spiritual place. Let time flow, and I'm indifferent to peace.
造景借景手法的应运,让
茶室一步一景,一景一画。
多维角度去感受,与自然融合朴素却淡久生香。空间、茶香、墨香,与主人气质互通,逸趣横生。
With the application of landscape techniques, the teahouse can enjoy scenery step by step and draw one scene at a time. Multi dimensional perspective to feel, and natural integration, simple but light fragrance. Space, tea fragrance, ink fragrance, and the host temperament interchange, full of fun.
棕色调的沉稳,墨绿的跳跃,各种材质的碰撞,
数种内核的交融合一,
让舒适蔓延,
颇具风雅质感的设计形式,
写意美好人居。
The calmness of brown tone, the jumping of dark green, the collision of various materials, and the integration of several kinds of cores make the comfortable spread. The design form with elegant texture makes it a beautiful and enjoyable living place.
一处好宅,不应该只是身体的居所,更是一个心灵的栖居。在动静之间栖息身心,在美学之间徜徉艺术。
和合静美,安享当下!
A good house should not only be a residence for the body, but also a dwelling place for the soul. They inhabit body and mind between movement and stillness, and roam art among aesthetics. Peace and quiet beauty, enjoy the present!
本案设计师
Designer of this case
设计师:王清玉
Designer /Qing-yu wang
王清玉
青马设计主创设计师
专属大宅全案设计
室内装饰行业从业13年以上
毕业于中国北京工艺美院附属学院环境艺术设计专业
国际建筑装饰协会注册会员室内设计师
中国香港商业美术注册设计师
理念| Idea
以人为本,服务生活
殊荣 | Award
2013
年 荣获中国十佳住宅设计师提名
2014年 荣获室内空间设计筑巢奖优秀奖
2015年 中国室内设计大赛三等奖
2016年荣获设博会十大影响力设计师
2017年 IDEA-TOPS艾特奖国际空间设计大奖最佳别墅入围奖
2018年 第二届建筑装饰设计年度新锐设计师
案例 | Case
华侨城
108
坊,赛高悦府,西派国际,天鹅堡,白桦林间,紫汀苑,金辉世界城,琉森水岸,蔷薇溪谷,国润城,巴塞阳光,西西安小镇,春城十八里,秦汉新城,枫丹丽舍,御河上院等。
关于青马
About Qing Ma
2004年,城市人家装饰集团成立V6设计空间,服务于大宅别墅空间及对装修设计有高品质要求的客户,如今,青马别墅装饰在此基础上,升级创新,将优秀的设计、极致的工艺、完美的服务、系统的团队集于一身,为大宅、私宅别墅提供全案设计整装服务。
公司拥有一批从业多年的资深大宅设计师团队、经验丰富的优秀工程项目经理,用
“多对一”的服务体系,打造完美的“私墅生活方式”。
Founded in 2004, city family adornment group V6 design space, service Yu Dazhai villa space and has high quality requirements of customers to decorate a design, now, villa decoration on the basis of the grey horse, upgrade the innovation, the most excellent design, technology, perfect service, system team set at a suit, provide mansion, private villa decoration design services.
The company has a group of senior mansion designers, experienced excellent project managers, with the "many to one" service system, to create a perfect "private villa lifestyle".
生活的格调
就是一个人对自我独特的定义
是生活,是艺术
而家
就是格调的终极表现
青马,只想给你一个格调家
客服
消息
收藏
下载
最近

























