查看完整案例

收藏

下载
最新案例
Latest cases
项目信息|Project information
项目地址 |中建昆明澜庭
Project address | China Construction Kunming Lanting
建筑户型 |联排下叠
Project address | Cascade down
施工面积 |280平方米
Project Area | 280m²
设计风格 |新中式
Design style | New Chinese style
设计公司 |青马别墅空间设计
Design company | Qing Ma villa space design
全案设计 |李峻 设计团队
Whole case design | Li jun design team
大客户经理 |王晓东
Key Account Manager | Xiao-dong wang
工程管家 |刘鑫
Project Manager | Liu xin
全案产品 |M77 高仪 老板电器 安派森 金意陶
Whole case products | M77
Gao Yi boss electric appliance anpaisen Jin Yitao
本案中建昆明澜庭联排下叠户型,设计师李峻
将设计层层递进,搭建夹层,增设更多功能空间,深化动线,形成动静分区设计,
满足生活百般需求,化繁为简,打造出大气舒朗、健康的生活起居空间。
In this case, Kunming Lanting United row and down stacked house is built. The designer Li Jun advances the design layer by layer, skillfully builds the interlayer, adds more functional space, reasonably deepens the dynamic line, forms the dynamic and static partition design, meets the various needs of life, simplifies the complexity, and creates a comfortable and healthy living space.
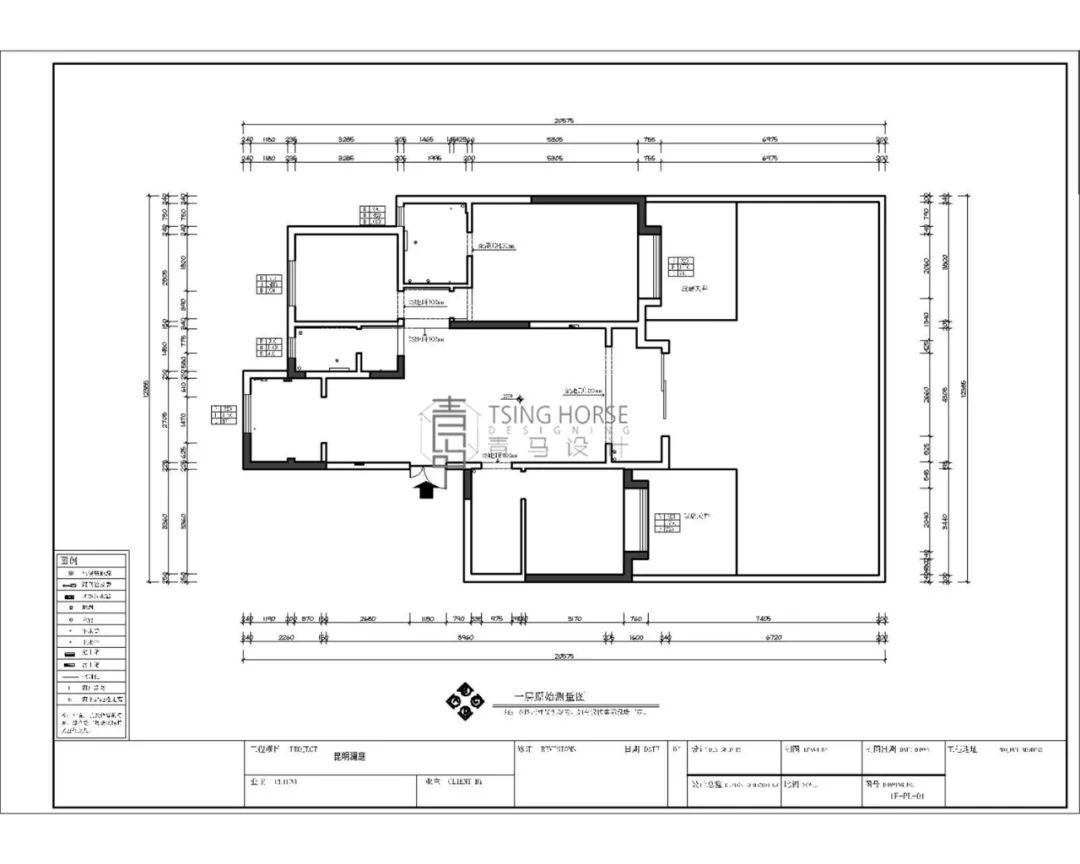
一层|First floor
▼
原
始结构
▼ 设计布局
△
一
层原始
客厅面积狭小,大胆拆除
南阳台的墙体
,扩大客厅空间
,
入户
定制化
对称柜体
,收纳进门的鞋包
,
最大化打开空间
,
细微处见设计功底。
The area of the original living room on the first floor is narrow and small. The wall of Nanyang terrace is boldly demolished to expand the living room space and maximize the opening space. Customized symmetrical cabinet to store shoe bags in the door. See design skills for details.
设计方案
design scheme
▼ 旋转手机观看
通透与光影的建筑理念融入现代人文居住需求,简单的色彩
给心灵和身体一种温暖的抚慰!
通过中式的元素,抒发对清雅含蓄、端庄丰华的亚洲式精神境界的追求。
The architectural concept of transparency and light and shadow is integrated into the needs of modern human living, and simple colors give a warm comfort to the soul and body! Through the elements of Chinese style, it expresses the pursuit of elegant, implicit, dignified and rich Asian spiritual realm.
恬静生活构建了归家的情怀及闲适时光,
沉稳雅致的空间配色,素色的墙面材质,使得
空间疏密有秩,端庄又舒适。
电梯口的隐形门,让电视背景墙和谐统一完整,任何一个不经意的细节都是透过独立思考和独到审美得出的结论。
The quiet life constructs the feeling of returning home and leisure time. The calm and elegant space color matching and plain wall material make the space dense and orderly, dignified and comfortable. The invisible door at the elevator entrance makes the TV background wall harmonious, unified and complete. Any casual detail is the conclusion drawn through independent thinking and unique aesthetics.
餐厅以简洁柔和的中性色为基调,通过深沉暗雅的色相过度、创造出独特的审美,
传递着当代东方美学的安然、
笃定和恒久。
精致的器皿搭配鲜花点缀,悄无声息的将生活的烟火气落定。
The restaurant takes the simple and soft neutral color as the keynote, creates a unique aesthetic through the deep and elegant hue transition, and conveys the safety, steadiness and permanence of contemporary oriental aesthetics. Delicate utensils with flowers embellishment, quietly will be the fireworks of life.
主卧悦目的配色,对称的美学透出
简洁、优雅、淡然的审美意趣,
让人感受到一缕东方雅韵余香。墨绿点题,
美自然而然透出来,
尊重光与影的变幻,融进生活的细枝末节。
The color matching of the master bedroom is pleasing to the eye, and the symmetrical aesthetics shows the aesthetic interest of simplicity, elegance and indifference, which makes people feel a wisp of Oriental elegant charm. Dark green points, the beauty will naturally come out, respect the changes of light and shadow, into the details of life.
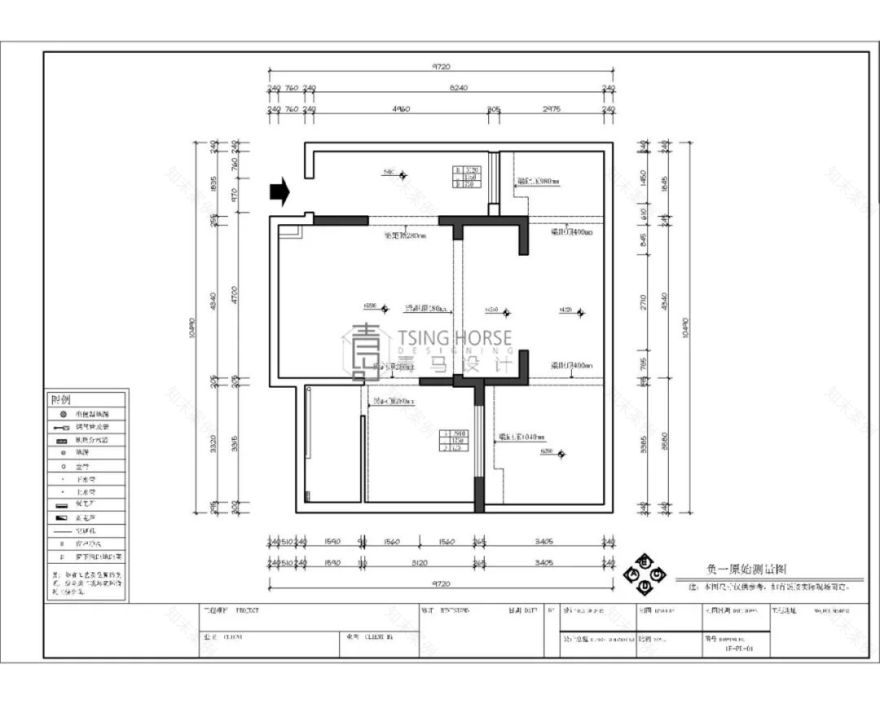
负一层| Negative layer 1
▼
原
始结构
▼ 设计布局
△
负一层采光不足,拆除入户及书房窗户,横向增强自然采光,同时缩小入户门庭做玄关,且利用层高优势搭建夹层,有效利用空间面积实现家的百般需求。
Because of the lack of daylighting in the first floor of the house, the windows of the entrance and study are removed to enhance the natural lighting horizontally, and the entrance hall is reduced to make the entrance to the house as the gateway. The interlayer is built by using the advantage of storey height, so as to realize the various needs of the home by using the space area effectively.
设计方案
design scheme
动静分区设计,一层为客餐厅、厨房、主卧室、儿童房,负一及夹层为影音室、茶室、健身、麻将室。如此布局,划分明确的活动空间,地下室欢聚畅聊,楼上静谧享受,互补干扰,舒适自在。
The first floor is guest dining room, kitchen, master bedroom and children's room. The first floor and the mezzanine are video room, tea room, fitness room and mahjong room. In this layout, the activity space is clearly divided, the basement is happy and chatting, the upstairs is quiet and enjoy, complementary interference, comfortable and comfortable.
茶室与第二会客厅的圆形隔断巧妙搭配,浑然天成,
形成这个家里的另一方小天地。
浅棕调木饰面带着一方清冷与理性,雅致小景装点呼应,
赋予空间内涵的灵气所在。
The round partition of the tea room and the second sitting room is ingeniously matched, which is natural, forming the other side of the family. Light brown wood veneer with a cool and rational, elegant small scenery decoration echo, give the aura of space connotation.
在艺术氛围中糅入生活的纯净气息,尽显回归生活的本质享受。涟漪的水纹地毯,湖蓝色系单椅,布局无限通达心境况味,是乍见之欢的视觉感染,更是
久处不厌的栖息之所。
In the artistic atmosphere, the pure breath of life is blended to fully show the essential enjoyment of returning to life. The rippling carpet with blue lake is a single chair. The layout is unlimited, reaching the mood. It is the visual infection of the joy at first sight, and also the habitat for a long time.
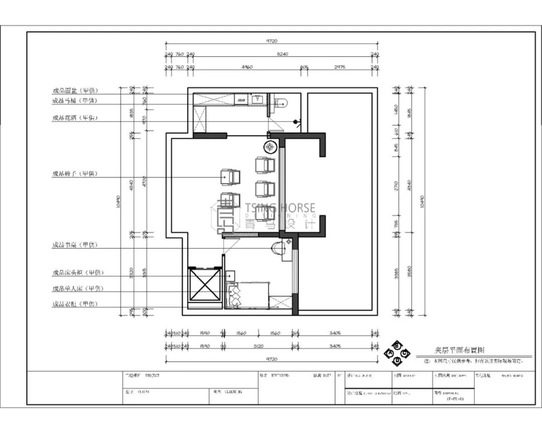
夹层| Interlayer
▼
原
始结构
▼ 设计布局
△
利用负一层层高优势,搭建部分夹层,做家庭影音室,
让家居生活更具互动性与亲密性。
Taking advantage of the advantage of the first floor, we can build part of the mezzanine to make the home audio-visual room more interactive and intimate.
设计方案
design scheme
夹层影音室秉承“见素抱朴”的设计智慧,带来精神与物质的双重满足,增进家人亲密度,让亲情升温。在动静之间
栖息身心,安然徜徉,乐享当下。
The mezzanine audio and video room adheres to the design wisdom of "simple and simple", bringing spiritual and material satisfaction, enhancing the intimacy of family members and warming the family relationship. In the movement between the body and mind, safe wandering, enjoy the moment.
本案设计师
Designer of this case
设计师:李峻
Designer /Li jun
李峻
青马设计主创设计师
专属大宅全案设计
室内装饰行业从业16年以上
毕业于西安建筑科技大学
中国建筑装饰协会会员
高级室内设计师
注册号:A069710SA110683
理念 | Idea
设计是体验人生百态,让细节缔造完美,将情感设计融入到设计之中才是量身定做的设计。
殊荣 | Award
2009年华商报“中联.阿姆瑞特杯”设计优秀奖
2010年陕西日报九锦杯荣获最佳人气奖
2011年“金意陶杯”中国十大设计新锐大赛第三名
2014年第五届中国国际空间艺术设计大赛优秀作品奖
2015年获三星中央空调杯陕西省空间设计大赛入围奖
陕西广播电视台98.8《设计师说》栏目,特约设计师
陕西广播电视台91.6《拜托了设计师》栏目,特约设计师
2015年去意大利游学
2016年去日本游学
2019年去德国游学
案例 | Case
御锦城
振业泊墅
绿地香树花城
绿地城
丹轩梓园
逸翠尚府
雅居乐
·铂琅峯 紫薇永和坊
紫汀苑
湖城大境天锦
赛高悦府
九锦台
西市佳境
融侨城
莱安逸珲
海珀香庭
龙湖
源
著
龙湖天辰
融公馆
骊山下的院子
中海阅骊山
中建
·昆明澜庭等
。
关于青马
About Qing Ma
2004年,城市人家装饰集团成立V6设计空间,服务于大宅别墅空间及对装修设计有高品质要求的客户,如今,青马别墅装饰在此基础上,升级创新,将优秀的设计、极致的工艺、完美的服务、系统的团队集于一身,为大宅、私宅别墅提供全案设计整装服务。
公司拥有一批从业多年的资深大宅设计师团队、经验丰富的优秀工程项目经理,用
“多对一”的服务体系,打造完美的“私墅生活方式”。
Founded in 2004, city family adornment group V6 design space, service Yu Dazhai villa space and has high quality requirements of customers to decorate a design, now, villa decoration on the basis of the grey horse, upgrade the innovation, the most excellent design, technology, perfect service, system team set at a suit, provide mansion, private villa decoration design services.
The company has a group of senior mansion designers, experienced excellent project managers, with the "many to one" service system, to create a perfect "private villa lifestyle".
生活的格调
就是一个人对自我独特的定义
是生活,是艺术
而家
就是格调的终极表现
青马,只想给你一个格调家
客服
消息
收藏
下载
最近



















