查看完整案例

收藏

下载
最新案例
Latest cases
项目信息|Project information
项目地址 |
南湖玖號院
Project address | South Lake nine house
建筑户型 |平层
Project address | Leveling
施工面积 |240平方米
Project Area | 240m²
设计风格 |现代轻奢
Design style | Modern luxury
设计公司 |青马别墅空间设计
Design company | Qing Ma villa space design
全案设计 |冯杰 设计团队
Whole case design | Feng jie design team
大客户经理 |
简文婧
Key Account Manager |
Wen-jing jian
工程管家 |
韩鹏辉
Project Manager | Peng-hui han
全案产品 |高仪 宾图 唐华全屋智能
Whole case products |
Gaoyi bintu Tanghua whole house intelligence
本案
南湖玖號院,
将
W
酒店
与曲江地标南湖美景
尽收眼底。于神朗气清中打造轻奢雅居生活
,既有人间烟火的生活气息,又点燃了感官的艺术氛围,栖息都市湖光水色,惊艳岁月温柔时光。
This case South Lake nine courtyard, W hotel and Qujiang landmark South Lake scenery panoramic view. Create a light luxury and elegant life in the spirit of clear air, which not only has the atmosphere of human fireworks life, but also ignites the artistic atmosphere of sensory organs. It inhabits the urban lake and water color, and amazes the gentle time of the years.
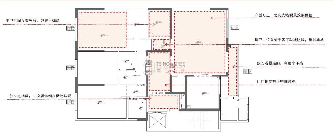
户型分析| House type analysis
▼
原
始结构
▼ 设计布局
△
本案240平米平层结构,户型方正,北向观景效果极佳,随打造客厅餐厅厨房联动打开的空间结构,优化狭长观景走廊,提高空间利用率。释放主卫与衣帽间空间,有效解决暗卫无采光问题。
This project has a flat floor structure of 240 square meters. The house type is square and the North viewing effect is excellent. With the construction of the space structure of the living room, dining room and kitchen, the narrow and long viewing corridor is optimized to improve the space utilization rate. Release the main bathroom and cloakroom space, effectively solve the problem of dark bathroom without lighting.
设计方案
design scheme
本案业主是一对年轻时尚追求潮流新事物的摩登夫妇,新家,用品质与细节去雕琢生活的浪漫,入户玄关伊始
“轻奢华 新时尚”的理念
便从材质中彰显,大理石的厚重与玻璃的通透形成虚实相生的趣味性。
The owner of this case is a young and fashionable couple who pursue the trend and new things. In their new home, they use quality and details to carve out the romance of life. At the beginning of entering the porch, the concept of "light luxury and new fashion" is highlighted from the material. The massiness of marble and the transparency of glass form the interest of the interaction between reality and reality.
临窗观景的最佳位置,兼具一家人休闲观影功能。摩登新挑战,围合沙发形成融洽的氛围,无论
是场景的塑造、陈设的布置,亦或是细节的刻画,都在
彰显新潮舒适的居家态度。
It is the best location to view the window, and has the function of family leisure and film watching. Modern new challenges, the surrounding sofa to form a harmonious atmosphere, whether it is the modeling of the scene, the layout of furnishings, or the depiction of details, all show the fashionable and comfortable home attitude.
将餐厅客厅与
厨房
相结合,整个
空间开敞联合,兼并动与静,
有效拓展了公共区域的活动范围与分区层次。
流畅巧妙的布局,超大化挖掘相邻场域的渗透与交互,趣味性艺术装置,与空间气质交融共舞。
Combining the dining room and kitchen, the whole space is open and United, merging dynamic and static, effectively expanding the activity scope and zoning level of public areas. Smooth and ingenious layout, super large excavation of adjacent field infiltration and interaction, interesting art installation, and space temperament blend and dance together.
U字型厨房动线,让操作顺畅得心应手,统一的色调,体块关系明朗,空间简洁整齐。增设导台,
为厨房提供互动的多种可能,
烟火气里的美味馨香,今日份的好心情,皆是款待的上品。
U-shaped kitchen moving line, so that the operation is smooth and handy, unified color, body block relationship is clear, the space is simple and tidy. A guide platform is added to provide a variety of interactive possibilities for the kitchen. The delicious fragrance in the smoke and the good mood of today's meal are all top-grade entertainments.
主卧通过色彩与材质的合理配置,
强调质感之余也不乏温馨软装饰品点缀,
既显时尚新颖,又
传达出温情而平和的情绪
。收纳衣柜亦作为立面装饰,让舒适度与宜居感进一步提升。
Through the reasonable configuration of color and material, the master bedroom not only emphasizes the texture, but also has warm and soft ornaments, which not only shows the fashion and novelty, but also conveys the warm and peaceful mood. The storage wardrobe is also used as facade decoration to further enhance the comfort and livability.
主卧室与卫生间衣帽间全部解放出来,有效解决了原有的采光不足问题。悬浮式浴缸,质感强烈的水磨石地台,处处
体现着不一样的情调,
超大且实用的私密放松区域,展现出充满呼吸感的舒适姿态。
connotation. Master bedroom and toilet cloakroom are all liberated, effectively solving the problem of insufficient lighting. Suspended bathtub, terrazzo platform with strong texture, embodies different sentiment everywhere. The large and practical private relaxation area shows a comfortable posture full of breathing.
温润原木色柜体,过渡人字拼花地板,复古丝绒榻椅,材质与色彩和谐融合,
烘托出自然沉稳而不失高贵的气场,
又蕴藏诸多质感层次的碰撞与转换。
In the artistic atmosphere, the pure breath of life is blended to fully show the essential enjoyment of returning to life. The rippling carpet with blue lake is a single chair. The layout is unlimited, reaching the mood. It is the visual infection of the joy at first sight, and also the habitat for a long time.
全房语音智能控制系统,
人性化的光源布局,
适用于不同的生活场景,科技感爆棚。
在收放之间以不羁的态度,恰如其分般释放出大都会生活的雅致风貌,
让舒适与潮流并存,现代与摩登交辉。
The mezzanine audio and video room adheres to the design wisdom of "simple and simple", bringing spiritual and material satisfaction, enhancing the intimacy of family members and warming the family relationship. In the movement between the body and mind, safe wandering, enjoy the moment.
本案设计师
Designer of this case
设计师:冯杰
Designer /Feng Jie
冯杰
青马设计主创设计师
毕业于西安美术学院环境艺术设计系
室内装饰行业从业18年以上,专属大宅全案设计
资质| Qualifications
国家注册室内设计师
中国装饰协会注册会员
中国
ICDA
设计师协会会员
中国装潢协会会员
理念| Idea
用心营造灵性的空间,用最少的语言表达最深厚的理念,以人为本,不只是设计,而是对生活的感悟和追求。
殊荣 | Award
2006年西安市紫薇地产欧洲世家别墅样板间设计最佳创意奖
2007年西安市风尚设计大赛优秀奖
2011年-2015年任城市人家设计导师
2014年陕西省创意空间设计交流会最佳环保理念奖
2015年陕西省双佳电器杯设计大赛二等奖
2017年L&D唯美《设计源&世界杯》陕西省设计界精英人物
2019红棉中国最美艺术空间奖
2019金梁中国设计奖杰出设计师
案例| Case
浐灞半岛,萨拉曼卡别墅,普华浅水湾,曲池坊、紫薇曲江意境、丰源美佳别墅区、紫薇欧洲世家别墅区、曲江航天佳苑、曲江6号、曲池坊、紫汀苑,雅居乐御宾府,湖城大境,莱安逸珲……
关于青马
About Qing Ma
2004年,城市人家装饰集团成立V6设计空间,服务于大宅别墅空间及对装修设计有高品质要求的客户,如今,青马别墅装饰在此基础上,升级创新,将优秀的设计、极致的工艺、完美的服务、系统的团队集于一身,为大宅、私宅别墅提供全案设计整装服务。
公司拥有一批从业多年的资深大宅设计师团队、经验丰富的优秀工程项目经理,用
“多对一”的服务体系,打造完美的“私墅生活方式”。
Founded in 2004, city family adornment group V6 design space, service Yu Dazhai villa space and has high quality requirements of customers to decorate a design, now, villa decoration on the basis of the grey horse, upgrade the innovation, the most excellent design, technology, perfect service, system team set at a suit, provide mansion, private villa decoration design services.
The company has a group of senior mansion designers, experienced excellent project managers, with the "many to one" service system, to create a perfect "private villa lifestyle".
生活的格调
就是一个人对自我独特的定义
是生活,是艺术
而家
就是格调的终极表现
青马,只想给你一个格调家
客服
消息
收藏
下载
最近


















