查看完整案例


收藏

下载
APEX DesignAward 2022 获奖作品展
年度新锐
建筑室内设计师
获奖者:邓晶
设计机构:筑鸿装饰
邓晶:株洲筑鸿装饰高级设计师
设计是自由的,空间应是一种平衡,兼容的关系。无关风格,可以将喜欢的不同元素提炼融合。给家温度,提升生活的高度,住宅最终还是服务于人。
荣誉成就:
顶峰设计奖 2021 住宅方案类 优秀奖
2022 金住奖-中国(株洲)十大居住空间设计师
2022 40 UNDER 40 中国(株洲)设计杰出青年
2022 年度顶峰设计奖新锐建筑室内设计师
机构地址:湖南株洲市天元区湘山路亿都曼城商业楼三楼筑鸿装饰
咨询热线:15573365658
旧时光
跳出固有风格化,打造独特的复古情调
前言:
业主是一名带有文艺浪漫情怀的年轻女性,偏爱具有年代感和复古感的物件和设计。因此在整体风格设计上,跳出了特定的某种风格限制,以文艺复古为基调,结合法式、美式、现代等多种风格设计元素,打造具备她独特气质的复古混搭风。
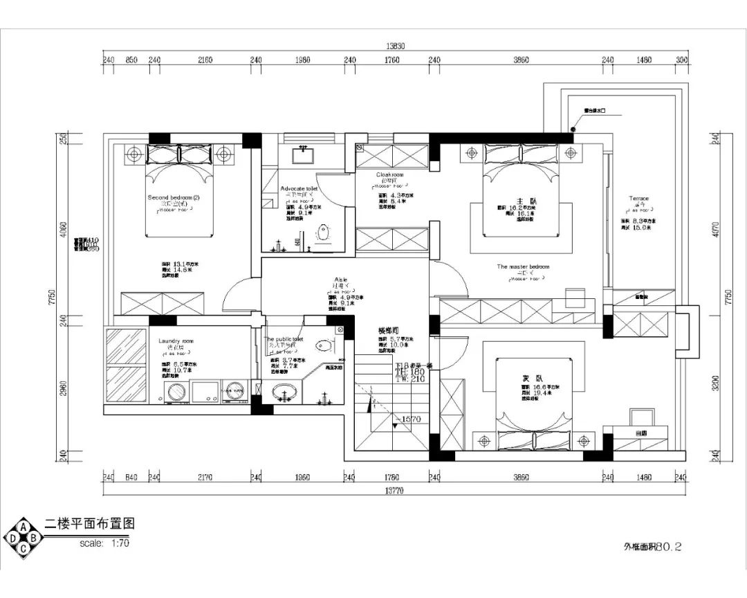
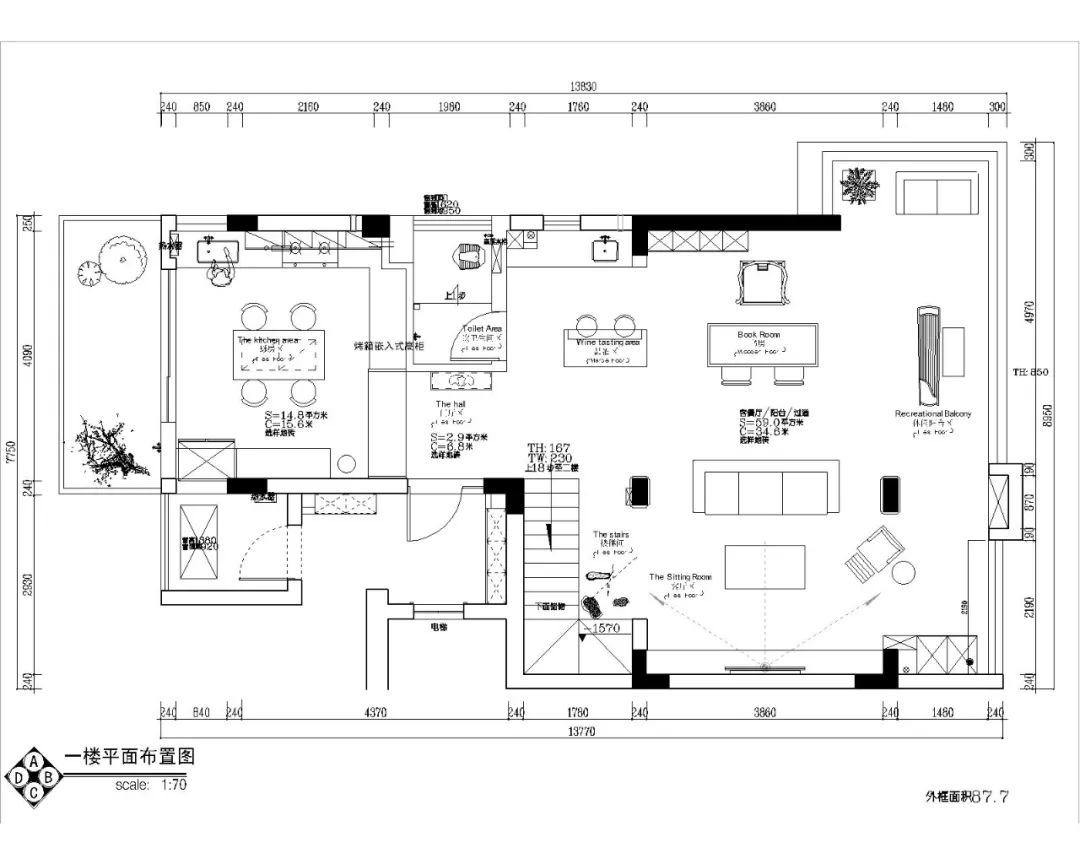
户型解析:
该户型建筑面积为 129㎡,室内 6 米挑高,改造后实际使用面积 200㎡。业主对居住私密性有很高要求,希望在功能分区上能够清晰、独立划分,减少功能上的相互重叠和打扰。因此在空间布局上,一楼作为公共区域,满足日常的用餐、会客、娱乐、教学办公等功能;二楼仅作为休息区域,保证空间的私密性和静谧感。
玄关:
入户玄关背景墙选用墨绿色墙布,墙面点缀金属、编织等装饰,玄关柜选用做旧款式的藤编柜,藤编元素的运用让空间多了一丝异域风情和自然气息,给入户空间增添了些许温柔和柔美。地面铺设墨绿色马赛克瓷砖,与墨绿色玄关背景墙上下呼应,在昏黄灯光的映衬下,宛如电影胶片的细腻怀旧质感,复古且精致。
厨房:
厨房大胆采用了墨绿和深灰的配色,玄关背景墙左侧延伸过去是两面面对面的撞色艺术玻璃,从空间上连接玄关与厨房,视觉上拉伸了空间线条感,而对称的撞色艺术玻璃,使得复古摩登气息扑面而来。
厨房的整体构造根据业主需求,打造了餐厨一体的开放式厨房设计,为增加使用空间,采用了两边操作台的设计,中间放置中岛,同时兼具操作台及餐桌的功能。厨房运用整墙铺贴绿色小砖的方式,营造出独特的浪漫情调和神秘氛围,而通往露台的落地玻璃推拉门又增加了空间的通透性,中和了厨房的浓郁色彩。
客厅:
为保证空间的明亮、通透,客厅未进行隔断处理,反而打造整体多功能使用空间,同时兼具书房和客厅的使用功能。而在整体色调上以灰色为主,软装上搭配墨绿色、酒红色的丝绒制品,色彩对比强烈,起到画龙点睛的作用,使得空间更具层次感。
客厅里摆放的钢琴和古筝,不仅具有实用功能,更兼具装饰功能,中西合璧,是艺术的碰撞和交流,更是美的对比和融合。
水吧台沿用了厨房的墨绿色小砖,是厨房色调的延伸,又是客厅空间的完美衔接。一楼区域的各个不同空间都采用了弧形设计,相似又有所区别,但却让整个空间更加完整连贯,线条更加柔和流畅,增强了空间的延伸感。每个空间相互独立又相互统一。
卧室:
二楼三间卧室,大胆运用了艳丽色彩,采用撞色、拼色的手法,是张扬与优雅、现代与古典的碰撞和融合。
无拘。该项目位置具备良好的视野和充足的阳光,这里生活着一对年轻的夫妻。他们不需要电视,考虑投影即可,女主爱好阅读、旅游,也会收藏点手办及周边,想要一个舒适放松的居住空间,年轻人都喜欢随性自在。在这个 140 平的自由住宅里,我将原建筑结构完全打通重组,构建出既满足居住需求又展现艺术气质的静谧住宅。本案将原有的阳台空间打通纳入客厅,让空间更加开阔,形成一幅大横厅构图,客餐厨一体化设计,让空间之间的互动变得更加明确。在保证空间宽敞的基础上,也做了超强的收纳系统,在外部看上去一丝不乱。超长柜体将玄关和客厅连接起来,书籍、手办、生活用品等同时收纳整理,客厅背景墙设计,我们用收纳的不同形式在墙面做出起伏,和餐厅巧妙衔接。整体感觉以极简的形式感融合原木的温润质朴,达到形神合一的完美统一。
意蕴东方
这是一座位于攸县的私宅,屋主的诉求是在满足平时业务接待的需求以外,也承担起了在重要日子里家庭团聚的重任。
整体感觉摒弃传统中式的厚重繁杂,提炼经典将现代元素和传统元素结合在一起。门厅造景,与茶室相连,采用屏风等进行隔断,屏风的半遮半掩,隔而不断,含而不漏,营造一种朦胧的圆润。从门厅往内行至书法台,构造书香门第的人文气息,给空间赋予格调。整体无主灯设计,恰到好处的氛围感,营造出宁静优雅的环境。一大面的落地窗设计,不仅视觉效果更好,自然光线也能很好的进入空间,使室内与自然相互延伸。空间以中式意象作为空间风格依据,提炼东方元素的轮廓,搭配以木作为主,配合金属点缀,演绎东方情调。
END
顶峰设计奖组委会
▼邮件 E-mail:湖南省建筑室内设计学会
:HIID13055171717
:HIID13055171717
客服
消息
收藏
下载
最近


































