查看完整案例


收藏

下载
135编辑器
△打卡点
(
姚杰奇
摄)
钻石,坚固,夺目耀眼,一直是人们宣誓爱情时不可缺少的道具。每一件钻石饰品,都会成为每一对新人感情长河中的一个个印记。而钻石从深谷之中被开采而出,经过层层的打磨历练,才最终散发出夺目的光彩。它坚硬无比,却又是爱情中最柔软的象征。
场地介绍
△门面效果
(
姚杰奇
摄)
设计师希望通过店面的设计带动更多非目标群体进入店面中体验珠宝产品,引发购物的欲望,让珠宝成为日常生活中的必需品。
设计背景
传统珠宝展陈方式较为独立和单一,仅靠黑色绒面玻璃展示柜进行排列组合,空间单调平庸,缺乏吸引力。作为品牌形象店,如何在60 平的空间中回应众多的需求,并打造互动展陈空间成了设计的要点。
△门面效果
(
姚杰奇
摄)
宝石是如何获得的,只有下过矿洞的人才清楚,宝石往往都藏在恐惧的、幽闭的、充满神秘感的地方,而获取宝石的过程与意义,似乎超越了珠宝本身的价值更具有故事性。普通人只关注珠宝,而有品位的人,追寻的是珠宝背后的故事。宝石通常被平常的石材所包裹,寻宝人只注意了矿洞中的宝石,却忽略了矿穴的迷幻。
概念生成
△概念草图(平介设计)
矿洞中的轨道流线是连接宝石与珠宝、财富与黑暗的纽带,是空间中特殊的发生器。因此设计通过一条连续的纽带串联起整个空间的各种功能与逻辑:融合珠宝展陈,品牌展示,客户洽谈等多种功能。
△概念图解(平介设计)
△发生器(
姚杰奇
摄)
发生器是一条完整的流线型装置,通过高度变化、厚度变化衍生一系功能,并通过造型对空间、流线进行分割。发生器通过细柱支撑,在相应的位置布置展柜、工作台面等店面功能。
深灰色的幽暗背景,银色的钻石纽带在空间中飞舞旋转,顾客自然的被纽带所吸引着,进入展陈空间,欣赏美好的珠宝设计作品。纽带在不同高度自然的形成引入的拱门,平滑的展柜,舒适的顾客服务区,以及最耀眼的螺旋塔冠。
△前台展览区(
姚杰奇
摄)
△前台展览区(
姚杰奇
摄)
诚品中大多店面以白色为主,木色搭配,相对空间比较均质,缺乏关注点。本案的颜色、造型都大大区别于别的店面,并结合业态之后重新阐述新的空间效果。整个空间被深灰色石材包裹着,一条银色纽带在空中飞舞,如同一个深黑色珠宝盒中散发异彩的钻戒,从形式上隐喻项目主题。
△墙面展柜(
姚杰奇
摄)
深灰色石材塑造出如同钻石矿坑般幽暗的背景,饰品展柜在墙面上如同钻石般发出夺目的光芒。深灰色石材墙面采用450*450的基础模数,适应整个空间尺度,同时为珠宝的展陈提供条件。不同区域的基础模块错动咬合,模拟钻石矿坑乱石嶙峋的效果。部分模块则变成了隐藏的抽屉,用于存放日常用的包装礼盒。原始的柱子也被坚硬的石材包裹,形成多媒体展墙。
△墙面展柜(
姚杰奇
摄
)
△墙面展柜(
姚杰奇
摄
)
△纽带展柜(姚杰奇摄)
流动的带形展示成为珠宝展陈的主体,通过扭转和高度变化带来展陈空间的引入,舒缓紧凑与高潮。整个纽带流线型的造型,被鳞片般的不锈钢面板包裹,从每一个角度反射出耀眼的光芒。浅色灯带顺着纽带蜿蜒流转,预示着空间的起承转合。
从铺面的西侧,拱起的银色纽带以欢迎的姿态吸引人们进入展陈空间。回旋上升的纽带更是创造了诚品书店中除去大楼梯之外的另外一个拍照打卡点。
△入口(
姚杰奇
摄
)
进入展陈空间,顾客会感受到被泛光的纽带包裹,沿着纽带前行,左侧是新人们与导购们交谈交换自己对钻戒独一无二设计的看法的地方,右侧则是当季最新的珠宝设计产品。
△交流洽谈区(
姚杰奇
摄
)
△交易接待区(
姚杰奇
摄
)
△打卡点
继续顺着纽带前行,仿佛置身山谷与银河之中,在极小的空间被挤压之后,会来到整个展览的最高潮,纽带盘旋上升,在整个空间中形成一座爱情的灯塔,一如梵誓珠宝的设计理念,平庸终将被美好取代。
△店内空间(
姚杰奇
摄
)
△墙面展柜(
姚杰奇
摄
)
艺术是充满激情与梦想的,而生活则是充满着棱角的,我们希望我们的设计也是一个共存的矛盾体,灵动与肃穆同时在这个小小的店面中存在,发生碰撞,吸引每一位顾客的目光。
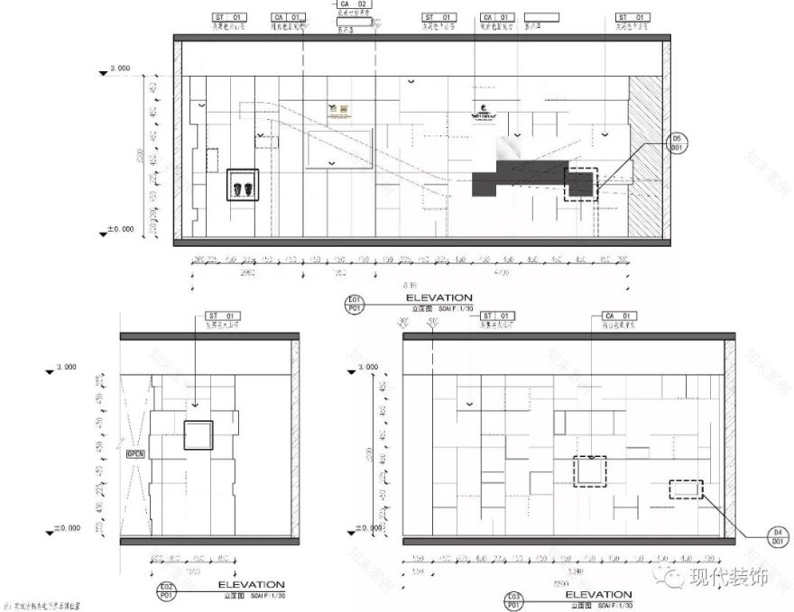
△立面图
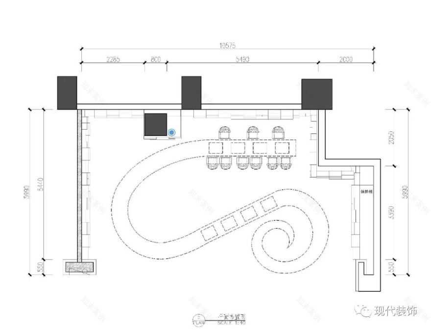
△平面图
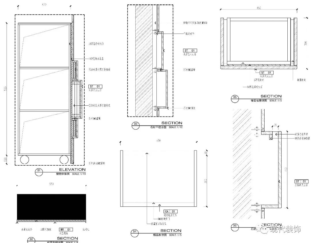
△细部图
项目名称:
梵誓苏州诚品店
项目地点:
中国江苏省苏州市吴中区月廊街8号诚品书店1楼114
设计单位:
平介设计(苏州平介建筑科技有限公司)、上海衡泰建筑设计咨询有限公司
项目团队:
杨楠,张世杰,黄迪,王乙童,张晨
数字化建造:
上海欧岩雕塑艺术工程公司
主要材料:
不锈钢,灰色花岗岩,白色亚克力
设计时间:
2019年8月
建设时间:
2019年9月
建筑面积:
60平方米
摄影:
姚杰奇,王一翔
平介设计(Parallect Design)于2017年成立于荷兰,是一家立足于长三角和荷兰的多元化设计工作室。我们是一个广义设计的小组,建筑规划是我们切入市场的主力,同时我们介入空间、室内、景观、平面、展示等设计项目。我们认为“设计”“策划”“方案”这些词其实都是同义词,目的就是“通过设计策略解决一个具体问题”。
设计团队拥有不同的教育和工作背景,并希望在这样多元文化背景相互融合冲击的工作氛围中,不断打破设计的“传统”。针对不同环境下设计的问题, 提出富有实验精神的设计思路。
平介设计追随使用者的平行视角,介入设计,强调空间的实际体验。着眼设计艺术性、功能性、经济性的同时,不断挖掘空间潜能和使用者的潜在需求。我们也鼓励多方的讨论和合作伙伴的积极参与,共同完成更有价值的设计。
— END —
投稿:info@cnmd.net
往期精彩
(点击图片查看)
2019商业空间设计新风向在哪里?
听听设计大咖怎么说!
微风吹淡的蓝,相思“云想衣裳花想容”丨香港方黄 x 中海万锦熙岸
锦巷火锅 | 川西民俗文化的张力表达
深圳万境设计 | 乐领·旗山侠隐
MySpace私域烘焙店 | 花园包裹的私密空间
△
现 代 装 饰
始于1985 助力中国室内设计向前
精英设计文化的倡导者
设计师群体专业推广平台
客服
消息
收藏
下载
最近



































