查看完整案例


收藏

下载
作为知名中端酒店品牌,不断地探索各种型态的可能性,并且付诸实践,进而创造有别以往的全新体验,是市场中获得竞争优势的好习惯。
❖
ATOUR S HOTEL亚朵酒店
▲
酒店入口
对于这个项目,TBDC实施了设计上的小改,对公共区域进行了全新的安排,以及在原有标准客房的基础上,进行质感升级。
▲
一层公共区域
公共区域的设计思考
一层空间的主要功能,除了采取移动式服务的接待方式,还包含了阅读、奉茶、零售、休憩、展览以及品牌沟通等等,透过多元的材料应用进行分区,并赋予群组化、聚落化、黑胶场景化以及艺术化的内涵,并且利用动态多媒体的方式与旅客进行交流。
▲
一层
公共区域
▲
空间细节
▲
一层零售空间
公共梯厅则将品牌标志立体化,以装置艺术的方式垂吊于天花板,透过光影与韵律的变化,形成一个有趣的过渡区域。
▲
过渡区域的艺术装置
标准客房的升级策略
在原来的布局与型态不做大幅更动的情况下,针对比例调整、色彩规划、家具形式与软装饰风格的重新调整,以原来的标准为基础,进行一次住宿规格与质感的升级,无论视觉或触觉,都提供给消费者全新的体验,同时也达到品牌辨识的延续目的。
▲
客房
▲
客房局部
运营的弹性
十二层主要考量运营的弹性,配合不同时段与使用目的,让主要区域可以同时具备餐饮、讲座与不同规格的会议空间。
▲
酒店餐厅
除了利用镜面的反射角度,克服原有层高过低问题之外,在外围部分也刻意将露台以造景的方式,结合自然采光,尽可能的与室内连结,以取景的方式取代装修,同时也能降低室内的压迫感,营造一个舒适的空间。
▲
酒店餐厅
同样的方式也延伸到其他的服务空间,如健身房与洗衣房等,简约自然。
▲
洗衣房
▲
ATOUR S HOTEL亚朵酒店外观
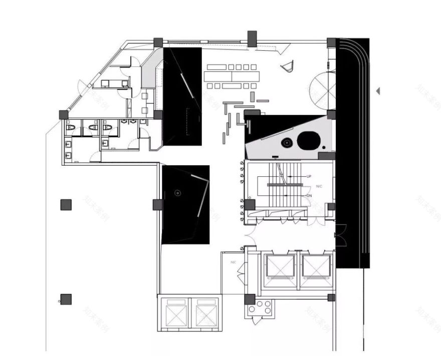
平面图
酒店一楼
餐厅
客房
客房
项目名称:Atour S Hotel 小改款
设计公司:TBDC 台北基础设计中心
设计师 :Roy Huang 黄怀德
设计时间:2018.05
完工时间:2019.01
基地面积:7800平方米
主要材料:特殊涂料/木纹防火板/镀钛/金属烤漆/大理石/防火地毯/镜面
项目地点:中国 广州
黄怀德
Roy Huang
台北基础设计中心总执行设计师
设计师的小笔记
每一次与这个品牌的合作过程都不大一样,虽然是同样的人,但可以明显的感受到因为时间与经验的堆叠,有着不同层次的追求,唯一相同的,除了一贯的务实,还有突破现状的强烈渴望,现在的消费者,真幸福。
—END—
投稿:info@cnmd.net
总是错过“现代装饰”的日常推送?
记得给我们加星标
★
就能减少这个问题啦
▼
往期精彩
(点击图片查看)
域见设计 | TIME WAR糖果:
现代工业风理发店设计
穿越时空的“高级新趣味”——上海明园森林都市·叠翠苑样板房
“设计链接”长沙站:链接设计与未来
HMD新作 | 山谷间忘却时间的美术馆——安吉悠隐南山
△
现 代 装 饰
始于1985 助力中国室内设计向前
精英设计文化的倡导者
设计师群体专业推广平台
客服
消息
收藏
下载
最近






































