查看完整案例


收藏

下载
“设计,是一种冒险。
”正如荷兰建筑师库哈斯所言。
LB凌奔设计,拥有丰富的大型商业综合体设计经验,在中国首个汽车主题商城——良志国际汽车城的设计中,将思维、直觉、感受和意图进行转译,呈现出不同状态的叠加效果,在过去看见未来、在瞬间感受永恒、在纯粹中创造丰富,诠释设计的相对论。
是过去,是未来
1886年,德国人卡尔本茨发明了第一辆真正的汽车,人类进入汽车时代。
被经络般的路网连接,汽车记录了兰州的变迁、蓬勃,记录了兰州人的辛勤、成绩,和快与慢的生活。一条“丝绸之路”串起古今,横跨两千余年,兰州始终是这条地球上最著名的路网的枢纽,把中国和世界紧紧相连。九曲黄河穿越市区而过,发源于此的中华文化源远流长。我们期待,它作为“兰州之窗”,呈现过去、现在与未来。
是机械,是生命
当冰冷的机械,与美好的感情建立连接,它便会有血有肉,成为一种“生命”,进而孕育出属于它们的文化。
当你熄灭引擎,在独有的空间与自己对话;
当你抱着孩子坐在驾驶位,你们欢笑着,这便是汽车文化伴随文明的延续。
设计,也是如此,它深谙情感的艺术,营造令人愉悦的空间,也给人愿望和自由。
是白,是多彩
围绕中庭空间设计环形动线,保证在建筑中实现最高效的客流与车流线,由此形成的建筑骨架,带有繁复而险峻的气息。
如何将繁复化为整体,将险峻化为美感,是设计要解决的首要问题。
贴地飞行的汽车轨迹,给设计带来灵感。
多个间隔的影像在极限速度下形成连续的画面,我们将空间骨架做了类似的转化。
白是所有色光的聚合,亦是所有颜色的缺失,配合汽车烤漆的质感,光影的变幻,成为上述转化的途径。
温馨的暖光源设计,强调了线的流畅感,成为有机融入扶梯的线条结构,丰富了纯白空间的层次,也以指引来处与归处的隐喻,进一步增强了中庭设计的现代表现力。
是简单,是丰富
面向多样化的需求,商城的动线设计,更显得尤为重要,既要满足商家和消费者效率的原则,又要照顾每一个商铺的人流。
从建筑着手,从使用角度,LB凌奔设计提出客货梯的合理配置,围绕核心筒设置环形车道,实现人车分流、客货分流,也形成别致的中庭景观。
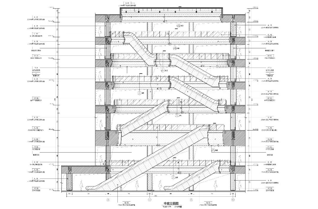
中庭立面图
是速度,是温度
动线同时影响着业态的分布,和甲方团队一起,我们抽象归纳出五种典型的消费需求,按照消费需求的不同动线来调整业态,兼顾对人的关怀与对价值的尊重。
而永葆设计之美的方式,是不断的变幻。
从人流的入口开始,我们就在整体的动线中有节奏的穿插进互动技术,光之瀑布带来震撼的视觉之美,体感游戏带来童趣与新奇,实现舒适、高效而又丰富的购物体验。
设计手记:
这是一个突破常规的设计,首先是一个市场上鲜少有的经营模式,其次是项目的地脉文脉。
当项目独特的经营定位,碰撞上两千年丝绸之路的发源之地,黄河之水的故乡,决定了这是一个不寻常的项目,更是深深激发了设计师创作的无限灵感与想象。
汽车是一个工具,发展至今更是一种文化的代言。
没有了传统模式的限制,我们围绕汽车这个主角,这个集设计美感、机械动力及科技的产品,在设计上以“打造一个汽车文化聚集交流及服务的场所”为目的。
在整个空间的设计中,采用参数化的设计手法和语言,诠释出“汽车是一种精密化的设计产物”的观点;
空间的圆弧与流线型的处理,正是汽车减少风阻的流线型车身的延伸。
这个项目让我们过足了设计的瘾,也诠释了对汽车文化的一种艺术解析。
平面布置图 一层
平面布置图 二层
平面布置图 三层
平面布置图 四层
平面布置图 五层
项目信息
项目名称 | 良志国际汽车城
开 发 商 | 良志集团
设计团队 | LB凌奔设计
项目完工 | 2019年6月
项目面积 | 70000平方米
项目地点 | 兰州
凌奔
凌奔设计创始人
—END—
投稿:info@cnmd.net
总是错过“现代装饰”的日常推送?
记得给我们加星标
★
就能减少这个问题啦
▼
往期精彩
(点击图片查看)
特别报道 | CDE餐饮设计展: 从多重视角解读场景化、多元化跨域创意展
“探寻设计美学的密码”主题论坛暨2019国际设计传媒奖MM艺术空间大奖巡讲(广州站)成功举行
玩转酷潮 | 昆明金地办公空间
哔哩哔哩BLG电竞办公楼
协会动态 | 凝心聚力,共议未来——SIID家装设计委员会筹委会座谈会圆满召开
△
现 代 装 饰
始于1985 助力中国室内设计向前
精英设计文化的倡导者
设计师群体专业推广平台
常青藤设计师俱乐部
『精英设计师的朋友圈』
客服
消息
收藏
下载
最近







































