查看完整案例


收藏

下载
▲移动隔断示意图
AD GIN STUDIO是GB SPACE(高白空间设计事务所) 设计的一家高端影棚项目,位于北京市朝阳区金盏镇金盏南路金星祈园K2座。项目总面积360平方米,空间由VIP区域和影棚区域两部分组成,其中VIP区域约160平方米,主要包含吧台区域、会议室及两个VIP接待室,影棚面积280平方米。
▲前台正面
▲前台侧面
设计师的设计灵感来自于拍摄手法中画中画的构图手法,尝试在有限空间内创造多层次的视觉效果,通过层叠错落的空间记录人和故事。而空间既彼此独立又有视线上的联系,使人游走在空间中能够有更多情景感受。八米六的净高空间为设计师提供了一个良好的条件,设计师也在空间中设计了两个错层,分别安置了两个VIP接待室。通过高度区分了公共区域和私密区域两种功能需求,并由楼梯作为每个空间的沟通路径,增强了空间的层次感,使立面效果更佳丰富。
▲“画中画”的概念插画
▲VIP接待室1
▲VIP接待室2
▲楼梯
▲楼梯整体布局
▲楼梯局部
空间中的大立面是设计师表达概念的重点打造区域。在聚碳酸酯透明墙板上开窗,利用材质的特性结合灯光设计,使空间呈现出了若隐若现的画中画效果。
▲立面2
▲立面3
空间选用金属、水泥漆、水磨石、灰色木为主要材质,墙面上设计了精工细作的造型元素,仿佛截取了画框一角,延伸画中画的设计语言,增加空间的层次感的同时,也与粗糙的水泥漆形成显著的肌理对比。
▲AD GIN STUDIO局部材料细节
基于影棚的特殊使用功能,空间中设计了很多可灵活开闭的门,如入口处即为一个活动大门,开启时可自然隔离影棚和VIP区域的路径,使用者可被分流到各个区域中。当有大型拍摄需求时,关闭大门可使各车型车辆自由进出影棚;另外,空间中大立面所设计的移动隔门也满足了不同的使用需求,当门关闭时影棚区域和VIP区域可各自独立使用,当门开启移到一侧时,影棚区域和VIP区域将融为一体,扩大了影棚拍摄进深,使空间更加开敞灵活。
▲
影棚区域和VIP区域之间的公共领域
▲
影棚区域和VIP区域之间的公共领域局部
VIP接待室的设计秉承了舒适为主兼并功能的原则。在近30平米的空间中,设置了独立洗手间、mini bar、化妆空间、洗头台及用餐休憩空间。设计师精心设计了两处化妆台的固定家具,现场打造的固定家具材质及造型的搭配使整个空间浑然一体,更能凸显空间的设计语言及独特性,在软装选型细节中也搭配了空间中的金属材质和灰色木饰面,结合皮质及丝绒家具,石材台面桌子,配合香氛营造氛围,提高了整个空间的格调与舒适度。
▲
VIP接待室1
▲
休息室
▲最初概念图
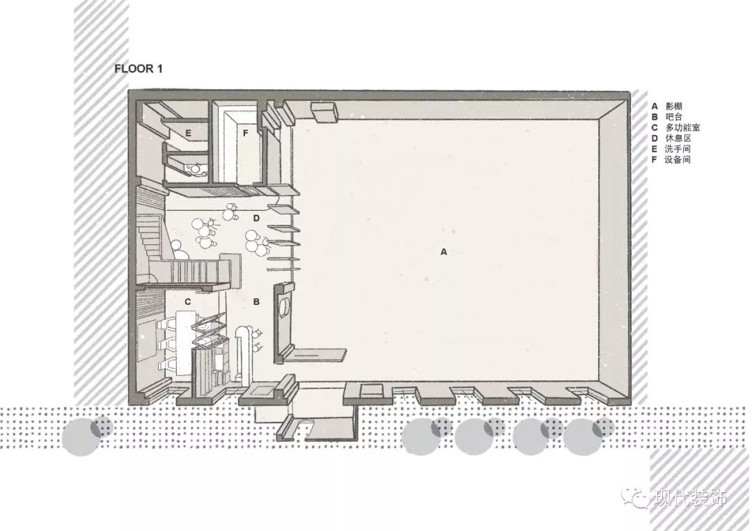
▲一层平面图
▲二层平面图
项目名称:AD GIN STUDIO
项目地点:北京市朝阳区金盏镇金盏南路金星祈园K2座
设计公司:GB SPACE高白空间设计事务所
设计师:高文毓、白杨、张婧
竣工时间:2019年3月
项目面积:360㎡
摄影:AD Studio 李子昂、张呈龙(观谷文化传媒)
视频:AD Studio 智童
▲
设计师
高文毓
▲设计师白杨
—END—
投稿:info@cnmd.net
总是错过“现代装饰”的日常推送?
记得给我们加星标
★
就能减少这个问题啦
▼
往期精彩
(点击图片查看)
像教堂一般的珠宝店——成都SEEING与闻珠宝店
谢天新作 | “知白守黑,空色有无” - 上海民生现代美术馆
秀色可餐 | 独具波兰特色的Opasly tom 餐厅
独家视频 | 梁景华:艺术的设计,温度地生活
△
现 代 装 饰
始于1985 助力中国室内设计向前
精英设计文化的倡导者
设计师群体专业推广平台
常青藤设计师俱乐部
『精英设计师的朋友圈』
客服
消息
收藏
下载
最近








































