查看完整案例


收藏

下载
△外景
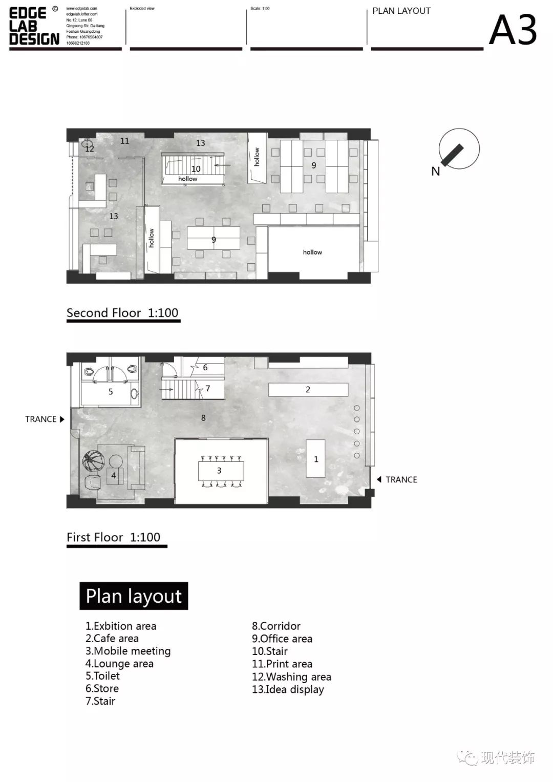
项目是边界实验工作室的办公空间,原本是一层6米层高的店铺空间。利用钢结构夹层把原有空间分割为一二两层空间使用。一层为T.E.M.P艺术空间,设置了吧台、会议空间、卫生间及展览装置,夹层为Edgelab工作室的日常工作空间。
△多功能布置图
△前门
△入口前厅
△前台
设计的出发点是希望一层T.E.M.P艺术空间具备功能的多样性,可以用作会议、展览、办公、娱乐活动、及产品展示的功能。因此,设置了一个玻璃的可移动的会议空间(Meeting box),利用会议空间的前后左右的位置移动,产生出多种不同尺度的空间,达到多样的空间布置的可能性。
△可移动玻璃会议空间
△会议室近观
△细节
钢结构夹层的搭建,为了保证一层空间没有柱子,夹层采用了自行设计的钢吊柱的结构形式;同时通过对夹层平面挖洞的方式,加强一层与夹层之间的互动和交流。通过平面方洞,不仅可以补充一层中段部分的采光,同时加强了整个空间的气流流通状况。
△一层楼梯通向钢结构的夹层空间
建筑物的正面和背面,透过大面积玻璃的方式,保证室内空间充足的采光。其中独具特色的是,利用横向长窗将建筑物周边大片的树林绿化景观充分地引入室内。
△紧靠楼梯的夹层部分概览
△楼梯前的办公空间
整个设计的材质运用上,设计师希望保留混凝土、钢结构夹层、夹板的原有外貌,收口自信直白,外形直接表达构造之美。配合大面积的留白,使得整个空间体现理性而又质朴的感觉。
△夹层采用了自行设计的钢吊柱结构形式
△采光充沛的办公空间
△细节
△休闲区
△洗手间
△夜景
爆炸图
采光分析图
气流分析
平面功能图
项目信息
地理位置:佛山市顺德区大良街道,广东,中国
业主方:Edgelab边界实验建筑工作室
设计方:Edgelab边界实验建筑工作室
设计师:黄智武、何钢荣
项目成员:梁文朗、冯嘉豪
建筑面积:200㎡
设计周期:04/2018-06/2018
建设周期:07/2018-10/2018
摄影:左小北 (恩万影像)
Edgelab边界实验建筑工作室
黄智武
(Wilson Wong)
边界实验主持建筑师/设计总监
— END —
往期推荐
米兰TENOHA多功能休闲餐厅
充满极简与自然美的多功能民宿——栖也· Habitat
STAR ART HOME , 跟着POPO去旅行
莫语生活办公室 | 有仪式感的生活,总是活得很美
黑家设计 | 兆阳O立方热点实现社
△
现 代 装 饰
始于1985 助力中国室内设计向前
精英设计文化的倡导者
设计师群体专业推广平台
投稿:info@cnmd.net
客服
消息
收藏
下载
最近















































