查看完整案例


收藏

下载
古城西安,曲江池畔,一个三层的顶层复式住宅,从入户到阁楼,这间422㎡的住宅于一片纯粹素雅中唤醒家的气质。返璞归真,观想设计用极简现代的设计风格,在忙碌的钢筋混泥土森林里勾勒出生活的轻松模样,拥抱静谧本真的生活,写尽现代东方诗意,打造心灵寄居之所。
于可行可望之间
介入可居可游
住宅的原始户型结构本身并不理想,原有空间墙体繁多,布局分散,动线关系凌乱而复杂,设计师通过打通、扩建、再重组来实现空间的通透感,并巧妙的将空间中不可拆除的墙体重新做了空间梳理,改变了原有的失序状态,最终确立了立体而通透的空间秩序。
设计从返璞归真的东方哲学出发,厨房和餐厅的打通,通透的玻璃门,大面积的落地窗,还有原有结构的柱子经过天然石材的美化,通过材质的变幻构筑当代设计语境,使这个空间契合形成了对望、对话。
客厅里的沙发与茶几来自于著名品牌Minotti,其设计有着优雅而又现代的巴黎装饰风格:纯粹的设计、精致的材料、无可挑剔的做工、以及一丝不苟的细节创造出美妙的平衡感。这一切特性正与本案的风格不谋而合。
客厅内,大理石造型的茶几与冷调定制的墙画相互衬映,柔与刚、动与静之间赋予空间灵动的生命力,提炼宁静与安逸的环境和谐之美。
客厅是结构主义与功能主义的完美结合之所,观想设计以理性设计勾勒空间结构,用细节处理表达情感,注重韵律与秩序感的营造,于可行可望之间,介入可居可游的空间片段。
在纷繁中建立秩序
取消原有隔断,设计师将餐厅和厨房打通,增加了自然光线的引入,同时扩大了用餐视野,让空间的构成保持了一种更为开放和通透的可能性。当自然光纳入室内,流动的气韵交融,打破原有的界限。屋内屋外,人与自然,虚实相生,诗意升腾,让人能够静享当下。
餐厅上方的灯与空间的配合也很是点睛,从厨房、餐厅、客厅这样一个大开间又独立存在的空间里,只感受到舒心、平和,空间里充满了现世安稳岁月静好的精致感受,这种情绪的表达,是技术性和自然心灵和谐的融合。
空间的过渡虚实借景,隔而不断,于通透之间形成对话,以东方之诗意若隐,回应现代主义之阔达。
本案的橱柜来自技术处于全球最前沿的Häcker。Häcker用先进的技术,严谨的设计和最大的舒适度的结合使厨房空间与众不同。
极简并不等于简单,而是在纷繁中去建立一种秩序。设计师将线条贯穿于整个室内空间,利用线条的交错穿插建立出富有韵律感和动感的活跃空间,具有浓厚的设计感。
大块面的线条和色块让整个空间整洁大气。在灰与白相互呼应的空间中,探索东方哲思启迪下,材质和光影演绎的宜居实践,以空间写诗。
在色彩应用上,设计师选择了简洁的黑色,白色,灰色作为空间的主色调,同时采用了富含自然纹理的石材和木纹材料,为空间增添活力。
一楼的公共区域和门厅处实现了基本的功能需求,同时设置了设备间,洗衣房,通过干净素雅的定制产品,把门厅的功能隐藏。厨房和设备间去掉了所有不必要的设计,创造出以简约为特征的空间,“大道至简,衍化至繁”,越朴素的设计反而越显高贵。
楼梯作为连接空间的存在,设计师在这里创造了可以休憩、静处的“角落”。它们是记忆的片段,是时间的图像,也是生活场景的容器。
越简单、越舒适
二楼主要以卧室和茶室为主。私密空间通过色彩的不同运用,得出空间不同的心理感受。细致的窄边框门,极简的天花,所有空间的收口系统,还有那种只有在靠尺之下才看得到的工艺,无需过多的描述,这种体验将会存在于记忆里。
主卧室延续了公共区域的风格,采用极简现代的设计风格,诠释越简单、越舒适的美学原则,全景落地窗搭配优雅的皮质软包床和深蓝色沙发让整个空间清爽又高级。
在主卧空间,观想设计用去符号化的设计手法,通过刻画自然舒适的氛围,回归当代设计的精神本源。
主卧里配套设置了卫生间,开放的洗漱区能承载更多的功能性,细心的设计让一切紧凑却不拥挤。横平竖直的线条,仿佛在诉说着一个干净利落的空间故事。
步入茶室,设计师刻意以现代主义去改变传统茶室一贯的含蓄与静默,以大面积阵列的落地开窗尺度,突破传统窗景幽微的采光样貌;以素静的白色墙面为底,修长简洁的茶席像慢慢展开的一幅长卷,古老的美学在追求纯粹的现代设计中卸下了包袱。
返璞归真间
勾勒轻松
三层的阁楼上,设计师保留了原始三角顶结构,通过对称式开天窗,在空间的体块与楼层之间,寻找一种趣味,由此创建自在的尺度。
古人崇尚“大道至简”,生活亦主张“简”。这种追求简单、本真的智慧,在三层空间的色彩运用上,体现更加明显:广泛使用了原木、玻璃等简约素色,舍弃繁复的装饰,以木色与白色打造宁静淡泊、格物怡情的雅室格调。空间内干净利落的线条,充分展示了什么是空间之美。简约的气质,抛去繁杂,勾勒出轻松生活的模样。
大宅至简,少即是多,在返璞归真间,勾勒轻松模样,当代与传统融合之余,写尽现代东方诗意。
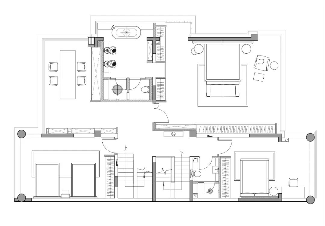
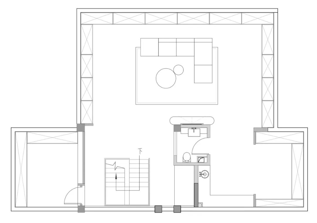
平面图
1F
2F
3F
项目信息
室内设计:观想设计
主持设计师:冯刚、原雪
施工单位:观想设计工程部
摄影:任东
视频:花生工作室
Fin.
设计师 冯刚
观想设计(Guardare X Space Design)创立于2006年,是一家致力于室内设计、装修、软装于一体的综合性高端设计公司。多年来坚持以人为本的设计理念,坚持做纯粹的设计,在作品上以达成一种和谐、人性、贴近人们的生活。服务领域涵盖:家装、地产、办公、会所、餐饮以及景观园林规划设计等。
内容策划/呈现
排版 编辑:ANER
校对 校对:
ANER
客服
消息
收藏
下载
最近
















































