查看完整案例


收藏

下载
花褪残红青杏小。
燕子飞时,绿水人家绕。
墙里秋千墙外道。
墙外行人,墙里佳人笑。
△ 庭院
摄
影:
田方方
设计单位
继景室内设计
项目地点
北京市朝阳区
改造面积
1600平方米
建成时间
2019年9月
北宋大文学家苏轼在《蝶恋花》中所描述的场景总能让人感受到庭院深深的空间意境。
跨越千年之后,那些深宅大院里的生活场景在人们的脑海里依然鲜活生动,且能激发人的想象力。
这是因为哪怕身处钢筋丛林的现代大都市,人们从来没有停止过对大自然的渴望。
道法自然是我们中国人的生活哲学,也是业主在开发、设计、运营每一个新场地时,坚持的理念所在。
在北京的澄·婚礼艺术空间改造项目进行的过程中,我们依旧延续着这份初衷。
△ 原始状况
©
继景室内设计
概况
原址的主体建筑为不规则的几何体,有近似梯形的平面,内部一个天井。
天井可以把阳光和空气引入庞大的建筑体内部,照亮每一个角落。
建筑深藏在绿荫中,其后院有一个相对独立封闭的、有仪式感的草坪,前院的原始状况也不算糟糕:
石径小路、高矮花丛,一样不缺,有公园般供人闲庭信步的景致,只是缺乏配合婚礼艺术空间的气氛。
因此在景观设计之初,我们便把重点投向了入口,用一个充满仪式感和小惊喜的庭院作为主体建筑的极富浪漫、诗意的前景空间。
△ 轴测图
©
继景室内设计
△ 入口
摄
影:
田方方
△ 正入口
摄
影:
田方方
△ 庭院
摄
影:
田方方
庭院
人车分离的双入口设计,让进入场地的初始就显现出不同寻常的趣味。
主体建筑在入口处就能被人远远看见,但人们依然不时地被精心设计的前景空间转移了视线:
在正式进入宴会场地前,要先穿过混凝土错墙、跨越水池、游走连廊、环绕大草坪。
这仿佛经历一场动人心魄的爱情——明明爱情就在眼前,却要翻山越岭地去追寻。
△ 入口
摄
影:
田方方
入口处坚固的混凝土墙体象征永恒,守护并见证着每一份来之不易的爱情。
与之搭配的白色连廊的隔栅顶棚轻盈优美,阳光照射下,在墙上地上留下线条柔美的影子,婉约优雅。
坚实的墙和灵动的顶,对比强烈,却又和谐统一。
它们互相陪伴的姿态,倒映在草坪前的水池中,如同在此留下美好回忆的一对又一对的新人。
水池如镜面,映着蓝天、映着白云,映着新郎新娘牵手的画面。
我们以水作为仪式的背景,希望新人能在这一方小天地留下最美好的回忆。
涓涓细流入水池,微风吹皱水面,满满的幸
福融化
在心底
。
△ 水池
摄
影:
田方方
与后院幽静内敛不同,前院宏大开阔,铺满草坪的大庭院阻断外界的喧嚣,营造出丰富却安静的内部空间。
双庭院的设计丰富了空间层次,同时也满足了不同客户不同时期的需求。
△
摄
影:
田方方
△ 庭院
摄
影:
田方方
△ 通往主入口的连廊 摄影:
田方方
△ 活动搭建的装饰物 摄影:
田方方
宴会厅
宴会厅是整个婚礼的重要组成部分:
大空间被庭院包围,绿树掩映、郁郁葱葱,大面积的室内幕墙全部朝向庭院开放,人在其中能感知一年四季的风景交替。
几何形的吊顶呼应着建筑本身的结构,除此之外,建筑内部没有更多的装饰形式。
全白的底色,营造了更为圣洁的气氛。
我们希望宴会厅像家里的会客厅,温馨舒适,阳光透过宽大的落地窗洒进屋内,阵阵暖意上心头,每一位宾客都像回到了家。
我们在原建筑帷幕处设计了纤影壁帘,这是一种朦胧的金属表皮,它让人在视觉上产生微妙的雾化感,既看起来柔美温和,又带有一种未知的神秘。
△ 宴会厅 摄影:
田方方
化妆间
“我们要创造一个不一样的化妆间,客人在这里可以留下最美好的回忆。
”这是我们一开始就定下的目标。
因此,在注重功能本身的前提下,我们把设计重点放在了“体验”上。
在和宴会厅连通的空间里,我们用半透光的两个半圆墙体围合成一组造型优美的柔性空间,一个半圆内是开放连通的大空间,供闺蜜们聊天喝茶;
另一个半圆是化妆、更衣的区域。
在空间整体的纯白底色中,唯独在化妆间加入了些许红、绿、金色,为“绿树红墙有佳人”的诗意抹上了淡彩。
我们切除了部分外墙,将窗改成了落地玻璃门,把户外的庭院和绿植揽到化妆间内,为化妆间切割出一个专属的私密庭院。
阳光透过树影落在室内,影影绰绰。
在仪式开始之前,新郎新娘和密友们可以在这里享受最舒服、惬意的时光。
△ 化妆间 摄影:
田方方
大楼梯
连接一、二楼的大楼梯承载着最重要的一条动线。
仪式中,这是每一对新人的必经之路,它也是纯白,不加丝毫装饰的。
我们利用自然光为楼梯赋予了更强的仪式感。
“你面前的东西越少,你就能在每一样东西中发现更多。
”因此,人会看到投落在宽大阶梯上的曼妙光影。
天井里的自然光是通过一个个喇叭状的采光口被传送过来的,像极了柯布西耶在朗香教堂里创造的光的入口。
人们透过窗口,移步换景地看得到窗口外的花草。
走在台阶上的每一步,都充满了与自然共存的喜悦。
眼前这片白茫茫的画面,突然有了宗教感,有了一种难以言表的神圣感,令人不自觉地放慢脚步、屏气凝神、思绪万千。
新郎牵着新娘的手缓缓走下楼梯,他们在想什么?
第一次相遇、第一次牵手、第一次拥吻……一切美好的画面涌上心头,心里也响起了旋律。
此刻周围也寂静无声,唯独轻柔的婚礼进行曲被宛转悠扬地演奏着。
他们彼此对望,没有开口,却已经听见了内心的合唱。
△ 大楼梯与墙面开口 摄影:
田方方
△ 二楼休息区 摄影:
田方方
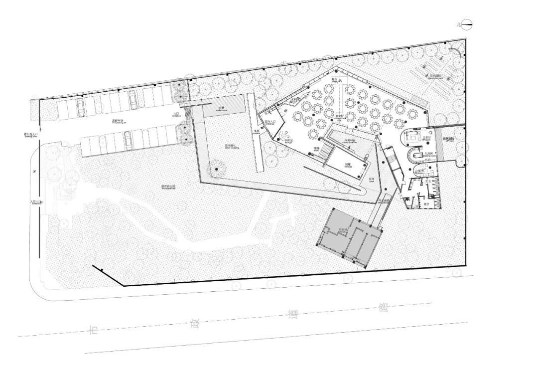
△ 一层平面图
©
继景室内设计
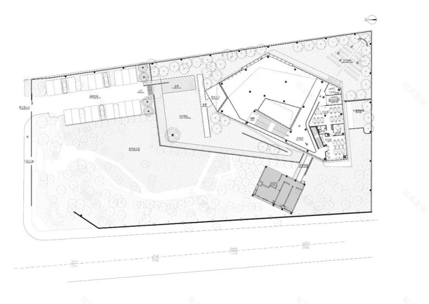
△ 二层平面图
©
继景室内设计
完整项目信息
项目名称:
澄·婚礼艺术空间
项目地点:
北京市朝阳区
项目
业主:
艾恩婚礼
项目经理:
蒋顺林、张遒
设计公司:
继景室内设计(上海)有限公司
参与人员:
范继景、林利达、柴润知、宋万洋、李佳星、汪吟萱、王龙文、黄大康
施工团队:
北京丽贝亚建筑装饰工程有限公司
改造面积:
1600平方米
建成时间:2019年9月
摄影师:
田方方
编辑
/ 魏璇
视觉
/ 李茜雅
校对
/ 原源
本文由
继景室内设计(上海)有限公司
客服
消息
收藏
下载
最近






























