查看完整案例

收藏

下载

翻译
Architects:Sam Crawford Architects
Area:198 m²
Year:2022
Photographs:Tom Ferguson
Builder:TOKI
Structural Engineer:Cantilever Studio
Acoustic Engineer:Acoustic Logic
Project Director: Sam Crawford
Project Architect: Jarad Grice
Documentation Team: Scott Rowland, Sofia Nay
Landscape Design: Gabrielle Pelletier
Civil & Hydraulic Engineer: Partridge Engineering
Heritage Consultant: Damian O'Toole Town Planning
City: Sydney
Country: Australia
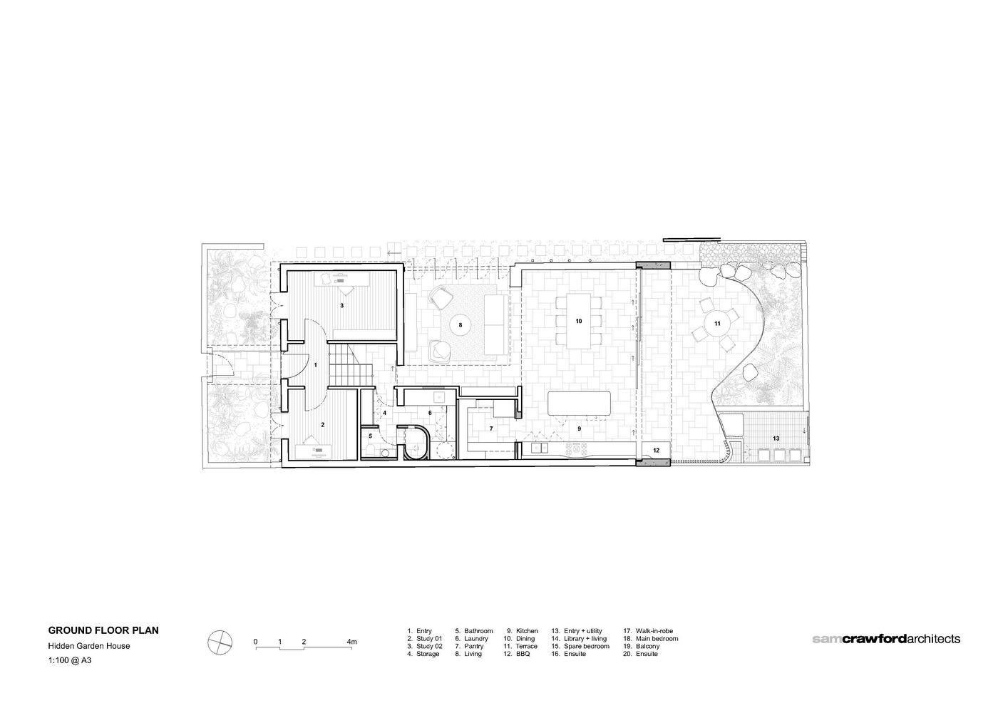
Our client’s brief was to alter their house to provide them with light and warm spaces, passively heated and cooled. They wanted quality over quantity, improved functionality, and low maintenance. The original house was built in the 1980s and then extended in the late 1990s. It required radical surgery. The ground floor was damp, dark, and cold, and the upper floor was hot and leaky.
The main living space, in the center of the house, was well proportioned but suffered from disparate ceiling levels and multiple doors to service rooms. Ceilings levels and openings were consolidated to enhance the quality of the double-height space. Full-height windows to a narrow side passage were replaced with pivoting double-glazed windows. The existing kitchen/dining space once opened to the rear yard through full-width bi-fold doors. However, the low head height of the doors meant that this connection failed to capitalize on the qualities of the north-facing double-width block. An oversized fiddlewood tree and degraded rear deck also detracted from the potential of the outdoor spaces. Upstairs, the main bedroom opened onto an enclosed balcony, and the walk-in-robe and en-suite were set a half level below.
Our response was to demolish the existing rear pavilion and create a new hidden roof garden above a 4.5m high wall of glass. The lower floor clerestory rises almost a meter above the floor level of the main bedroom. The ensuite is re-located from the depths of the plan to sit within the new roof garden creating a private oasis where the combination of the raised garden and strategically placed screens allow our clients to bathe and inhabit the main bedroom in complete privacy with views of the garden and sky beyond. Entry from the street is through a small door in a tall, ivy-covered, wall – a remnant of 19th-century stables that once occupied the site. The front door is reached via a secluded courtyard. Upon entry into the house, an open steel-framed stair provides glimpses through the dwelling without compromising privacy. An enlarged skylight brings ample light to what was once one of the darkest spaces in the house. A new light well provides light to a new guest bathroom on the upper floor and a lower floor bathroom and laundry.
The curved ceiling and double-height openings in the kitchen dining room draw the eye up and out to the landscaped rear yard and sky beyond. Our clients love being able to track a flock of birds across the sky and the sense of space extends into the surrounding neighborhood. Solar access and cross ventilation are carefully managed so that the house requires very little heating in winter, and no air conditioning in summer. A restrained, consistent, and earthy palette means that the house feels settled and exudes a sense of calm whilst allowing for moments of delight.
客服
消息
收藏
下载
最近













