查看完整案例


收藏

下载
“转译与回响:丹麦和瑞典现代建筑(2019年4月20日-4月29日)”
正在招募!
点击上图 查看详情
点击文末“阅读原文”进入报名页面
经典再读
一座经典的建筑,无论何时看都不会过时。
行走中的建筑学“经典再读”栏目,
与你一同回望现代建筑史上的经典作品,
并期望由此带来的新灵感、新启发。
“感谢光,感谢生命,感谢我所拥有的一切。”正是这些信念支撑着巴格斯韦德教堂的设计。
△
伍重的草图
建筑师伍重(Jorn Utzon)设计这一教堂时曾经画过两幅草图:一众信徒聚集在海滩边,信徒和海滩被树状的柱子和云一样的拱顶限定在画面中。通过对这两幅草图的转译,伍重捕捉到了设计的灵感。
这一灵感来自他在夏威夷海滩观察到的自然景象:在迎风的位置,信风将云朵不断提升到海平面数千米以上,然后又完全静止在空中——伍重是如此痴迷于此番场景,有时他可以从清晨一直观察到中午。午后的阳光穿过云层洒落在沙滩上,这一切实在是太美妙了。
他从自然的空间中感受到精神上的平和,从而理解了精神上的平和其实就是对生活的满足、喜悦和感激。
于是,他将从中抓取到的空间体验融合到了巴格斯韦德教堂的设计中。
伍重希望创造一个能够容纳众多信徒、具有良好的声学效果并且平易近人的空间感受。他并不希望设计一个拥有戏剧化空间的传统教堂——幽暗的空间指向一个明亮高耸的圣坛。他希望信徒在参与团契时,能感受到自己成为了空间中不可分割的一部分。
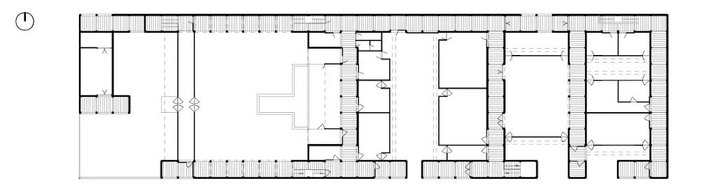
△
教堂平面图
△
教堂内院
教堂位于哥本哈根市郊,由一系列院落和大厅并列排布,再由具有保护性的走道将其围合起来。
△
教堂立面图
△
教堂外观
建筑由现浇混凝土和预制混凝土构件组合而成,立面上覆盖着浅色混凝土预制构件及与之配套的瓷砖,屋顶由金属铝板覆盖,沿着两侧相平行的通道上面覆盖有玻璃天窗。
△
两侧通道
走道两侧的长墙由混凝土梁柱结构建造出框架,然后在框架之间填充浅色的预制混凝土构件。底层的地板由浅色混凝土预制构件配合铸铁模具构成,产生了平滑的表面效果。
△
两侧通道
轻质无节疤松木格栅与玻璃严丝合缝地组成了教堂主入口横向过道的隔墙。门所选用的材料质感很接近地面和墙上的水泥砖。门窗由非常优秀的木匠制作,所选材料也是当时能找到的最好的木材。室外洞口的构造处理,并没有将玻璃塞进事先预留好的窗洞里面,而是使用了一些构件将玻璃贴在了洞口的外侧,所以孔洞结合表面的构件在一侧是开放的,周边是没有连接构件的,这种拙朴的手法与教堂静谧的感觉十分契合。这一构造做法参考了瑞典建筑师西格德·劳伦兹(Sigurd Lewerentz)的设计,他是第一个使用该构造做法处理外墙玻璃窗的建筑师。
△
教堂内部
这个教堂建筑几乎就是对伍重建筑理念一次集大成的体现。首先,伍重跨文化的背景在此展现得淋漓尽致:云朵的概念来自夏威夷任教的经历;合院式的布局不禁让人想起中国的建筑;两侧高耸的山墙也让人联想到中国的徽派建筑;伍重非常欣赏伊斯兰书法,所以室内拱顶的草图显示出类似伊斯兰书法般自由优雅的线条;圣坛背后的砖构也让人想起伊斯兰建筑的符号。
△
教堂剖面图
△
教堂室内
其次,“单元复加建筑”的概念。写于1970年的《单元复加建筑》清晰地阐释了伍重这一设计手法,简单说就是以独立的单元通过排列组合的方式形成有机的整体建筑。从平面我们不难看出,教堂是由一系列具有功用的小单元通过两侧走廊相连进而组成的有机整体。
△
通道
△
教堂室内
最后,预制装配的建造理念。
在伍重看来,预制装配式建筑的经济性并不是最主要的目的,他更愿意从建筑学意义上来讨论。
在他看来,预制装配式的建造方式是一种支撑结构和填充结构清晰表达的建构手法。1969年,伍重就设计了全预制的住宅实验单元体,而这一实验单元放大之后就是巴格斯韦德教堂的建造手法。
△
构造细节
巴格斯韦德教堂以其造成的特殊空间效果与柔和的光影表现而独树一帜,又被称为“云朵教堂”,成为伍重的代表作之一。
参考资料:《低调与喧嚣:丹麦现当代建筑》,有方
视觉
/ 李茜雅
校对
/ 鲍思琪
客服
消息
收藏
下载
最近











































