查看完整案例


收藏

下载
格调雅居
是惊鸿一瞥的韵律
也是由心而生的自在
渗透生活的本质
寻觅一种更高的生活境界
本案是一栋 5 层别墅,含地下 2 层在内,面积共 640㎡。设计师从建筑形态入手,让生活与艺术在这栋房子中解构,重生,深层次感受空间的张力。
玄关
Porch
玄关运用墙板系统,以极简设计手法在不经意间呈现自在、随意的生活方式。自玄关而入,整个一层的格局依次为中西厨区、餐厅、后餐区、多功能区、庭院。玻璃屏风隔断,若隐若现,营造朦胧意境。
西厨 Kitchen 社交型西厨空间的规划,增加了空间趣味性与生命力。开放式布局将品质生活直观呈现,搭配长形岛台和高脚凳,兼顾简餐与酒吧功能,使之成为家庭生活与社交聚会的主场。
设计上摒弃复杂与繁琐,透过流畅的动线和功能的满足,回归生活的本质,享受现代都市生活的精致与随性。
餐厅
Dining room
自西厨而入,用圆形餐桌构建起既独立又相互关联的开放式餐厅空间,白纱落地窗帘透露临窗布局,朦胧光影唤醒优雅、浪漫氛围。一家人围合而坐,其乐融融。
餐厅与挑高客厅共享空间,并利用空间框架的层叠与隐退关系,以自身独特的体量来划分层次,大宅气场十足。
岩板材质丰富多元的纹理变化,不经意间成为空间里的视觉焦点。联动墙面与地面的统一风格,成就空间视觉的连贯性和延展性。
客厅 Living room 挑空设计为客厅带来尊贵大气的惊艳呈现,电视背景墙不同材质的组合和灯光的运用,消弭了挑空的空旷感和冰冷感,创造出视觉上的舒适感受。
灯光自顶倾泻而下,流经自然纹路的大理石墙面,呈现空灵之感。
家具、装饰选择朴实又不失雅致的风格,搭配柔和的色彩,让惬意与悠然的氛围在空间中流转。
一楼客厅 Living room 一楼客厅的风格更加清新雅致,简约的线条勾勒出柔和的质感,时尚家居单品的有机组合,呈现出精致、和谐的空间格调。
色彩的运用将克制的情绪表现得淋漓尽致,纹理间的相互牵制让空间画面的融合度更高,维持一种静谧美感。
形与色的关系持续、和谐、完整,纯粹无拘的生活方式被唤醒,居家的舒适感和满足感也跟着无限放大。
主卧 Bedroom 睡眠空间以柔和为主,对设计的要求是温馨典雅。同时,作为私密空间,不需要太多的造型,通过颜色的融合和线条的节奏,实现简洁处理,达到视觉上的平和舒适。
男孩房
The room for boy
男孩房承载着小小少年的个性与自由,设计师用蓝色护墙板和床头营造宇宙的神秘与广阔,搭配宇航员摆件和太空元素的装饰,将小男孩心中的星辰大海呈现在眼前,呵护纯真梦想。
女孩房
The room for girl
纯净的白,甜美的粉,将梦幻与圣洁交织,落在柔软的织物和轻柔的纱帘上面,呈现出一种浪漫而慵懒的意味。
当清晨的阳光透过雾气洒落进来,澄净而温柔,愉悦自心底蔓延。
卫生间
Bathroom
卫生间以镜面效果的材质为主,交织成就梦幻朦胧之感。自地面起,艺术纹理地砖向上延伸,成为背景墙,黑色边框玻璃隔断和双层洗手台补充了配色方案,创造出简单而又有质感的净美空间。
本案整个空间在不同动能之间保持开放性,以墙体的阻隔、空间的下沉、材质的变化作为空间区域的界限,开敞自由。由生活轨迹、情感交流作为纽带,实现全面空间,自然互动。
项目信息
Project Information
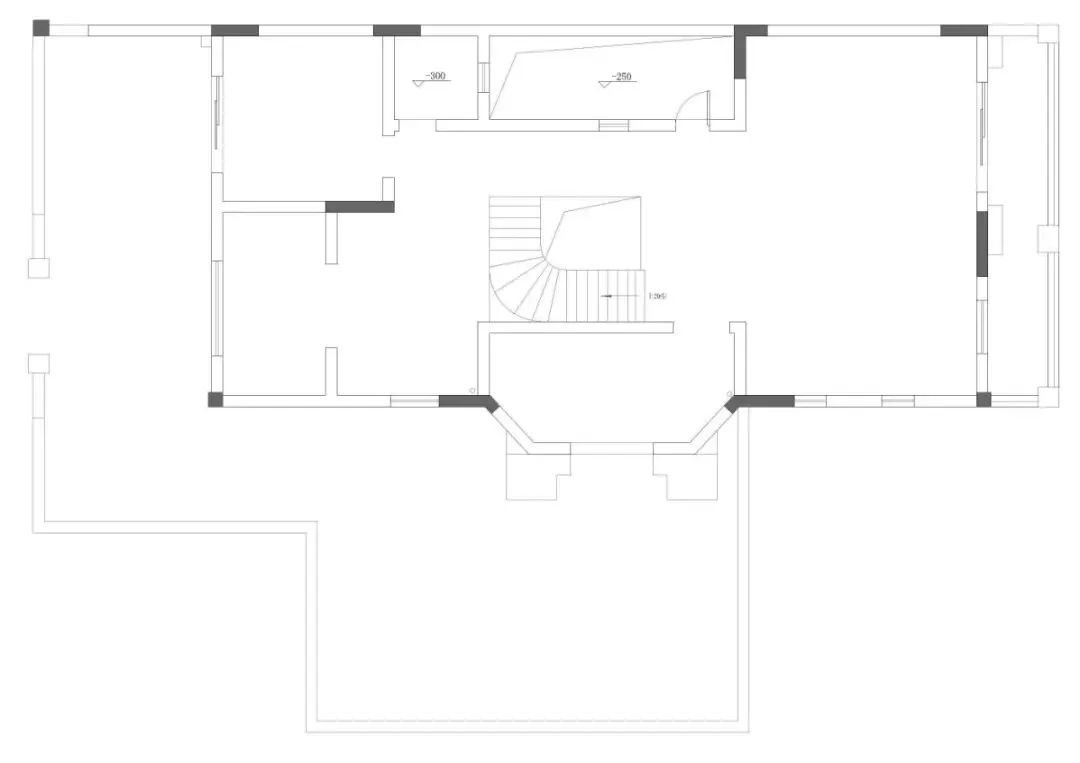
△一楼原始结构图
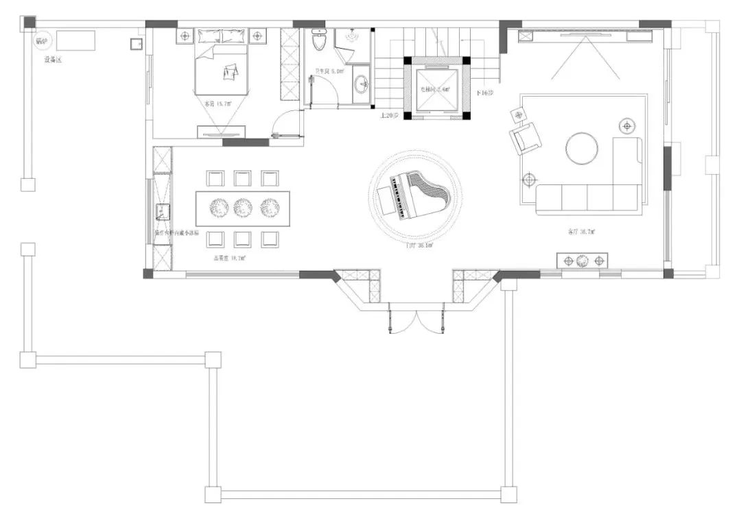
△一楼功能布置图
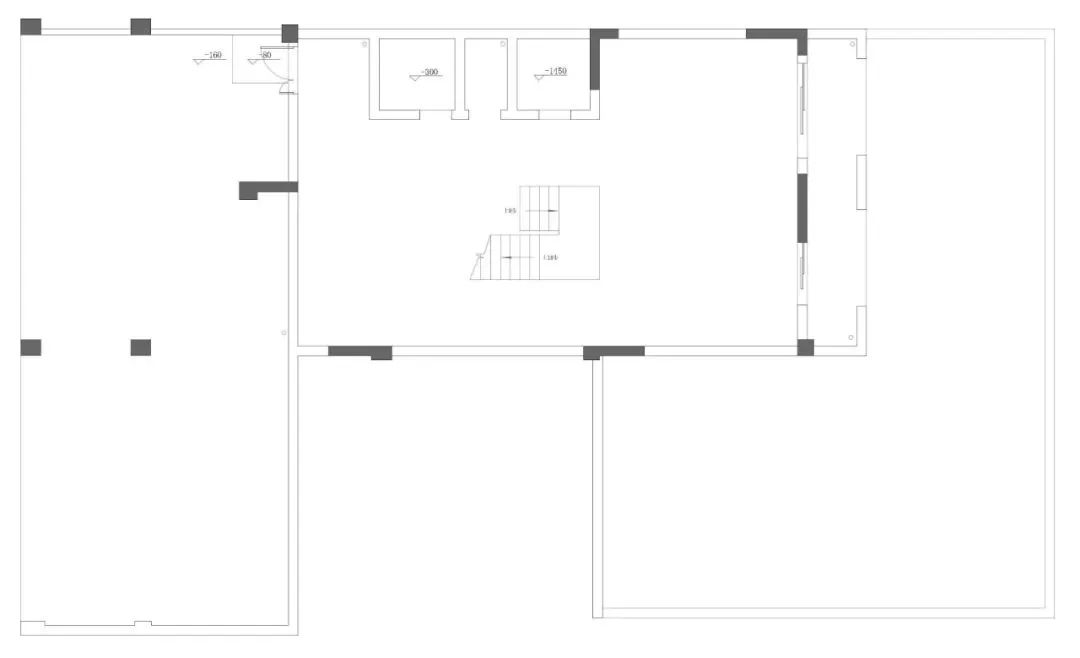
△二楼原始结构图
△二楼功能布置图
△三楼原始结构图
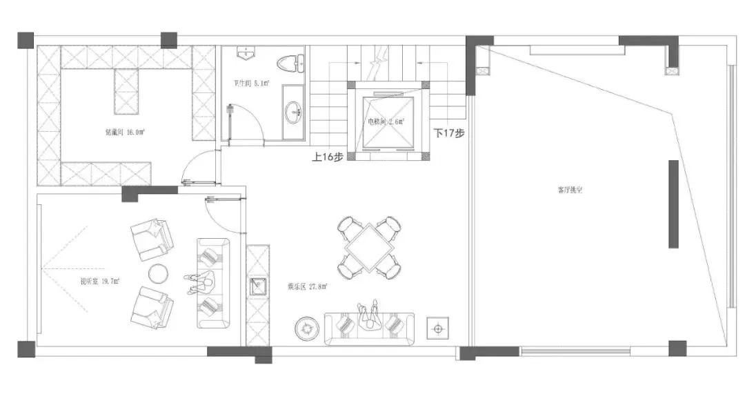
△三楼功能布置图
△负一楼原始结构图
△负一楼功能布置图
△负二楼原始结构图
△负二楼功能布置图
项目名称 |天琅
项目地址 |重庆·江与城
设计团队 |和悦团队
建筑面积 | 640㎡
●●●
点击下图进入小程序
【vifa 威法俱乐部】
尽享简单高品质生活
alt
你可能还想看
☟☟☟
客服
消息
收藏
下载
最近






















































