查看完整案例


收藏

下载
如果白色高调如高音般宏亮、辽阔、锐利,曲高和寡;
黑色低调如低音般深沉、浑厚,历史意味浓厚。
那么介于两者之间的灰色,则犹如中调,亲切、平和,闻之不忘。
▲Vifa威法最美作品评选参赛作品
品牌 | Brand :内再空间设计
设计师 | Designer:赵丽丽
面积 | Area:230㎡
户型 | Apartment layout:现代大平层
风格 | Style:现代轻奢 灰奢有度
地址丨Add:中央御景
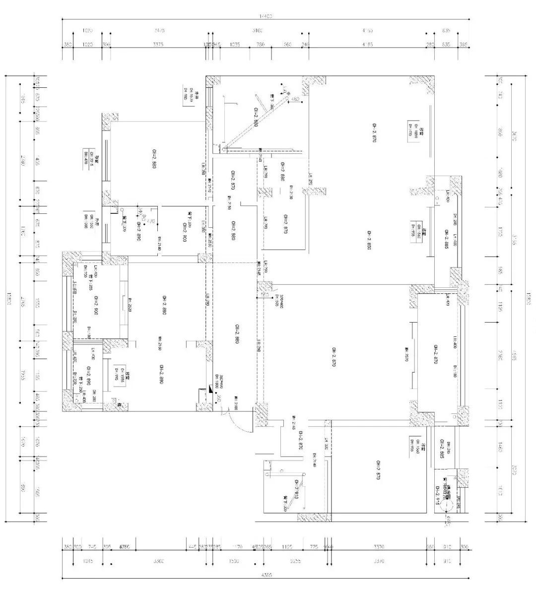
▲原始结构图
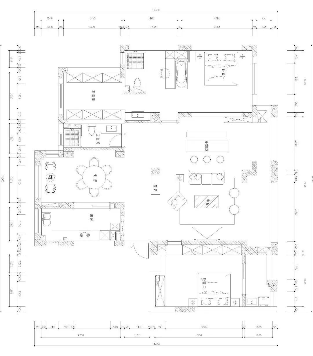
▲平面布置图
在现代家装中,灰色以其高包容性和高可塑性等特征,成为设计师青睐的颜色之一。
社交场所
“大平层”又
称 “扁平化别墅”或“平墅”,与
传统封闭式的客厅不同
,大平层意在打造
开放
式的社交区域。
本案从入户到餐厅再到客厅,采用全开放式格局设计。
且从入门的护墙、鞋柜,再到客厅装饰柜和室内门等,统一钛金灰元素,这让原本分裂开来的局部空间迅速统一,形成风格一致的整体
。
软装上小面积使用的黄色和蓝色,冲淡了灰色给空间带来的冷感,使得整个社交场所在大气的基础上又增添了一份温馨和活泼之意。
厨房
厨房延续了对钛金灰元素的运用,比之客厅,厨房更加强调极简现代风格。
卧室
卧室在灰色的基础上,辅以优雅的红色。
相比于客厅和餐厅较为厚重的钛金灰,卧室则采用了更为温柔的淡灰色,哑光的灰漆与临近主卫的带纹灰砖相互呼应的同时,明晰了空间划分。
卫生间
卫生间将灰奢有度发挥得淋漓尽致,灰色被运用到了各种材质之中,带来
简约、时尚又不失经典的呈现。
本案将不同明度、材质的灰色组合进不同的生活区域,并于变化中寻求联系,让分散的局部逐步融为一个整体,
精致低调却又个性鲜明。
设计师:赵丽丽
所获荣誉:
2017年荣获亚太空间设计大奖赛一等奖
2017年荣获“设计源·世界观丨2017年度江苏精英人物”荣誉称号
2015年荣获2014年度集团(客户最满意设计师)称号
2013年荣获锦华优秀设计师称号
2011年 第六届大金内装设计大赛 空间布置奖
2010年底荣获全国优秀室内设计师称号
代表作品:
(无锡地区)威尼斯花园、蠡湖公馆、香樟园、华府庄园、银河湾别墅,西水东,天元世家、复地蓝湾、太湖国际社区、山水湖滨、阳光城市花园、蠡湖一号、京梁合、玉兰花园
●●●
点击下图进入小程序
【
Vifa威法俱乐部
】
尽享简单高品质生活
你可能还想看
☟☟☟
客服
消息
收藏
下载
最近



























