查看完整案例


收藏

下载
洛阳罗曼罗兰文化传播旗下媒体:洛阳《建筑装饰》杂志、AD 建筑装饰微平台。
偏锋画廊于 2009 年入驻北京 798 艺术区,是中国最早推动抽象艺术研究与发展的重要艺术机构之一。在长足发展的十余年之后,画廊主理人决定邀请建筑营对其空间进行重新改造设计,以进一步完善使用功能,应对未来的发展需求。
△接待区,摄影:金伟琦
798 艺术区是由上个世纪 50 年代建成的电子工厂转变而来的当代艺术空间聚集区,该区域中标志性的混凝土拱窗结构是代表性的建筑元素之一。而偏锋画廊的原始建筑并不属于这类特色结构,是一座极为普通的工业建筑——封闭规矩、高挑空、无自然采光的砖混结构方盒子厂房。如何在满足画廊空间使用需求的基础上,塑造其独特的空间感染力与识别性,以此实现画廊品牌加成,是本次改造考虑的首要问题。
△总平面图 © 建筑营设计工作室
△原建筑外观 © 建筑营设计工作室
△原建筑内部(施工中)© 建筑营设计工作室
设计在既有建筑形式与结构的基础之上,以“光的漏斗”为概念意向,打开原本封闭的盒子,引入多层次的光,并重新梳理功能流线与结构材料关系,营造自然、开放、高效的艺术展览、会客和办公空间。
△分析图 © 建筑营设计工作室
△模型图 © 建筑营设计工作室
在临街的建筑立面上植入了两个梯形体量,成为方盒子向外翻开的窗口。一个作为入口门厅链接了建筑和园区街道,另一个梯形体量则作为飘窗为办公区带来自然光和街景。
△主入口,摄影:金伟琦
△沿街立面,摄影:金伟琦
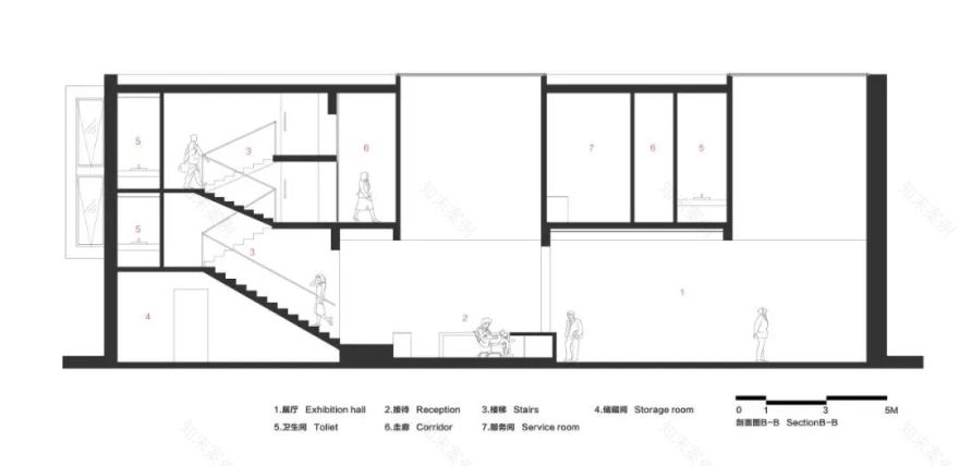
△剖面图 © 建筑营设计工作室
门厅采用清水混凝土浇筑而成,半透明的 U 型玻璃作为立面,由其朦胧、柔和的光感营造出进入画廊的第一印象。新的加建部分外侧包裹了与旧建筑相似的红砖作为面层材料,与 798 工业街区景观保持和谐。
△临街立面,摄影:金伟琦
△前厅,摄影:金伟琦。展厅空间则利用多个梯形的光筒向天空“借光”。根据旧建筑屋顶为预制混凝土板这一特征,设计对局部预制板进行拆除,增设了线型天窗。
△屋顶平面图 © 建筑营设计工作室
△接待区,摄影:金伟琦
天窗向下延伸至倾斜的墙面,形成三个大小不一的梯形光井,为其下部的展厅和会客厅带来柔和的自然采光。首层是三个彼此分离而又相互连续的展厅,设计采用密肋砼结构尽量提高室内的高度,密肋梁的截面为倒梯形,在梁之间嵌入了发光灯膜,为展厅带来柔和均质的人工光源。
△主展厅,摄影:金伟琦
△梯形截面的梁之间置入发光灯膜,为展厅提供柔和的光源,摄影:金伟琦
△展厅、旧厂房的大门犹如一件艺术品,讲述着时间的故事,摄影:金伟琦
由倾斜的墙面塑成梯型的二层会客厅,这里是为接待重要的藏家而设置的,布置休闲、会议、厨房、卫生间等功能。天窗引下的天光洒在倾斜的墙面上,形成独具特色的仪式性会客空间。
△接待室,摄影:金伟琦
△小会客室,摄影:金伟琦
前台、会客区、办公区的固定家具均采用混凝土浇筑而成,以岩板作为台面材料,家具与空间发生明确的对应关系。
△展厅细部,摄影:金伟琦
△接待室,摄影:金伟琦
△办公区,摄影:金伟琦
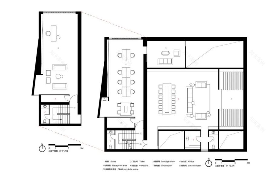
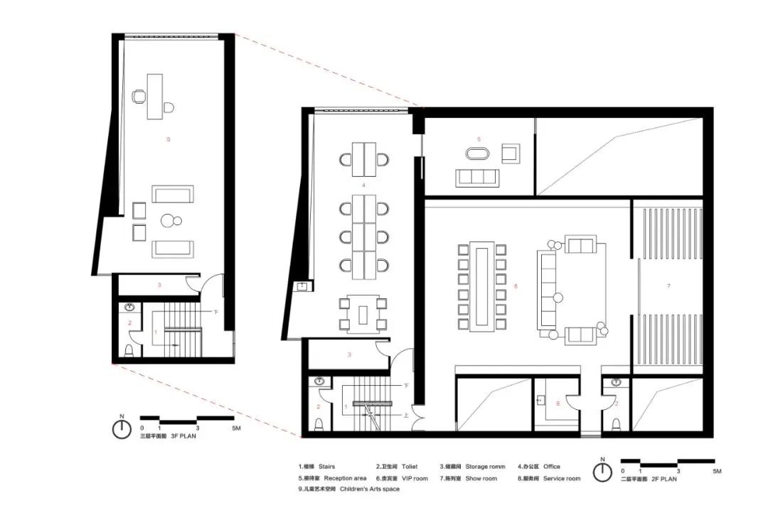
△平面图 © 建筑营设计工作室
△南立面图 © 建筑营设计工作室
△西立面图 © 建筑营设计工作室
项目信息
项目名称:偏锋画廊
项目位置:北京 798 艺术区
设计公司:建筑营设计工作室
主设计师:韩文强、李晓明
项目设计师:王同辉
结构咨询:朱长安
机电咨询:郑宝伟、李东杰、李忠娟
图片编辑:王同辉
施工团队:国顺西等
建筑面积:880㎡
设计时间:2020.10—2021.01
施工时间:2021.01—2022.02
主要材料:混凝土、微水泥、U 型玻璃
摄影师:金伟琦
韩文强
中央美院建筑学院副教授
建筑营设计工作室(ARCHSTUDIO)创始人及主持建筑师
设计研究主张运用关系的设计将物质空间转变为媒介,实现身体、自然、历史与人造环境的深度链接,从而拉近人与人、人与环境的情感距离。设计实践涵盖旧建筑更新、建筑与室内设计领域。曾获美国《建筑实录》设计先锋奖、香港 40 UNDER 40 建筑师奖、FA 中国青年建筑师奖等。
主要作品包括水岸佛堂、有机农场、曲廊院等。作品曾获 LEAF 欧洲杰出建筑奖、美国 Architizer "A+ Awards"、美国 Interior Design 年度最佳设计奖、ASC 中国建筑学会建筑设计奖、WA 中国建筑奖、Archdaily 全球年度建筑奖等。受邀参加国内外多个展览,包括哈佛大学中国建筑展、法国里昂“中国建造遗产”展览、第十三届全国美展等。设计作品被《Architectural Record》、《Architectural Review》、《Arquitectura Viva》、《Frame》、《D+A》、《Perspective》以及《建筑学报》、《建筑创作》、《世界建筑导报》等杂志媒体广为报道。
往期推荐
精英访谈|高龙家具张志朝:定制的无限尺度
袈蓝建筑设计|田岗知行村:让乡村振兴发声
报奖|
40U40 杰出青年
金住奖
锋建筑
住宅效果奖
WYDF100 杰出青年
中意设计奖
老宅新生奖
新商业空间奖
家装设计百强
色彩空间设计奖
视频号:@建筑装饰杂志
AD 建筑装饰
客服
消息
收藏
下载
最近












































