查看完整案例


收藏

下载
项目名称 / 领地·蘭台府业主私宅全案实景落地交付-花好月圆
项目名称 / 领地·蘭台府业主私宅全案实景落地交付-花好月圆
项目地址 / 绵阳市经开区三星路,小枧湿地公园旁
项目地址 / 绵阳市经开区三星路,小枧湿地公园旁
项目面积 / 122㎡
项目面积 / 122㎡
户型结构 / 三室两厅一厨两卫
户型结构 / 三室两厅一厨两卫
居住成员 / 年轻夫妇
居住成员 / 年轻夫妇
主案设计师 / 菜菜
主案设计师 / 菜菜
服务方式 / 全案设计+实景落地服务
服务方式 / 全案设计+实景落地服务
DESIGN / DDS 無同设计事务所
DESIGN / DDS 無同设计事务所
PHOTO / 独立空间摄影师陈一明
PHOTO / 独立空间摄影师陈一明
VIDEO / 精彩视频
VIDEO / 精彩视频
無同设计事务所身为一家具有前瞻性的大宅生活全案设计、服务机构,深刻研究并理解现代居住产品与家居生活方式的紧密联系,在市场潮流视野与本土落地经验下,将真正有价值、可持续的设计与实景作品交付于业主。
無同设计事务所身为一家具有前瞻性的大宅生活全案设计、服务机构,深刻研究并理解现代居住产品与家居生活方式的紧密联系,在市场潮流视野与本土落地经验下,将真正有价值、可持续的设计与实景作品交付于业主。
男女主人在生活中充满着艺术文化的气息,为了满足今后一家人可以在温馨的环境下生活,设计师选择部分的暖粉色调做基础,在软装部分也最大化慵懒的氛围感,考虑到未来有小朋友的生活,设计师更是贴心的准备了更适合未来小朋友的生活环境。
男女主人在生活中充满着艺术文化的气息,为了满足今后一家人可以在温馨的环境下生活,设计师选择部分的暖粉色调做基础,在软装部分也最大化慵懒的氛围感,考虑到未来有小朋友的生活,设计师更是贴心的准备了更适合未来小朋友的生活环境。
在风格上将科技、现代的设计融入到了艺术感的风格中,整体以简洁的色调搭配高品质的家具打造而成。整体的空间,即沉稳厚重,又不失简约大气。仿佛是把内心的每一处浪漫与情调洒满在屋子的每一个角落。
在风格上将科技、现代的设计融入到了艺术感的风格中,整体以简洁的色调搭配高品质的家具打造而成。整体的空间,即沉稳厚重,又不失简约大气。仿佛是把内心的每一处浪漫与情调洒满在屋子的每一个角落。
01LIVINGROOM
01LIVINGROOM
客厅
客厅
这是一件被阳光宠坏的屋子
这是一件被阳光宠坏的屋子。南北通透的格局加上全景落地窗,视野光线都被放纵在每一秒的空气里。
南北通透的格局加上全景落地窗
视野光线都被放纵在每一秒的空气里。
阳光透过若有似无的窗帘投射在沙发上,柔软舒适的面料,温柔高级的暖棕色,让身心都在这方沙发打造的空间里得到释放。阳光透过若有似无的窗帘投射进来,抚平了一天的疲惫。
阳光透过若有似无的窗帘投射在沙发上。柔软舒适的面料,温柔高级的暖棕色,让身心都在这方沙发打造的空间里得到释放。阳光透过若有似无的窗帘投射进来,抚平了一天的疲惫。
伏案的间隙在单人的慵懒沙发小憩。
利用客厅空间刚好放下这张单人的懒人沙发,也偷偷沾着太阳的味道。
伏案的间隙在单人的慵懒沙发小憩。利用客厅空间刚好放下这张单人的懒人沙发,也偷偷沾着太阳的味道。翻起一本想读的书,放一架钢琴,满目余光皆是温暖与美好。时间也许会愿意停下仓促的步伐,许一番岁月静好的模样。是烟火味:最抚人心。
翻起一本想读的书,放一架钢琴。
满目余光皆是温暖与美好。
午后的倒影被拉长,
时间也许会愿意停下仓促的步伐,许一番岁月静好的模样。
与客厅遥相呼应的餐厅,
是烟火味:最抚人心。
分摊了南北两端不同的阳光与景色。
午后的倒影被拉长
与客厅遥相呼应的餐厅
02DININGHALL
分摊了南北两端不同的阳光与景色
餐厅
INSERT
每一个空间都在这里重新构建出新的生活。这里充满了阳光,弥漫着烟火味,也涌动着高级感。藏在每一处的细节都精巧细致,这些都是被揉碎了扔进来的生活态度,衍生着另一个自我,另一个人、物、时间在空间里的共生。
02DININGHALL
餐厅
INSERT
每一个空间都在这里重新构建出新的生活。这里充满了阳光,弥漫着烟火味,也涌动着高级感。藏在每一处的细节都精巧细致,这些都是被揉碎了扔进来的生活态度,衍生着另一个自我,另一个人、物、时间在空间里的共生。
03KITCHENROOM
厨房
深灰加白的色调作为厨房的整体配色,方正的岛台实用而且美观,让每天的柴米油盐酱醋茶,散发着不一样的人间烟火味,小心翼翼地抚摸着凡人的心脏。
03KITCHENROOM
04BEDROOM
厨房
卧室
深灰加白的色调作为厨房的整体配色,方正的岛台实用而且美观,让每天的柴米油盐酱醋茶,散发着不一样的人间烟火味,小心翼翼地抚摸着凡人的心脏。
INTRO
有人说越靠近身体的地方
04BEDROOM
越是高级质感的体现
卧室
每一晚的美梦都离不开卧室的加持
INTRO
简约的意式风格
有人说越靠近身体的地方
把卧室里的高级感描绘的淋漓尽致
越是高级质感的体现
每一晚的美梦都离不开卧室的加持
床顶的每一盏灯,每一个装饰都不多不少刚刚好的存在,默默的在空间中发挥着自己的价值。休息前与身旁的爱人读着经典书籍,美好第一天伴着书中的内容一起进入梦想。
简约的意式风格
把卧室里的高级感描绘的淋漓尽致
MATIERAL SERVICE
床顶的每一盏灯,每一个装饰
主材服务
都不多不少刚刚好的存在
- 科美滋家具
默默的在空间中发挥着自己的价值
- 圣堡罗整体门窗
休息前与身旁的爱人读着经典书籍
- 展志天华木门
美好第一天伴着书中的内容一起进入梦想
- 毅合暖通
- DESON 德国帝森橱柜
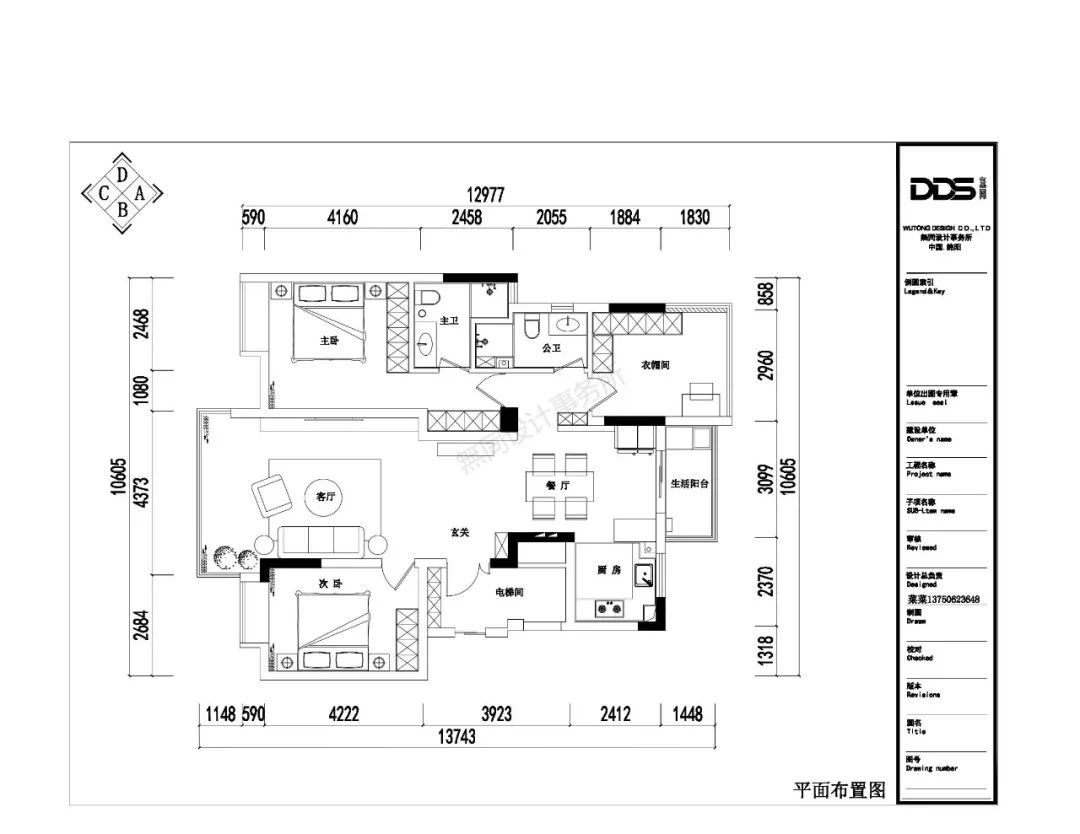
LAYOUT SCHEME
MATIERAL SERVICE
平面方案
主材服务
▂
科美滋家具
平面布局图
圣堡罗整体门窗
展志天华木门
▂
毅合暖通
原始平面图
DESON 德国帝森橱柜
LAYOUT SCHEME
Q&A
平面方案
無同 x 业主 实景交付花絮
▂
1、你最满意新家的哪个部分?
平面布局图
整体配色感觉非常契合我们的要求
尤其是与设计师的沟通过程,很顺畅有效,设计师也能及时抓住我们的想法
▂
2、请形容一下自己的家?
原始平面图
舒适、有设计感。
基础情况
Q & A
—
無同 x 业主 实景交付花絮
PROJECT NAME
1、你最满意新家的哪个部分?
整体配色感觉非常契合我们的要求
尤其是与设计师的沟通过程,很顺畅有效,设计师也能及时抓住我们的想法
2、请形容一下自己的家?
舒适、有设计感。
基础情况
—
PROJECT NAME
领地
·
蘭台府
绵阳市·经开区
122㎡
住宅
主案设计师 Designer:
菜菜
主编 Editor:
迟羽 SAMA
/
小 D
△
主案设计师: 菜菜
设计理念:
倡导形式追随功能
情怀 / 品质/ 生活 / 专注 / 匠心
全案设计、施工、专属生活方式一体化
—
全案实景落地服务,交付更美好的家
MIANYANG,2021,FOR FUTURE HOME-LIFE
Copyright © 2021 無同设计事务所.All rights reserved.
关 于 無 同
万象無同·探索無界
DDS 無同设计事务所,匠心独运的高端生活场域全案服务品牌,是一家集建筑室内设计、施工、管理、服务、材料设备规划、预算控制分析、优质生活方式于一体的空间全案定制机构。事务所以领衔未来的场景生活方式与家居资产形态为构筑宗旨,不断探索、突破和改变传统家居设计界限,为塑造独立于市场位面、具有人格特质的家居生活空间,打开全新认知。
DDS 無同把对日常生活的理解塑造成人居专属化的存在,为品质住宅、高端公寓、平层、洋房、别墅、商业空间等提供前所未有的建筑室内空间 EPC 全案定制服务,通过全案定制设计、全案预算造价、全案产品规划、全案精工系统、全案交付的一体化全案流程体系,让家居生活方式无限接近于极致人性化的生活系统考究,筑造唯一性和标杆性的高品质生活体验。
無同因生活万象与众不同,研选精致生活细节,主动链接每一种有意义、有内涵的生活方式成为主流。高效、显著的 EPC 全案托管 2.0 模式,确保每一个流程标准化、客制化,实现精细化工程交付,重新定义和创生更美好的人居空间和生活想象。
万象無同,探索無界。未来無同设计事务所将会把不同地域和文化背景的人联系起来,从基于客户需求的极致产品与服务迈向基于生活场域的全案高阶定制标准,令每一类社群、家庭和个体的真实需求、兴趣热爱、生活习惯、个性主张得以合理存在,与品质化服务相得益彰,与艺术人文融为一体,回归生活本源,实现现代品质人居典范。
地址:
无同设计事务所
無同设计事务所恒跃名城店
0816-8363066
侵权必究,请理性引用!
客服
消息
收藏
下载
最近























