查看完整案例


收藏

下载
方
案 介 绍
ST
UATION
———————————————————
项目地址:北川
·御景名园
项目名称:【云朵上的家】
居住者:爸爸
+妈妈+大女儿+小女儿
男主人,喜欢喝茶,旅行。
女主人,喜欢瑜伽,拉丁舞。
一动一静·两个形态
屋主喜爱新中式的风格,既有中式风格的古典高雅又含有现代风格的时尚元素。将现代元素和传统元素结合在一起,以现代人的审美需求来打造富有传统韵味的事物,让传统艺术在当今社会得到合适的体现。
将爸爸的传统古风和妈妈的新时尚元素完美结合,透过繁琐的设计突出材质和工艺的审美品质,从而使家居兼具古典与现代的神韵。
Man, likes a cup of tea, traveling.
Woman,likes yoga, singing, Latin dance
.
Big daughter, freedom, likes what design feeling.
Little girl, like music, currently studying piano.
In the family hope domestic space and do not break quality movement of a static two forms, the designer set the new Chinese style style for homeowners, containing both of classical Chinese style style is elegant and fashionable elements of modern style, modern elements and traditional elements together, with the modern's aesthetic demand to make rich traditional styles of things, let the traditional art in today's society find suitable reflect Perfect combination of father's traditional ancient style and mother's new fashion elements, through the tedious design highlights the aesthetic quality of material and technology, so as to make home both classical and modern charm
▂
主
材 服 务
The Topic Elenments Sevice
———————————————————
中国概念
德国高仪卫浴
帝森橱柜
美尔凯特厨卫吊顶
圣堡罗门窗
毅合暖通
--日立中央空调
美莱美佳智能影音
飞利浦照明
富品居家居
▲
原始图
▲
原始图
▲
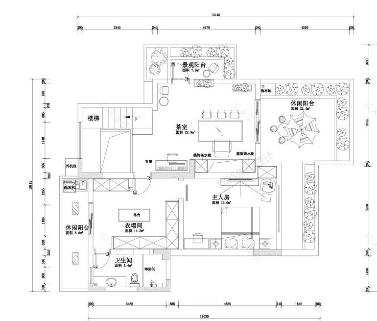
平面
图
▲
平面
图
客厅
>
Living room
餐厅
>
Restaurant
阳台
>
Balcony
基础情况
—
PROJECT NAME\
御景名园
PROJECT ADDRESS \
绵阳市,北川县
ON-STREAM TIME \
2020.9
PROJECT FLOOR AREA \
240㎡
BUILDING TYPE \
复式住宅
创意总监CreativeSupervisor
:
王 严
主案设计师Designer:
孙 根 权
主编Editor:
小 D
Design by WuTong Design Studio
关 于 無 同
万象無同·探索無界。
我们
致力于将日常塑造成审美化的存在,让人们随时生活在景观之中。無同追求实用,去风格化的家居环境,让居者回归生活本身,用最基本的形式,展现空间对使用者的表述。
事务所独特的EPC全案托管模式,确保每一个流程标准化,实现精细化交付,重新定义和创造更美好的人居空间。
创意总监: 王 严
主案设计师: 孙 根 权
地址:
无同设计事务所
-
推荐阅读
客服
消息
收藏
下载
最近

















